Информационная система
«Ёшкин Кот»

Скачать базу одним архивом
Скачать обновления
История создания базы
Карта сайта

Скачать ГОСТ Р 56298-2014 Дворики железобетонные защитные. Технические требования и оценка прочности

Дата актуализации: 10.08.2017

ГОСТ Р 56298-2014

Дворики железобетонные защитные. Технические требования и оценка прочности

Обозначение: ГОСТ Р 56298-2014
Обозначение англ: GOST R 56298-2014
Статус:введен впервые
Название рус.:Дворики железобетонные защитные. Технические требования и оценка прочности
Название англ.:Reinforced concrete containment antechambers for explosives facility sites. Technical requirements and strength assessment
Дата добавления в базу:21.05.2015
Дата актуализации:05.05.2017
Дата введения:01.07.2015
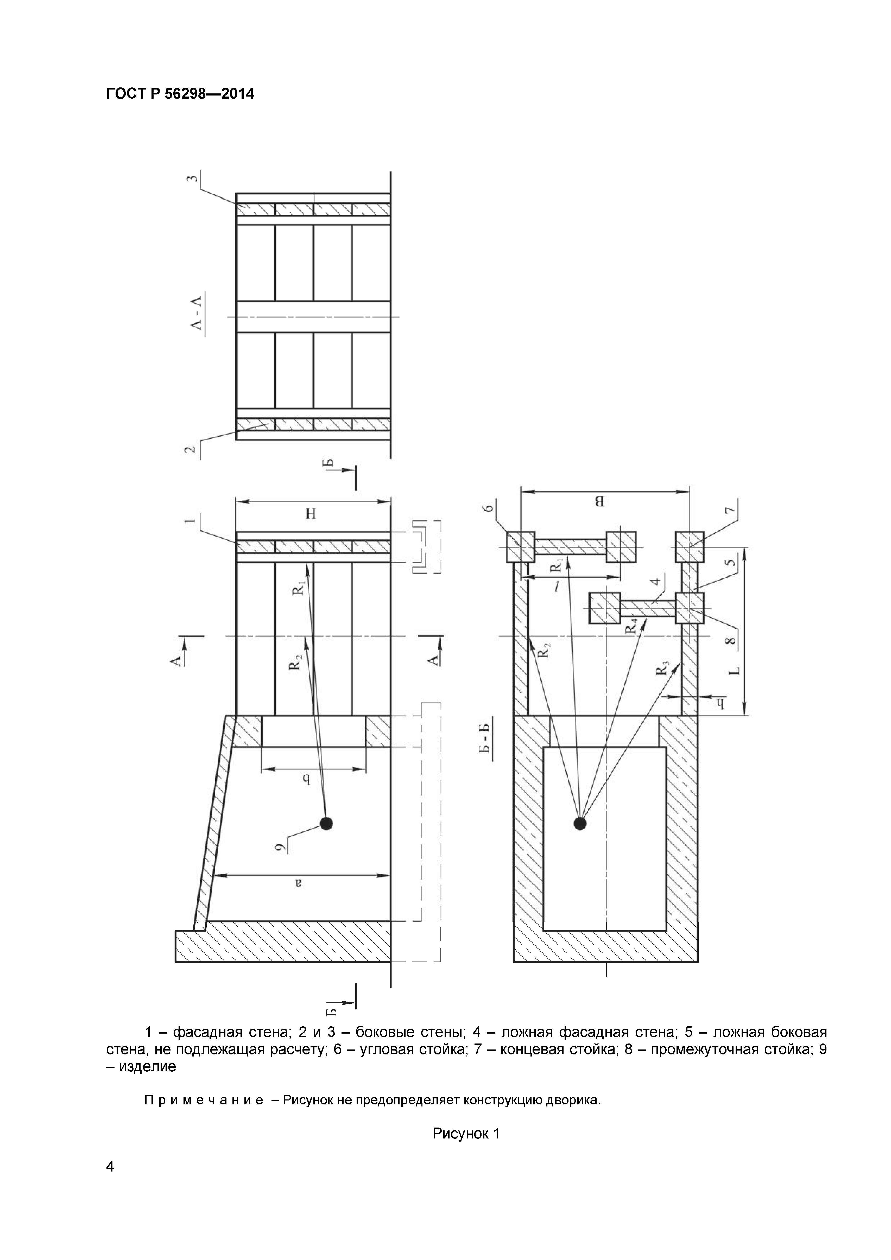
Область применения:Стандарт устанавливает метод расчета железобетонных двориков на импульсное действие ударной волны (УВ) в зависимости от массы, химической природы заряда ВВ, находящегося в кабине, и его расположения. Стандарт распространяется на железобетонные монолитные, сборно-монолитные и сборные дворики, предназначенные для частичной защиты территории, примыкающей к дворику со стороны вышибного окна кабины, от осколков оборудования при взрыве конденсированных взрывчатых веществ (ВВ) в кабине.
Оглавление:1 Область применения
2 Нормативные ссылки
3 Термины и определения
4 Технические требования
5 Определение нагрузок, действующих на стены двориков при взрыве заряда ВВ
6 Расчет железобетонных двориков
7 Расчет радиуса разлета осколков
Приложение А (справочное) Примеры расчета существующего и вновь проектируемого железобетонных двориков
Разработан: ОАО КНИИМ
Утверждён:11.12.2014 Федеральное агентство по техническому регулированию и метрологии (1970-ст)
Издан: Стандартинформ (2015 г. )
Расположен в:Техническая документация Электроэнергия СТРОИТЕЛЬНЫЕ МАТЕРИАЛЫ И СТРОИТЕЛЬСТВО Конструкции зданий Бетонные конструкции Экология СТРОИТЕЛЬНЫЕ МАТЕРИАЛЫ И СТРОИТЕЛЬСТВО Конструкции зданий Бетонные конструкции Строительство Стандарты Другие государственные стандарты, применяемые в строительстве Строительные материалы и строительство
Нормативные ссылки:
ГОСТ Р 56298-2014ГОСТ Р 56298-2014ГОСТ Р 56298-2014ГОСТ Р 56298-2014ГОСТ Р 56298-2014ГОСТ Р 56298-2014ГОСТ Р 56298-2014ГОСТ Р 56298-2014ГОСТ Р 56298-2014ГОСТ Р 56298-2014ГОСТ Р 56298-2014ГОСТ Р 56298-2014ГОСТ Р 56298-2014ГОСТ Р 56298-2014ГОСТ Р 56298-2014ГОСТ Р 56298-2014ГОСТ Р 56298-2014ГОСТ Р 56298-2014ГОСТ Р 56298-2014ГОСТ Р 56298-2014ГОСТ Р 56298-2014ГОСТ Р 56298-2014ГОСТ Р 56298-2014ГОСТ Р 56298-2014ГОСТ Р 56298-2014ГОСТ Р 56298-2014ГОСТ Р 56298-2014

© 2013 Ёшкин Кот :-) Карта сайта