Информационная система
«Ёшкин Кот»

Скачать базу одним архивом
Скачать обновления
История создания базы
Карта сайта

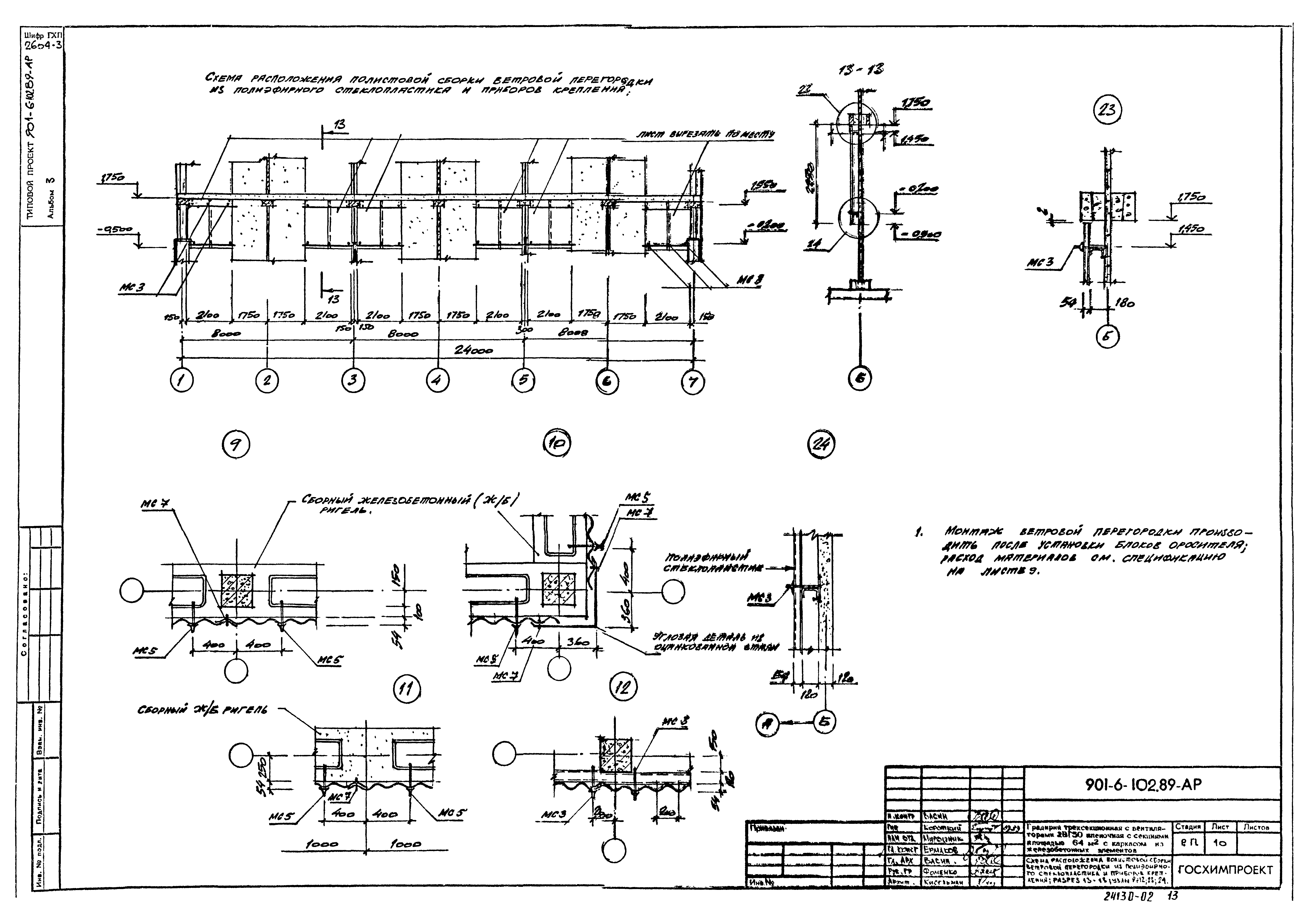
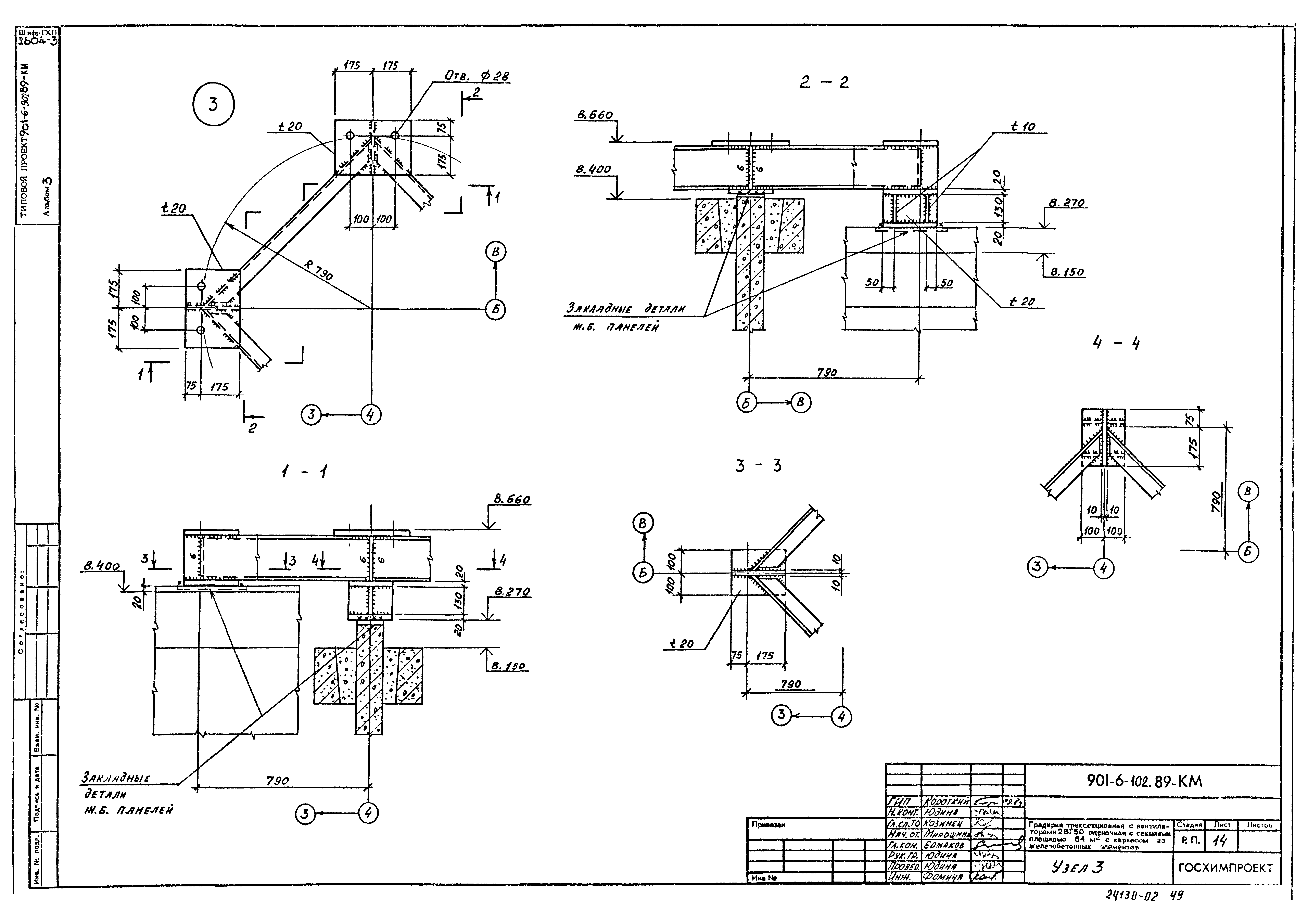
Скачать Типовой проект 901-6-102.89 Альбом 3. Архитектурные решения. Конструкции железобетонные. Конструкции металлические

Дата актуализации: 10.08.2017

Типовой проект 901-6-102.89

Альбом 3. Архитектурные решения. Конструкции железобетонные. Конструкции металлические

Обозначение: Типовой проект 901-6-102.89
Обозначение англ: 901-6-102.89
Статус:отменен
Название рус.:Альбом 3. Архитектурные решения. Конструкции железобетонные. Конструкции металлические
Дата добавления в базу:21.05.2015
Дата актуализации:05.05.2017
Дата введения:01.01.1997
Разработан: Союзводоканалпроект
Утверждён:13.10.1989 СоюзводоканалНИИпроект (SoyuzvodokanalNIIproject 28)
Издан: ЦИТП Госстроя СССР (CITP, Gosstroy (USSR) 1990 г. )
Расположен в:Техническая документация Строительство Справочные документы Типовые строительные конструкции, изделия и узлы Общероссийский строительный каталог Промышленные предприятия, здания и сооружения Здания и сооружения санитарно-технические Водоснабжение Градирни
Типовой проект 901-6-102.89Типовой проект 901-6-102.89Типовой проект 901-6-102.89Типовой проект 901-6-102.89Типовой проект 901-6-102.89Типовой проект 901-6-102.89Типовой проект 901-6-102.89Типовой проект 901-6-102.89Типовой проект 901-6-102.89Типовой проект 901-6-102.89Типовой проект 901-6-102.89Типовой проект 901-6-102.89Типовой проект 901-6-102.89Типовой проект 901-6-102.89Типовой проект 901-6-102.89Типовой проект 901-6-102.89Типовой проект 901-6-102.89Типовой проект 901-6-102.89Типовой проект 901-6-102.89Типовой проект 901-6-102.89Типовой проект 901-6-102.89Типовой проект 901-6-102.89Типовой проект 901-6-102.89Типовой проект 901-6-102.89Типовой проект 901-6-102.89Типовой проект 901-6-102.89Типовой проект 901-6-102.89Типовой проект 901-6-102.89Типовой проект 901-6-102.89Типовой проект 901-6-102.89Типовой проект 901-6-102.89Типовой проект 901-6-102.89Типовой проект 901-6-102.89Типовой проект 901-6-102.89Типовой проект 901-6-102.89Типовой проект 901-6-102.89Типовой проект 901-6-102.89Типовой проект 901-6-102.89Типовой проект 901-6-102.89Типовой проект 901-6-102.89Типовой проект 901-6-102.89Типовой проект 901-6-102.89Типовой проект 901-6-102.89Типовой проект 901-6-102.89Типовой проект 901-6-102.89Типовой проект 901-6-102.89Типовой проект 901-6-102.89Типовой проект 901-6-102.89Типовой проект 901-6-102.89Типовой проект 901-6-102.89Типовой проект 901-6-102.89Типовой проект 901-6-102.89Типовой проект 901-6-102.89Типовой проект 901-6-102.89

© 2013 Ёшкин Кот :-) Карта сайта