Скачать выпуск 1 Водоподготовительное оборудование. Информационно-справочный каталогДата актуализации: 10.08.2017 выпуск 1
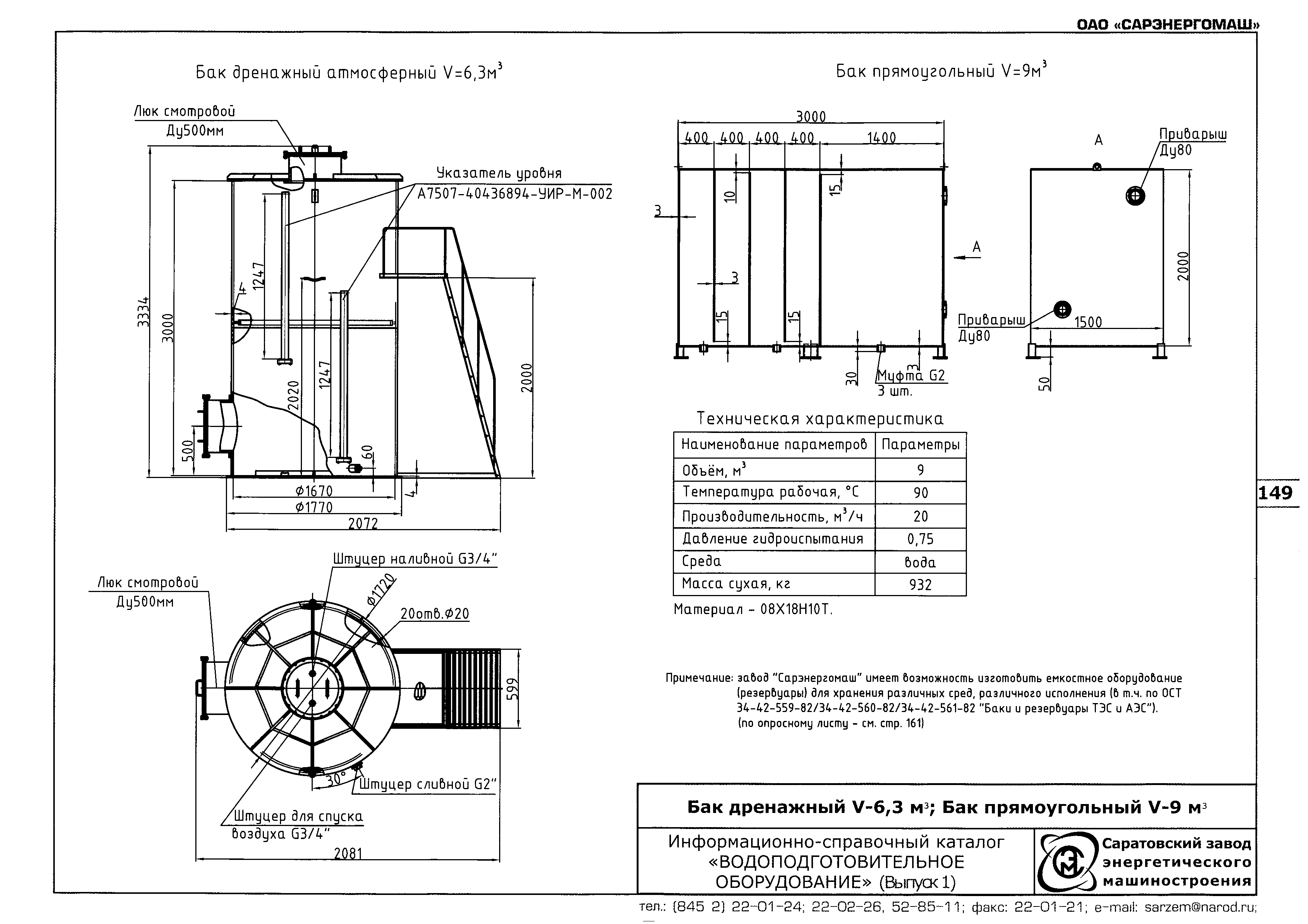
Водоподготовительное оборудование. Информационно-справочный каталогОбозначение: | выпуск 1 | Обозначение англ: | выпуск 1 | Статус: | действует | Название рус.: | Водоподготовительное оборудование. Информационно-справочный каталог | Дата добавления в базу: | 21.05.2015 | Дата актуализации: | 05.05.2017 | Область применения: | В каталоге дается описание водоподготовительного и вспомогательного оборудования, выпускаемого ОАО "Сарэнергомаш", включающее в себя технические характеристики, габаритные и присоединительные размеры. | Оглавление: | Водоподготовительное оборудование Очистка, осветление Грязевики Фильтры осветлительные ФОВ Умягчение Фильтры ионитные. Введение Фильтры ФИПа (параллельноточные) Фильтры ФИПр (противоточные) Солерастворители Блочные водоподготовительные установки Деаэрация Деаэраторы атмосферные Деаэраторы вакуумные вертикальные Деаэраторы вакуумные горизонтальные Эжекторы пароструйные ЭП(с) Вспомогательное оборудование Сепараторы и расширители непрерывной и периодической продувки Баки, резервуары, ёмкости Холодильник для отбора проб пара и воды Компенсаторы сальниковые Опросные листы Опросный лист для заказа фильтра Опросный лист для заказа деаэратора ДА Опросный лист для заказа деаэратора ДВ Опросный лист для заказа баков\резервуаров\емкостей Опросный лист для подбора теплообменника Дополнительная информация Референц-лист Вопросник Переводные множители единиц измерений … | Разработан: | ОАО САРЭНЕРГОМАШ
| Утверждён: | ОАО САРЭНЕРГОМАШ
| Расположен в: |
|
                                                                                                                                                                      
|