Информационная система
«Ёшкин Кот»

Скачать базу одним архивом
Скачать обновления
История создания базы
Карта сайта

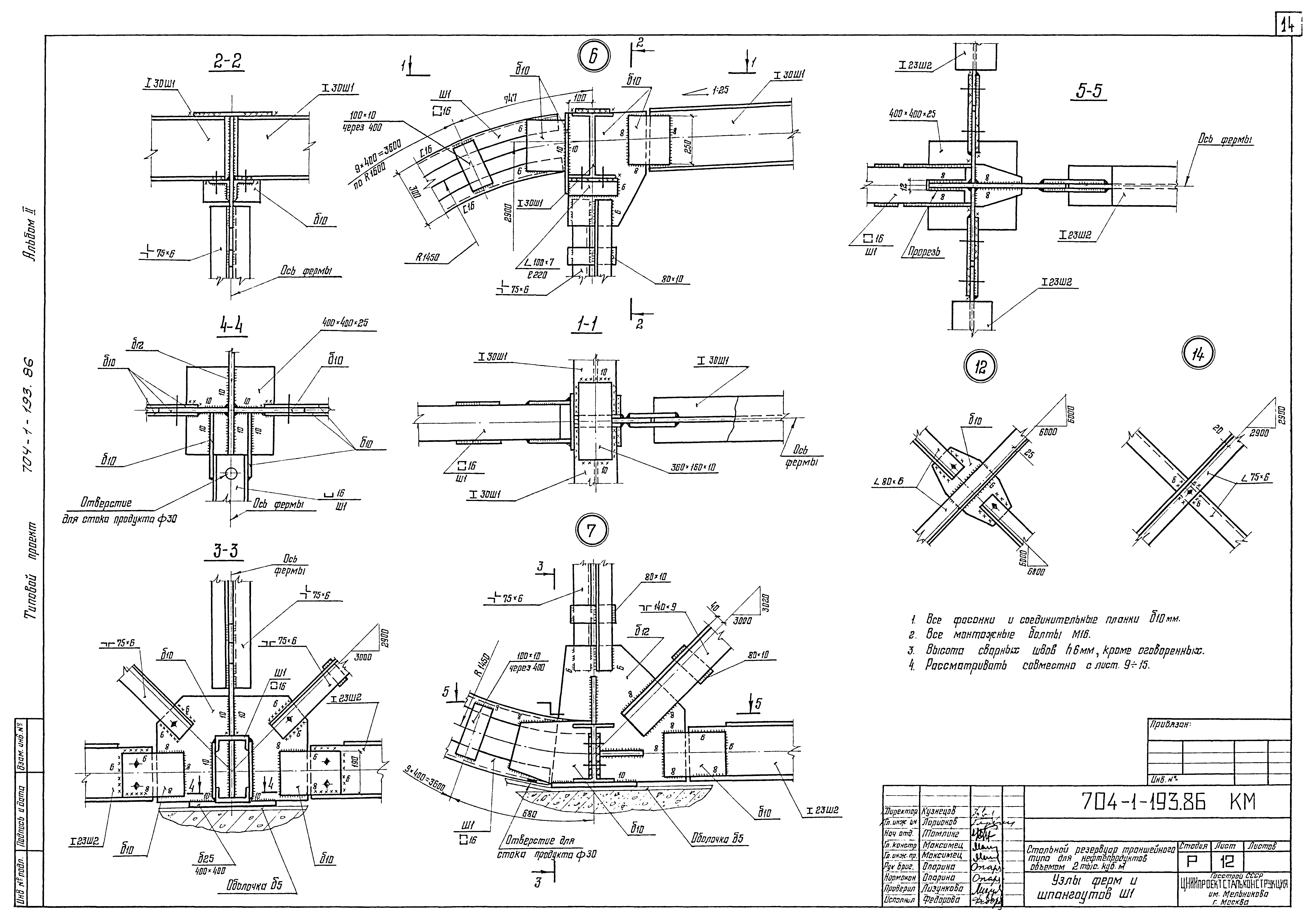
Скачать Типовой проект 704-1-193.86 Альбом II. Конструкции металлические

Дата актуализации: 10.08.2017

Типовой проект 704-1-193.86

Альбом II. Конструкции металлические

Обозначение: Типовой проект 704-1-193.86
Обозначение англ: 704-1-193.86
Статус:не определен законодательством
Название рус.:Альбом II. Конструкции металлические
Дата добавления в базу:21.05.2015
Дата актуализации:05.05.2017
Дата введения:01.09.1985
Разработан: ЦНИИПСК им. Мельникова
Утверждён:15.08.1985 Госкомрезерва СССР (160)
Расположен в:Техническая документация Строительство Справочные документы Типовые строительные конструкции, изделия и узлы Общероссийский строительный каталог Промышленные предприятия, здания и сооружения Предприятия, здания и сооружения складские Резервуары и склады для нефти и нефтепродуктов Резервуары стальные для нефти и нефтепродуктов
Типовой проект 704-1-193.86Типовой проект 704-1-193.86Типовой проект 704-1-193.86Типовой проект 704-1-193.86Типовой проект 704-1-193.86Типовой проект 704-1-193.86Типовой проект 704-1-193.86Типовой проект 704-1-193.86Типовой проект 704-1-193.86Типовой проект 704-1-193.86Типовой проект 704-1-193.86Типовой проект 704-1-193.86Типовой проект 704-1-193.86Типовой проект 704-1-193.86Типовой проект 704-1-193.86Типовой проект 704-1-193.86Типовой проект 704-1-193.86Типовой проект 704-1-193.86Типовой проект 704-1-193.86Типовой проект 704-1-193.86Типовой проект 704-1-193.86Типовой проект 704-1-193.86Типовой проект 704-1-193.86Типовой проект 704-1-193.86Типовой проект 704-1-193.86

© 2013 Ёшкин Кот :-) Карта сайта