Скачать Типовой проект 902-1-47 Альбом III. Электрооборудование, автоматизация и технологический контроль. Чертежи монтажной зоныДата актуализации: 10.08.2017 Типовой проект 902-1-47
Альбом III. Электрооборудование, автоматизация и технологический контроль. Чертежи монтажной зоныОбозначение: | Типовой проект 902-1-47 | Обозначение англ: | 902-1-47 | Статус: | заменен | Название рус.: | Альбом III. Электрооборудование, автоматизация и технологический контроль. Чертежи монтажной зоны | Дата добавления в базу: | 01.11.2014 | Дата актуализации: | 05.05.2017 | Дата введения: | 01.03.1988 | Разработан: | Харьковский Водоканалпроект
| Утверждён: | 29.07.1977 Главпромстройпроект Госстроя СССР (45)
| Расположен в: |
| Заменяет собой: | | Чем заменён: | - Типовой проект 902-1-127.1.87 «Насосная станция для перекачки производственных кислых сточных вод производительностью от 30 до 140 куб. м/ч, глубиной заложения подводящего коллектора 5,0 м в монолитном исполнении опускным способом»
- Типовой проект 902-1-127.2.87 «Насосная станция для перекачки производственных кислых сточных вод производительностью от 30 до 140 куб. м/ч, глубиной заложения подводящего коллектора 5,0 м в сборно-монолитном исполнении открытым способом»
- Типовой проект 902-1-126.87 «Насосная станция для перекачки производственных кислых сточных вод производительностью от 30 до 140 куб. м/ч, глубиной заложения подводящего коллектора 4,0 м в монолитном исполнении открытым способом»
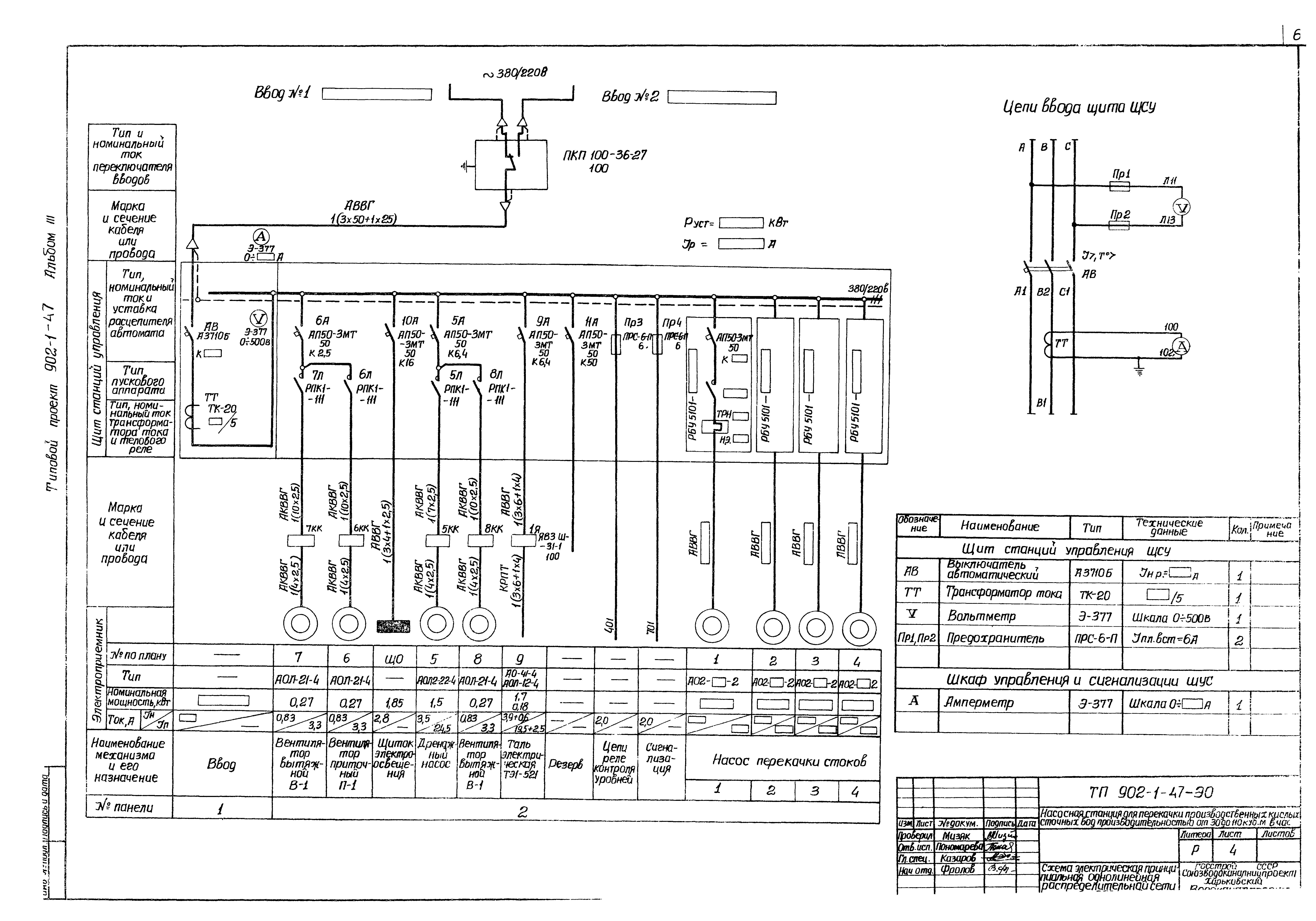
- Типовой проект 902-1-125.87 «Насосная станция для перекачки производственных кислых сточных вод производительностью от 30 до 140 куб. м/ч, глубиной заложения подводящего коллектора 3,0 м в монолитном исполнении открытым способом»
|
                   
|