Скачать Типовой проект 903-1-23/71 Альбом V/3. Тип 3. Котельная для централизованного теплоснабжения систем отопления и вентиляции с обработкой воды методом натрий-катионирования. Установка централизованного горячего водоснабжения. Тепломеханическая, архитектурно-строительная, электротехническая части, контроль и регулирование (по требованию)Дата актуализации: 10.08.2017 Типовой проект 903-1-23/71
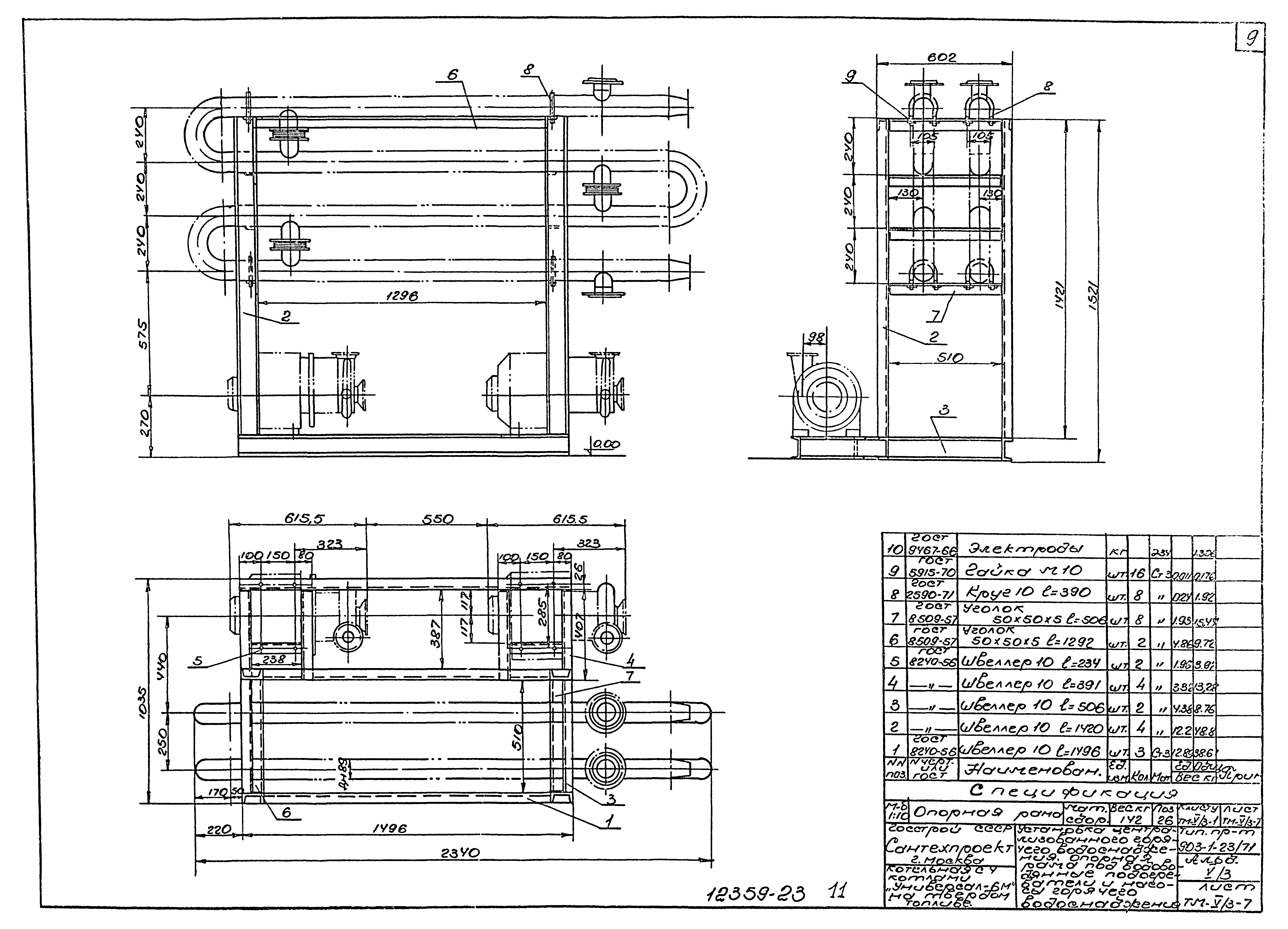
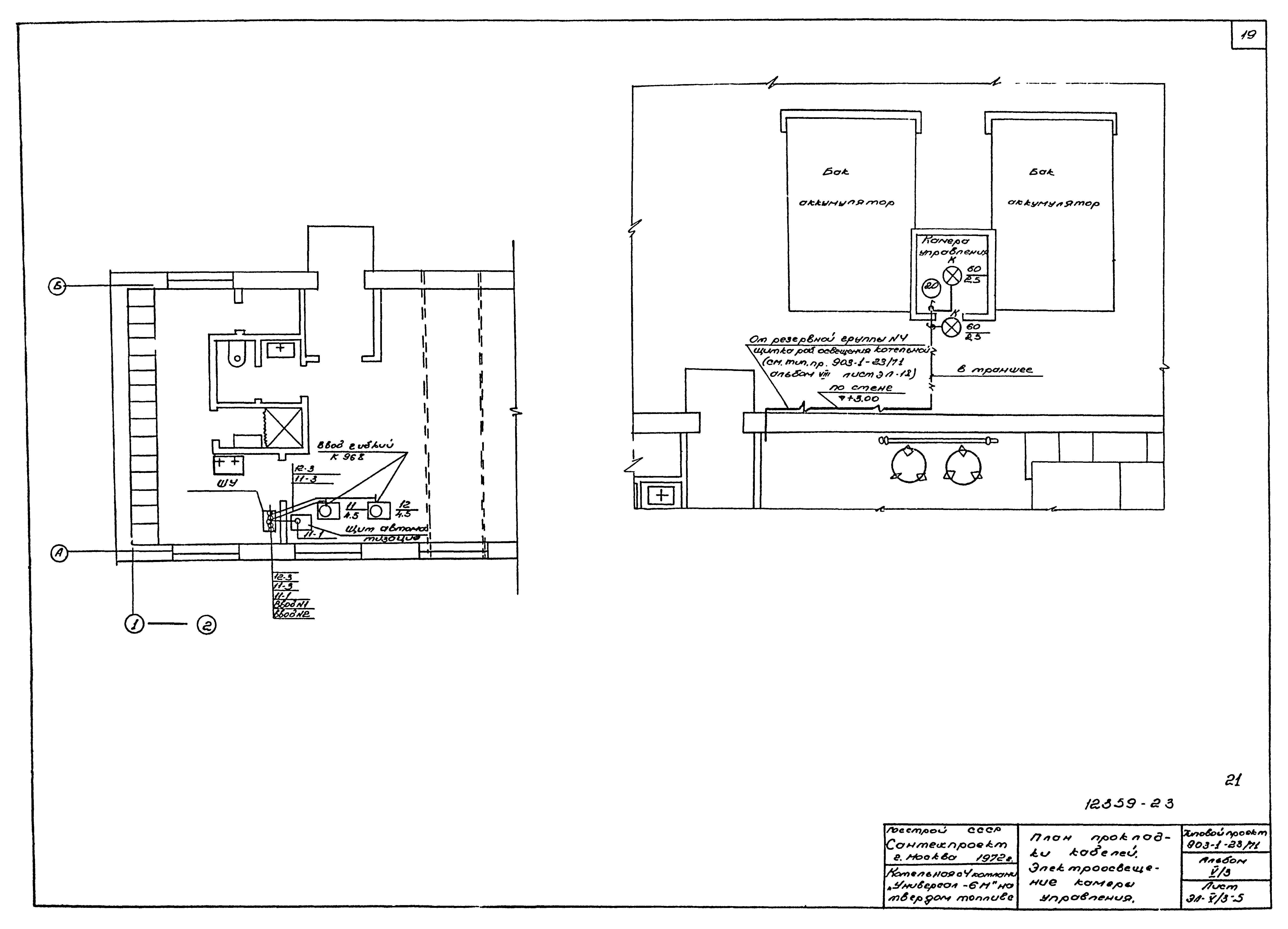
Альбом V/3. Тип 3. Котельная для централизованного теплоснабжения систем отопления и вентиляции с обработкой воды методом натрий-катионирования. Установка централизованного горячего водоснабжения. Тепломеханическая, архитектурно-строительная, электротехническая части, контроль и регулирование (по требованию)Обозначение: | Типовой проект 903-1-23/71 | Обозначение англ: | 903-1-23/71 | Статус: | отменен | Название рус.: | Альбом V/3. Тип 3. Котельная для централизованного теплоснабжения систем отопления и вентиляции с обработкой воды методом натрий-катионирования. Установка централизованного горячего водоснабжения. Тепломеханическая, архитектурно-строительная, электротехническая части, контроль и регулирование (по требованию) | Дата добавления в базу: | 01.10.2014 | Дата актуализации: | 05.05.2017 | Дата введения: | 01.03.1983 | Оглавление: | Содержание альбома Пояснительная записка ТМ-V/3-1 Компоновочный чертеж установки для центрального горячего водоснабжения. План - вид сверху. Разрезы А-А, Б-Б ТМ-V/3-2 Тепловая схема котельной с установкой для центрального горячего водоснабжения ТМ-V/3-3 Установка для централизованного горячего водоснабжения. Трубопроводы. План - вид сверху. Разрезы Г-Г, В-В ТМ-V/3-4 Установка для централизованного горячего водоснабжения. Трубопроводы. Разрезы А-А, Б-Б, С-С, Д-Д, Е-Е ТМ-V/3-5 Установка для централизованного горячего водоснабжения. Спецификация на трубопроводы ТМ-V/3-6 Установка для централизованного горячего водоснабжения. Техномонтажная ведомость на изоляцию трубопроводов, арматуры, оборудования. Ведомость объемов работ. Спецификация на теплоизоляционные материалы ТМ-V/3-7 Установка для централизованного горячего водоснабжения. Опорная рама под водоводяные подогреватели и насосы горячего водоснабжения ТМ-V/3-8 Установка для централизованного горячего водоснабжения. Сводная спецификация на трубопроводы и материалы АС-V/3-1 Заглавный лист АС-V/3-2 Фрагмент плана фундаментов под оборудование АС-V/3-3 Фундаменты ФОМ-6а, ФОМ-9, ФОМ-9а. Сечения АС-V/3-4 Камера управления аккумуляторных баков ЭЛ-V/3-1 Опись чертежей. Пояснительная записка ЭЛ-V/3-2 Спецификация электрооборудования и материалов силового электрооборудования и электроосвещения ЭЛ-V/3-3 Приводы 11, 12 (насосы горячего водоснабжения). Элементная схема ЭЛ-V/3-4 Шкаф управления ШУ. Схема подключения ЭЛ-V/3-5 План прокладки кабелей. Электроосвещение камеры управления А-V/3-1 Заглавный лист А-V/3-2 Спецификация А-V/3-3 Принципиальная технологическая схема контроля А-V/3-4 Схема технологической сигнализации. Электрическая схема питания (задание заводу-изготовителю) А-V/3-5 Общий вид щита (задание заводу-изготовителю) А-V/3-6 Монтажная схема щита (задание заводу-изготовителю) А-V/3-7 Схема внешних соединений приборов А-V/3-8 Трассы электрических и трубных проводок (примерное направление) ТМ-V/3-9 Трубопроводы узла централизованного горячего водоснабжения. Бак V = 25 куб. м. Общий вид. Детали | Разработан: | ГПИ Сантехпроект Госстроя СССР
| Утверждён: | 15.02.1973 Главпромстройпроект Госстроя СССР (7)
| Расположен в: |
| Заменяет собой: | |
                              
|