Скачать Типовой проект 903-1-23/71 Альбом II. Газоходы. Тип 1, 2, 3Дата актуализации: 10.08.2017 Типовой проект 903-1-23/71
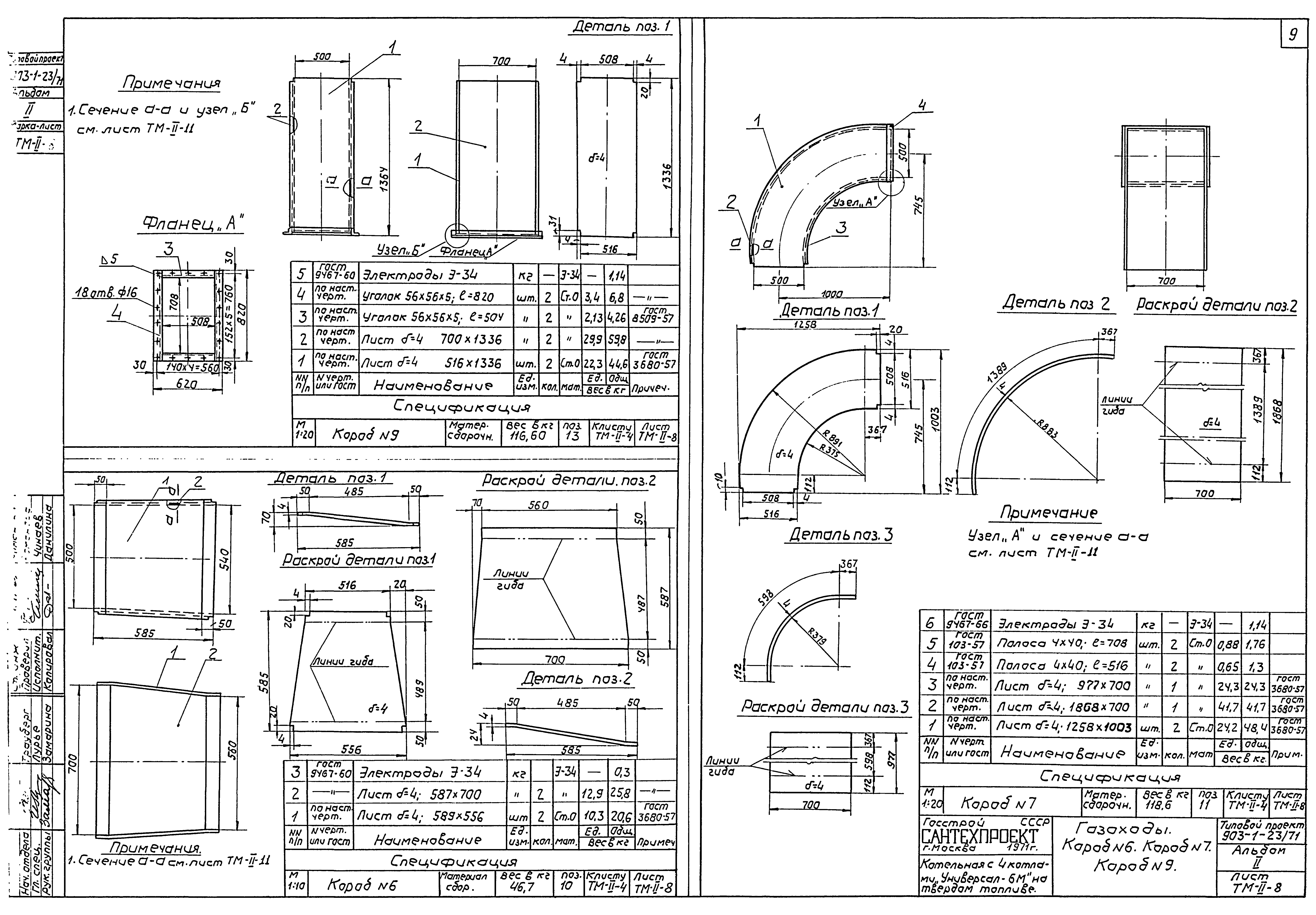
Альбом II. Газоходы. Тип 1, 2, 3Обозначение: | Типовой проект 903-1-23/71 | Обозначение англ: | 903-1-23/71 | Статус: | отменен | Название рус.: | Альбом II. Газоходы. Тип 1, 2, 3 | Дата добавления в базу: | 01.10.2014 | Дата актуализации: | 05.05.2017 | Дата введения: | 01.03.1983 | Оглавление: | Титульный лист ТМ-II-1 Содержание альбома. Сводная спецификация на металл газоходов. Опись чертежей Газоходы ТМ-II-2 План - вид сверху ТМ-II-3 Разрез А-А ТМ-II-4 Разрез Б-Б. Спецификация ТМ-II-5 Коробка № 1. Коробка № 2. Коробка № 8 ТМ-II-6 Коробка № 3. Коробка № 4 ТМ-II-7 Коробка № 5. Коробка № 10 ТМ-II-8 Коробка № 6. Коробка № 7. Коробка № 9 ТМ-II-9 Компенсатор 500х700. Общий вид ТМ-II-10 Компенсатор 500х700. Детали ТМ-II-11 Компенсатор 500х700. Короб. Крышка 470х470. Узлы сварки ТМ-II-12 Техномонтажная ведомость на изоляцию оборудования. Ведомость объемов работ. Спецификация на теплоизоляционные материалы | Разработан: | ГПИ Сантехпроект Госстроя СССР
| Утверждён: | 15.02.1973 Главпромстройпроект Госстроя СССР (7)
| Расположен в: |
| Заменяет собой: | |
             
|