Информационная система
«Ёшкин Кот»

Скачать базу одним архивом
Скачать обновления
История создания базы
Карта сайта

Скачать Типовой проект 903-1-275.89 Альбом 5. Часть 1. Металлоконструкции технологические. Рабочие чертежи

Дата актуализации: 10.08.2017

Типовой проект 903-1-275.89

Альбом 5. Часть 1. Металлоконструкции технологические. Рабочие чертежи

Обозначение: Типовой проект 903-1-275.89
Обозначение англ: 903-1-275.89
Статус:не определен законодательством
Название рус.:Альбом 5. Часть 1. Металлоконструкции технологические. Рабочие чертежи
Дата добавления в базу:01.10.2014
Дата актуализации:05.05.2017
Дата введения:27.09.1989
Оглавление:Содержание
Д1К.162.000 Люк для чистки воздуховода
Д1К.162.000СБ Люк для чистки воздуховода
Д1К.162.001 Прокладка
Д1К.162.010 Заглушка
Д1К.162.010СБ Заглушка
Д1К.162.003 Крышка
Д1К.162.004 Крышка
Д1К.162.005 Ручка
Д1К.162.020 Люк
Д1К.162.008 Стенка
Д1К.162.020СБ Люк
Д1К.162.009 Стенка
Д1К.163.000 Лючок для замера давления воздуха
Д1К.163.000СБ Лючок для замера давления воздуха
Д1К.163.001 Пружина
Д4А.231.000 Отсос местный
Д4А.231.000СБ Отсос местный
Д4А.231.001 Корпус
Д4А.231.002 Фланец
Д4А.231.010 Фланец
Д4А.231.010СБ Фланец
Д10Е.022.004 Скоба
Д10Е.022.000 Решетка сороудерживающая
Д10Е.022.000СБ Решетка сороудерживающая
Д12А.033.000 Расширитель для установки ТУДЭ
Д12А.033.000СБ Расширитель для установки ТУДЭ
Д12А.033.003 Обечайка
Д12Б.061.000 Установка раздлителя РМ5320
Д12Б.061.000СБ Установка раздлителя РМ5320
Д12Б.061.001 Патрубок
Д12Б.061.002 Фланец
Д20А.939.000СБ Газоход
Д20А.939.000 Газоход
Д20А.939.010 Короб
Д20А.939.010СБ Короб
Д20А.939.001 Стенка
Д20А.939.020 Короб
Д20А.939.020СБ Короб
Д20А.939.003 Стенка
Д20А.939.030СБ Короб
Д20А.939.040 Короб
Д20А.939.040СБ Короб
Д20А.939.005 Стенка
Д20А.939.008 Стенка
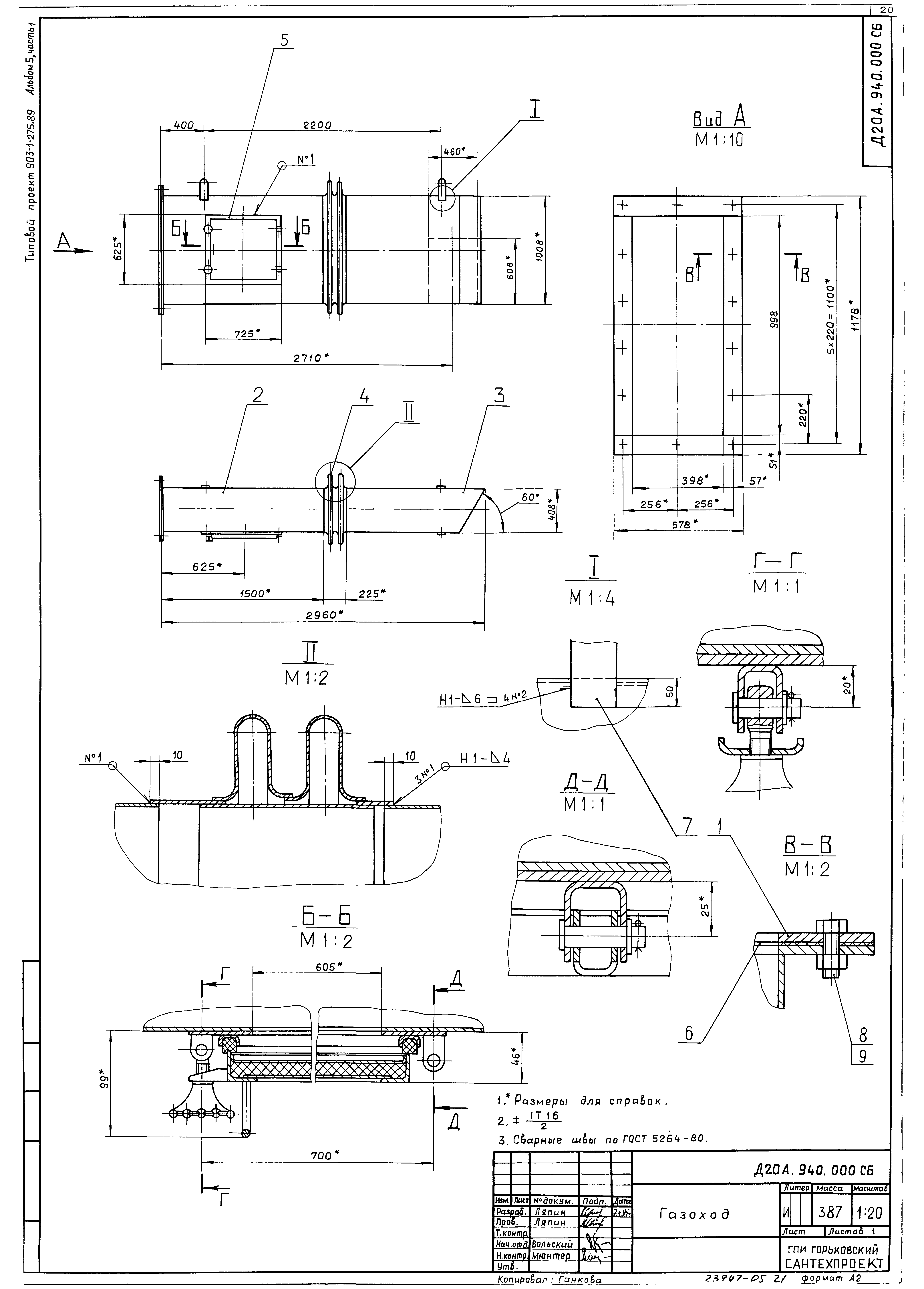
Д20А.940.000 Газоход
Д20А.940.001 Прокладка
Д20А.940.002 Серьга
Д20А.940.000СБ Газоход
Д20А.940.010 Фланец
Д20А.940.010СБ Фланец
Д20А.940.020 Короб
Д20А.940.030 Короб
Д20А.940.020СБ Короб
Д20А.940.012 Стенка
Д20А.940.030СБ Короб
Д20А.940.016 Стенка
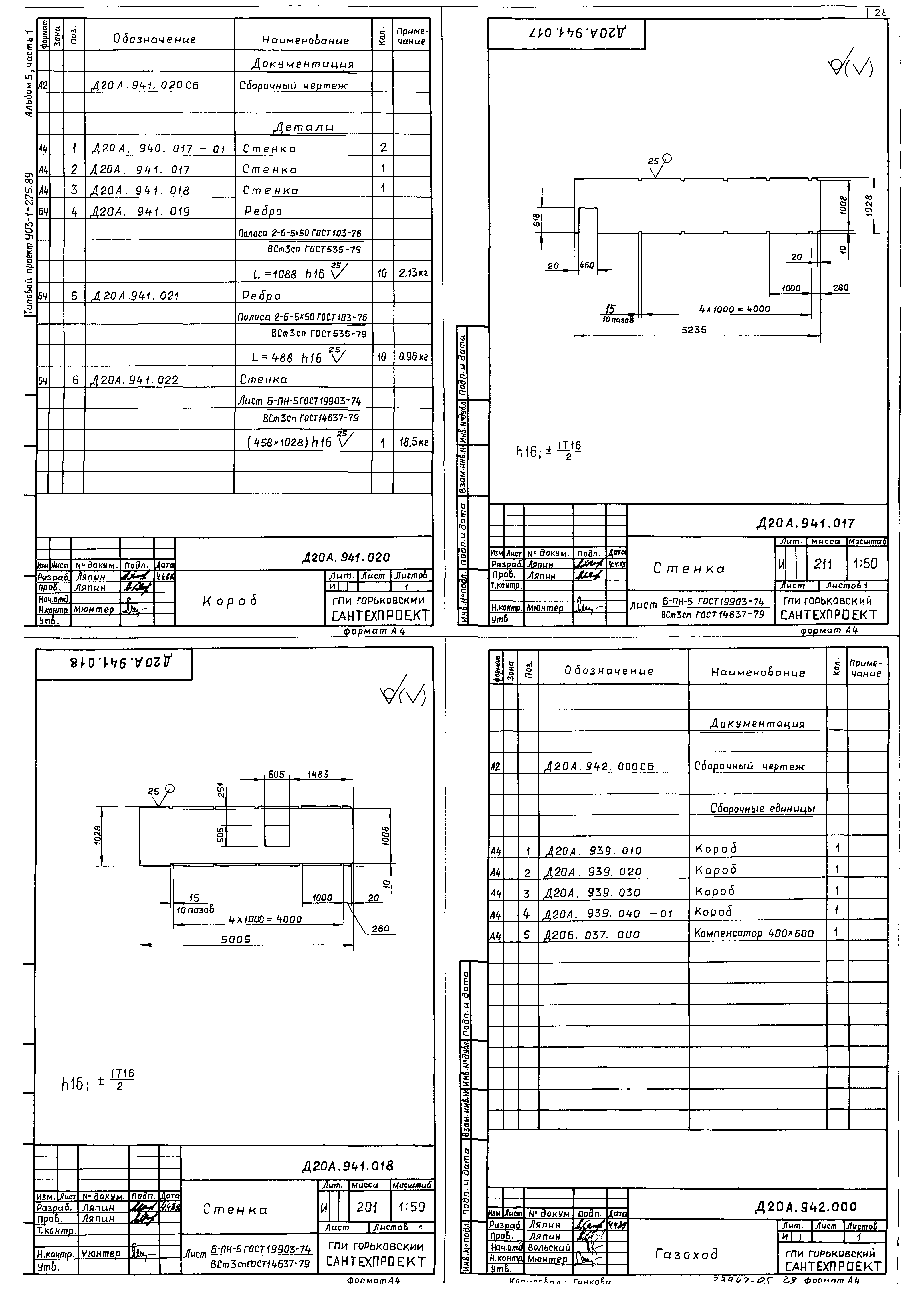
Д20А.940.017 Стенка
Д20А.941.000 Газоход
Д20А.941.010 Короб
Д20А.941.004 Стенка
Д20А.941.000СБ Газоход
Д20А.941.010СБ Короб
Д20А.941.020СБ Короб
Д20А.941.020 Короб
Д20А.941.017 Стенка
Д20А.941.018 Стенка
Д20А.942.000 Газоход
Д20А.942.000СБ Газоход
Д20А.944.000СБ Газоход
Д20А.944.000 Газоход
Д20А.944.010 Карман всасывающий
Д20А.944.003 Прокладка
Д20А.944.020 Корпус
Д20А.944.005 Крюк
Д20А.944.010СБ Карман всасывающий
Д20А.944.020СБ Корпус
Д20А.944.006 Стенка
Д20А.944.007 Ребро
Д20А.944.008 Фланец
Д20А.944.009 Конус
Д20А.944.011 Обечайка
Д20А.944.012 Стенка
Д20А.944.015 Вставка
Д20А.944.014 Фланец
Д20А.944.030 Крышка
Д20А.944.030СБ Крышка
Д20А.944.021 Обечайка
Д20А.944.022 Фланец
Д20А.944.023 Ручка
Д20А.944.028 Крышка
Д20А.944.040 Короб с заслонкой
Д20А.944.031 Подшипник задний
Д20А.944.040СБ Короб с заслонкой
Д20А.944.029 Прокладка
Д20А.944.032 Шайба
Д20А.944.034 Подшипник передний
Д20А.944.033 Прокладка
Д20А.944.035 Втулка
Д20А.944.036 Вал
Д20А.944.041 Стенка
Д20А.944.050 Короб
Д20А.944.044 Стенка
Д20А.944.048 Стенка
Д20А.944.050СБ Короб
Д20А.944.060 Заслонка
Д20А.944.060СБ Заслонка
Д20А.944.053 Ребро
Д20А.944.054 Полотно
Д20А.944.070 Короб с заслонкой
Д20А.944.080 Короб
Д20А.944.070СБ Короб с заслонкой
Д20А.944.080СБ Короб
Д20А.944.058 Стенка
Д20А.944.062 Ребро
Д20А.944.063 Стенка
Д20А.944.090 Короб с заслонкой
Д20А.944.066 Болт откидной
Д20А.944.078 Воздухораспределитель
Д20А.944.090СБ Короб с заслонкой
Д20А.944.100 Короб
Д20А.944.079 Ушко
Д20А.944.100СБ Короб
Д20А.944.081 Фланец
Д20А.944.084 Ушко
Д20А.944.110 Устройство для продувки
Д20А.944.087 Ниппель
Д20А.944.110СБ Устройство для продувки
Д20А.944.088 Ушко
Д20А.944.089 Фланец
Д20А.944.120 Заглушка
Д20А.944.120СБ Заглушка
Д20А.944.094 Стенка
Д20А.944.130 Короб
Д20А.944.130СБ Короб
Д20А.944.097 Ребро
Д20А.944.140 Короб
Д20А.944.095 Стенка
Д20А.944.107 Стенка
Д20А.944.114 Прокладка
Д20А.944.140СБ Короб
Д20А.944.150 Короб утилизатора
Д20А.944.113 Крышка
Д20А.944.150СБ Короб утилизатора
Д20А.944.115 Прокладка
Д20А.944.160 Короб
Д20А.944.118 Стенка
Д20А.944.119 Рамка
Д20А.944.160СБ Короб
Д20А.944.123 Шпилька
Д20А.944.124 Стенка
Д20А.944.170 Водораспределитель
Д20А.944.127 Трубопровод
Д20А.944.170СБ Водораспределитель
Д20А.944.129 Ниппель
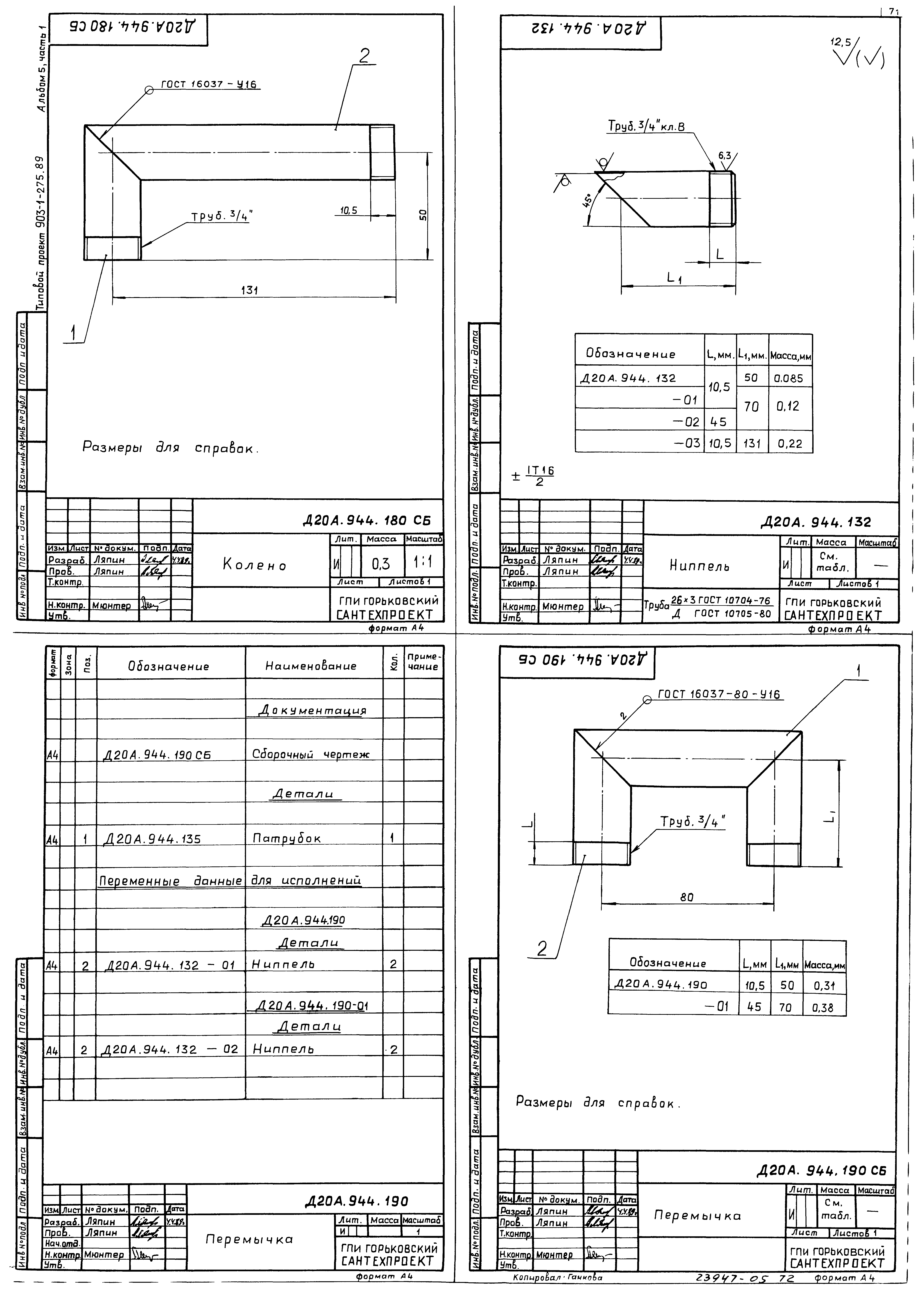
Д20А.944.180 Колено
Д20А.944.180СБ Колено
Д20А.944.132 Ниппель
Д20А.944.190 Перемычка
Д20А.944.190СБ Перемычка
Д20А.944.135 Патрубок
Д20А.944.200 Элемент нагревательный
Д20А.944.200СБ Элемент нагревательный
Д20А.945.000 Газоход
Д20А.945.003 Переход
Д20А.945.000СБ Газоход
Д20А.945.004 Патрубок
Д20А.945.006 Переход
Д20А.944.137 Шайба
Д20А.945.009 Патрубок
Д20А.946.000 Газоход
Д20А.946.000СБ Газоход
Разработан: Горьковский Сантехпроект
Утверждён:27.09.1989 ГПКНИИ Сантехниипроект (11)
Издан: ЦИТП Госстроя СССР (CITP, Gosstroy (USSR) 1989 г. )
Расположен в:Техническая документация Строительство Справочные документы Типовые строительные конструкции, изделия и узлы Общероссийский строительный каталог Промышленные предприятия, здания и сооружения Здания и сооружения санитарно-технические Теплоснабжение Котельные установки Котельные для объектов сельского хозяйства Топливо - каменные и бурые угли
Заменяет собой:
Типовой проект 903-1-275.89Типовой проект 903-1-275.89Типовой проект 903-1-275.89Типовой проект 903-1-275.89Типовой проект 903-1-275.89Типовой проект 903-1-275.89Типовой проект 903-1-275.89Типовой проект 903-1-275.89Типовой проект 903-1-275.89Типовой проект 903-1-275.89Типовой проект 903-1-275.89Типовой проект 903-1-275.89Типовой проект 903-1-275.89Типовой проект 903-1-275.89Типовой проект 903-1-275.89Типовой проект 903-1-275.89Типовой проект 903-1-275.89Типовой проект 903-1-275.89Типовой проект 903-1-275.89Типовой проект 903-1-275.89Типовой проект 903-1-275.89Типовой проект 903-1-275.89Типовой проект 903-1-275.89Типовой проект 903-1-275.89Типовой проект 903-1-275.89Типовой проект 903-1-275.89Типовой проект 903-1-275.89Типовой проект 903-1-275.89Типовой проект 903-1-275.89Типовой проект 903-1-275.89Типовой проект 903-1-275.89Типовой проект 903-1-275.89Типовой проект 903-1-275.89Типовой проект 903-1-275.89Типовой проект 903-1-275.89Типовой проект 903-1-275.89Типовой проект 903-1-275.89Типовой проект 903-1-275.89Типовой проект 903-1-275.89Типовой проект 903-1-275.89Типовой проект 903-1-275.89Типовой проект 903-1-275.89Типовой проект 903-1-275.89Типовой проект 903-1-275.89Типовой проект 903-1-275.89Типовой проект 903-1-275.89Типовой проект 903-1-275.89Типовой проект 903-1-275.89Типовой проект 903-1-275.89Типовой проект 903-1-275.89Типовой проект 903-1-275.89Типовой проект 903-1-275.89Типовой проект 903-1-275.89Типовой проект 903-1-275.89Типовой проект 903-1-275.89Типовой проект 903-1-275.89Типовой проект 903-1-275.89Типовой проект 903-1-275.89Типовой проект 903-1-275.89Типовой проект 903-1-275.89Типовой проект 903-1-275.89Типовой проект 903-1-275.89Типовой проект 903-1-275.89Типовой проект 903-1-275.89Типовой проект 903-1-275.89Типовой проект 903-1-275.89Типовой проект 903-1-275.89Типовой проект 903-1-275.89Типовой проект 903-1-275.89Типовой проект 903-1-275.89Типовой проект 903-1-275.89Типовой проект 903-1-275.89Типовой проект 903-1-275.89Типовой проект 903-1-275.89Типовой проект 903-1-275.89Типовой проект 903-1-275.89Типовой проект 903-1-275.89Типовой проект 903-1-275.89Типовой проект 903-1-275.89

© 2013 Ёшкин Кот :-) Карта сайта