Скачать Типовые проектные решения 705-4-094.87 Альбом 4. Архитектурные решения. Отопление и вентиляция. Внутренний водопровод и канализация. Наружные сети водоснабжения и канализации. Конструкции железобетонныеДата актуализации: 10.08.2017 Типовые проектные решения 705-4-094.87
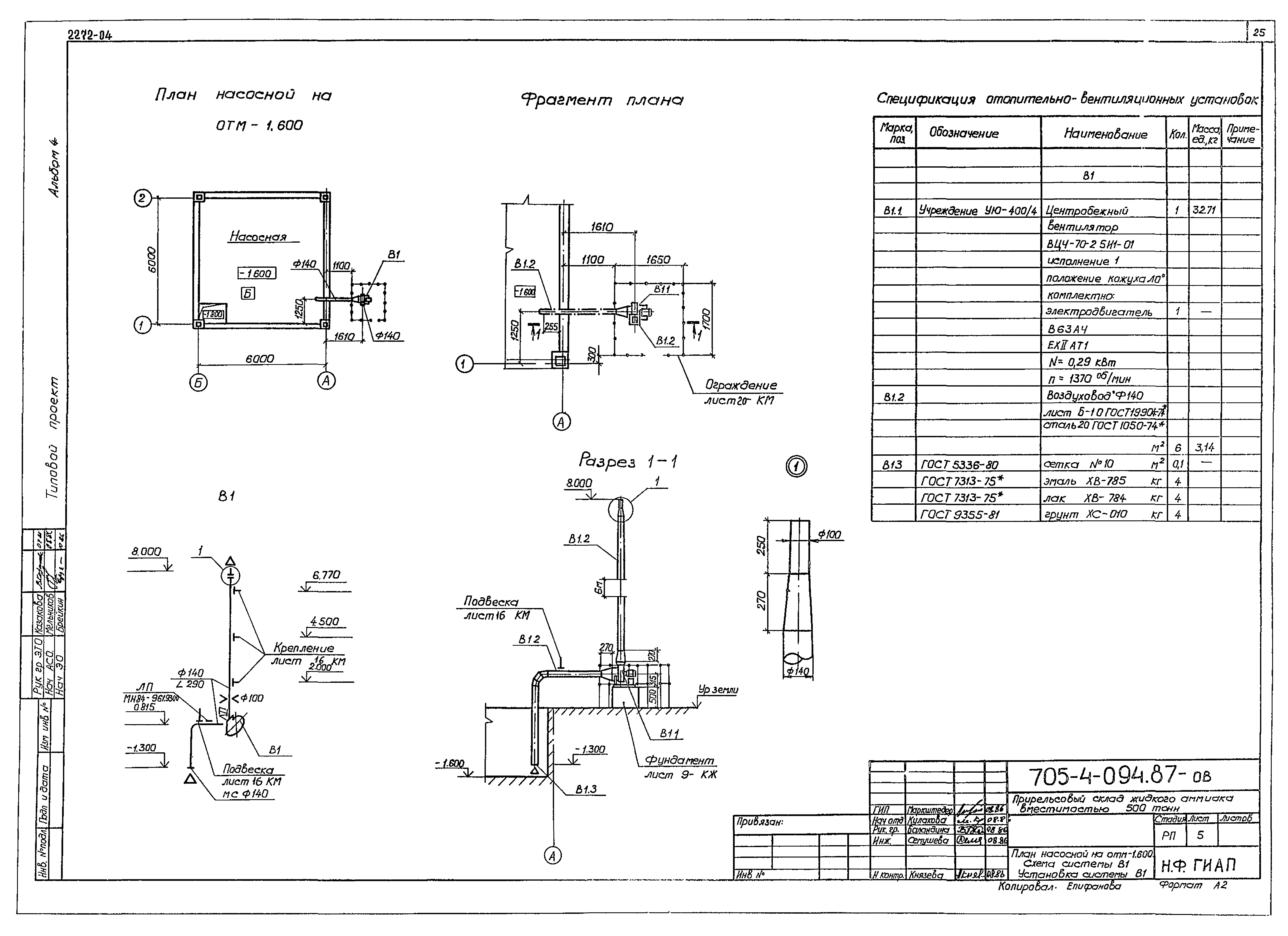
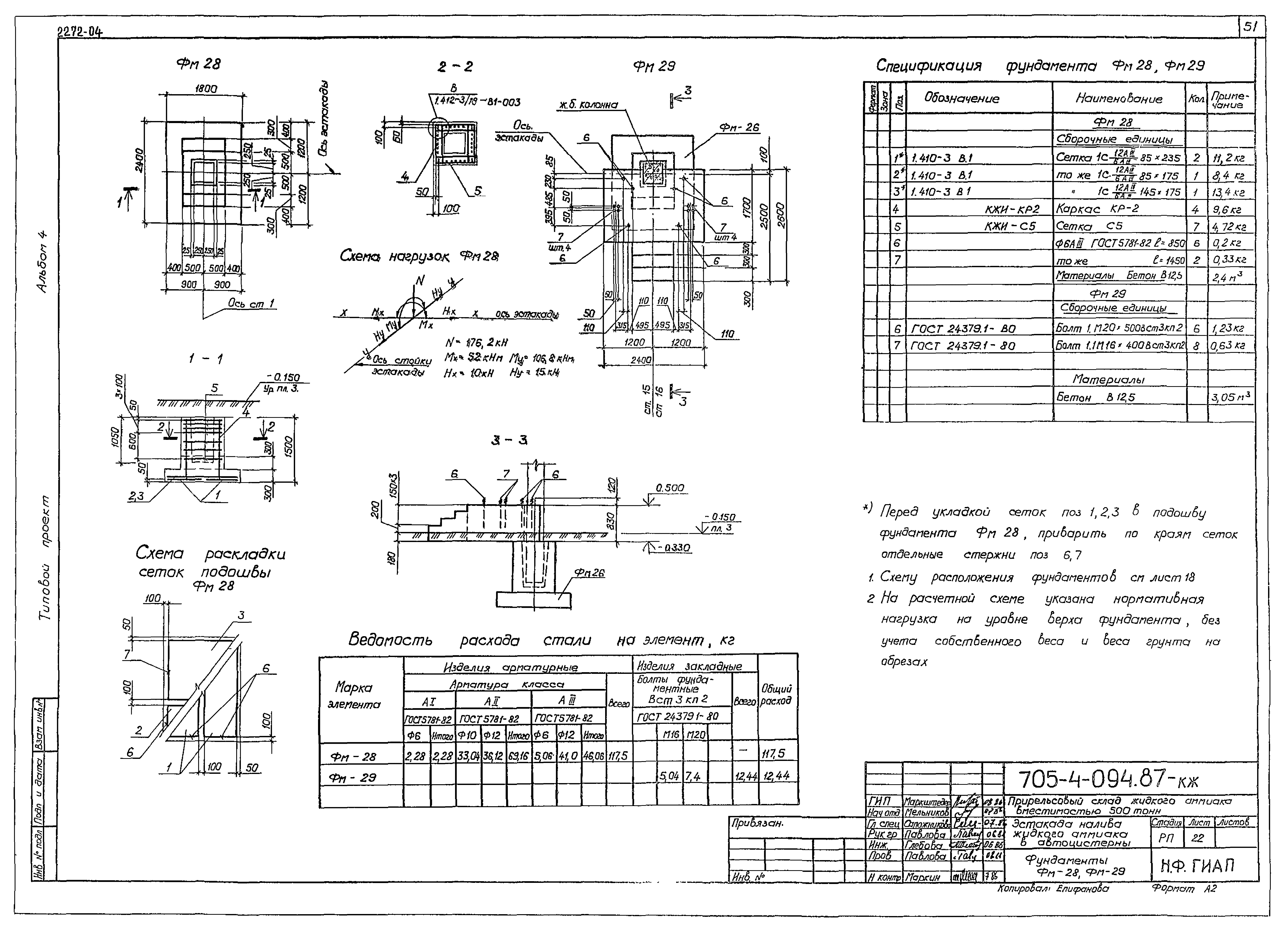
Альбом 4. Архитектурные решения. Отопление и вентиляция. Внутренний водопровод и канализация. Наружные сети водоснабжения и канализации. Конструкции железобетонныеОбозначение: | Типовые проектные решения 705-4-094.87 | Обозначение англ: | 705-4-094.87 | Статус: | cправочные материалы, мп, тпр | Название рус.: | Альбом 4. Архитектурные решения. Отопление и вентиляция. Внутренний водопровод и канализация. Наружные сети водоснабжения и канализации. Конструкции железобетонные | Дата добавления в базу: | 01.10.2014 | Дата актуализации: | 05.05.2017 | Оглавление: | Содержание альбома Пояснительная записка Архитектурные решения Общие данные Ситуационный план. Склад жидкого аммиака Поддон для хранения жидкого аммиака. Схема обвалования. Узел прохода труб через обваловку Вспомогательный корпус. План на отм. 0.000. Разрез 1-1. Фасады 1 - 2, А - Б Вспомогательный корпус. План отверстий. Спецификация труб Вспомогательный корпус. План кровли. Планы шахт № 1 - № 3 Вспомогательный корпус. Фрагменты 2 - 4. Узел 7 Вспомогательный корпус. План полов. Экспликация полов Вспомогательный корпус. Узлы 1 - 6 Компрессорная (под навесом) с наружной установкой. Схемы ограждения навеса компрессорной Аварийные фонтанчики. Схемы ограждения навеса аварийных фонтанчиков Схемы ограждения навесов над шкафами КИП, рампой для баллонов, над лебедкой, аварийного душа на эстакаде слива Отопление и вентиляция Общие данные Планы на отм. 0.000 и кровли Схемы систем ВЕ-1 - ВЕ-5 План насосной на отм. - 1.600. Схема системы В1. Установка системы В-1 Внутренние водопровод и канализация Общие данные Планы на отм. 0.000. Схемы систем В1, Т3, К-1 Наружные водопровод и канализация Общие данные План сетей Конструкции железобетонные Общие данные Поддон для хранилища жидкого аммиака Схема расположения фундаментов хранилища Фундамент ФО1 Фундамент ФМ1 Фундаменты ФМ2 - ФМ4 Фундаменты ФМ5 - ФМ8 Приямок № 1. Ведомость расхода стали на элемент, к листам 5 - 8 Компрессорная (под навесом) с наружной установкой Схема расположения колонн и фундаментов Сечения 1-1 - 6-6. Фундаменты ФОм1 - ФОм3 Фундаменты ФМ11 - ФМ15 Фундаменты ФМ16 - ФМ20 Фундаменты ФМ21, ФМ22. Ведомость расхода стали к листам 10 - 13 Приямок № 2 Сечение 6-6 - 9-9. Схемы раскладки сеток в стенах приямка № 2 Эстакада слива жидкого аммиака из ж/д цистерн Схема расположения плит покрытия на отм. 4.650, колонн и фундаментов эстакады Фундаменты ФМ23, ФМ24, ФМ25, ФМ9. Арматурно-опалубочные чертежи Эстакада налива жидкого аммиака в автоцистерны Схемы расположения балок, траверс и фундаментов Продольный профиль эстакады Сечения 1-1, 2-2, 3-3. Узел I, II Фундаменты ФМ26, ФМ27 Фундаменты ФМ28, ФМ29 Аварийные фонтанчики Схема расположения фундаментов. Фундамент ФМ30 Вспомогательный корпус Схема фундаментов Схема расположения плит покрытия Схема расположения каналов КТП на отм. 0.000 Маневровое устройство Схема фундаментов. Фундаменты ФОМ4, ФОМ5 Фундамент ФОМ6 Фундамент под лебедку ФОМ7, для навеса ФМ10 | Разработан: | Новомосковский ГИАП
| Утверждён: | 05.10.1985 Минудобрений СССР (USSR Minudobreniy 25-101-А)
| Расположен в: |
|
                                                         
|