Информационная система
«Ёшкин Кот»

Скачать базу одним архивом
Скачать обновления
История создания базы
Карта сайта

Скачать Типовой проект 244-1-66.86 Альбом IV. Инженерное оборудование ниже отм. 0.000 (основное решение)

Дата актуализации: 10.08.2017

Типовой проект 244-1-66.86

Альбом IV. Инженерное оборудование ниже отм. 0.000 (основное решение)

Обозначение: Типовой проект 244-1-66.86
Обозначение англ: 244-1-66.86
Статус:не определен законодательством
Название рус.:Альбом IV. Инженерное оборудование ниже отм. 0.000 (основное решение)
Дата добавления в базу:01.10.2014
Дата актуализации:05.05.2017
Дата введения:08.12.1986
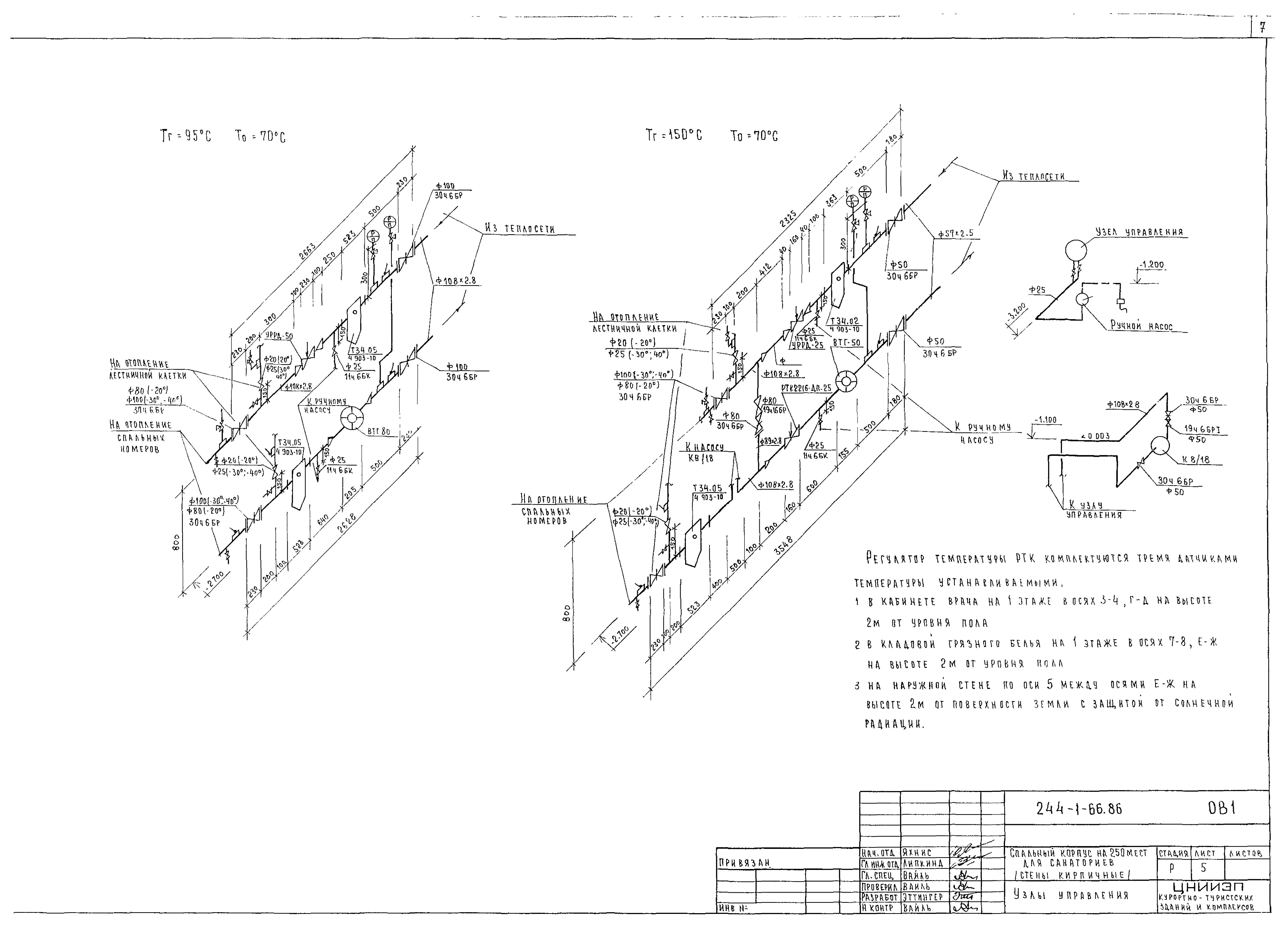
Оглавление:Содержание альбома
Чертежи основного комплекта марки ОВ1
   Общие данные
   План техподполья между осями А - В
   План техподполья между осями В - И
   Схемы систем отопления спальных номеров и лестничной клетки (магистраль)
   Узлы управления
Чертежи основного комплекта марки ВК1
   Общие данные
   План техподполья между осями А - В
   План техподполья между осями В - И
   Схема холодного, горячего и циркуляционного водоснабжения
   Схемы по канализационным выпускам КК1-3, КК1-2, КК1-4
   Схема по канализационному выпуску КК1-1. Схемы по водосточным выпускам КК2-1 - 4 (вариант выпуска водостока в колодец)
   Схемы по водосточным выпускам (вариант выпуска водостока на отмостку)
Чертежи основного комплекта марки ЭО1
   Общие данные
   План техподполья между осями А - В. Электроосвещение
   План техподполья между осями В - И. Электроосвещение
Чертежи основного комплекта марки СС1
   Общие данные
   План техподполья между осями В - И
Разработан: ЦНИИЭП курортно-туристских зданий и комплексов Госгражданстроя
Утверждён:03.10.1984 Госгражданстрой (Gosgrazhdanstroy 280)
Расположен в:Техническая документация Строительство Справочные документы Типовые строительные конструкции, изделия и узлы Общероссийский строительный каталог Защитные сооружения гражданской обороны Типовые проекты защитных сооружений гражданской обороны для жилищно-гражданского строительства Для строительства в городах и поселках городского типа Встроенные помещения, приспосабливаемые под противорадиационные укрытия в общественных зданиях Противорадиационные укрытия в учреждениях санаторно-курортного лечения, отдыха и туризма
Типовой проект 244-1-66.86Типовой проект 244-1-66.86Типовой проект 244-1-66.86Типовой проект 244-1-66.86Типовой проект 244-1-66.86Типовой проект 244-1-66.86Типовой проект 244-1-66.86Типовой проект 244-1-66.86Типовой проект 244-1-66.86Типовой проект 244-1-66.86Типовой проект 244-1-66.86Типовой проект 244-1-66.86Типовой проект 244-1-66.86Типовой проект 244-1-66.86Типовой проект 244-1-66.86Типовой проект 244-1-66.86Типовой проект 244-1-66.86Типовой проект 244-1-66.86Типовой проект 244-1-66.86Типовой проект 244-1-66.86

© 2013 Ёшкин Кот :-) Карта сайта