Информационная система
«Ёшкин Кот»

Скачать базу одним архивом
Скачать обновления
История создания базы
Карта сайта

Скачать Типовой проект 901-6-62 Альбом II. Часть 2. Трехсекционная градирня

Дата актуализации: 10.08.2017

Типовой проект 901-6-62

Альбом II. Часть 2. Трехсекционная градирня

Обозначение: Типовой проект 901-6-62
Обозначение англ: 901-6-62
Статус:заменен
Название рус.:Альбом II. Часть 2. Трехсекционная градирня
Дата добавления в базу:01.10.2014
Дата актуализации:05.05.2017
Дата введения:01.07.1990
Оглавление:Ведомость чертежей
Технологические чертежи
   Общие данные
   Общий вид брызгальной градирни
   Расстановка водоуловительных решеток. План. Разрезы
   Водораспределительная система при гидравлической нагрузке 750 куб. м/ч. План, разрезы
   Водораспределительная система при гидравлической нагрузке 1000 куб. м/ч. План, разрезы
   Расстановка блоков воздухонаправляющих щитов
   Водопроводное оборудование бассейна при гидравлических нагрузках 750 и 1000 куб. м/ч
Архитектурно-строительные решения
   Общие данные
   Фасад 1 - 10
   Фасад 10 - 1
   Фасады Д - А и А - Д
   План на отм. - 2.000
   План на отм. 0.000
   План на отм. 5.020
   План на отм. 8.200
   План на отм. 10.400
   Разрез 1-1
   Разрез 2-2
   Продольная и торцевая обшивка
   Межсекционная обшивка
Конструкции железобетонные
   Общие данные
   Водосборный бассейн. Общий вид. Разрезы 1-1 - 3-3
   Водосборный бассейн. Общий вид. Узлы 1 - 4. Разрезы 4-4 - 10-10
   Водосборный бассейн. Схема армирования днища. Разрез 1-1. Узлы А, Б
   Водосборный бассейн. Схема армирования днища. Разрез 2-2. Узел В
   Водосборный бассейн. Схема армирования ФМ2 - ФМ7
   Водосборный бассейн. Схема армирования ПЯ1 и ПЯ2
   Водосборный бассейн. Схема армирования. Ведомость стержней и выборка стали
   Фундаменты ФМ8 и ФМ9. Общий вид
   Розета. Общий вид и схема армирования
   Схема расположения сборных элементов каркаса
   Схемы расположения сборных элементов каркаса. Вариант для несейсмичных условий
   Схемы расположения сборных элементов каркаса. Вариант для расчетной сейсмичности 7 и 8 баллов
Конструкции металлические
   Общие данные
   Техническая спецификация металла
   План на отм. 10.520. Разрез 1-1
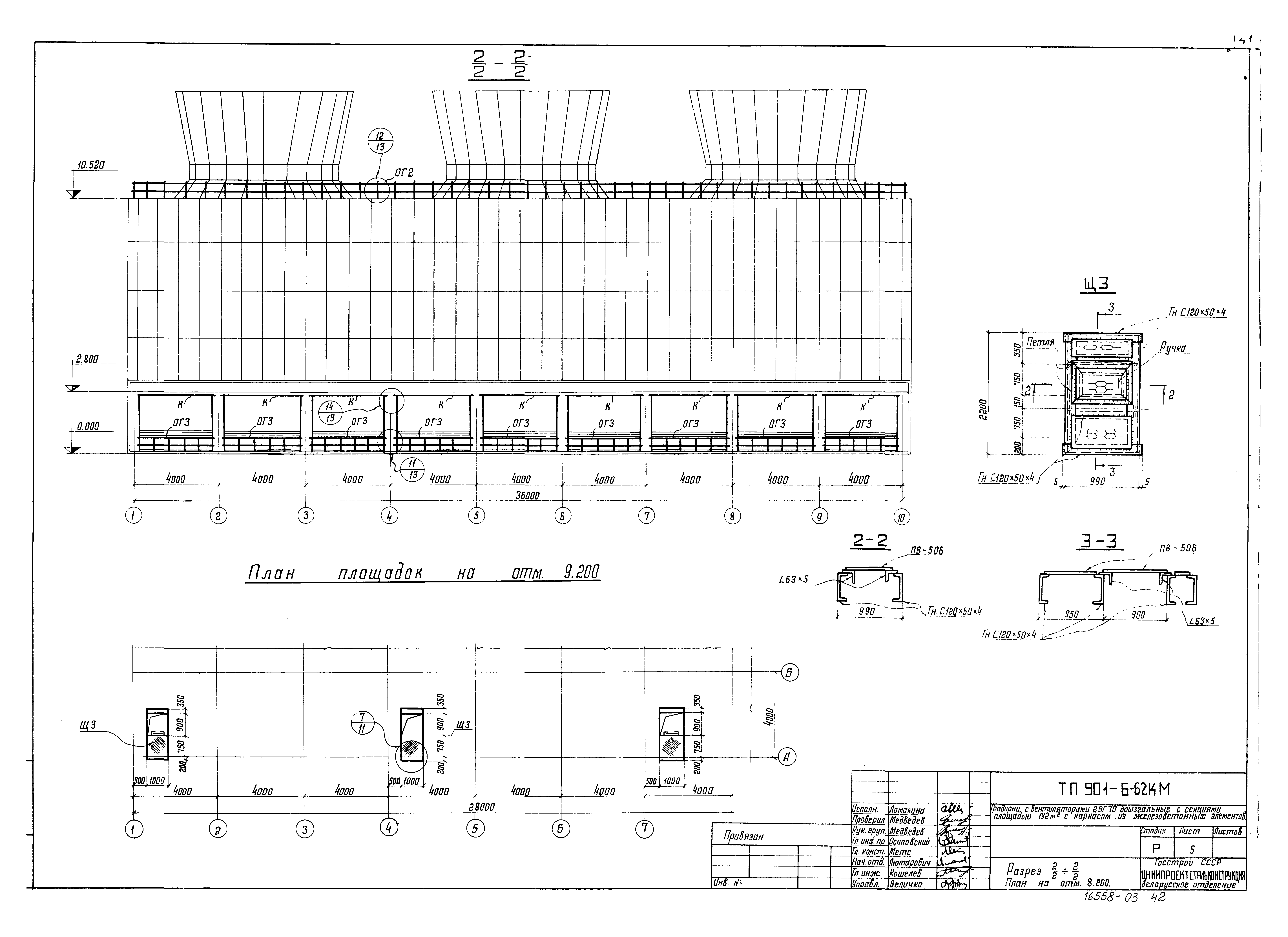
   Разрез 2/2-2/2. План площадок на отм. 8.200
   План площадок на отм. 5.600 и опор на отм. 5.020
   Разрезы 4/4-4/4 - 7/4-7/4
   Разрез 3/2-3/2. Ведомость элементов
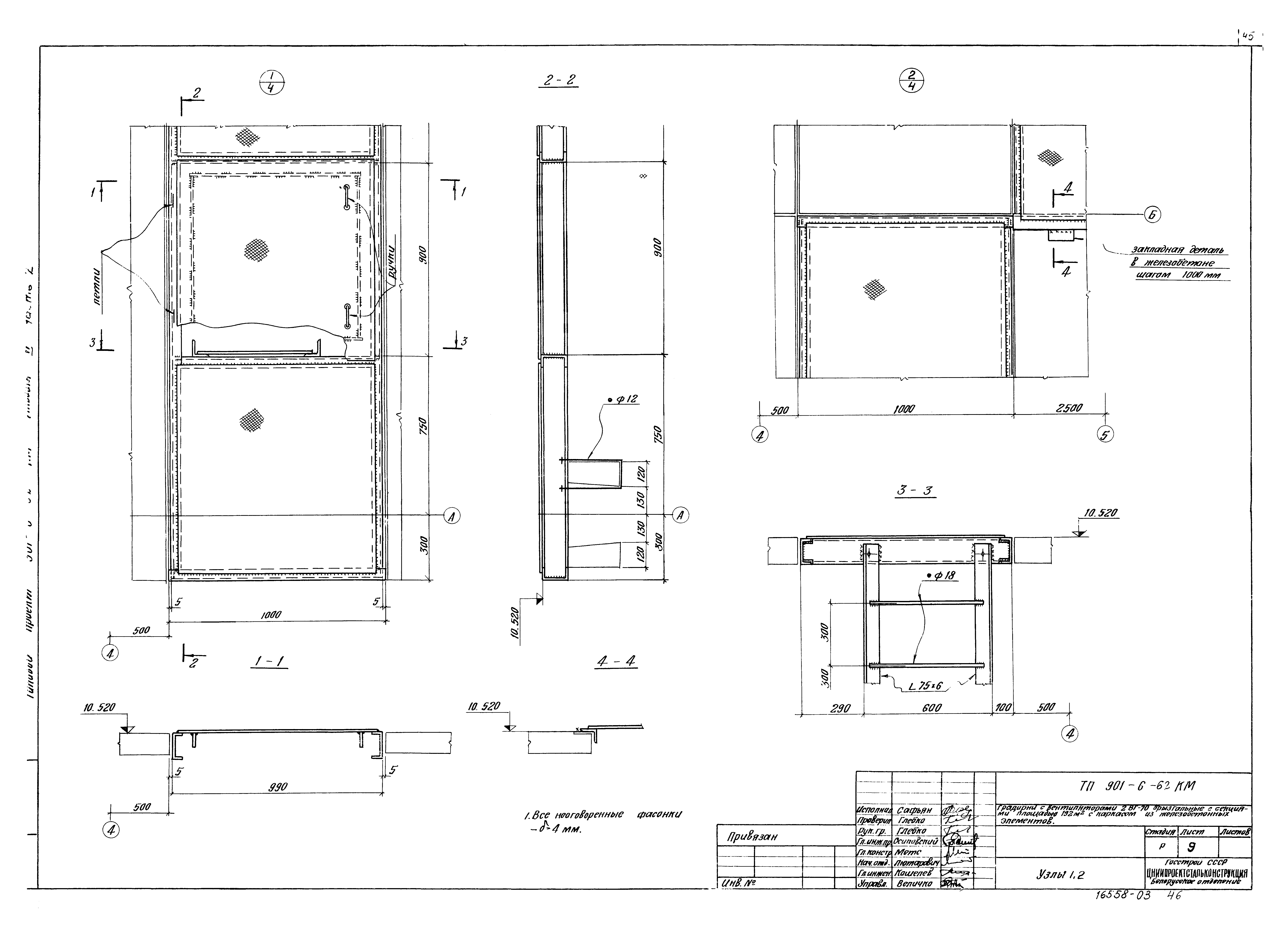
   Узлы 1, 2
   Узлы 3, 4, 5, 6
   Узел 7
   Узлы 8, 9, 10
   Узлы 11, 12, 13, 14
Электрооборудование
   Общие данные. Ведомость чертежей раздела I марки ЭО
   Общие данные. Принципиальная схема силовой сети 380/220 В
   Принципиальная схема управления вентилятором
   Опросный лист для заказа кнопочных постов ПКУ-15. Кабельный журнал
   Прокладка кабелей и электрическое освещение
   Ведомость чертежей раздела II марки ЭО
   Ведомость комплектных изделий
   Щит станций управления ЩСУ. Общий вид
   ЩСУ. Технические данные электрооборудования
   ЩСУ. Панель 1 (2, 3). Схема подключений
   Щит управления ЩУ. Общий вид
   ЩУ. Технические данные электрооборудования
   ЩУ. Перечень надписей
   Щит управления ЩУ. Схема соединений
Разработан: Союзводоканалпроект
Промстройпроект
Утверждён:19.12.1979 СоюзводоканалНИИпроект (SoyuzvodokanalNIIproject 76)
Расположен в:Техническая документация Строительство Справочные документы Типовые строительные конструкции, изделия и узлы Общероссийский строительный каталог Промышленные предприятия, здания и сооружения Здания и сооружения санитарно-технические Водоснабжение Градирни
Заменяет собой:
Чем заменён:
Типовой проект 901-6-62Типовой проект 901-6-62Типовой проект 901-6-62Типовой проект 901-6-62Типовой проект 901-6-62Типовой проект 901-6-62Типовой проект 901-6-62Типовой проект 901-6-62Типовой проект 901-6-62Типовой проект 901-6-62Типовой проект 901-6-62Типовой проект 901-6-62Типовой проект 901-6-62Типовой проект 901-6-62Типовой проект 901-6-62Типовой проект 901-6-62Типовой проект 901-6-62Типовой проект 901-6-62Типовой проект 901-6-62Типовой проект 901-6-62Типовой проект 901-6-62Типовой проект 901-6-62Типовой проект 901-6-62Типовой проект 901-6-62Типовой проект 901-6-62Типовой проект 901-6-62Типовой проект 901-6-62Типовой проект 901-6-62Типовой проект 901-6-62Типовой проект 901-6-62Типовой проект 901-6-62Типовой проект 901-6-62Типовой проект 901-6-62Типовой проект 901-6-62Типовой проект 901-6-62Типовой проект 901-6-62Типовой проект 901-6-62Типовой проект 901-6-62Типовой проект 901-6-62Типовой проект 901-6-62Типовой проект 901-6-62Типовой проект 901-6-62Типовой проект 901-6-62Типовой проект 901-6-62Типовой проект 901-6-62Типовой проект 901-6-62Типовой проект 901-6-62Типовой проект 901-6-62Типовой проект 901-6-62Типовой проект 901-6-62Типовой проект 901-6-62Типовой проект 901-6-62Типовой проект 901-6-62Типовой проект 901-6-62Типовой проект 901-6-62Типовой проект 901-6-62Типовой проект 901-6-62Типовой проект 901-6-62Типовой проект 901-6-62

© 2013 Ёшкин Кот :-) Карта сайта