Информационная система
«Ёшкин Кот»

Скачать базу одним архивом
Скачать обновления
История создания базы
Карта сайта

Скачать Типовой проект 409-28-40 Альбом VII. Часть 1. Строительные конструкции камер типа V. Вариант в монолитном керамзитобетоне

Дата актуализации: 10.08.2017

Типовой проект 409-28-40

Альбом VII. Часть 1. Строительные конструкции камер типа V. Вариант в монолитном керамзитобетоне

Обозначение: Типовой проект 409-28-40
Обозначение англ: 409-28-40
Статус:действует
Название рус.:Альбом VII. Часть 1. Строительные конструкции камер типа V. Вариант в монолитном керамзитобетоне
Дата добавления в базу:01.10.2014
Дата актуализации:05.05.2017
Оглавление:Содержание альбома
Конструкции железобетонные
   Общие данные
   Схемы расположения элементов камеры ПК1. Разрез 1-1. Узел 1
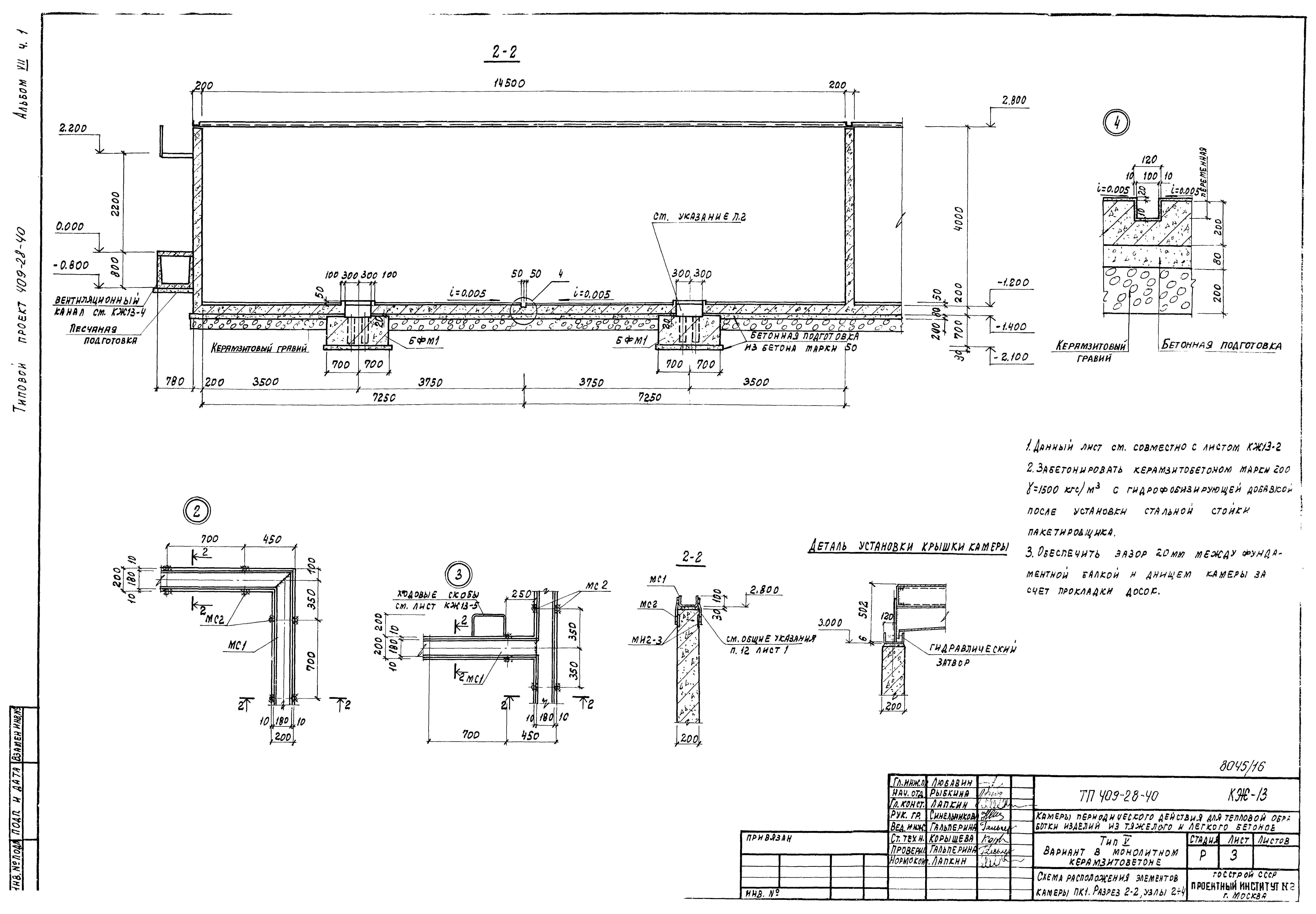
   Схемы расположения элементов камеры ПК1. Разрез 2-2. Узлы 2 - 4
   Схемы расположения элементов каналов КЛ1, КЛ1а
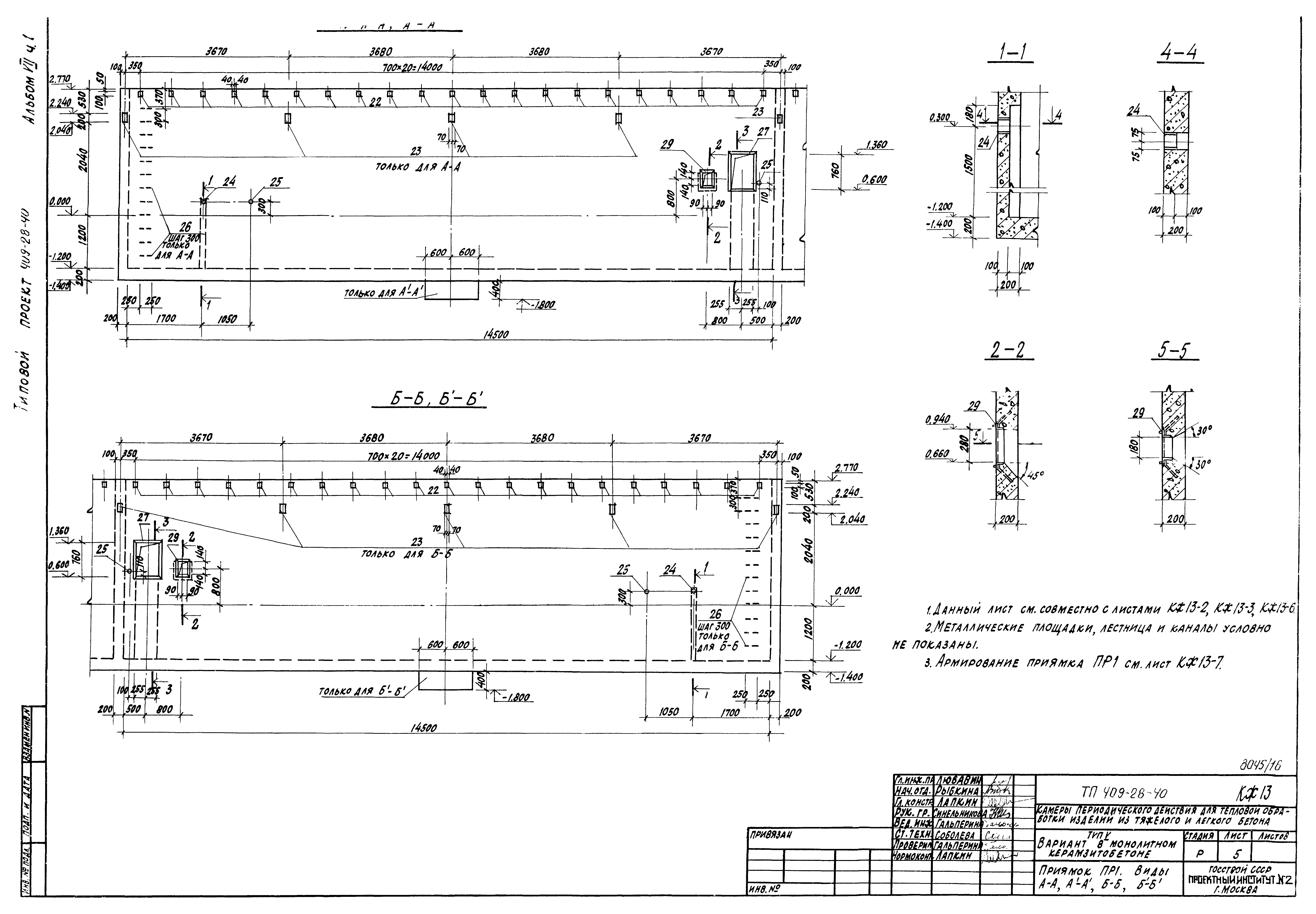
   Приямок ПР1. Виды А-А, А`-А`, Б-Б, Б`-Б`
   Приямок ПР1. Вид по стрелке "В". Разрезы
   Приямок ПР1. Армирование
   Приямок ПР1. Раскладка сеток днища
   Приямок ПР1. Узлы армирования
   Балка фундаментная БФм1. Плиты монолитные Пм1 - Пм2а
Конструкции металлические
   Общие данные. Техническая спецификация металла на камеру
   Общие данные. Техническая спецификация металла по площадкам, лестницам и ограждениям. Ведомость металлоконструкций по видам профилей
   Схемы обслуживающей площадки камеры ПК1
   Крышка камеры
Организация строительства
   Основные положения по организации строительства
Разработан: ВНИИжелезобетон
Проектный институт № 2 Госстроя СССР
Утверждён:06.08.1981 Госстрой СССР (61)
Расположен в:Техническая документация Строительство Справочные документы Типовые строительные конструкции, изделия и узлы Общероссийский строительный каталог Промышленные предприятия, здания и сооружения Предприятия, здания и сооружения промышленности и электроэнергетики Строительная индустрия и промышленность строительных материалов Производство строительных материалов и изделий Производство бетона, раствора и асфальта
Заменяет собой:
  • Типовой проект 409-10-38
Типовой проект 409-28-40Типовой проект 409-28-40Типовой проект 409-28-40Типовой проект 409-28-40Типовой проект 409-28-40Типовой проект 409-28-40Типовой проект 409-28-40Типовой проект 409-28-40Типовой проект 409-28-40Типовой проект 409-28-40Типовой проект 409-28-40Типовой проект 409-28-40Типовой проект 409-28-40Типовой проект 409-28-40Типовой проект 409-28-40Типовой проект 409-28-40Типовой проект 409-28-40Типовой проект 409-28-40Типовой проект 409-28-40

© 2013 Ёшкин Кот :-) Карта сайта