Информационная система
«Ёшкин Кот»

Скачать базу одним архивом
Скачать обновления
История создания базы
Карта сайта

Скачать Типовой проект 409-28-40 Альбом V. Часть 1. Строительные конструкции камер типа III. Вариант в монолитном керамзитобетоне

Дата актуализации: 10.08.2017

Типовой проект 409-28-40

Альбом V. Часть 1. Строительные конструкции камер типа III. Вариант в монолитном керамзитобетоне

Обозначение: Типовой проект 409-28-40
Обозначение англ: 409-28-40
Статус:действует
Название рус.:Альбом V. Часть 1. Строительные конструкции камер типа III. Вариант в монолитном керамзитобетоне
Дата добавления в базу:01.10.2014
Дата актуализации:05.05.2017
Оглавление:Содержание альбома
Конструкции железобетонные
   Общие данные
   Схемы расположения элементов камер ПК1 - ПК3. Узлы 1, 2
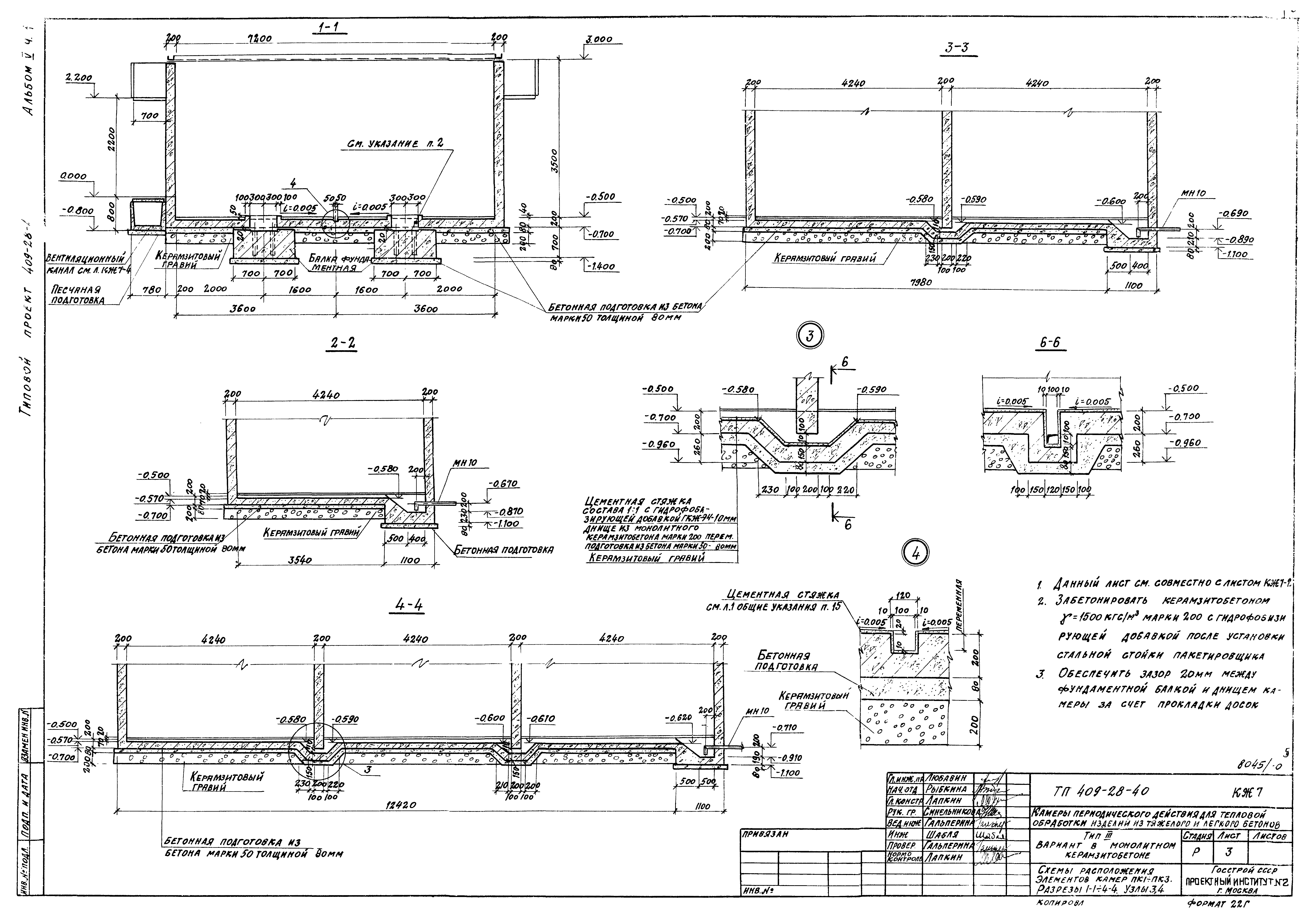
   Схемы расположения элементов камер ПК1 - ПК3. Разрезы 1-1 - 4-4. Узлы 3, 4
   Схемы расположения элементов каналов КЛ1 - КЛ3
   Приямки ПР1 - ПР3. Виды А-А; А`-А` и по стрелкам Б, В
   Приямок ПР1. Армирование
   Приямок ПР2. Армирование
   Приямок ПР3. Армирование
   Приямки ПР1 - ПР3. Узлы армирования
   Балки фундаментные БФм1 - БФм3. Плиты монолитные Пм1 - Пм1б
   Камера ПК1 для варианта механизированного открывания крышки при помощи гидроцилиндров
Конструкции металлические
   Общие данные. Техническая спецификация металла на камеры
   Общие данные. Техническая спецификация металла по лестницам, площадкам и ограждениям
   Общие данные. Ведомость металлоконструкций по видам профилей
   Схемы обслуживающей площадки камер ПК1, ПК2, ПК3
   Крышки камер КК1
   Крышки камер КК2
   Стойки привода крышки камеры КК2
Организация строительства
   Основные положения по организации строительства
Разработан: ВНИИжелезобетон
Проектный институт № 2 Госстроя СССР
Утверждён:06.08.1981 Госстрой СССР (61)
Расположен в:Техническая документация Строительство Справочные документы Типовые строительные конструкции, изделия и узлы Общероссийский строительный каталог Промышленные предприятия, здания и сооружения Предприятия, здания и сооружения промышленности и электроэнергетики Строительная индустрия и промышленность строительных материалов Производство строительных материалов и изделий Производство бетона, раствора и асфальта
Заменяет собой:
  • Типовой проект 409-10-38
Типовой проект 409-28-40Типовой проект 409-28-40Типовой проект 409-28-40Типовой проект 409-28-40Типовой проект 409-28-40Типовой проект 409-28-40Типовой проект 409-28-40Типовой проект 409-28-40Типовой проект 409-28-40Типовой проект 409-28-40Типовой проект 409-28-40Типовой проект 409-28-40Типовой проект 409-28-40Типовой проект 409-28-40Типовой проект 409-28-40Типовой проект 409-28-40Типовой проект 409-28-40Типовой проект 409-28-40Типовой проект 409-28-40Типовой проект 409-28-40Типовой проект 409-28-40Типовой проект 409-28-40Типовой проект 409-28-40

© 2013 Ёшкин Кот :-) Карта сайта