Скачать Типовой проект 416-1-152.84 Альбом III. Электрооборудование, устройство связи и сигнализации, автоматизация производстваДата актуализации: 10.08.2017 Типовой проект 416-1-152.84
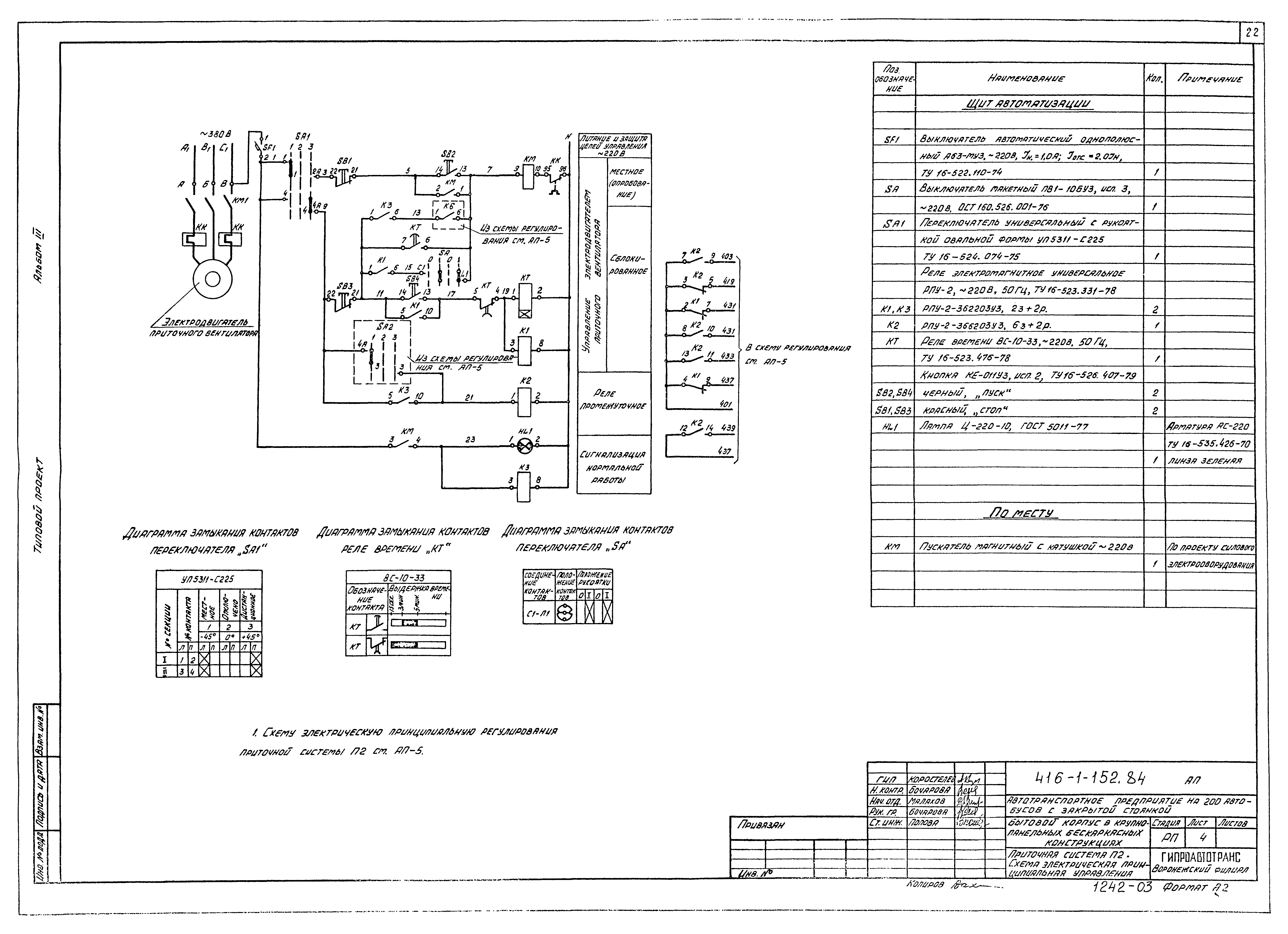
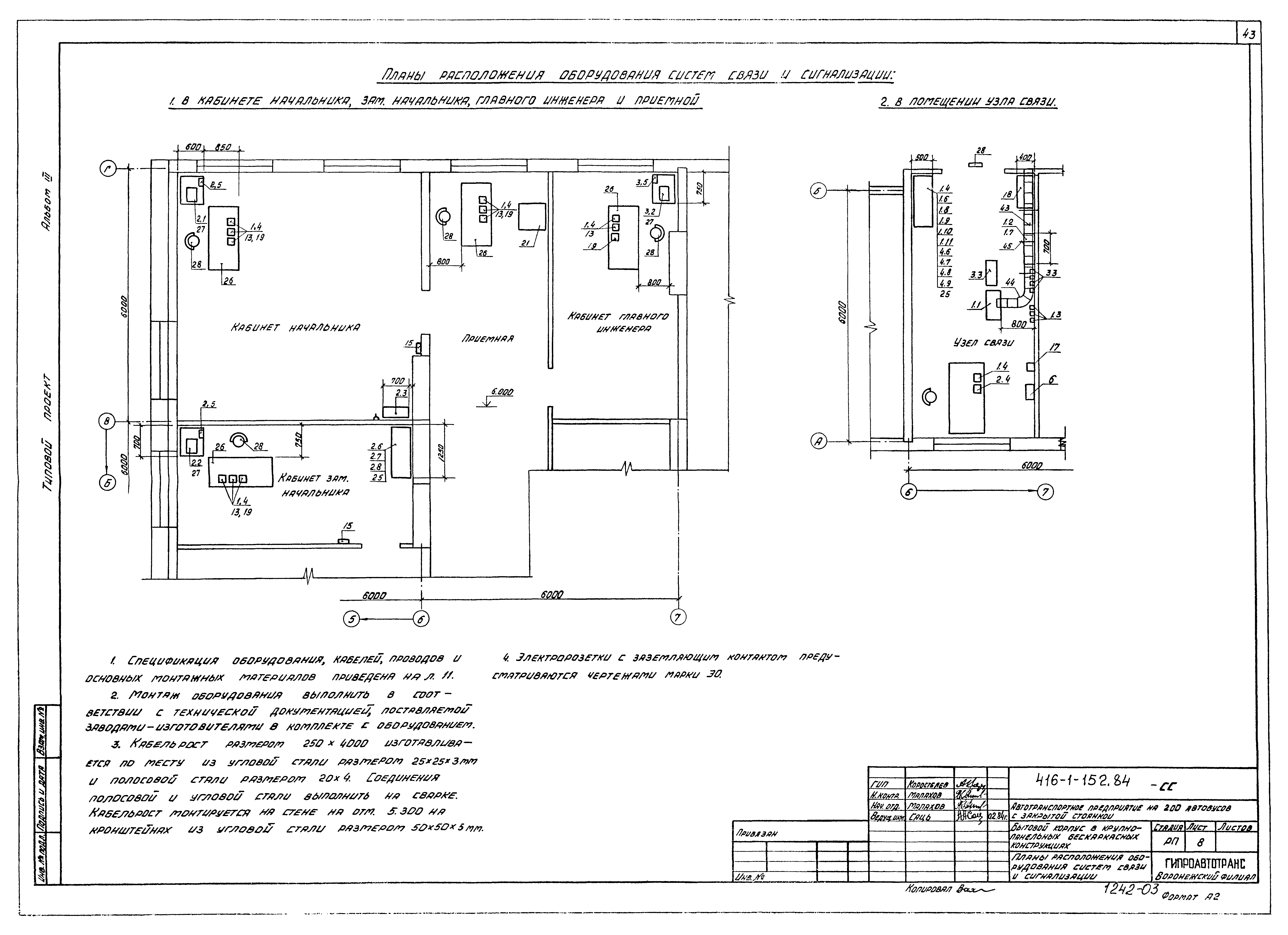
Альбом III. Электрооборудование, устройство связи и сигнализации, автоматизация производстваОбозначение: | Типовой проект 416-1-152.84 | Обозначение англ: | 416-1-152.84 | Статус: | действует | Название рус.: | Альбом III. Электрооборудование, устройство связи и сигнализации, автоматизация производства | Дата добавления в базу: | 01.10.2014 | Дата актуализации: | 05.05.2017 | Оглавление: | Содержание альбома Силовое электрооборудование Общие данные Схема электрическая принципиальная 380/220 В шкафа 1ШР Схема электрическая принципиальная 380/220 В шкафа 2ШР Схемы электрические принципиальные 380/220 В шкафа 3ШР и управления электродвигателем вентилятора поз. В1 (В2 - В5) Схема электрическая управления электроприводом ворот поз. 1 План подвала План на отм. 0.000. План трубной разводки в осях В - Г; 10 - 11 План на отм. 3.000 и 6.000 Ведомость объемов электромонтажных работ. Ведомость изделий мастерских электромонтажных заготовок (МЭЗ) Электроосвещение Общие данные План подвала План КТП. Фрагменты планов на отм. 0.000 План на отм. 0.000 План на отм. 3.000 План на отм. 6.000. Комплектные узлы Автоматизация санитарно-технических систем Общие данные Приточная система П2. Схема функциональная Приточная система П2. Схема электрическая принципиальная управления Приточная система П2. Схема электрическая принципиальная регулирования Приточная система П2. Схема внешних проводок Приточная система П3 (П4). Схема функциональная Приточная система П3 (П4). Схема электрическая принципиальная управления Приточная система П3 (П4). Схема электрическая принципиальная регулирования Приточная система П3 (П4). Схема внешних проводок Задвижка. Схемы функциональная и электрическая принципиальная управления Задвижка. Схема внешних проводок Тепловой пункт. Схема теплового контроля Тепловой пункт. Схема электрическая принципиальная питания Тепловой пункт. План расположения Тепловой пункт. Схема внешних проводок План расположения Опросный лист № 1 для заказа дифманометра жидкости с сужающим устройством поз. 23 Связь и сигнализация Общие данные Планы подвала и КПП План на отм. 0.000 План на отм. 3.000 План на отм. 6.000 Планы расположения оборудования систем связи и сигнализации Схемы сетей: комплексной ГАТС, ГРТС, ПРГС Схемы и таблицы кабельных соединений систем связи и сигнализации Спецификация средств связи и сигнализации Ведомость объемов электромонтажных работ | Разработан: | ЦНИИпромзданий Гипроавтотранс
| Утверждён: | 28.03.1984 Минавтотранс РСФСР (Russian Federation Minavtotrans 16)
| Расположен в: |
|
                                                
|