Скачать Альбом ДС27-4-2-90 Часть I. 2-я редакцияДата актуализации: 10.08.2017 Альбом ДС27-4-2-90
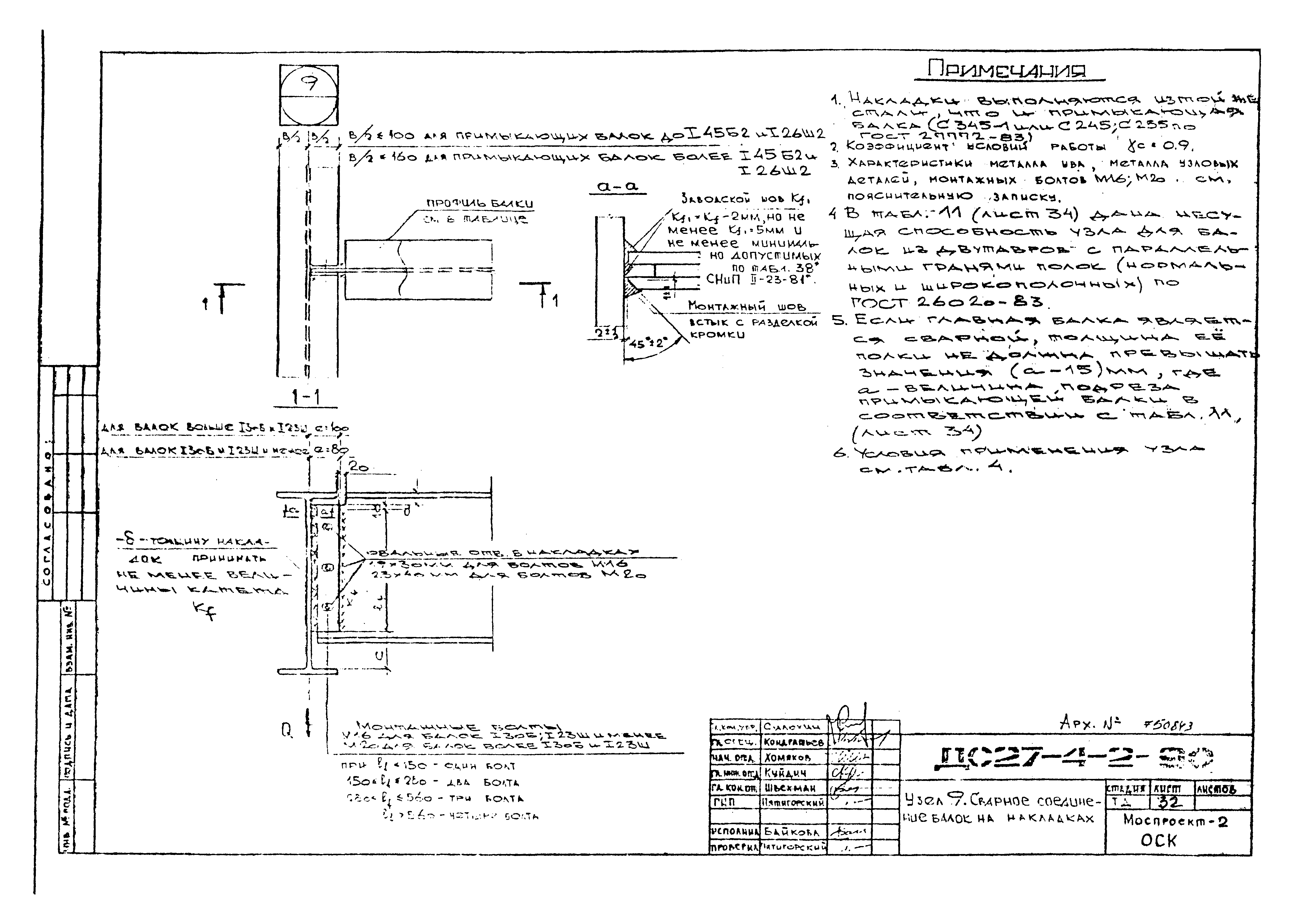
Часть I. 2-я редакцияОбозначение: | Альбом ДС27-4-2-90 | Обозначение англ: | ДС27-4-2-90 | Статус: | cправочные материалы, мп, тпр | Название рус.: | Часть I. 2-я редакция | Дата добавления в базу: | 01.10.2014 | Дата актуализации: | 05.05.2017 | Дата введения: | 01.01.1990 | Оглавление: | Содержание Пояснительная записка Узлы 1, 2. Соединение балок на болтах Узлы 3, 4. Соединение балок на болтах Узлы 5, 6. Соединение балок на болтах Узлы 7, 8. Соединение балок на болтах Узел 9. Сварное соединение балок на накладках Узел 10. Сварное соединение балок на накладках Узел 11. Сварное соединение балок на накладках Узел 12. Сварное соединение балок на накладках Узел 13. Сварное соединение балок на накладках Узел 14. Сварное соединение балок на накладках Узлы 15, 16. Соединение балок на опорном уголке Узлы 17, 18. Соединение балок на опорном уголке Узлы 19, 20. Соединение балок на опорном уголке Узел 21. Опирание балок на кирпичную стену Узел 22. Опирание балок на кирпичную стену через железобетонную плиту Узел 23. Опирание балок на кирпичную стену через железобетонную плиту Узел 24. Крепление балок к двутавровой колонне Узел 25. Крепление балок к двутавровой колонне Узел 26. Крепление балок к двутавровой колонне Узел 27. Крепление балок к двутавровой колонне Узел 28. Крепление балок к двутавровой колонне Узел 29. Крепление балок к двутавровой колонне Узел 30. Крепление балок к двутавровой колонне Узел 31. Опирание железобетонных ригелей на двутавровую колонну Узел 32. Опирание железобетонных ригелей на двутавровую колонну Узел 33. Опирание железобетонных ригелей на двутавровую колонну Узел 34. Опирание железобетонных ригелей на двутавровую колонну Узел 35. Опирание железобетонных ригелей на двутавровую колонну Узел 36. Опирание железобетонных ригелей на двутавровую колонну Узел 37. Опирание железобетонных ригелей на двутавровую колонну Узел 38. Опирание железобетонных ригелей на двутавровую колонну Узел 39. Опирание железобетонных ригелей на двутавровую колонну Узел 40. Крепление балок к закладным деталям железобетонной колонны КРП и КФП Узел 41. Опирание двутавровой колонны на фундамент Узел 42. Опирание двутавровой колонны на фундамент Узел 43. Опирание двутавровой колонны на фундамент | Разработан: | Моспроект-2
| Утверждён: | 01.01.1990 Главмосархитектура
| Расположен в: |
|
                                                                                     
|