Скачать Типовой проект 86-014/1.2 ОВ.1-1. Отопление и вентиляция на расчетные температуры минус 25, минус 30, минус 35, минус 40 градусов Цельсия. Фасад 1Дата актуализации: 10.08.2017 Типовой проект 86-014/1.2
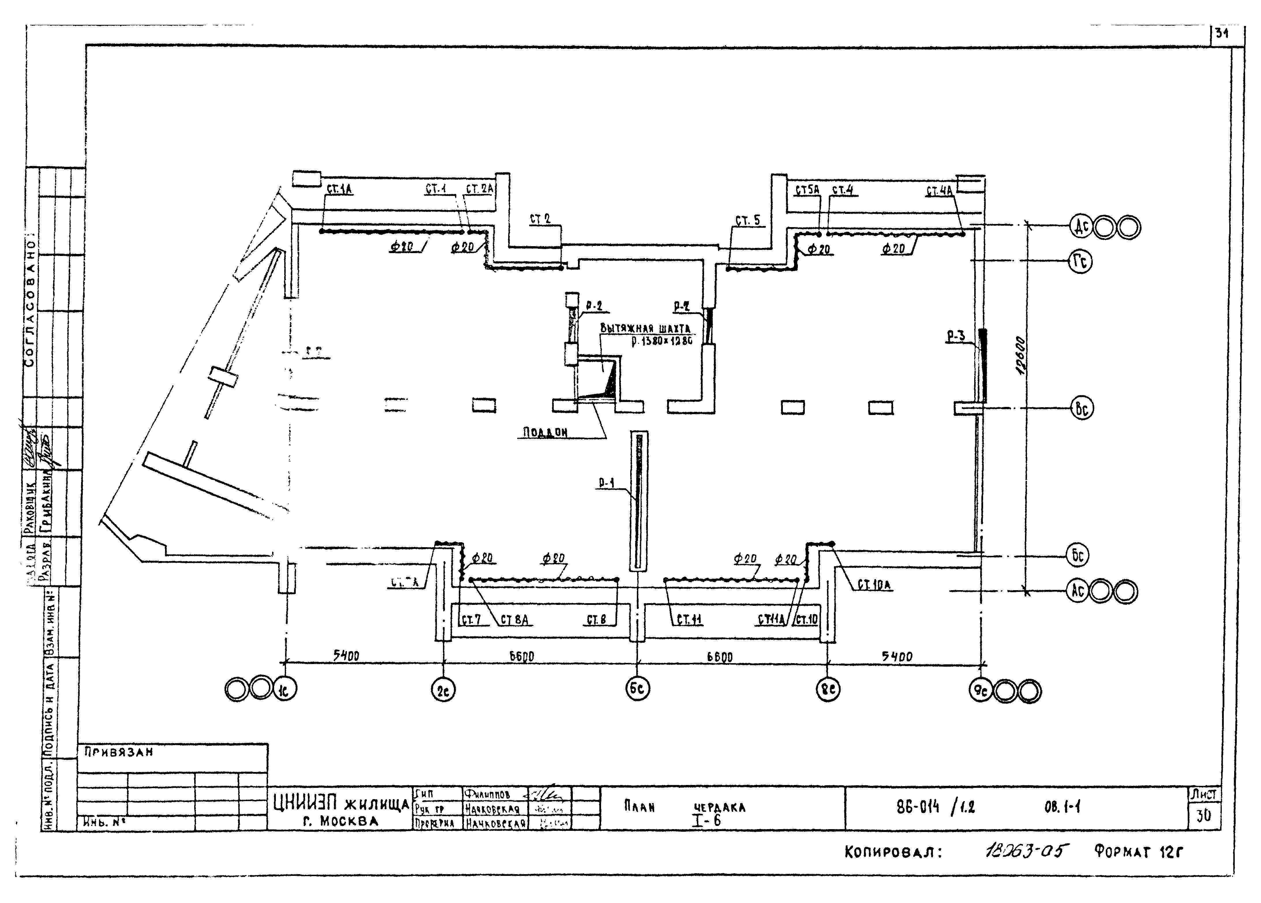
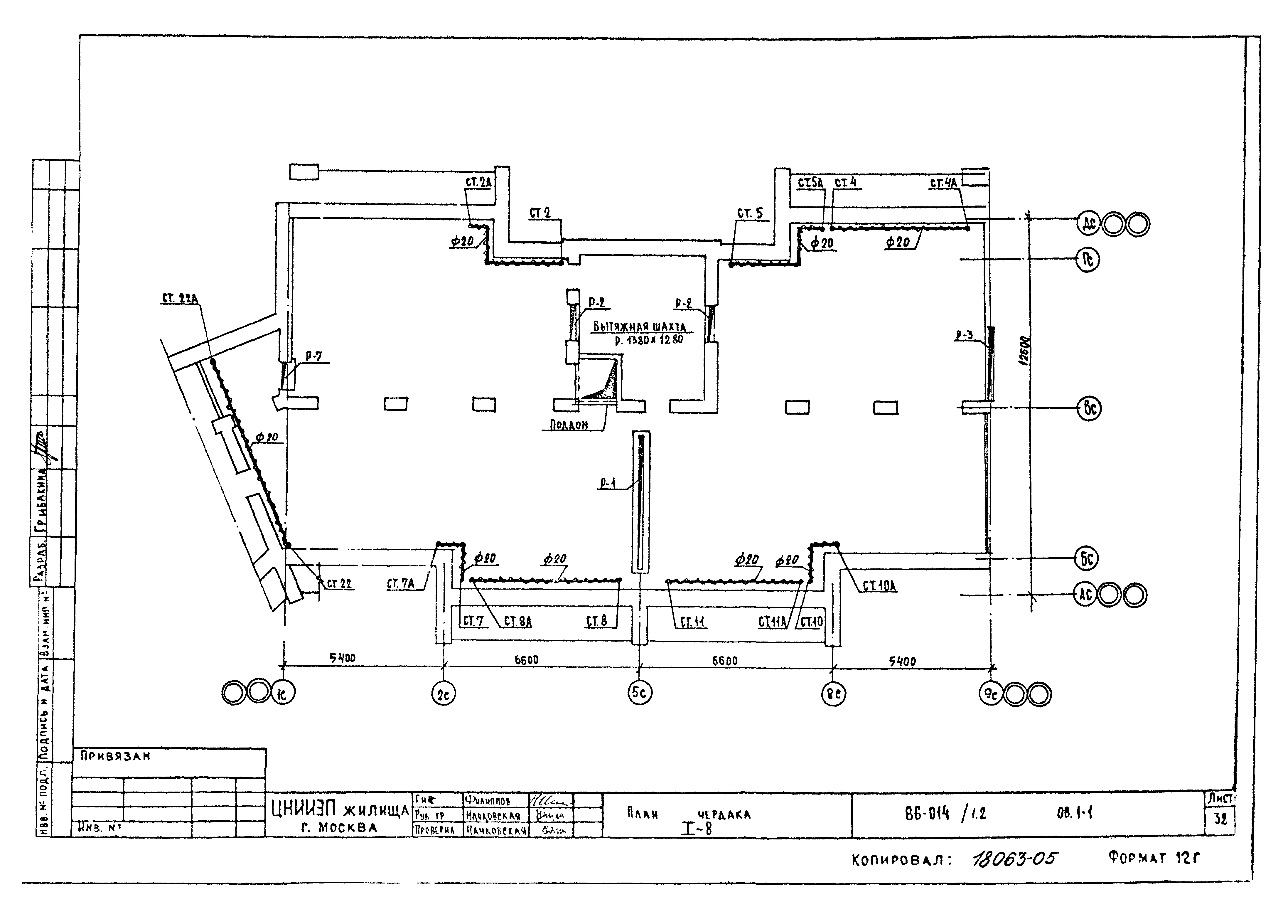
ОВ.1-1. Отопление и вентиляция на расчетные температуры минус 25, минус 30, минус 35, минус 40 градусов Цельсия. Фасад 1Обозначение: | Типовой проект 86-014/1.2 | Обозначение англ: | 86-014/1.2 | Статус: | действует | Название рус.: | ОВ.1-1. Отопление и вентиляция на расчетные температуры минус 25, минус 30, минус 35, минус 40 градусов Цельсия. Фасад 1 | Дата добавления в базу: | 01.10.2014 | Дата актуализации: | 05.05.2017 | Оглавление: | Общие данные План подполья. Схема магистралей системы отопления I, II-1 План подполья. Схема магистралей системы отопления I-4 План подполья. Схема магистралей системы отопления I-5 План подполья. Схема магистралей системы отопления I-6 План подполья. Схема магистралей системы отопления I-7 План подполья. Схема магистралей системы отопления I-8 План подполья. Схема магистралей системы отопления I-9 План 1-го этажа I-1 План 1-го этажа II-1 План 1-го этажа I-4 План 1-го этажа I-5 План 1-го этажа I-6 План 1-го этажа I-7 План 1-го этажа I-8 План 1-го этажа I-9 План 2 - 9 этажей I-1 План 2 - 9 этажей II-1 План 2 - 9 этажей I-4 План 2 - 9 этажей I-5 План 2 - 9 этажей I-6 План 2 - 9 этажей I-7 План 2 - 9 этажей I-8 План 2 - 9 этажей I-9 План чердака I, II-1 План чердака I-4 План чердака I-5 План чердака I-6 План чердака I-7 План чердака I-8 План чердака I-9 Схемы стояков 1А.1; 4.4А; 2А.2; 5А.5; 6А.6; 9А.9; 7.7А; 10.10А; 8.8А; 11.11А (радиаторы М-140-АО) Схемы стояков 12.12А; 13.13А; 15.15А; 14А.14; 16А.16; 17А.17; 18А.18; 24А.24; 19А.19; 25А.25; 20.20А; 21.21А; 22.22А; 23.23А (радиаторы М-140-АО) Схемы стояков 1А.1; 4.4А; 2А.2; 5А.5; 6А.6; 9А.9; 7.7А; 10.10А; 8.8А; 11.11А (конвекторы КН20) Схемы стояков 12.12А; 13.13А; 15.15А; 14А.14; 16А.16; 17А.17; 18А.18; 24А.24; 19А.19; 25А.25; 20.20А; 21.21А; 22.22А; 23.23А (конвекторы КН20) Звено прямого участка шовного асбестоцементного воздуховода | Разработан: | ЦНИИЭП жилища
| Утверждён: | 01.01.1981 Госгражданстрой (Gosgrazhdanstroy )
| Расположен в: |
|
                                     
|