Информационная система
«Ёшкин Кот»

Скачать базу одним архивом
Скачать обновления
История создания базы
Карта сайта

Скачать Типовой проект 86-04.01.86 АС.1-2. Архитектурно-строительные решения выше отметки 0.000. Наружные стены из облегченной кладки

Дата актуализации: 10.08.2017

Типовой проект 86-04.01.86

АС.1-2. Архитектурно-строительные решения выше отметки 0.000. Наружные стены из облегченной кладки

Обозначение: Типовой проект 86-04.01.86
Обозначение англ: 86-04.01.86
Статус:не определен законодательством
Название рус.:АС.1-2. Архитектурно-строительные решения выше отметки 0.000. Наружные стены из облегченной кладки
Дата добавления в базу:01.10.2014
Дата актуализации:05.05.2017
Дата введения:01.04.1987
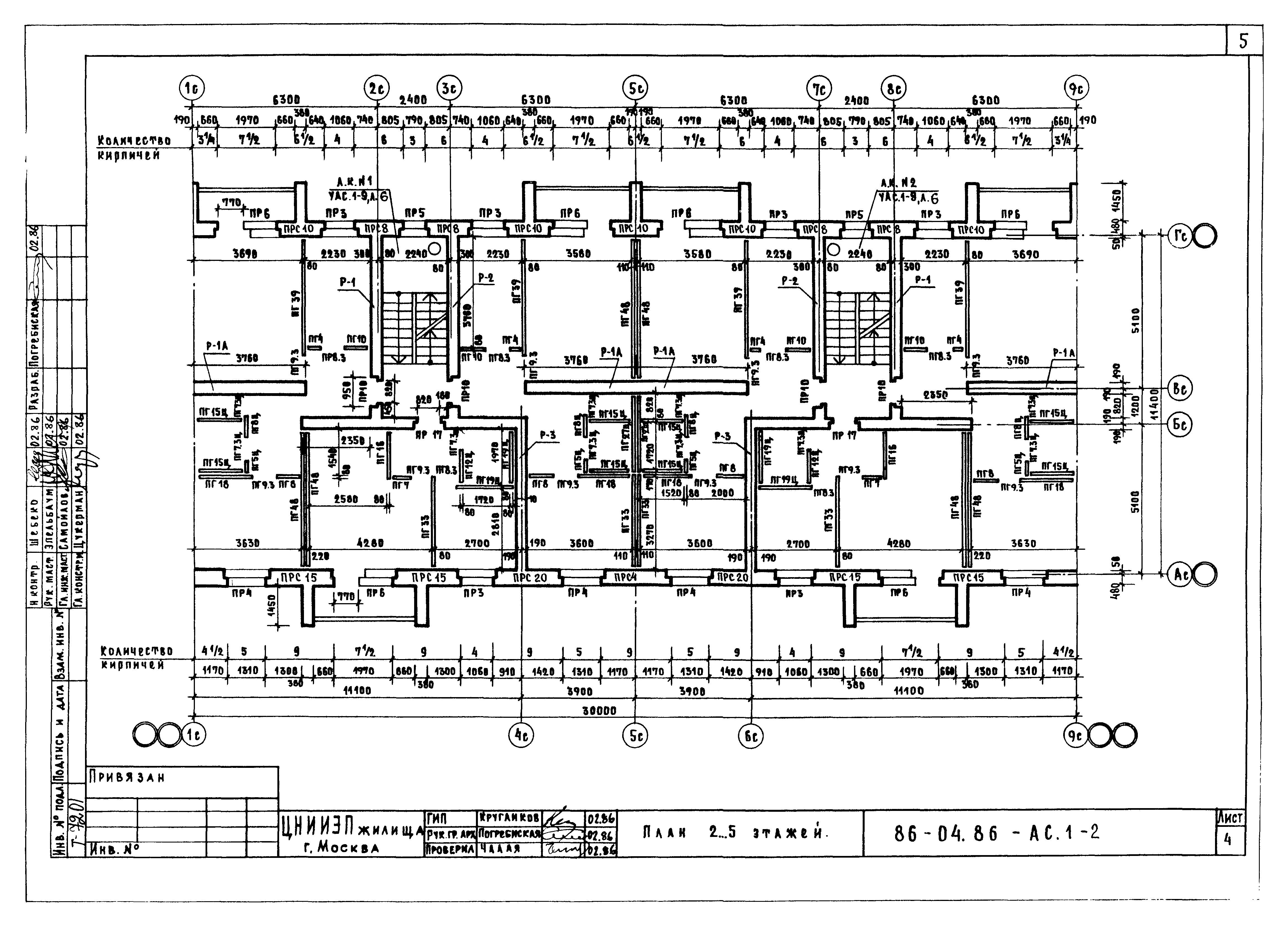
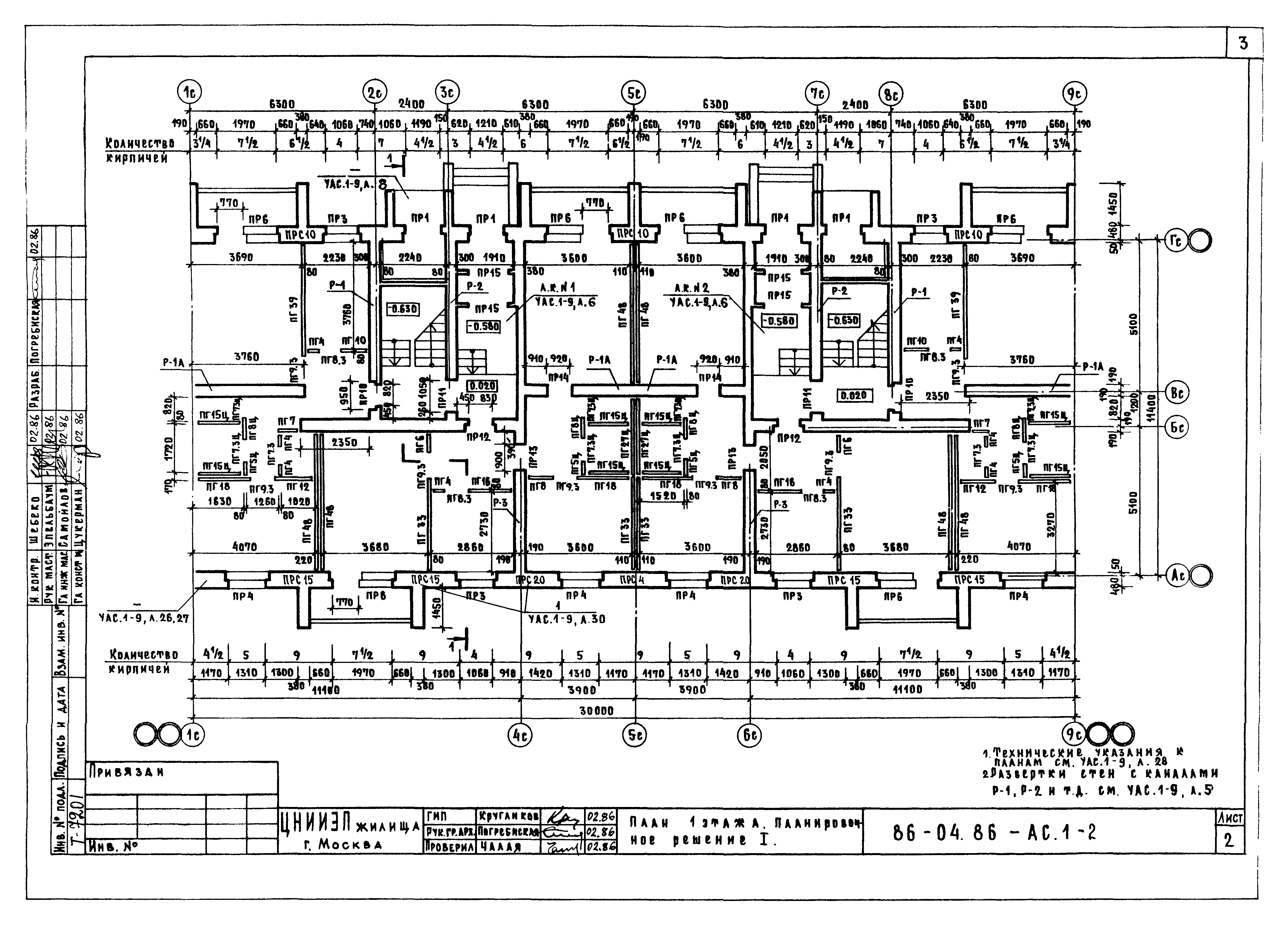
Оглавление:Общие данные
План 1 этажа. Планировочное решение I
Фрагмент плана 1 этажа. Планировочное решение II
План 2…5 этажей
План чердака
Схема расположения панелей перекрытия и покрытия. План крыши
План отделочных работ 1 этажа. Планировочное решение I
Фрагмент плана отделочных работ 1 этажа. Планировочное решение II. Ведомость полов
План отделочных работ 2…5 этажей
Схемы фасадов
План отверстий для инженерных сетей 1 этажа. Планировочное решение I
Фрагмент плана отверстий для инженерных сетей 1 этажа. Планировочное решение II
План отверстий для инженерных сетей 2…5 этажей
Разработан: ЦНИИЭП жилища
Утверждён:01.02.1986 Госгражданстрой (Gosgrazhdanstroy )
Расположен в:Техническая документация Строительство Справочные документы Типовые строительные конструкции, изделия и узлы Общероссийский строительный каталог Жилые здания для строительства в городах и поселках городского типа Обычные условия Жилые дома со стенами из местных материалов Серия 86
Типовой проект 86-04.01.86Типовой проект 86-04.01.86Типовой проект 86-04.01.86Типовой проект 86-04.01.86Типовой проект 86-04.01.86Типовой проект 86-04.01.86Типовой проект 86-04.01.86Типовой проект 86-04.01.86Типовой проект 86-04.01.86Типовой проект 86-04.01.86Типовой проект 86-04.01.86Типовой проект 86-04.01.86Типовой проект 86-04.01.86Типовой проект 86-04.01.86Типовой проект 86-04.01.86

© 2013 Ёшкин Кот :-) Карта сайта