Информационная система
«Ёшкин Кот»

Скачать базу одним архивом
Скачать обновления
История создания базы
Карта сайта

Скачать Типовой проект 86-010/1 Часть 0. Раздел 0-1/80. Общая часть. Общая характеристика проекта

Дата актуализации: 10.08.2017

Типовой проект 86-010/1

Часть 0. Раздел 0-1/80. Общая часть. Общая характеристика проекта

Обозначение: Типовой проект 86-010/1
Обозначение англ: 86-010/1
Статус:действует
Название рус.:Часть 0. Раздел 0-1/80. Общая часть. Общая характеристика проекта
Дата добавления в базу:01.10.2014
Дата актуализации:05.05.2017
Оглавление:Заглавный лист
Номенклатура 5-этажных блок-секций
Схемы блокировок блок-секций
Состав проекта
Варианты проектных решений
Блок-секции 86-04/1 и 86-021/1. Секция 1Б-2Б-2Б (левая) типовой этаж. Первый этаж. Планировочное решение основное
Блок-секции 86-04/1 и 86-022/1. Секция 1Б-2Б-2Б (правая). Типовой и первый этажи
Блок-секции 86-04/1. Секция 1Б-2Б-2Б (левая). Первый этаж. Планировочное решение со сквозным проходом. Разрез 1-1
Блок-секции 86-07/1. Секция 3А-3А. Типовой этаж. Фрагмент секции 1 этажа. Планировочное решение основное
Блок-секции 86-08/1. Секция 3Б-4Б. Типовой этаж. Фрагмент секции 1 этажа. Планировочное решение основное
Блок-секции 86-07/1 и 86-08/1. Первый этаж. Планировочное решение со сквозным проходом
Блок-секции 86-09/1. Секция 1А-2Б-3А (левая). Типовой этаж. Фрагмент секции 1 этажа
Блок-секции 86-09/1. Секция 3Б-5А. Типовой этаж. Фрагмент секции 1 этажа
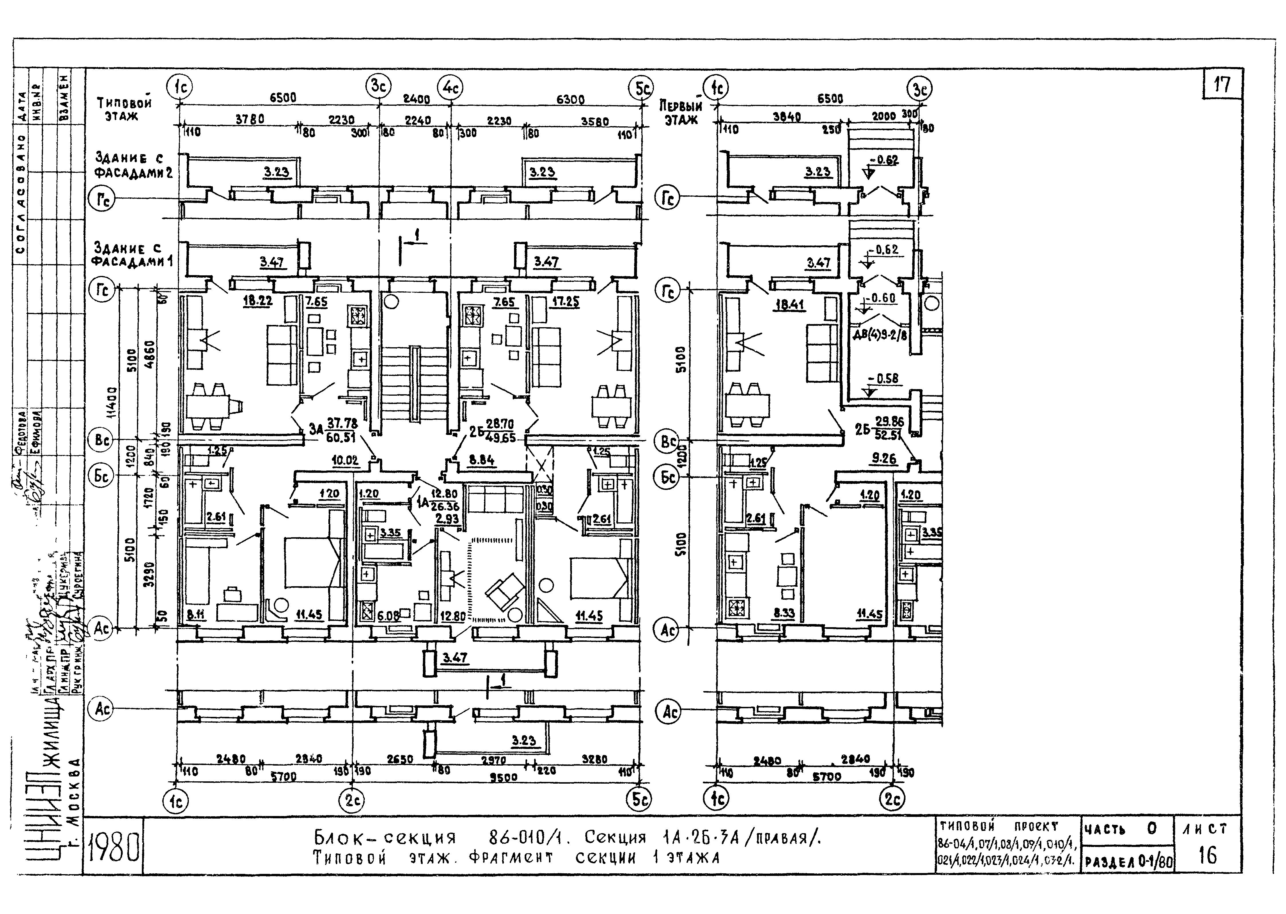
Блок-секции 86-010/1. Секция 1А-2Б-3А (правая). Типовой этаж. Фрагмент секции 1 этажа
Блок-секции 86-010/1. Секция 3Б-5А. Типовой этаж. Фрагмент секции 1 этажа
Блок-секции 86-021/1. Секция 1Б-3А-3А-5Б (левая). Типовой этаж. Фрагмент секции 1 этажа
Блок-секции 86-022/1. Секция 1Б-3А-3А-5Б (правая). Типовой этаж. Фрагмент секции 1 этажа
Блок-секции 86-023/1. Секция 3А-4Б. Типовой этаж
Блок-секции 86-023/1. Фрагмент секции 1 этажа
Блок-секции 86-024/1. Секция 3А-4Б. Типовой этаж
Блок-секции 86-024/1. Фрагмент секции 1 этажа
Блок-секции 86-032/1. Секция 1Б-2А-3Б-3Б. Типовой этаж
Блок-секции 86-032/1. Секция 1Б-2А-3Б-3Б. Первый этаж. Разрез 1-1
Таблица площадей
Таблица площадей и объемов
Блок-секции 86-07/1, 86-09/1. Фасады 1
Блок-секции 86-07/1, 86-010/1. Фасады 1
Блок-секции 86-08/1, 86-021/1. Фасады 1
Блок-секции 86-07/1, 86-022/1. Фасады 1
Блок-секции 86-04/1, 86-023/1. Фасады 1
Блок-секции 86-07/1, 86-024/1. Фасады 1
Блок-секции 86-04/1, 86-023/1, 86-032/1. Фасады 1
Блок-секции 86-04/1, 86-09/1, 86-010/1, 86-021/1, 86-022/1, 86-024/1. Фрагмент фасада по оси Ас. Фасад 1
Блок-секции 86-07/1, 86-021/1, 86-022/1, 86-023/1. Фрагмент фасада по оси Ас. Фасад 1
Блок-секция 86-032/1. Фрагмент фасада по оси Ас
Блок-секции 86-04/1, 86-08/1, 86-09/1, 86-010/1. Фрагмент фасада по оси Гс. Фасад 1
Блок-секции 86-07/1, 86-023/1. Фрагмент фасада по оси Гс. Фасады 1 и 2
Блок-секция 86-024/1. Фрагмент фасада по оси Гс. Фасад 1
Блок-секции 86-04/1, 86-08/1, 86-09/1, 86-010/1. Фрагмент фасада по оси Гс. Фасад 1. Вариант кирпичного ограждения
Блок-секции 86-07/1, 86-09/1. Фасады 2
Блок-секции 86-07/1, 86-010/1. Фасады 2
Блок-секции 86-08/1, 86-021/1. Фасады 2
Блок-секции 86-07/1, 86-022/1. Фасады 2
Блок-секции 86-04/1, 86-023/1. Фасады 2
Блок-секции 86-04/1, 86-07/1, 86-024/1. Фасады 2
Блок-секции 86-04/1, 86-09/1, 86-022/1, 86-024/1. Фрагмент фасада по оси Ас. Фасад 2
Блок-секции 86-07/1, 86-021/1, 86-022/1, 86-023/1. Фрагмент фасада по оси Ас. Фасад 2
Блок-секция 86-024/1. Фрагмент фасада по оси Гс. Фасад 2
Блок-секции 86-04/1, 86-08/1, 86-09/1, 86-010/1. Фрагмент фасада по оси Гс. Фасад 2
Блок-секции 86-04/1, 86-08/1, 86-09/1, 86-010/1. Фрагмент фасада по оси Гс. Фасад 2. Вариант кирпичного ограждения
Разработан: ЦНИИЭП жилища
Утверждён:27.11.1969 Госгражданстрой (Gosgrazhdanstroy 250)
Расположен в:Техническая документация Строительство Справочные документы Типовые строительные конструкции, изделия и узлы Общероссийский строительный каталог Жилые здания для строительства в городах и поселках городского типа Обычные условия Жилые дома со стенами из местных материалов Серия 86
Типовой проект 86-010/1Типовой проект 86-010/1Типовой проект 86-010/1Типовой проект 86-010/1Типовой проект 86-010/1Типовой проект 86-010/1Типовой проект 86-010/1Типовой проект 86-010/1Типовой проект 86-010/1Типовой проект 86-010/1Типовой проект 86-010/1Типовой проект 86-010/1Типовой проект 86-010/1Типовой проект 86-010/1Типовой проект 86-010/1Типовой проект 86-010/1Типовой проект 86-010/1Типовой проект 86-010/1Типовой проект 86-010/1Типовой проект 86-010/1Типовой проект 86-010/1Типовой проект 86-010/1Типовой проект 86-010/1Типовой проект 86-010/1Типовой проект 86-010/1Типовой проект 86-010/1Типовой проект 86-010/1Типовой проект 86-010/1Типовой проект 86-010/1Типовой проект 86-010/1Типовой проект 86-010/1Типовой проект 86-010/1Типовой проект 86-010/1Типовой проект 86-010/1Типовой проект 86-010/1Типовой проект 86-010/1Типовой проект 86-010/1Типовой проект 86-010/1Типовой проект 86-010/1Типовой проект 86-010/1Типовой проект 86-010/1Типовой проект 86-010/1Типовой проект 86-010/1Типовой проект 86-010/1Типовой проект 86-010/1Типовой проект 86-010/1Типовой проект 86-010/1Типовой проект 86-010/1Типовой проект 86-010/1Типовой проект 86-010/1Типовой проект 86-010/1Типовой проект 86-010/1Типовой проект 86-010/1Типовой проект 86-010/1

© 2013 Ёшкин Кот :-) Карта сайта