Скачать Серия 1.031 КЛ-2 Выпуск 2. Часть 3. Изделия металлические закладные для железобетонных изделий, выпускаемых предприятиями ППОО ДСК-2Дата актуализации: 10.08.2017 Серия 1.031 КЛ-2
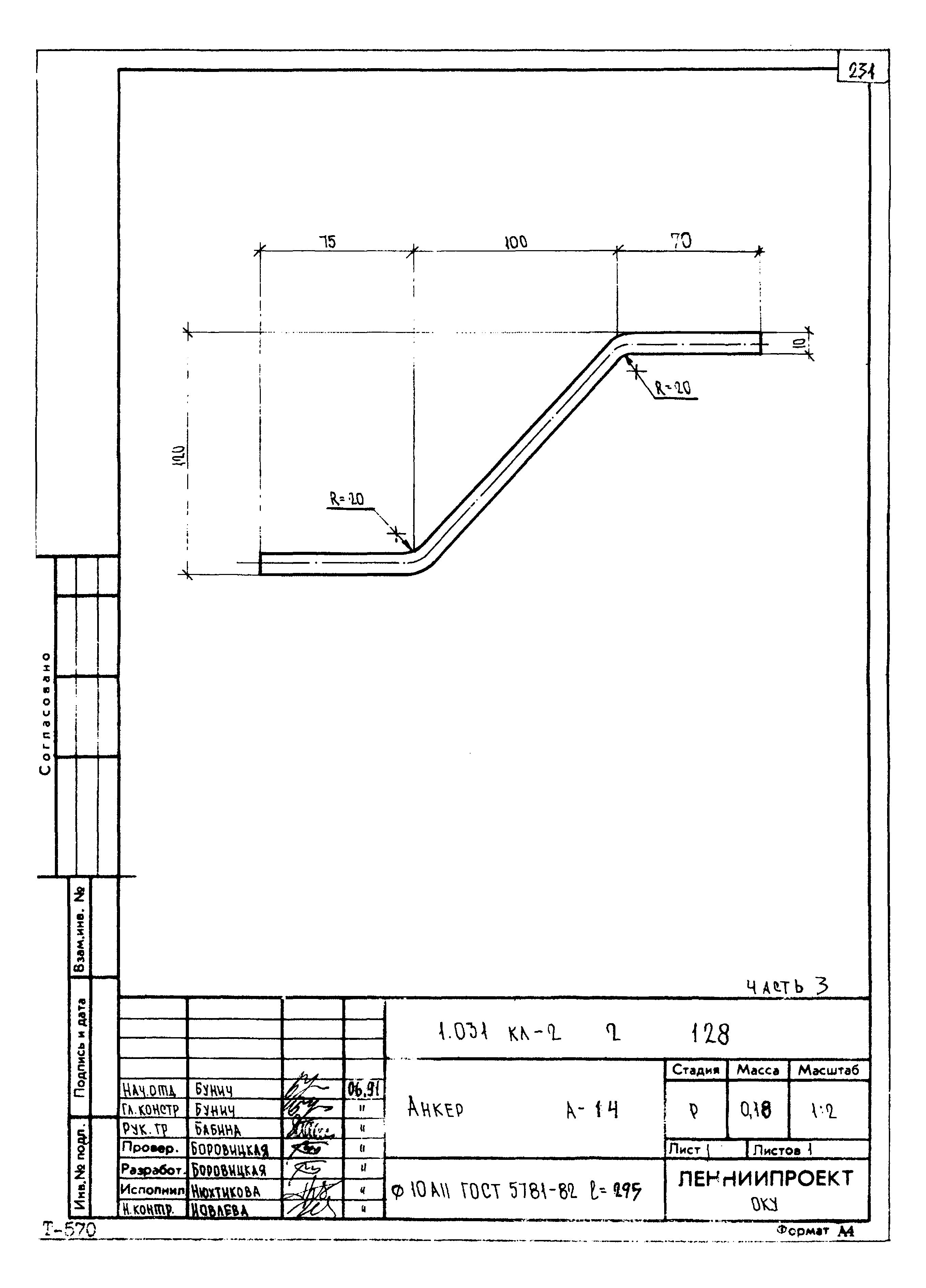
Выпуск 2. Часть 3. Изделия металлические закладные для железобетонных изделий, выпускаемых предприятиями ППОО ДСК-2Обозначение: | Серия 1.031 КЛ-2 | Обозначение англ: | Series 1.031 КЛ-2 | Статус: | действует | Название рус.: | Выпуск 2. Часть 3. Изделия металлические закладные для железобетонных изделий, выпускаемых предприятиями ППОО ДСК-2 | Дата добавления в базу: | 01.10.2014 | Дата актуализации: | 05.05.2017 | Оглавление: | 1.031 КЛ-2 2 С Содержание 1.031 КЛ-2 2 115 Анкер А-1 1.031 КЛ-2 2 116 Анкер А-2 1.031 КЛ-2 2 117 Анкер А-3 1.031 КЛ-2 2 118 Анкер А-4 1.031 КЛ-2 2 119 Анкер А-5 1.031 КЛ-2 2 120 Анкер А-6 1.031 КЛ-2 2 121 Анкер А-7 1.031 КЛ-2 2 122 Анкер А-8 1.031 КЛ-2 2 123 Анкер А-9 1.031 КЛ-2 2 124 Анкер А-10 1.031 КЛ-2 2 125 Анкер А-11 1.031 КЛ-2 2 126 Анкер А-12 1.031 КЛ-2 2 127 Анкер А-13 1.031 КЛ-2 2 128 Анкер А-14 1.031 КЛ-2 2 129 Анкер А-15 1.031 КЛ-2 2 130 Анкер А-16 1.031 КЛ-2 2 131 Анкер А-17 1.031 КЛ-2 2 132 Анкер А-18 1.031 КЛ-2 2 133 Анкер А-19 1.031 КЛ-2 2 134 Анкер А-20 1.031 КЛ-2 2 135 Анкер А-21 1.031 КЛ-2 2 136 Анкер А-22 1.031 КЛ-2 2 137 Анкер А-23 1.031 КЛ-2 2 138 Анкер А-24 1.031 КЛ-2 2 139 Анкер А-25 1.031 КЛ-2 2 140 Уголок У-1 1.031 КЛ-2 2 141 Уголок У-2 1.031 КЛ-2 2 142 Уголок У-3 1.031 КЛ-2 2 143 Уголок У-4 1.031 КЛ-2 2 144 Уголок У-5 1.031 КЛ-2 2 145 Фиксатор Ф-1 1.031 КЛ-2 2 146 Фиксатор Ф-2 1.031 КЛ-2 2 147 Фиксатор Ф-3 1.031 КЛ-2 2 148 Изделие закладное М-13 1.031 КЛ-2 2 149 Втулка 1.031 КЛ-2 2 ВРС Ведомость расхода стали на элемент, кг 1.031 КЛ-2 2 150 Изделие закладное ДС7-3-1 1.031 КЛ-2 2 150СБ Изделие закладное ДС7-3-1. Сборочный чертеж | Разработан: | Ленниипроект
| Утверждён: | 30.09.1991 Ленниипроект (62-у)
| Расположен в: |
|
                                          
|