Скачать Серия 1.031 КЛ-2 Выпуск 2. Часть 2. Изделия металлические закладные для железобетонных изделий, выпускаемых предприятиями ППОО ДСК-2Дата актуализации: 10.08.2017 Серия 1.031 КЛ-2
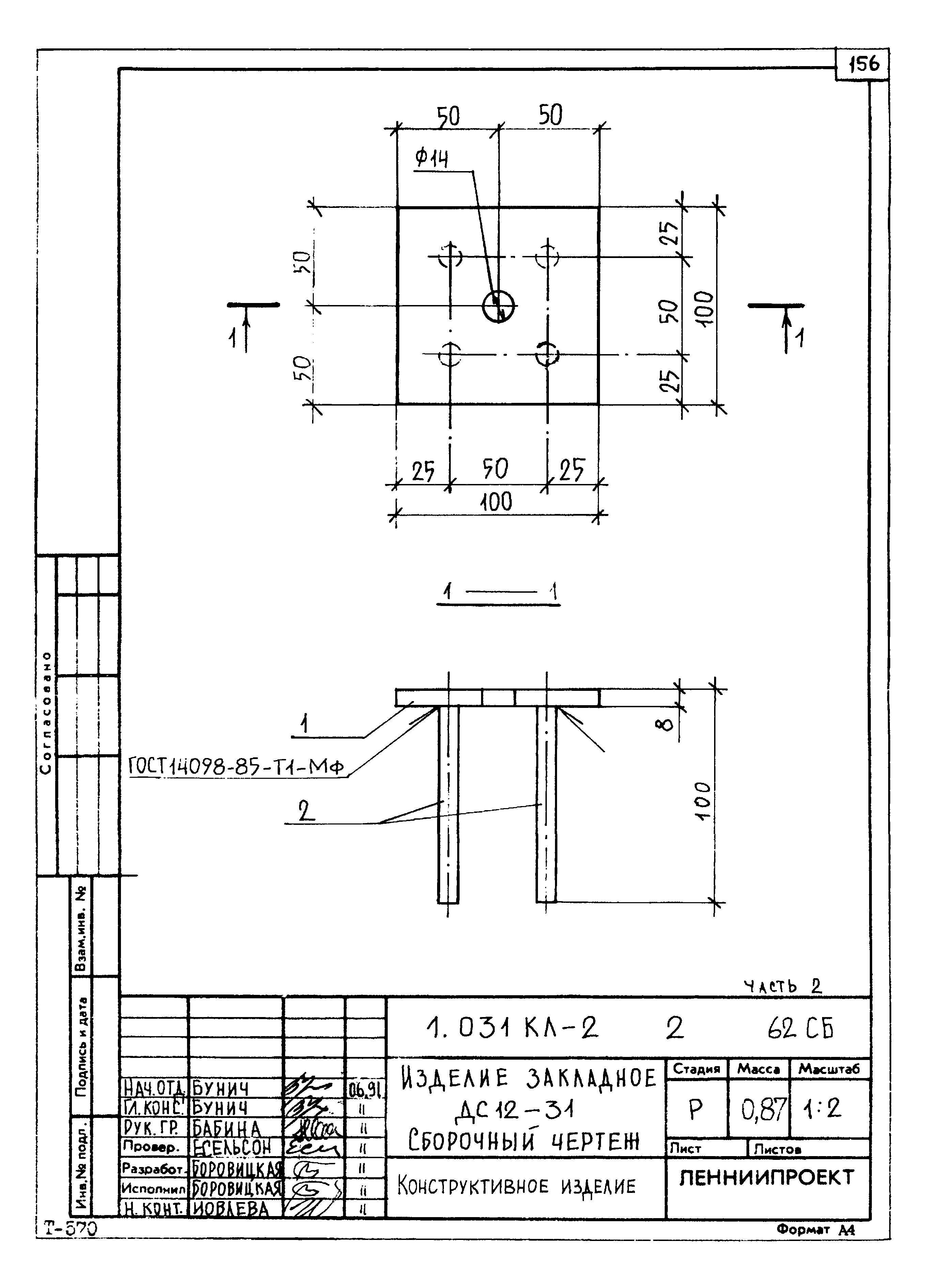
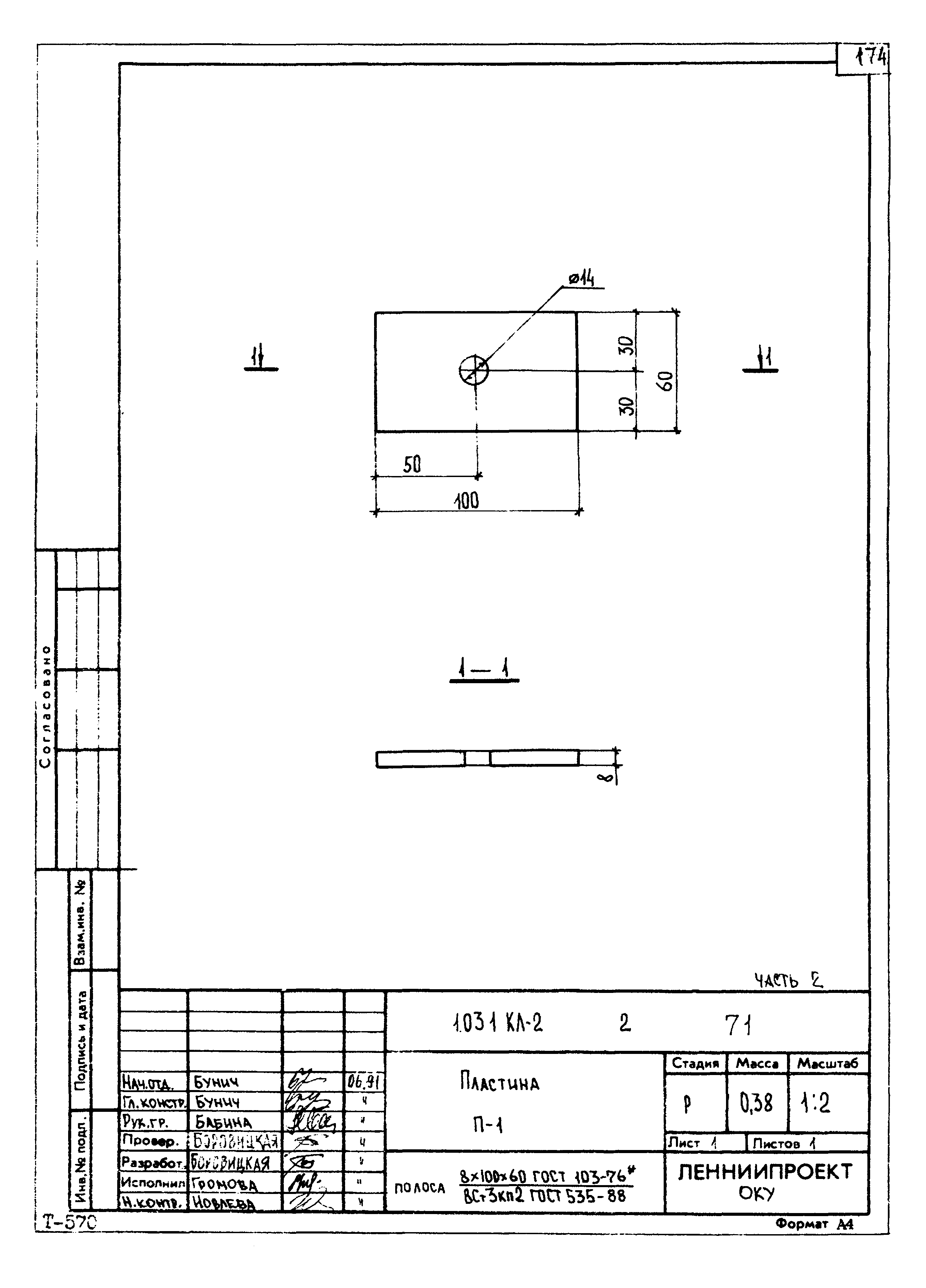
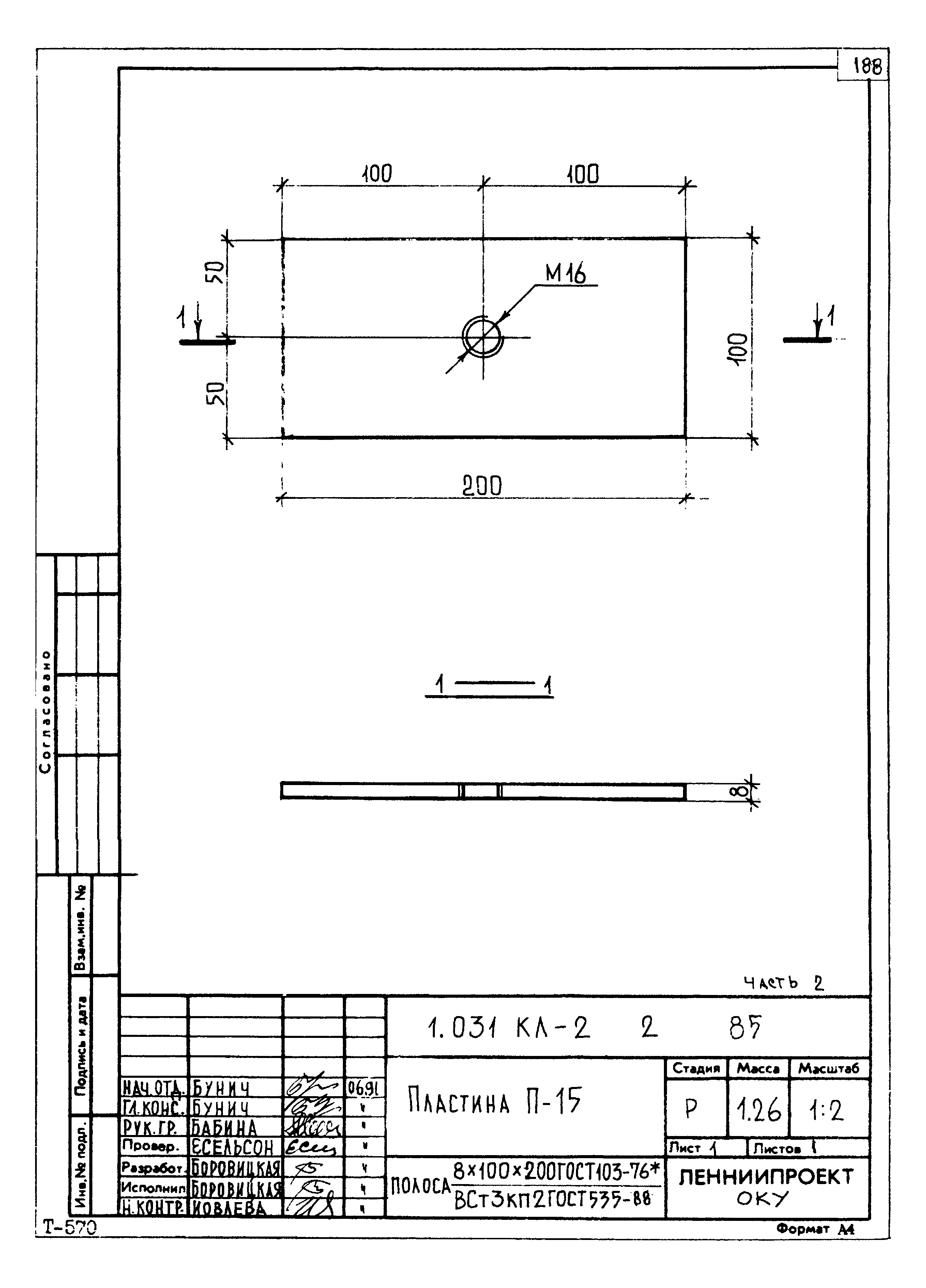
Выпуск 2. Часть 2. Изделия металлические закладные для железобетонных изделий, выпускаемых предприятиями ППОО ДСК-2Обозначение: | Серия 1.031 КЛ-2 | Обозначение англ: | Series 1.031 КЛ-2 | Статус: | действует | Название рус.: | Выпуск 2. Часть 2. Изделия металлические закладные для железобетонных изделий, выпускаемых предприятиями ППОО ДСК-2 | Дата добавления в базу: | 01.10.2014 | Дата актуализации: | 05.05.2017 | Оглавление: | 1.031 КЛ-2 2 С Содержание 1.031 КЛ-2 2 40 Изделие закладное ДС12-4 1.031 КЛ-2 2 40СБ Изделие закладное ДС12-4. Сборочный чертеж 1.031 КЛ-2 2 41 Изделие закладное ДС12-5А 1.031 КЛ-2 2 41СБ Изделие закладное ДС12-5А. Сборочный чертеж 1.031 КЛ-2 2 42 Изделие закладное ДС12-6 1.031 КЛ-2 2 42СБ Изделие закладное ДС12-6. Сборочный чертеж 1.031 КЛ-2 2 43 Изделие закладное ДС12-7 1.031 КЛ-2 2 43СБ Изделие закладное ДС12-7. Сборочный чертеж 1.031 КЛ-2 2 44 Изделие закладное ДС12-8 1.031 КЛ-2 2 44СБ Изделие закладное ДС12-8. Сборочный чертеж 1.031 КЛ-2 2 45 Изделие закладное ДС12-9 1.031 КЛ-2 2 45СБ Изделие закладное ДС12-9. Сборочный чертеж 1.031 КЛ-2 2 46 Изделие закладное ДС12-11 1.031 КЛ-2 2 46СБ Изделие закладное ДС12-11. Сборочный чертеж 1.031 КЛ-2 2 47 Изделие закладное ДС12-13 1.031 КЛ-2 2 47СБ Изделие закладное ДС12-13. Сборочный чертеж 1.031 КЛ-2 2 48 Изделие закладное ДС12-14 1.031 КЛ-2 2 48СБ Изделие закладное ДС12-14. Сборочный чертеж 1.031 КЛ-2 2 49 Изделие закладное ДС12-16 1.031 КЛ-2 2 49СБ Изделие закладное ДС12-16. Сборочный чертеж 1.031 КЛ-2 2 50 Изделие закладное ДС12-16А 1.031 КЛ-2 2 50СБ Изделие закладное ДС12-16А. Сборочный чертеж 1.031 КЛ-2 2 51 Изделие закладное ДС12-17 1.031 КЛ-2 2 51СБ Изделие закладное ДС12-17. Сборочный чертеж 1.031 КЛ-2 2 52 Изделие закладное ДС12-18 1.031 КЛ-2 2 52СБ Изделие закладное ДС12-18. Сборочный чертеж 1.031 КЛ-2 2 53 Изделие закладное ДС12-20 1.031 КЛ-2 2 53СБ Изделие закладное ДС12-20. Сборочный чертеж 1.031 КЛ-2 2 54 Изделие закладное ДС12-23 1.031 КЛ-2 2 54СБ Изделие закладное ДС12-23. Сборочный чертеж 1.031 КЛ-2 2 55 Изделие закладное ДС12-24 1.031 КЛ-2 2 55СБ Изделие закладное ДС12-24. Сборочный чертеж 1.031 КЛ-2 2 56 Изделие закладное ДС12-25 1.031 КЛ-2 2 56СБ Изделие закладное ДС12-25. Сборочный чертеж 1.031 КЛ-2 2 57 Изделие закладное ДС12-27 1.031 КЛ-2 2 57СБ Изделие закладное ДС12-27. Сборочный чертеж 1.031 КЛ-2 2 58 Изделие закладное ДС12-28 1.031 КЛ-2 2 58СБ Изделие закладное ДС12-28. Сборочный чертеж 1.031 КЛ-2 2 59 Изделие закладное ДС12-29 1.031 КЛ-2 2 59СБ Изделие закладное ДС12-29. Сборочный чертеж 1.031 КЛ-2 2 60 Изделие закладное ДС12-29-1 1.031 КЛ-2 2 60СБ Изделие закладное ДС12-29-1. Сборочный чертеж 1.031 КЛ-2 2 61 Изделие закладное ДС12-30 1.031 КЛ-2 2 61СБ Изделие закладное ДС12-30. Сборочный чертеж 1.031 КЛ-2 2 62 Изделие закладное ДС12-31 1.031 КЛ-2 2 62СБ Изделие закладное ДС12-31. Сборочный чертеж 1.031 КЛ-2 2 63 Изделие закладное ДС12-32 1.031 КЛ-2 2 63СБ Изделие закладное ДС12-32. Сборочный чертеж 1.031 КЛ-2 2 64 Изделие закладное ДС12-33 1.031 КЛ-2 2 64СБ Изделие закладное ДС12-33. Сборочный чертеж 1.031 КЛ-2 2 65 Изделие закладное ДС13-3 1.031 КЛ-2 2 65СБ Изделие закладное ДС13-3. Сборочный чертеж 1.031 КЛ-2 2 66 Изделие закладное М193-78 1.031 КЛ-2 2 66СБ Изделие закладное М193-78. Сборочный чертеж 1.031 КЛ-2 2 67 Изделие закладное Т1-3-1 1.031 КЛ-2 2 67СБ Изделие закладное Т1-3-1. Сборочный чертеж 1.031 КЛ-2 2 68 Изделие закладное ДС12-12 1.031 КЛ-2 2 68СБ Изделие закладное ДС12-12. Сборочный чертеж 1.031 КЛ-2 2 69 Изделие закладное ДС12-18-1 1.031 КЛ-2 2 69СБ Изделие закладное ДС12-18-1. Сборочный чертеж 1.031 КЛ-2 2 70 Изделие закладное ДС12-19 1.031 КЛ-2 2 70СБ Изделие закладное ДС12-19. Сборочный чертеж 1.031 КЛ-2 2 71 Пластина П-1 1.031 КЛ-2 2 72 Пластина П-2 1.031 КЛ-2 2 73 Пластина П-3 1.031 КЛ-2 2 74 Пластина П-4 1.031 КЛ-2 2 75 Пластина П-5 1.031 КЛ-2 2 76 Пластина П-6 1.031 КЛ-2 2 77 Пластина П-7 1.031 КЛ-2 2 78 Пластина П-8 1.031 КЛ-2 2 79 Пластина П-9 1.031 КЛ-2 2 80 Пластина П-10 1.031 КЛ-2 2 81 Пластина П-11 1.031 КЛ-2 2 82 Пластина П-12 1.031 КЛ-2 2 83 Пластина П-13 1.031 КЛ-2 2 84 Пластина П-14 1.031 КЛ-2 2 85 Пластина П-15 1.031 КЛ-2 2 86 Пластина П-16 1.031 КЛ-2 2 87 Пластина П-17 1.031 КЛ-2 2 88 Пластина П-18 1.031 КЛ-2 2 89 Пластина П-19 1.031 КЛ-2 2 90 Пластина П-20 1.031 КЛ-2 2 91 Пластина П-21 1.031 КЛ-2 2 92 Пластина П-22 1.031 КЛ-2 2 93 Пластина П-23 1.031 КЛ-2 2 94 Пластина П-24 1.031 КЛ-2 2 95 Пластина П-25 1.031 КЛ-2 2 96 Пластина П-26 1.031 КЛ-2 2 97 Пластина П-27 1.031 КЛ-2 2 98 Пластина П-28 1.031 КЛ-2 2 99 Пластина П-29 1.031 КЛ-2 2 100 Пластина П-30 1.031 КЛ-2 2 101 Пластина П-31 1.031 КЛ-2 2 102 Пластина П-32 1.031 КЛ-2 2 103 Пластина П-33 1.031 КЛ-2 2 104 Пластина П-34 1.031 КЛ-2 2 105 Пластина П-35 1.031 КЛ-2 2 106 Пластина П-36 1.031 КЛ-2 2 107 Пластина П-37 1.031 КЛ-2 2 108 Пластина П-38 1.031 КЛ-2 2 109 Пластина П-39 1.031 КЛ-2 2 110 Пластина П-40 1.031 КЛ-2 2 111 Пластина П-44 1.031 КЛ-2 2 112 Пластина П-45 1.031 КЛ-2 2 113 Пластина П-46 1.031 КЛ-2 2 114 Пластина П-47 | Разработан: | Ленниипроект
| Утверждён: | 30.09.1991 Ленниипроект (62-у)
| Расположен в: |
|
                                                                                                                       
|