Информационная система
«Ёшкин Кот»

Скачать базу одним архивом
Скачать обновления
История создания базы
Карта сайта

Скачать Типовой проект 903-1-273.89 Альбом 4. Топливоподача и шлакозолоудаление

Дата актуализации: 10.08.2017

Типовой проект 903-1-273.89

Альбом 4. Топливоподача и шлакозолоудаление

Обозначение: Типовой проект 903-1-273.89
Обозначение англ: 903-1-273.89
Статус:не определен законодательством
Название рус.:Альбом 4. Топливоподача и шлакозолоудаление
Дата добавления в базу:01.10.2014
Дата актуализации:05.05.2017
Дата введения:27.09.1989
Оглавление:Общие данные
Топливоподача. Шлакозолоудаление. План
Топливоподача. Шлакозолоудаление. Разрезы
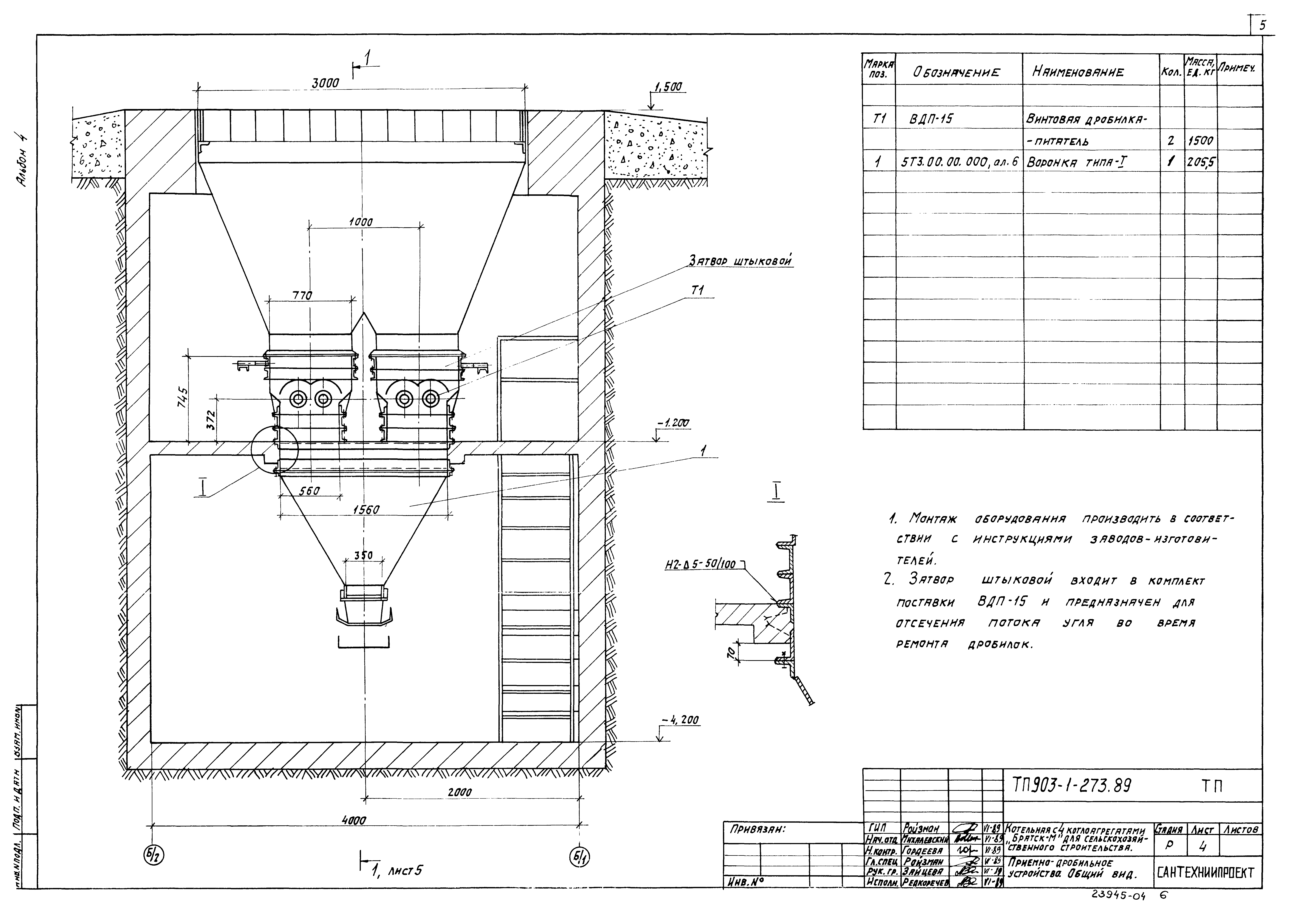
Приемно-дробильное устройство. Общий вид
Приемно-дробильное устройство. Разрез 1-1
Установка электромагнитного железоотделителя. Общий вид
Установка электромагнитного железоотделителя. Разрез 1-1
Установка подъемника для шлакоудаления. План
Установка подъемника для шлакоудаления. Разрез 1-1
Установка подъемника для шлакоудаления. Разрезы 2-2, 3-3, 4-4, 5-5, 6-6. Узлы I - II
Установка подъемника для шлакоудаления. Разрезы 7-7, 8-8, 9-9, 10-10
Установка подъемника для шлакоудаления. Схема монтажа каната
Разработан: Горьковский Сантехпроект
Утверждён:27.09.1989 ГПК СантехНИИпроект (SantekhNIIproject GPK 11)
Издан: ЦИТП Госстроя СССР (CITP, Gosstroy (USSR) 1989 г. )
Расположен в:Техническая документация Строительство Справочные документы Типовые строительные конструкции, изделия и узлы Общероссийский строительный каталог Промышленные предприятия, здания и сооружения Здания и сооружения санитарно-технические Теплоснабжение Котельные установки Котельные для объектов сельского хозяйства Топливо - каменные и бурые угли
Типовой проект 903-1-273.89Типовой проект 903-1-273.89Типовой проект 903-1-273.89Типовой проект 903-1-273.89Типовой проект 903-1-273.89Типовой проект 903-1-273.89Типовой проект 903-1-273.89Типовой проект 903-1-273.89Типовой проект 903-1-273.89Типовой проект 903-1-273.89Типовой проект 903-1-273.89Типовой проект 903-1-273.89Типовой проект 903-1-273.89Типовой проект 903-1-273.89Типовой проект 903-1-273.89

© 2013 Ёшкин Кот :-) Карта сайта