Информационная система
«Ёшкин Кот»

Скачать базу одним архивом
Скачать обновления
История создания базы
Карта сайта

Скачать Типовой проект 901-4-50с Альбом I. Строительная часть и оборудование

Дата актуализации: 10.08.2017

Типовой проект 901-4-50с

Альбом I. Строительная часть и оборудование

Обозначение: Типовой проект 901-4-50с
Обозначение англ: 901-4-50с
Статус:действует
Название рус.:Альбом I. Строительная часть и оборудование
Дата добавления в базу:01.10.2014
Дата актуализации:05.05.2017
Оглавление:Содержание альбома
Пояснительная записка
Заглавный лист
План резервуара. План покрытия, разрезы 1-1 - 2-2. Схема уклонов набетонки днища
Днище. План раскладки сеток. Разрезы 1-1, 2-2. Армирование приямка
Стены. Армирование
Покрытие. План раскладки сеток
Армирование колонны. Каркасы КП-1, КП-2
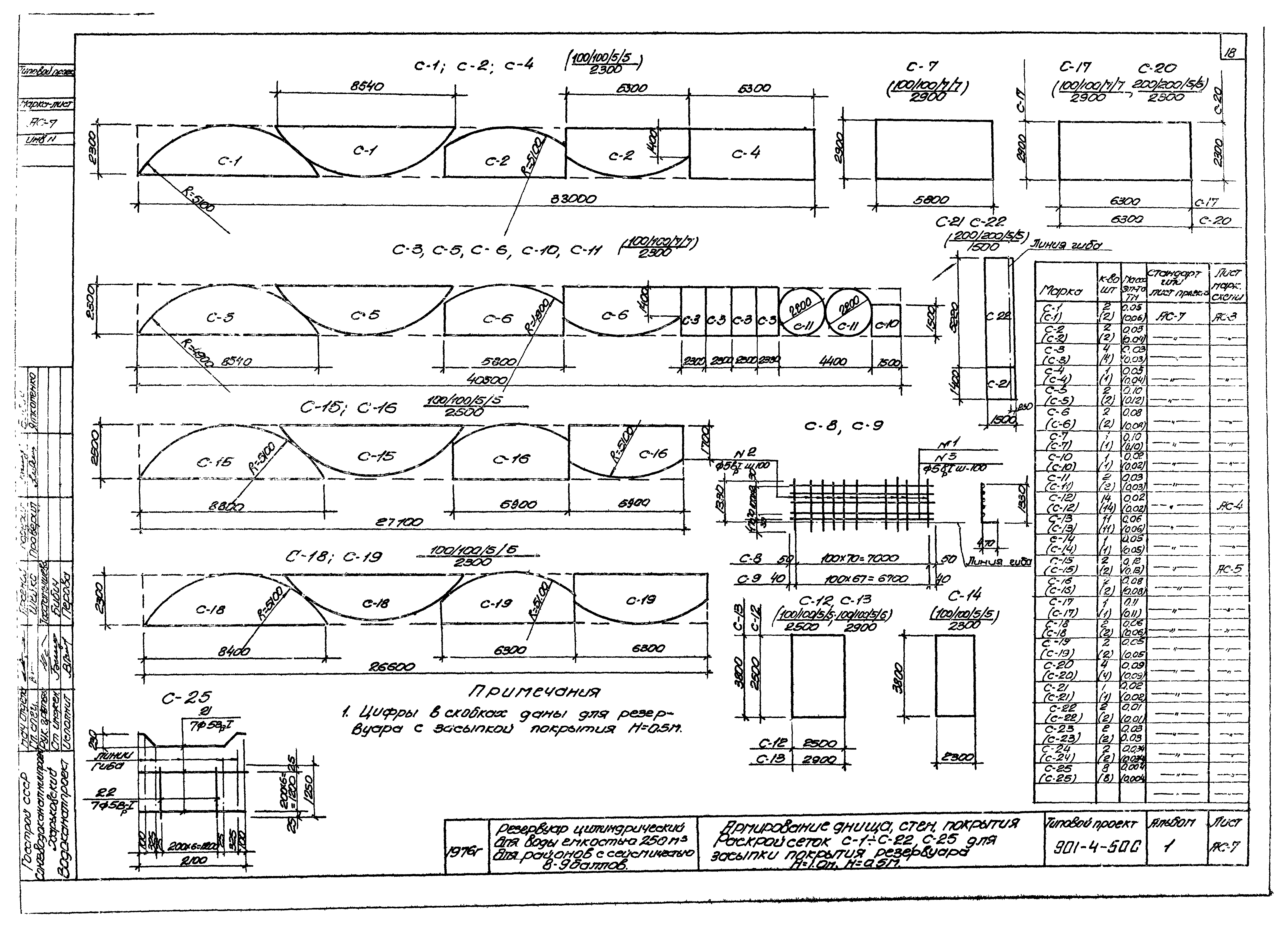
Армирование днища, стен и покрытия. Раскрой сеток С-1 - С-22 для засыпки покрытия Н = 1,0 м и Н = 0,5 м
Армирование днища, стен, покрытия и колонны. Спецификация и выборка стали при засыпке покрытия Н = 1,0 м
Армирование днища, стен, покрытия и колонны. Спецификация и выборка стали при засыпке покрытия Н = 0,5 м
Стремянка С-1, центровой разбивочный штырь ЦРШ, М-6
Камера датчиков сигнализации уровня воды. Закладные детали М-1 - М-5
Монтажный чертеж оборудования резервуара
Установка датчика электронного индикатора уровня ЭИУ-2
Установка датчиков уровней реле контроля сопротивления ИКС-2Н
Установка датчиков регулятора сигнализатора уровня ЭРСУ-3
Разработан: НИИЖБ
Харьковский Водоканалпроект
Утверждён:12.04.1976 Госстрой СССР (40)
Расположен в:Техническая документация Строительство Справочные документы Типовые строительные конструкции, изделия и узлы Общероссийский строительный каталог Промышленные предприятия, здания и сооружения Здания и сооружения санитарно-технические Водоснабжение Резервуары для воды
Типовой проект 901-4-50сТиповой проект 901-4-50сТиповой проект 901-4-50сТиповой проект 901-4-50сТиповой проект 901-4-50сТиповой проект 901-4-50сТиповой проект 901-4-50сТиповой проект 901-4-50сТиповой проект 901-4-50сТиповой проект 901-4-50сТиповой проект 901-4-50сТиповой проект 901-4-50сТиповой проект 901-4-50сТиповой проект 901-4-50сТиповой проект 901-4-50сТиповой проект 901-4-50сТиповой проект 901-4-50сТиповой проект 901-4-50сТиповой проект 901-4-50сТиповой проект 901-4-50сТиповой проект 901-4-50сТиповой проект 901-4-50сТиповой проект 901-4-50сТиповой проект 901-4-50сТиповой проект 901-4-50сТиповой проект 901-4-50с

© 2013 Ёшкин Кот :-) Карта сайта