Информационная система
«Ёшкин Кот»

Скачать базу одним архивом
Скачать обновления
История создания базы
Карта сайта

Скачать Типовые материалы для проектирования 901-03-230.87 Альбом II. Чертежи

Дата актуализации: 10.08.2017

Типовые материалы для проектирования 901-03-230.87

Альбом II. Чертежи

Обозначение: Типовые материалы для проектирования 901-03-230.87
Обозначение англ: 901-03-230.87
Статус:cправочные материалы, мп, тпр
Название рус.:Альбом II. Чертежи
Дата добавления в базу:01.10.2014
Дата актуализации:05.05.2017
Дата введения:13.02.1985
Оглавление:Содержание альбома
Технологическая часть
   Структура компоновочных решений станции очистки воды
   Принципиальная схема очистки воды (вариант с вихревыми смесителями)
   Принципиальная схема очистки воды (вариант с контактными камерами)
   Принципиальная схема очистки воды (вариант с микрофильтрами)
   Принципиальная схема приготовления основных реагентов
   Принципиальная схема приготовления дополнительных реагентов
   Вариант с вихревыми смесителями. Примерный генплан с коммуникациями
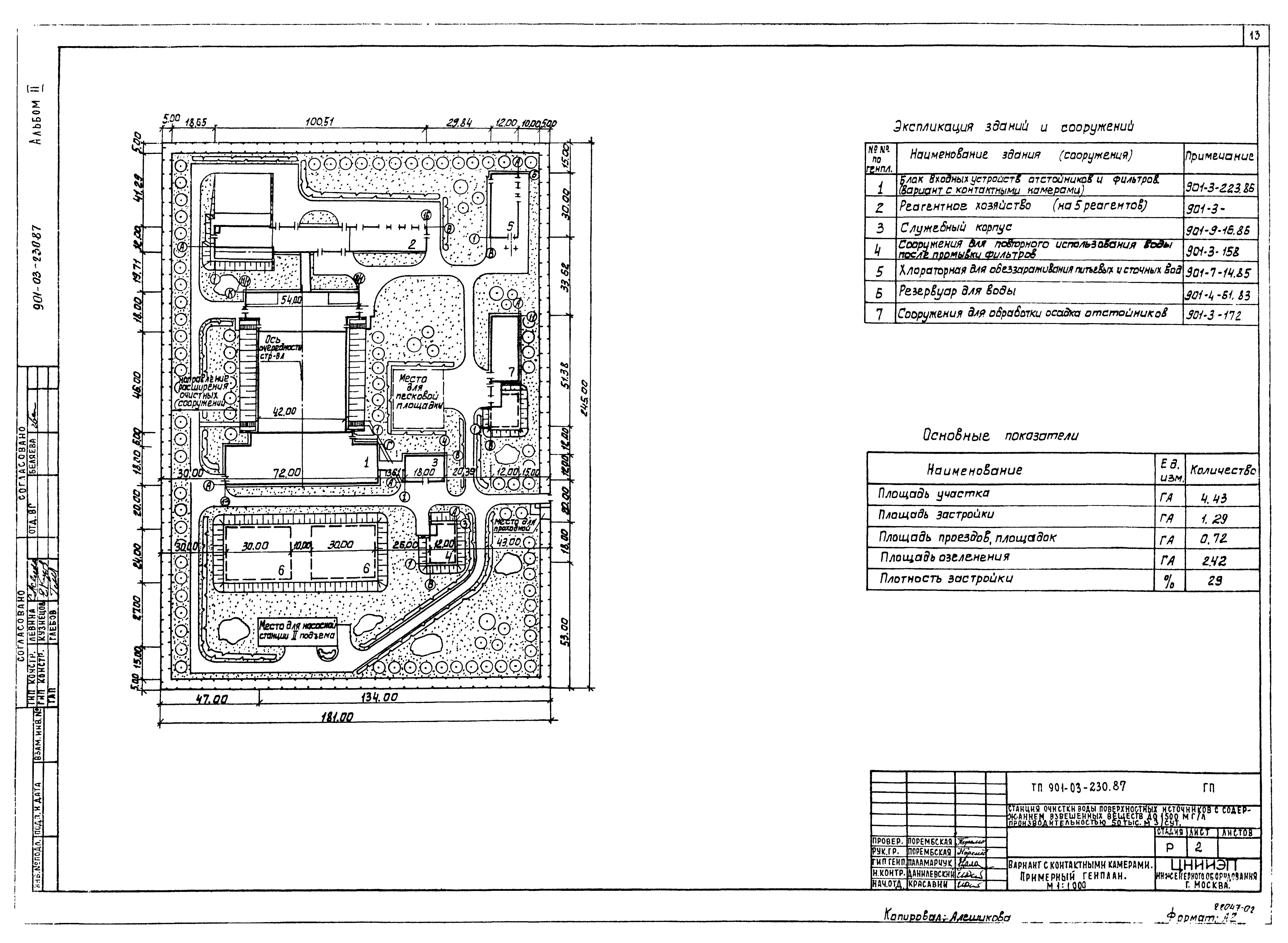
   Вариант с контактными камерами. Примерный генплан с коммуникациями
   Вариант с микрофильтрами. Примерный генплан с коммуникациями
Генплан и организация строительства
   Вариант с вихревыми смесителями. Примерный генплан
   Вариант с контактными камерами. Примерный генплан
   Вариант с микрофильтрами. Примерный генплан
   Вариант с вихревыми смесителями. Примерный стройгенплан
   Вариант с контактными камерами. Примерный стройгенплан
   Вариант с микрофильтрами. Примерный стройгенплан
Разработан: ЦНИИЭП иженерного оборудования
Утверждён:13.02.1985 Госгражданстрой (Gosgrazhdanstroy 43)
Расположен в:Техническая документация Строительство Справочные документы Типовые строительные конструкции, изделия и узлы Общероссийский строительный каталог Промышленные предприятия, здания и сооружения Здания и сооружения санитарно-технические Водоснабжение Очистные сооружения Станции очистки воды
Типовые материалы для проектирования 901-03-230.87Типовые материалы для проектирования 901-03-230.87Типовые материалы для проектирования 901-03-230.87Типовые материалы для проектирования 901-03-230.87Типовые материалы для проектирования 901-03-230.87Типовые материалы для проектирования 901-03-230.87Типовые материалы для проектирования 901-03-230.87Типовые материалы для проектирования 901-03-230.87Типовые материалы для проектирования 901-03-230.87Типовые материалы для проектирования 901-03-230.87Типовые материалы для проектирования 901-03-230.87Типовые материалы для проектирования 901-03-230.87Типовые материалы для проектирования 901-03-230.87Типовые материалы для проектирования 901-03-230.87Типовые материалы для проектирования 901-03-230.87Типовые материалы для проектирования 901-03-230.87Типовые материалы для проектирования 901-03-230.87Типовые материалы для проектирования 901-03-230.87Типовые материалы для проектирования 901-03-230.87

© 2013 Ёшкин Кот :-) Карта сайта