Скачать Типовые проектные решения А-IV-600-0480.90 Альбом 6. Отопление и вентиляция. Внутренний водопровод и канализация. Электростанция дизельная. Механизация складского хозяйства. Установка автоматического пожаротушенияДата актуализации: 10.08.2017 Типовые проектные решения А-IV-600-0480.90
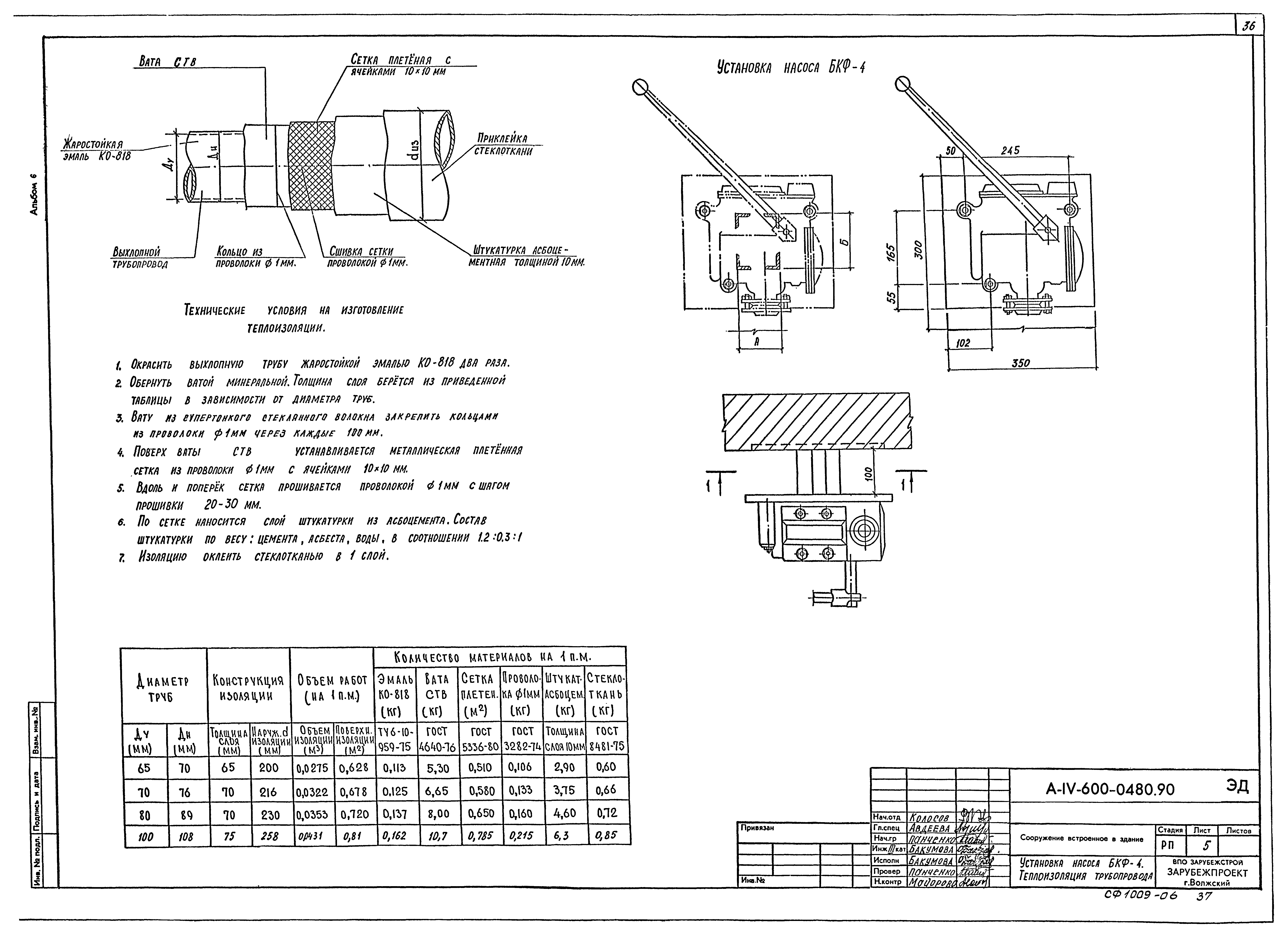
Альбом 6. Отопление и вентиляция. Внутренний водопровод и канализация. Электростанция дизельная. Механизация складского хозяйства. Установка автоматического пожаротушенияОбозначение: | Типовые проектные решения А-IV-600-0480.90 | Обозначение англ: | А-IV-600-0480.90 | Статус: | cправочные материалы, мп, тпр | Название рус.: | Альбом 6. Отопление и вентиляция. Внутренний водопровод и канализация. Электростанция дизельная. Механизация складского хозяйства. Установка автоматического пожаротушения | Дата добавления в базу: | 01.10.2014 | Дата актуализации: | 05.05.2017 | Дата введения: | 14.12.1990 | Оглавление: | Отопление и вентиляция Общие данные План на отм. - 4.600 Схема системы отопления Принципиальная схема вентиляции План на отм. - 4.600 (вентиляция) Схемы систем П1, П2, В2. Климатическая зона 1, 2 Схемы систем П1, П2, В2. Климатическая зона 3, 4 Схемы систем В1, В3, В4, ПЕ1 Установки систем П1, П2, В1, В2, В3, В4, ПЕ1. Климатическая зона 1, 2 Установки систем П1, П2, В1, В2, В3, В4, ПЕ1. Климатическая зона 3, 4 Установки систем П1, П2. Климатическая зона 1, 2 Установки систем ПЕ1, В1, В2. Климатическая зона 1, 2 Установки систем В3, В4. Климатическая зона 1, 2 Установки систем П1, П2. Климатическая зона 3, 4 Установки систем ПЕ1, В1, В2. Климатическая зона 3, 4 Установки систем В3, В4. Климатическая зона 3, 4 Эскизные чертежи общих видов нетиповых конструкций систем вентиляции Коллектор 1 Коллектор 2 Коллектор 3 Коллектор 4 Коллектор 5 Коллектор 6 Рама для установки 6-ти ячейковых фильтров ФяРБ Рама для установки 4-х ячейковых фильтров ФяРБ Подставка под фильтры ФП-300 Ограждение входного патрубка вентилятора Рама для установки 1-го ячейкового фильтра ФяРБ Внутренний водопровод и канализация Общие данные План на отм. - 4.600 Фрагмент 1 Схемы систем В1, К1, К13, К13Н Электростанция дизельная Общие данные Монтажная схема ДЭС План на отм. - 4.600 Разрезы 1-1…5-5 Установка насоса БКФ-4. Теплоизоляция трубопровода Эскизные чертежи общих видов нетиповых конструкций электростанции дизельной Бачок сливной Подвеска простая для трубопроводов Ящик для песка Шкаф для аккумуляторных батарей Конденсатосборник выхлопного трубопровода Механизация складского хозяйства Общие данные Схема размещения материалов на отм. - 4.600 Установка грузового выжимного лифта 3200/0,50. Данные для заказа лифта Эскизные чертежи общих видов нетиповых конструкций механизации складского хозяйства Настил 1 Настил 2 Автоматическая установка пожаротушения Общие данные План на отм. - 4.600. Разрез 1-1. Сечение 2-2 Узел управления. План на отм. - 4.600. Схема разводки трубопроводов Узел управления сплинклерной установкой с клапаном ВС-150. Общий вид. Схема узла управления Дизельная. План на отм. - 4.600. Разрезы 3-3, 4-4. Сечение 5-5. Узел I Схема электрическая принципиальная управления Схема электрическая принципиальная включения приемной станции DS1 и сигнализации Ящик А2. Общий вид. Схема электрическая подключений и соединений. Схема электрическая включения приемной станции DS2 Планы узла управления диспетчерской и пождепо. Расстановка электрооборудования и разводка кабелей. Вид 6-6, 7-7 План на отм. - 4.600. Расстановка электрооборудования и разводка кабелей. Вид 8-8. Узел II, рис. 1 Схема электрическая подключений Ящик А1. Общий вид. Схема электрическая подключений и соединений Ящик А3. Общий вид. Схема электрическая подключений и соединений Кабельный журнал. Схема структурная питания | Разработан: | Зарубежпроект Киевское отделение Промтрансниипроект Ростовский ГПИ Спецавтоматика
| Утверждён: | 12.12.1990 Штаб гражданской обороны СССР (USSR Civil Defense Headquarters )
| Расположен в: |
|
                                                           
|