Скачать Типовые проектные решения А-IV-600-0480.90 Альбом 4. Конструкции железобетонныеДата актуализации: 10.08.2017 Типовые проектные решения А-IV-600-0480.90
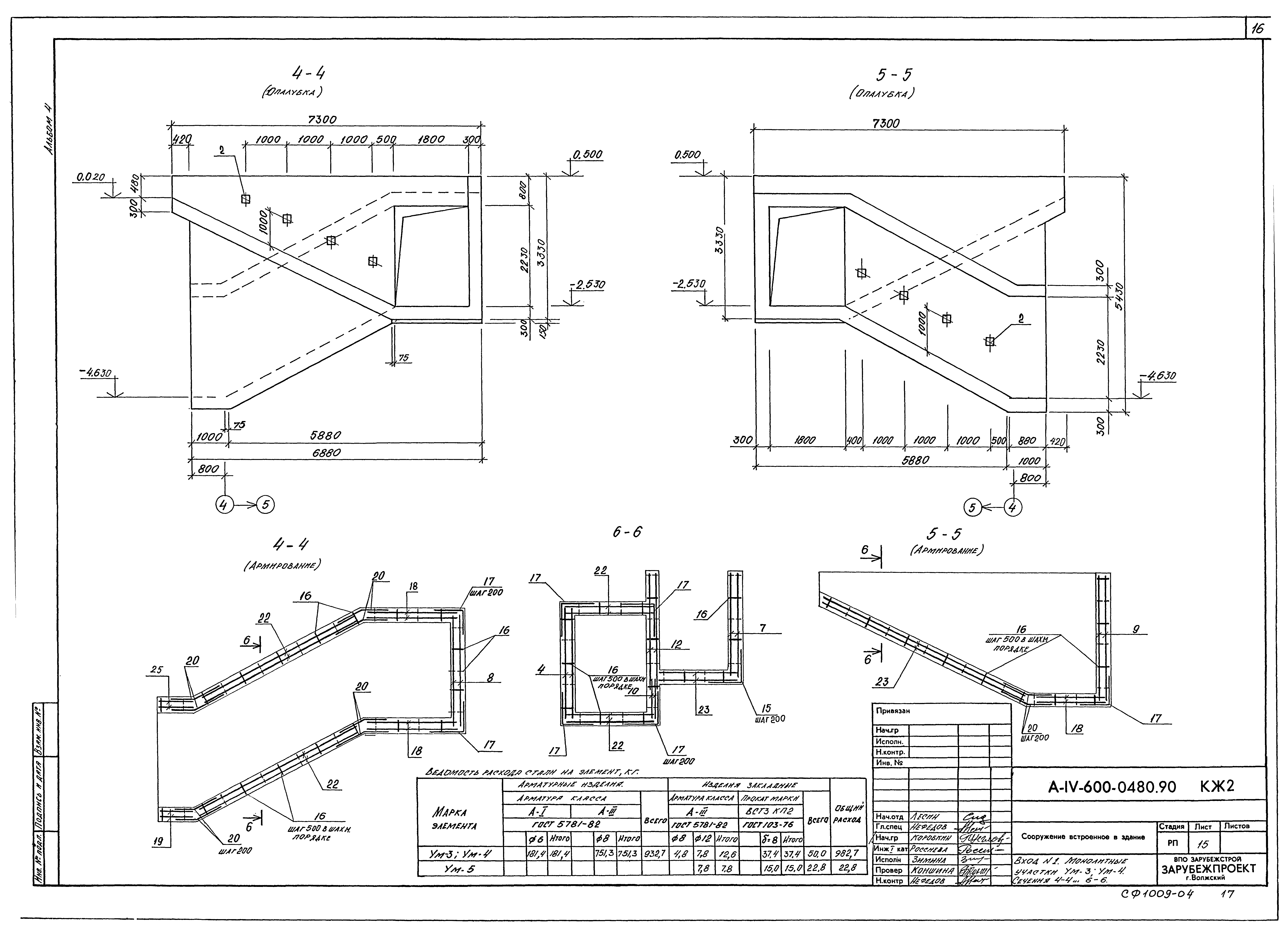
Альбом 4. Конструкции железобетонныеОбозначение: | Типовые проектные решения А-IV-600-0480.90 | Обозначение англ: | А-IV-600-0480.90 | Статус: | cправочные материалы, мп, тпр | Название рус.: | Альбом 4. Конструкции железобетонные | Дата добавления в базу: | 01.10.2014 | Дата актуализации: | 05.05.2017 | Дата введения: | 14.12.1990 | Оглавление: | Общие данные Монолитное перекрытие. Армирование Вход № 1. Схемы расположения элементов входа и плит покрытия Вход № 1. Схема расположения конструкций павильона Вход № 1. Схема расположения элементов монорельса Вход № 1. Монолитный участок УМ-1. Опалубка Вход № 1. Монолитный участок УМ-1. Армирование Вход № 1. Монолитный участок УМ-1. Спецификация Вход № 1. Монолитный участок УМ-2. Опалубка Вход № 1. Монолитный участок УМ-2. Армирование. Спецификация Вход № 1. Монолитные участки УМ-3, УМ-4, УМ-5. Опалубка Вход № 1. Монолитные участки УМ-3, УМ-4. Сечения 4-4…6-6 Вход № 1. Монолитные участки УМ-3, УМ-4. Армирование Вход № 2. I вариант. Схема расположения Вход № 2. II вариант. Схема расположения Вход № 2. II вариант. Монолитный участок УМ6. Опалубка Вход № 2. II вариант. Монолитный участок УМ6. Армирование Вход № 2. II вариант. Монолитный участок УМ6. Спецификация Вход № 2. II вариант. Монолитный участок УМ7. Опалубка. Армирование Схема расположения фекального резервуара Схемы расположения закладных деталей в перекрытии и элементов монорельса Деталь установки дверей ДУ-IV-2; ДУ-IV-3 Деталь установки дверей ДУ-I-7; ДУ-III-6 Детали установки ставней | Разработан: | Зарубежпроект
| Утверждён: | 12.12.1990 Штаб гражданской обороны СССР (USSR Civil Defense Headquarters )
| Расположен в: |
|
                            
|