Скачать Шифр VI-896-1 Железобетонные предварительно напряженные решетчатые балки для покрытий зданий со скатной кровлейДата актуализации: 10.08.2017 Шифр VI-896-1
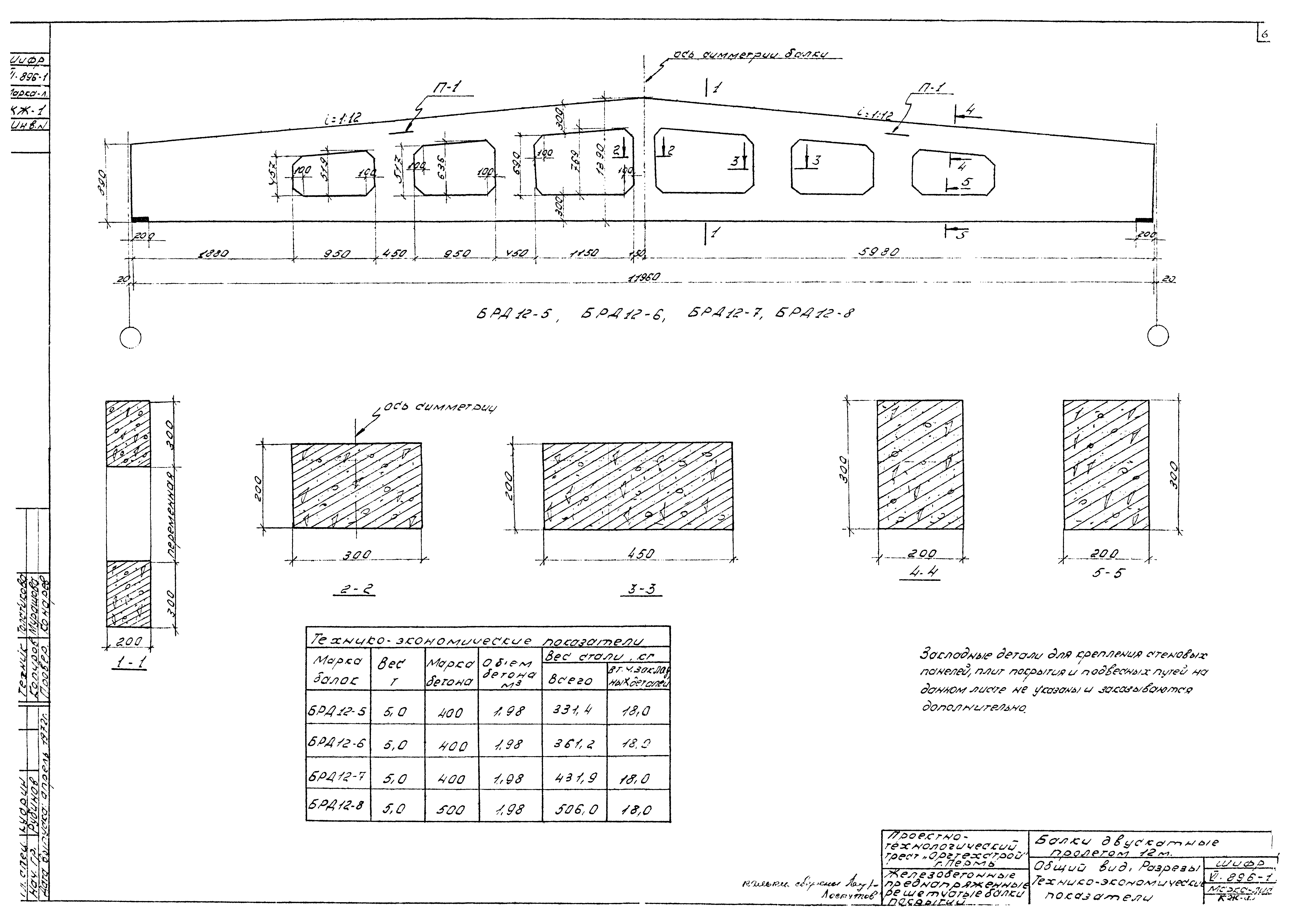
Железобетонные предварительно напряженные решетчатые балки для покрытий зданий со скатной кровлейОбозначение: | Шифр VI-896-1 | Обозначение англ: | VI-896-1 | Статус: | действует | Название рус.: | Железобетонные предварительно напряженные решетчатые балки для покрытий зданий со скатной кровлей | Дата добавления в базу: | 01.10.2014 | Дата актуализации: | 05.05.2017 | Область применения: | В шифре VI-896-1 приведены рабочие чертежи сборных предварительно напряженных железобетонных решетчатых балок для покрытий зданий пролетом 12 м с шагом балок 6 м, возводимых в V районе снеговой нагрузки | Разработан: | Оргтехстрой
| Утверждён: | 18.02.1969 Госстрой СССР (2/3-110)
| Расположен в: |
|
            
|