Информационная система
«Ёшкин Кот»

Скачать базу одним архивом
Скачать обновления
История создания базы
Карта сайта

Скачать Типовой проект 901-7-17.90 Альбом 3. Архитектурные решения. Конструкции железобетонные. Конструкции металлические. Организация строительства. Отопление и вентиляция. Внутренний водопровод и канализация

Дата актуализации: 10.08.2017

Типовой проект 901-7-17.90

Альбом 3. Архитектурные решения. Конструкции железобетонные. Конструкции металлические. Организация строительства. Отопление и вентиляция. Внутренний водопровод и канализация

Обозначение: Типовой проект 901-7-17.90
Обозначение англ: 901-7-17.90
Статус:не действует
Название рус.:Альбом 3. Архитектурные решения. Конструкции железобетонные. Конструкции металлические. Организация строительства. Отопление и вентиляция. Внутренний водопровод и канализация
Дата добавления в базу:01.10.2014
Дата актуализации:05.05.2017
Дата введения:01.04.2003
Оглавление:Архитектурные решения
   Общие данные
   Планы на отм. - 1.500; 0.000; 3.300. Разрез 3-3. Фасады А - В; 1 - 6; В - А (для варианта питьевых вод)
   Планы на отм. - 1.500; 0.000; 3.300. Разрез 3-3. Фасады А - В; 1 - 6; В - А (для варианта сточных вод)
   Разрезы 1-1, 2-2. Фасад 6 - 1. Схемы заполнения оконных проемов
   Ведомость и спецификация перемычек. Ведомость проемов ворот и дверей. Спецификация элементов заполнения проемов. Фрагмент плана
   Ведомость отделки помещений. Защита конструкций. Узлы I, II, III
   Планы полов и кровли. Экспликация полов. Узлы IV, V
Конструкции железобетонные
   Общие данные
   Схема расположения фундаментов. Разрез 1-1 - 4-4; 11-11
   Схема расположения фундаментов. Разрез 5-5 - 10-10. Разрез 12-12 - 18-18
   Схема расположения фундаментов. Фрагменты планов. Сечения
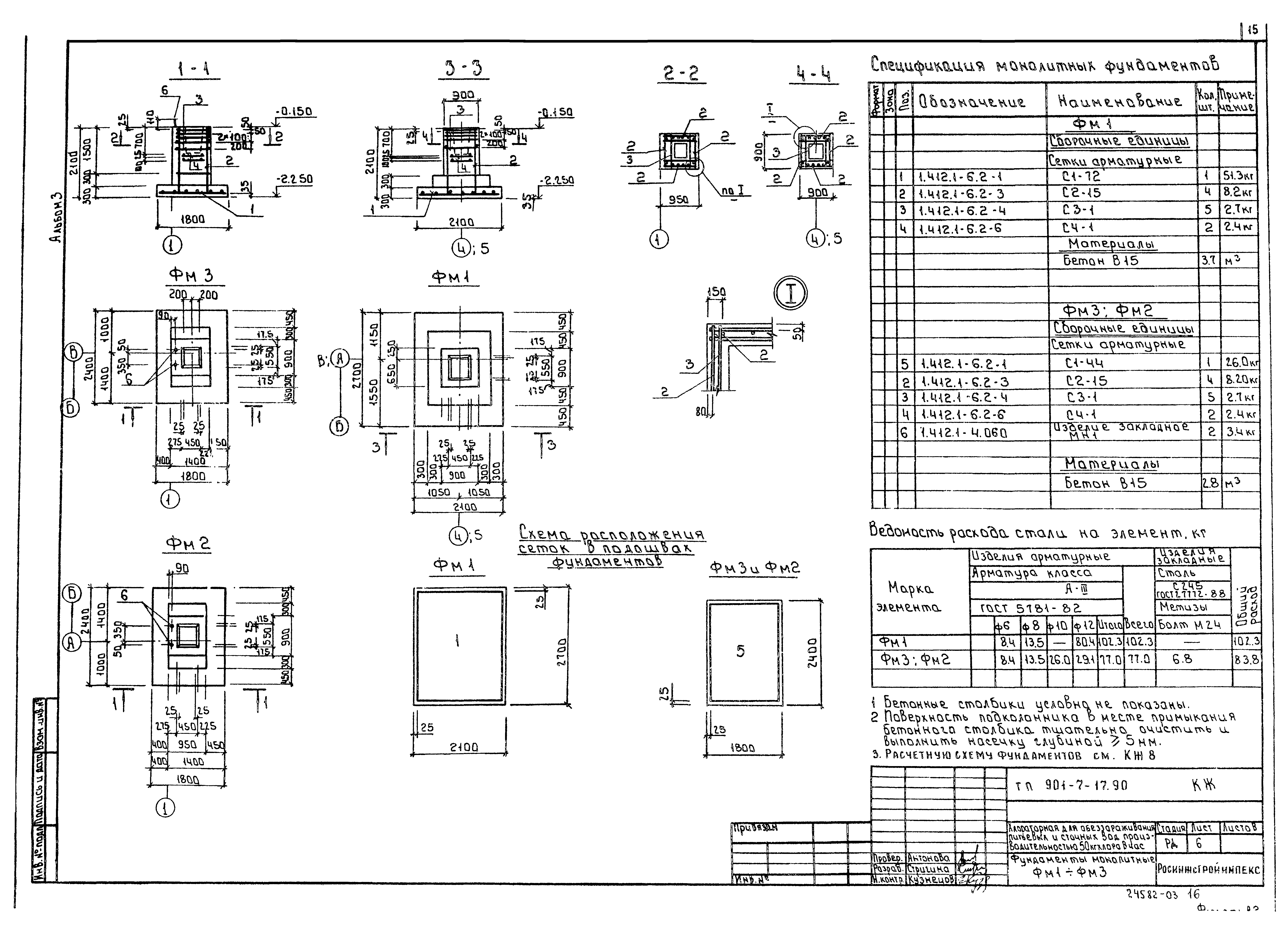
   Фундаменты монолитные Фм1 - Фм3
   Фундаменты монолитные Фм4 и Фм5
   Фундаменты монолитные Фм6 и Фм7
   Фундаменты монолитные Фм8 и Фм9
   Схема расположения фундаментов под оборудование, каналов и приямков
   Схема расположения плит перекрытия каналов и приямка
   Фундаменты под оборудование Фом3 - Фом7. Колодец К1
   Схема расположения каналов и приямков в осях 4 - 5 и А - Б
   Схема расположения каналов в осях 5 - 6 и А - Б
   Монолитные участки Ум6…Ум8. Монолитный фундамент Фом8
   Резервуар нейтрализующего раствора
   Резервуар под скруббером "1" и "2"
   Схема расположения элементов скуббера
   Узлы антикоррозийной защиты резервуаров, каналов и приямков
   Узлы антикоррозийной защиты скруббера
   Схема расположения колонн и балок покрытия
   Схема расположения плит покрытия
   Схема расположения стеновых панелей
   Схема расположения плит перекрытия и труб на отм. 3.300
   Монолитные участки Ум1…Ум5
   Схема расположения венткамеры на отм. 3.300
Конструкции металлические
   Общие данные. Ведомость металлоконструкций по видам профилей
   Общие данные. Техническая спецификация металла
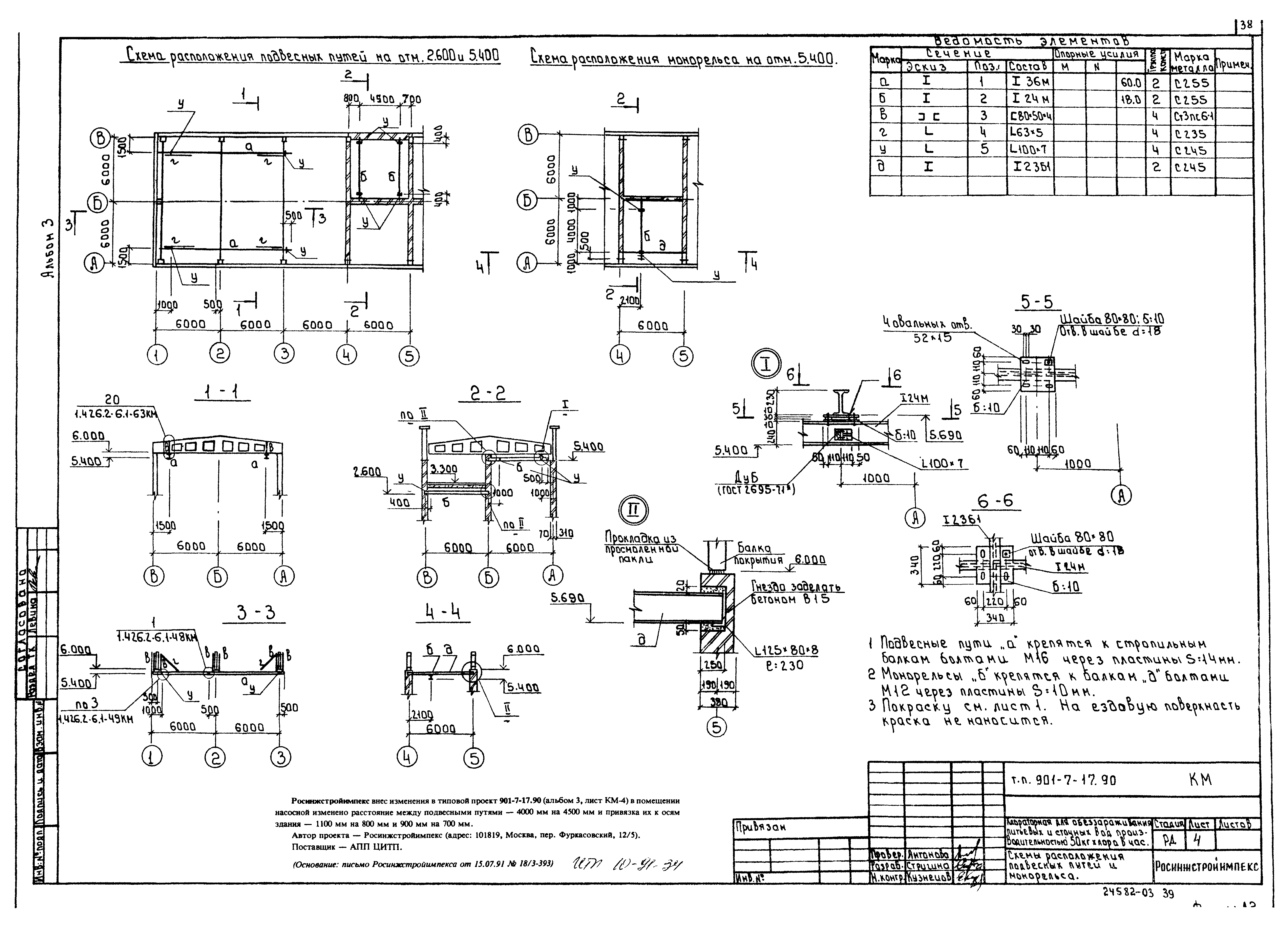
   Схемы расположения подвесных путей и монорельса
   Схема расположения площадок и лестниц
   Схема расположения площадок и лестниц. Узлы
   Труба вытяжная
Организация строительства
   График производства работ
Отопление и вентиляция
   Общие данные
   План на отм. - 1.500
   План на отм. - 3.300
   Схемы вентиляции П1, П2, П3, В4, В5, В21 - В23
   Схемы вентиляции В1 - В3. Схема системы отопления. Узел управления
   Установка П1, П2, П3. Схема теплоснабжения систем П1, П2, П3
   Установка В3 - В5
   Принципиальная схема вентиляции
Внутренний водопровод и канализация
   Общие данные. План
   Схемы В1, К1, К2, К3. План кровли
Разработан: Росинжстройимпекс
Утверждён:07.12.1989 Госкомархитектура (225)
Издан: ЦИТП Госстроя СССР (CITP, Gosstroy (USSR) 1991 г. )
Расположен в:Техническая документация Строительство Справочные документы Типовые строительные конструкции, изделия и узлы Общероссийский строительный каталог Промышленные предприятия, здания и сооружения Здания и сооружения санитарно-технические Водоснабжение Сооружения и установки по обеззараживанию воды Реагентное хозяйство для станций очистки
Заменяет собой:
Типовой проект 901-7-17.90Типовой проект 901-7-17.90Типовой проект 901-7-17.90Типовой проект 901-7-17.90Типовой проект 901-7-17.90Типовой проект 901-7-17.90Типовой проект 901-7-17.90Типовой проект 901-7-17.90Типовой проект 901-7-17.90Типовой проект 901-7-17.90Типовой проект 901-7-17.90Типовой проект 901-7-17.90Типовой проект 901-7-17.90Типовой проект 901-7-17.90Типовой проект 901-7-17.90Типовой проект 901-7-17.90Типовой проект 901-7-17.90Типовой проект 901-7-17.90Типовой проект 901-7-17.90Типовой проект 901-7-17.90Типовой проект 901-7-17.90Типовой проект 901-7-17.90Типовой проект 901-7-17.90Типовой проект 901-7-17.90Типовой проект 901-7-17.90Типовой проект 901-7-17.90Типовой проект 901-7-17.90Типовой проект 901-7-17.90Типовой проект 901-7-17.90Типовой проект 901-7-17.90Типовой проект 901-7-17.90Типовой проект 901-7-17.90Типовой проект 901-7-17.90Типовой проект 901-7-17.90Типовой проект 901-7-17.90Типовой проект 901-7-17.90Типовой проект 901-7-17.90Типовой проект 901-7-17.90Типовой проект 901-7-17.90Типовой проект 901-7-17.90Типовой проект 901-7-17.90Типовой проект 901-7-17.90Типовой проект 901-7-17.90Типовой проект 901-7-17.90Типовой проект 901-7-17.90Типовой проект 901-7-17.90Типовой проект 901-7-17.90Типовой проект 901-7-17.90Типовой проект 901-7-17.90Типовой проект 901-7-17.90Типовой проект 901-7-17.90Типовой проект 901-7-17.90

© 2013 Ёшкин Кот :-) Карта сайта