Скачать 7079тм Выпуск 3. Книга 1. Книга 2. Рабочие чертежи опор и их закреплений для зон А и Б для ВЛ 35 - 110 кВ; для ВЛ 220 кВДата актуализации: 10.08.2017 7079тм
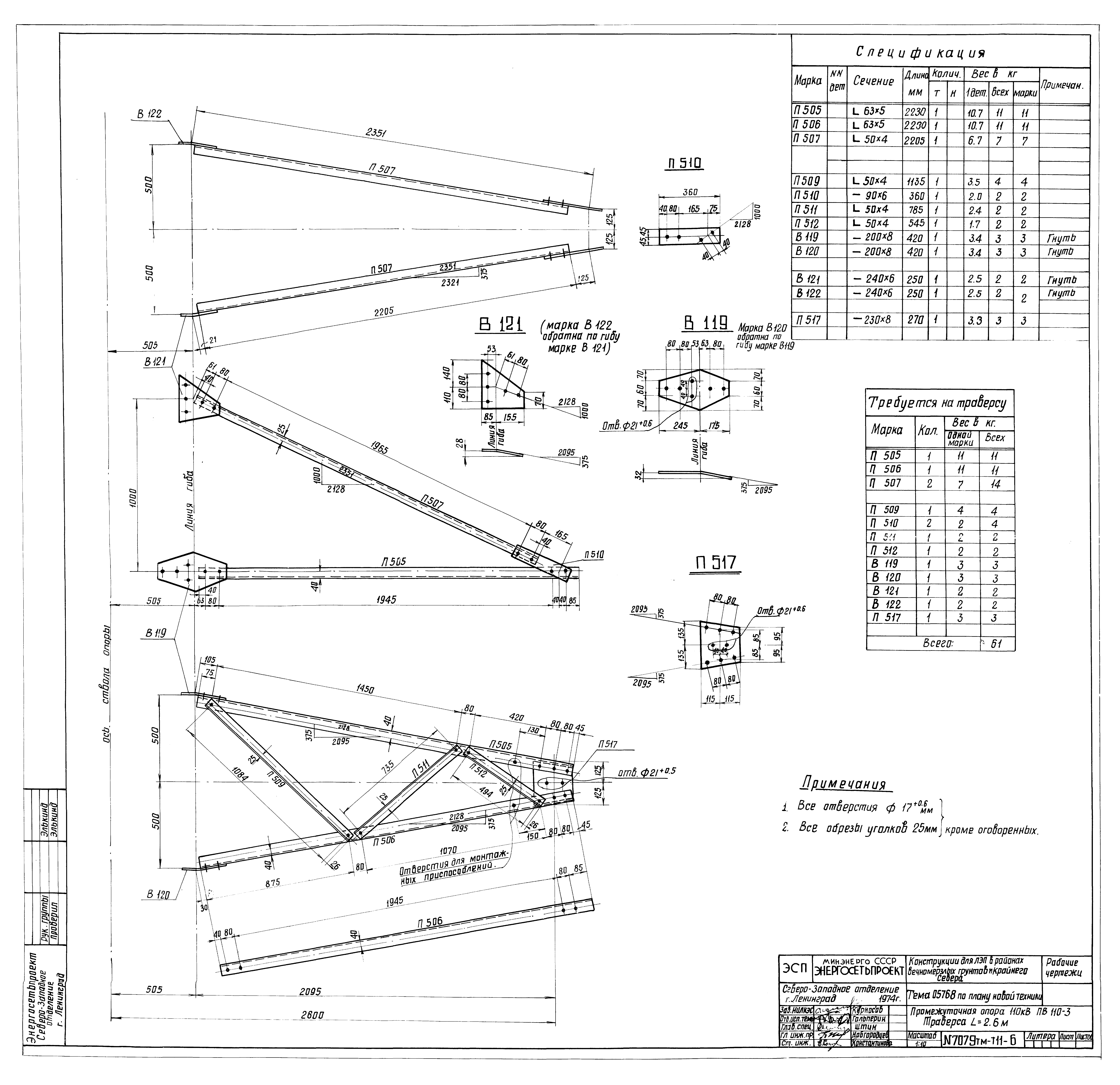
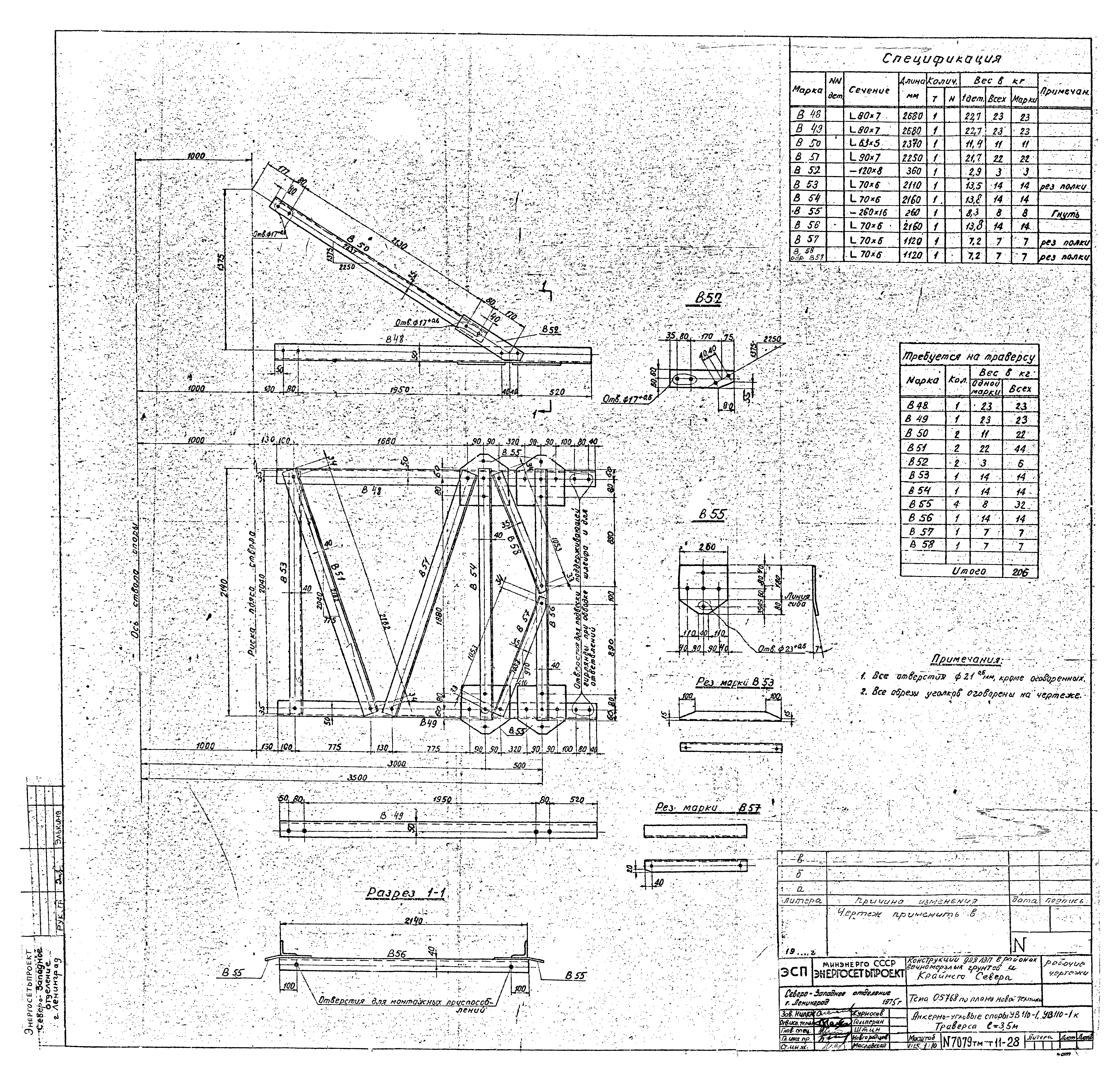
Выпуск 3. Книга 1. Книга 2. Рабочие чертежи опор и их закреплений для зон А и Б для ВЛ 35 - 110 кВ; для ВЛ 220 кВОбозначение: | 7079тм | Обозначение англ: | 7079тм | Статус: | действует | Название рус.: | Выпуск 3. Книга 1. Книга 2. Рабочие чертежи опор и их закреплений для зон А и Б для ВЛ 35 - 110 кВ; для ВЛ 220 кВ | Дата добавления в базу: | 01.10.2014 | Дата актуализации: | 05.05.2017 | Оглавление: | Состав проекта Пояснительная записка Содержание выпуска 3 I. Стальные опоры II. Деревянные опоры III. Закрепление опор | Разработан: | Энергосетьпроект
| Утверждён: | 01.01.1975 Энергосетьпроект (Energosetproject )
| Расположен в: |
|
                                                                                      
|