Информационная система
«Ёшкин Кот»

Скачать базу одним архивом
Скачать обновления
История создания базы
Карта сайта

Скачать Типовой проект 503-2-47.92 Альбом 2. Архитектурно-строительные решения

Дата актуализации: 10.08.2017

Типовой проект 503-2-47.92

Альбом 2. Архитектурно-строительные решения

Обозначение: Типовой проект 503-2-47.92
Обозначение англ: 503-2-47.92
Статус:не определен законодательством
Название рус.:Альбом 2. Архитектурно-строительные решения
Дата добавления в базу:01.10.2014
Дата актуализации:05.05.2017
Дата введения:01.07.1991
Оглавление:Содержание альбома
Общие данные
План на отм. 0.000
План подпольных каналов и схема расположения плит перекрытия подпольных каналов
Ведомости и спецификации перемычек, заполнения проемов, гардеробного оборудования и отделки помещений
Разрезы 1-1, 2-2. План и конструкция полов
Фасады
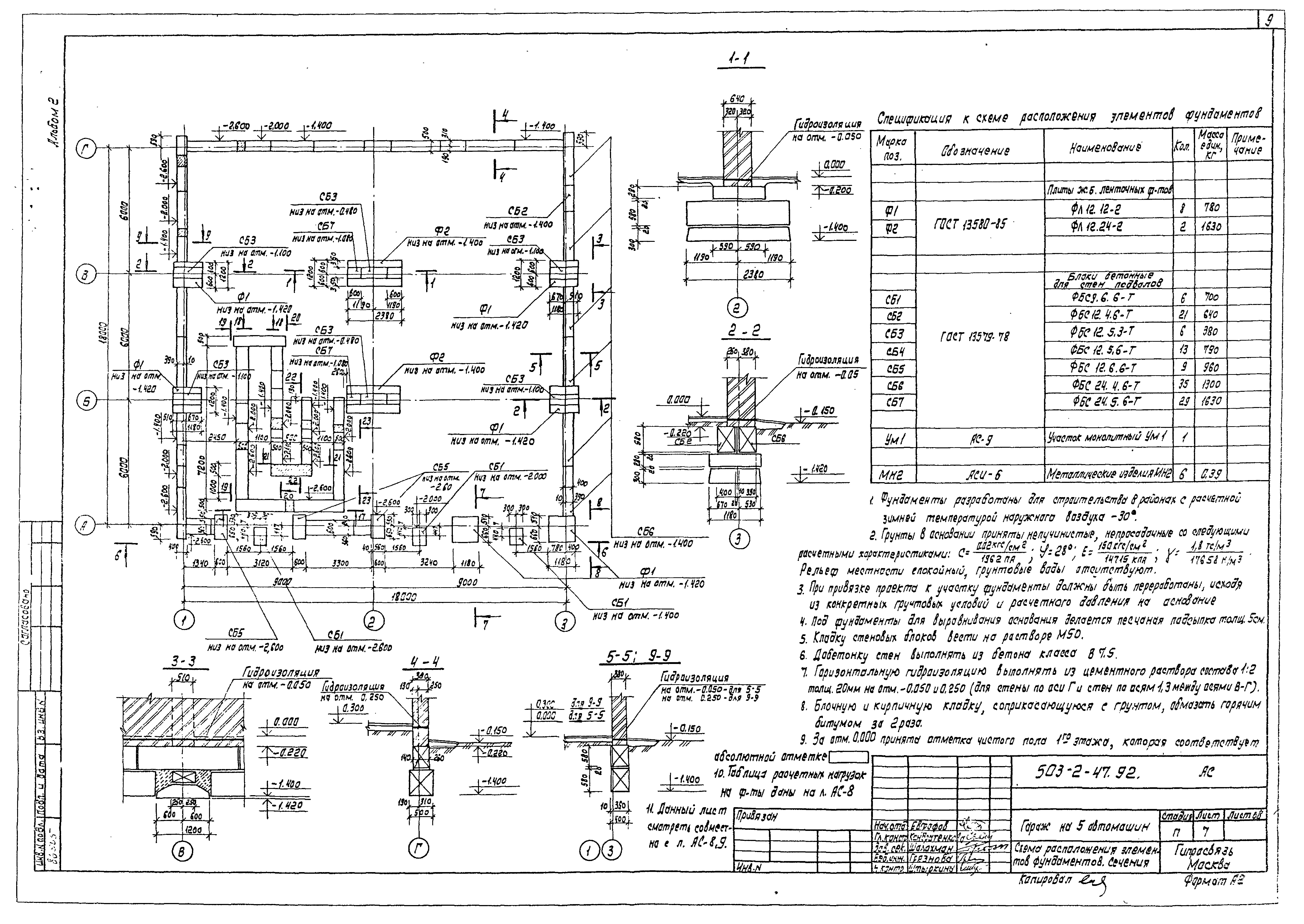
Схема расположения элементов фундаментов. Сечения
Сечения фундаментов
Схемы расположения стеновых блоков
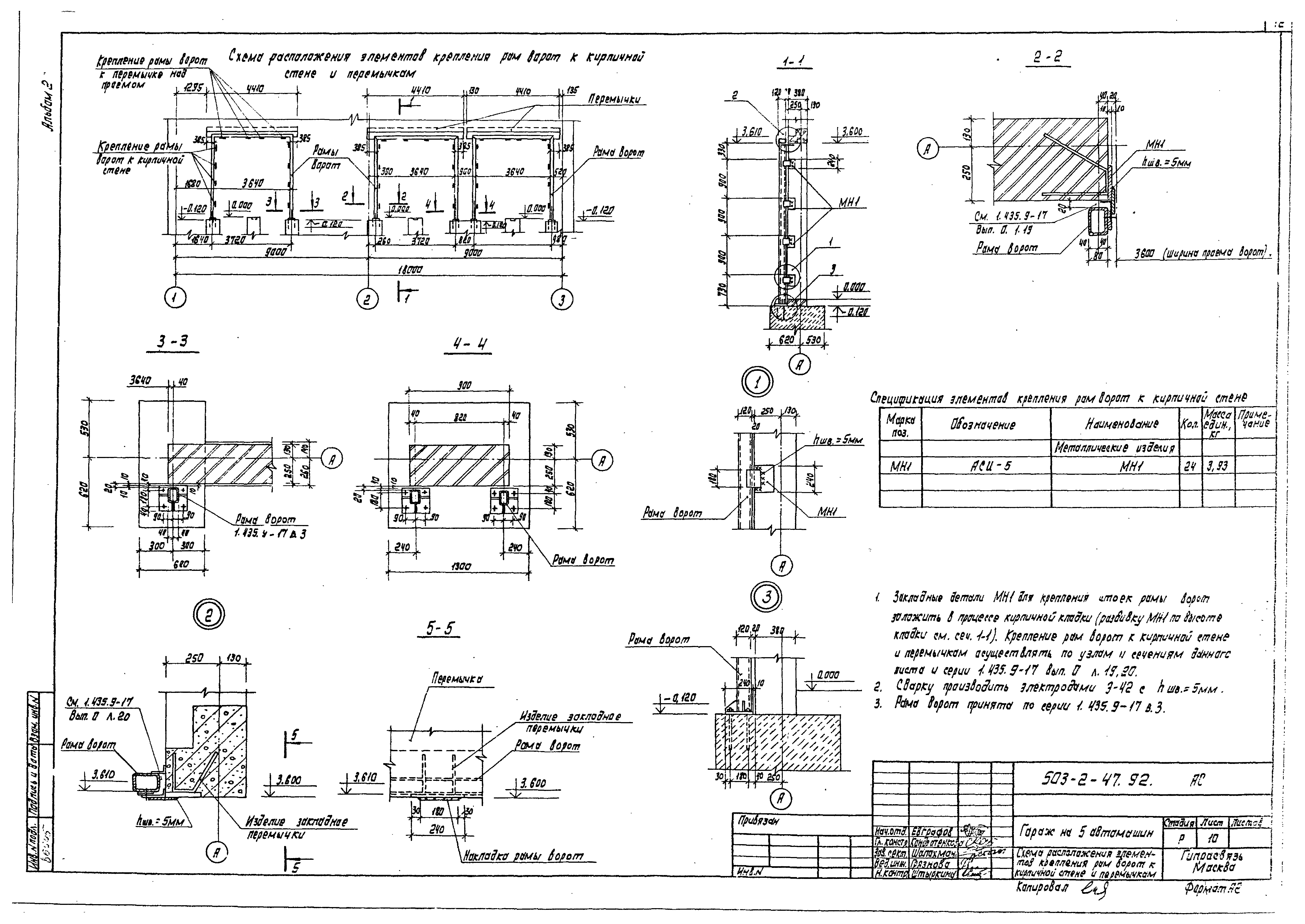
Схема расположения элементов крепления рам ворот к кирпичной стене и перемычкам
Схема расположения элементов покрытия. Узлы и сечения
Узлы и сечения покрытия
План кровли
Осмотровая канава
Закладные детали, конструкции сетки и каркасов. Перемычка БПГ44-40-1. Опорные плиты ОПм1, ОПм2
Разработан: Гипросвязь
Утверждён:15.03.1991 Министерство связи СССР
Расположен в:Техническая документация Строительство Справочные документы Типовые строительные конструкции, изделия и узлы Общероссийский строительный каталог Промышленные предприятия, здания и сооружения Предприятия, здания и сооружения транспорта Транспорт автомобильный Предприятия автотранспортные, гаражи и стоянки для легковых автомобилей, автобусов и мотоциклов
Типовой проект 503-2-47.92Типовой проект 503-2-47.92Типовой проект 503-2-47.92Типовой проект 503-2-47.92Типовой проект 503-2-47.92Типовой проект 503-2-47.92Типовой проект 503-2-47.92Типовой проект 503-2-47.92Типовой проект 503-2-47.92Типовой проект 503-2-47.92Типовой проект 503-2-47.92Типовой проект 503-2-47.92Типовой проект 503-2-47.92Типовой проект 503-2-47.92Типовой проект 503-2-47.92Типовой проект 503-2-47.92Типовой проект 503-2-47.92Типовой проект 503-2-47.92Типовой проект 503-2-47.92Типовой проект 503-2-47.92Типовой проект 503-2-47.92Типовой проект 503-2-47.92Типовой проект 503-2-47.92

© 2013 Ёшкин Кот :-) Карта сайта