Информационная система
«Ёшкин Кот»

Скачать базу одним архивом
Скачать обновления
История создания базы
Карта сайта

Скачать Типовой проект 501-5-62.86 Альбом 2. Внутренние водопровод и канализация. Отопление и вентиляция. Электроснабжение. Электрическое освещение. Силовое электрооборудование. Автоматизация отопления и вентиляции

Дата актуализации: 10.08.2017

Типовой проект 501-5-62.86

Альбом 2. Внутренние водопровод и канализация. Отопление и вентиляция. Электроснабжение. Электрическое освещение. Силовое электрооборудование. Автоматизация отопления и вентиляции

Обозначение: Типовой проект 501-5-62.86
Обозначение англ: 501-5-62.86
Статус:не определен законодательством
Название рус.:Альбом 2. Внутренние водопровод и канализация. Отопление и вентиляция. Электроснабжение. Электрическое освещение. Силовое электрооборудование. Автоматизация отопления и вентиляции
Дата добавления в базу:01.10.2014
Дата актуализации:05.05.2017
Дата введения:01.05.1986
Оглавление:Содержание
Внутренние водопровод и канализация
   Общие данные
   План 1 этажа
   План 2 этажа
   Схемы систем В1, Т3, К1, К2
Отопление и вентиляция
   Общие данные
   Отопление. План 1 этажа
   Отопление. План 2 этажа
   Отопление. Схема системы отопления. Схемы теплоснабжения калориферов. Комплектация нагревательных приборов
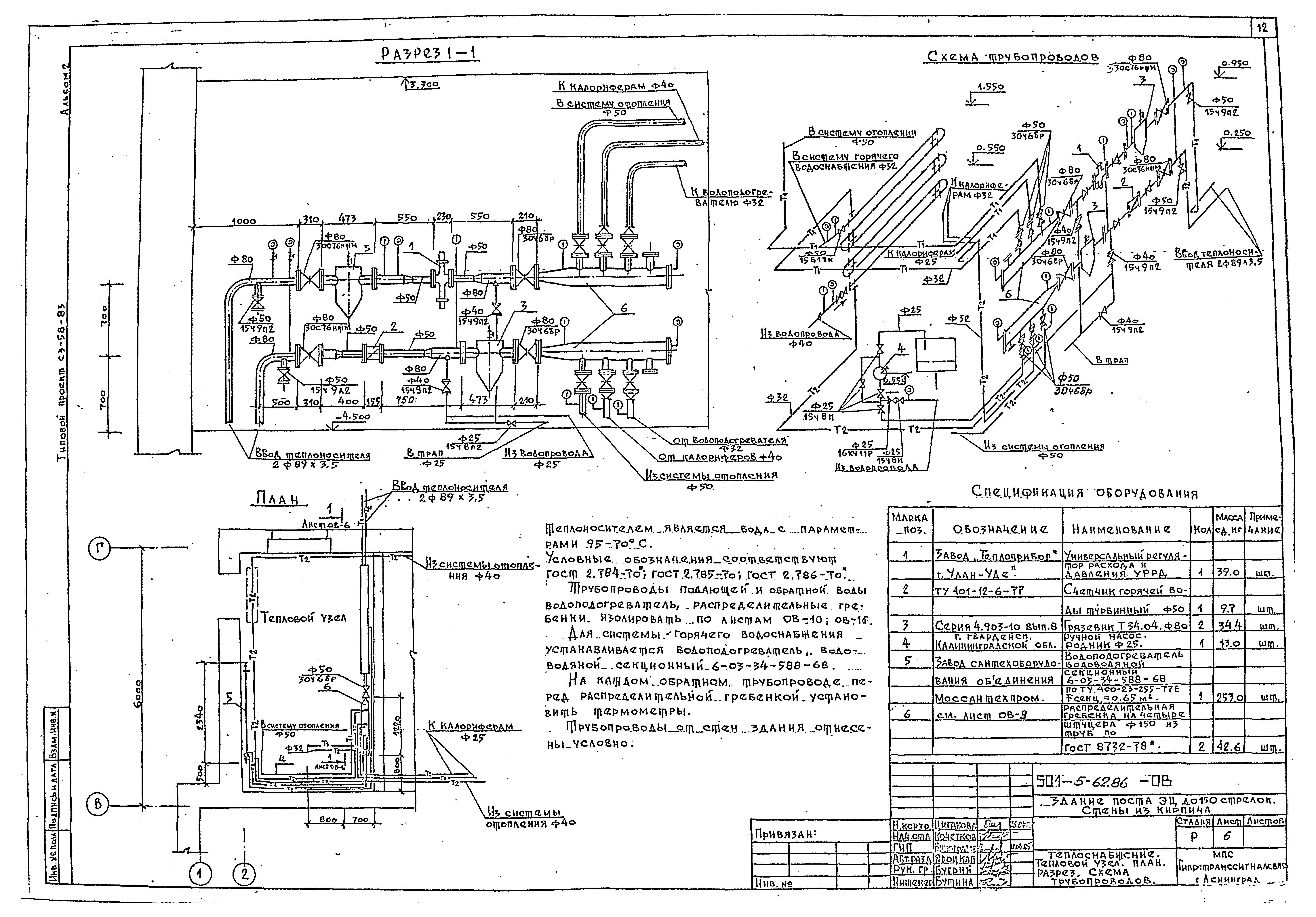
   Теплоснабжение. Тепловой узел. План. Разрез. Схема трубопроводов
   Теплоснабжение. Котельная. План
   Теплоснабжение. Котельная. Разрезы
   Теплоснабжение. Котельная. Схема трубопроводов. Распределительная гребенка
   Изоляция холстом стекловолокнистым, жеутами или шнурами трубопроводов d = 14 - 108 мм
   Изоляция цилиндрами из минеральной ваты на синтетическом связующем трубопроводов от 45 - 273 мм
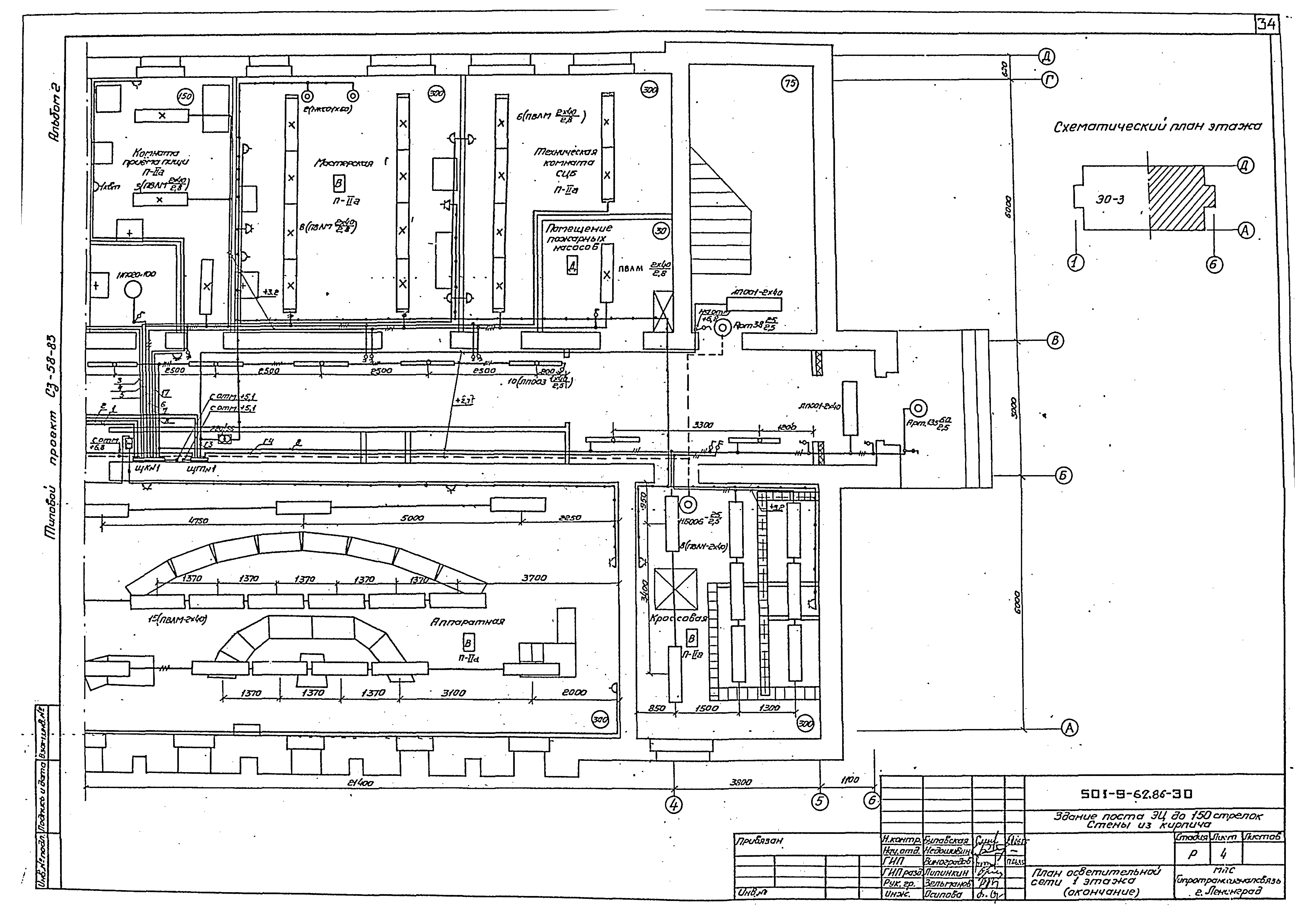
   Вентиляция. План 1 этажа
   Вентиляция. План 2 этажа
   Вентиляция. Схемы
   Вентиляция. Венткамеры № 1 и № 2. Планы. Разрезы
Электроснабжение
   Общие данные
   Резервная электростанция. Размещение электрооборудования ДГА-2-48м
   Схема электроснабжения поста ЭЦ
   Схема увязки питающих устройств при установке ДГА-2-48м и ПВ-60
   План раскладки кабелей резервной электростанции
   Таблица электрических соединений
   Схема топлива и маслоснабжения резервной электростанции
   Топливо-масляный блок для ДГА-2-48м
   Бак для воды емкостью 60 литров
Электрическое освещение
   Общие данные
   Спецификация электрооборудования и материалов
   План осветительной сети 1 этажа
   План осветительной сети 2 этажа
   План осветительной сети при варианте с котельной и неполным заполнением релейной
   Расчетная схема гарантированного питания
   Расчетная схема негарантированного питания 1 этажа
   Расчетная схема негарантированного питания 2 этажа
Силовое электрооборудование
   Общие данные
   План силовой сети 1 этажа
   План силовой сети 2 этажа
   Кабельный журнал
   Конструкция для установки аппаратов управления и защиты
   План заземления электрооборудования 1 этажа
   План заземления электрооборудования 2 этажа и молниезащита
Автоматизация отопления и вентиляции
   Общие данные
   Спецификация оборудования и материалов
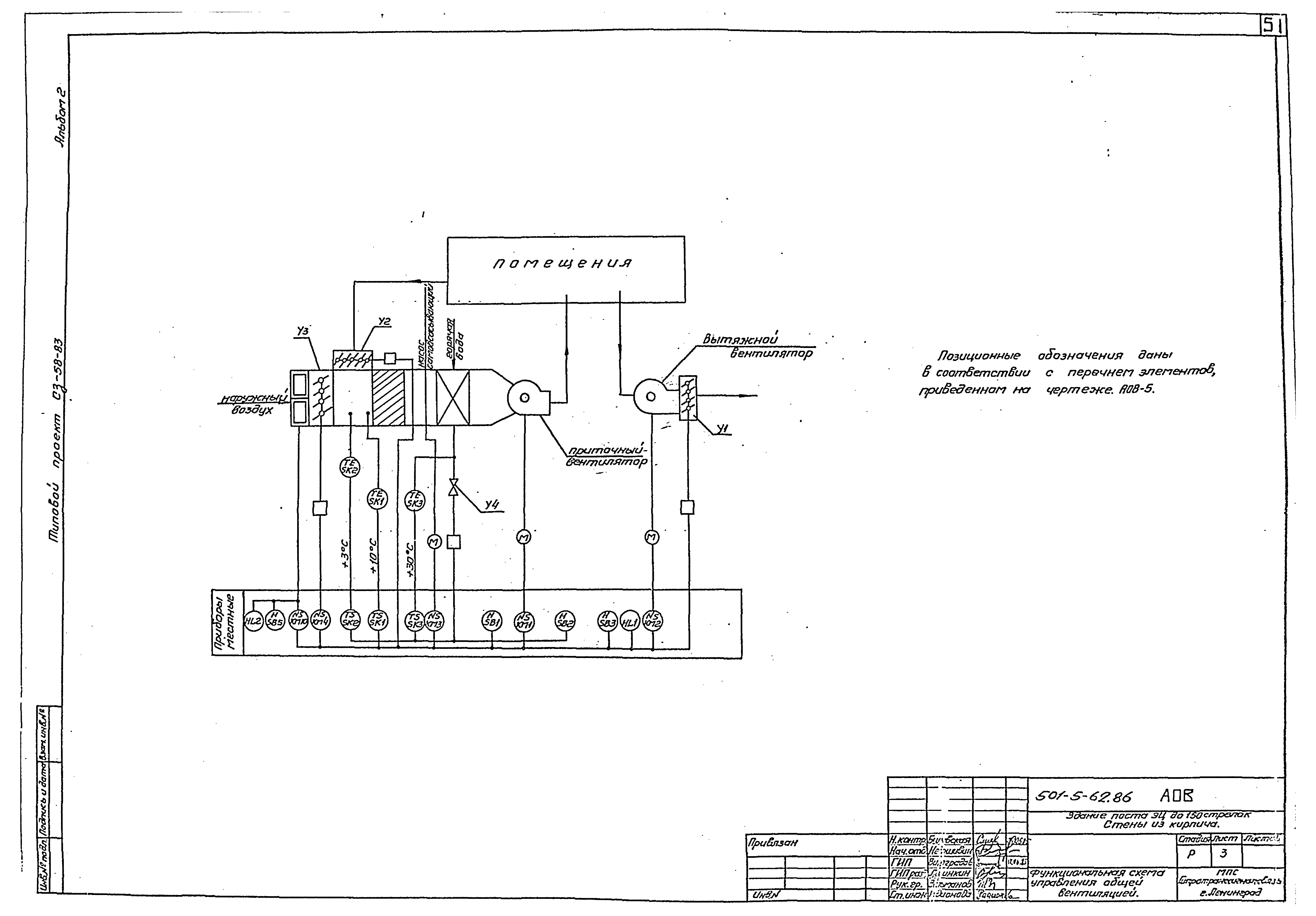
   Функциональная схема общей вентиляции
   Функциональные схемы вентиляции аккумуляторной и резервной электростанции
   Схема электрическая принципиальная управления общей вентиляцией
   Схемы электрические принципиальные управления вентиляцией резервной электростанции и сушильных шкафов
   Схема электрическая принципиальная управления вентиляцией аккумуляторной
   Схемы электрические принципиальные управления вентиляцией котельной и электрообогревом клапанов
   Схемы электрические соединений управления общей вентиляцией и вентиляцией сушильных шкафов
   Схемы электрические соединений управления вентиляцией резервной электростанции и котельной
   Схемы электрические соединений управления вентиляцией аккумуляторной и электрообогревом клапанов
   План расположения средств автоматизации и прокладки кабелей 1 этажа
   План расположения средств автоматизации и прокладки кабелей 2 этажа
   Кабельный журнал
   Схема блокировки заряда батареи СЦБ с вентиляцией аккумуляторной
   Схема блокировки заряда батарей связи (24 В) с вентиляцией аккумуляторной
   Схема электрическая принципиальная системы пожаротушения
   Схема электрическая соединений системы пожаротушения
   Шкаф управления пожаротушением. Схема электрическая монтажная
   Шкаф управления пожаротушением. Схема расположения аппаратуры
   Установка кнопки серии КЕ в стене
Разработан: Гипротранссигналсвязь
Утверждён:24.10.1985 Министерство путей сообщения СССР (USSR Ministry of Railroads А-32899)
Расположен в:Техническая документация Строительство Справочные документы Типовые строительные конструкции, изделия и узлы Общероссийский строительный каталог Защитные сооружения гражданской обороны Типовые проекты защитных сооружений гражданской обороны для объектов промышленности, электроэнергетики, транспорта, связи и складского хозяйства Встроенные помещения, приспосабливаемые под противорадиационные укрытия Противорадиационные укрытия в зданиях и сооружениях транспорта Промышленные предприятия, здания и сооружения Предприятия, здания и сооружения транспорта Транспорт железнодорожный Сигнализация, централизация и блокировка, связь и радио
Типовой проект 501-5-62.86Типовой проект 501-5-62.86Типовой проект 501-5-62.86Типовой проект 501-5-62.86Типовой проект 501-5-62.86Типовой проект 501-5-62.86Типовой проект 501-5-62.86Типовой проект 501-5-62.86Типовой проект 501-5-62.86Типовой проект 501-5-62.86Типовой проект 501-5-62.86Типовой проект 501-5-62.86Типовой проект 501-5-62.86Типовой проект 501-5-62.86Типовой проект 501-5-62.86Типовой проект 501-5-62.86Типовой проект 501-5-62.86Типовой проект 501-5-62.86Типовой проект 501-5-62.86Типовой проект 501-5-62.86Типовой проект 501-5-62.86Типовой проект 501-5-62.86Типовой проект 501-5-62.86Типовой проект 501-5-62.86Типовой проект 501-5-62.86Типовой проект 501-5-62.86Типовой проект 501-5-62.86Типовой проект 501-5-62.86Типовой проект 501-5-62.86Типовой проект 501-5-62.86Типовой проект 501-5-62.86Типовой проект 501-5-62.86Типовой проект 501-5-62.86Типовой проект 501-5-62.86Типовой проект 501-5-62.86Типовой проект 501-5-62.86Типовой проект 501-5-62.86Типовой проект 501-5-62.86Типовой проект 501-5-62.86Типовой проект 501-5-62.86Типовой проект 501-5-62.86Типовой проект 501-5-62.86Типовой проект 501-5-62.86Типовой проект 501-5-62.86Типовой проект 501-5-62.86Типовой проект 501-5-62.86Типовой проект 501-5-62.86Типовой проект 501-5-62.86Типовой проект 501-5-62.86Типовой проект 501-5-62.86Типовой проект 501-5-62.86Типовой проект 501-5-62.86Типовой проект 501-5-62.86Типовой проект 501-5-62.86Типовой проект 501-5-62.86Типовой проект 501-5-62.86Типовой проект 501-5-62.86Типовой проект 501-5-62.86Типовой проект 501-5-62.86Типовой проект 501-5-62.86Типовой проект 501-5-62.86Типовой проект 501-5-62.86Типовой проект 501-5-62.86Типовой проект 501-5-62.86Типовой проект 501-5-62.86Типовой проект 501-5-62.86Типовой проект 501-5-62.86Типовой проект 501-5-62.86Типовой проект 501-5-62.86Типовой проект 501-5-62.86Типовой проект 501-5-62.86

© 2013 Ёшкин Кот :-) Карта сайта