Информационная система
«Ёшкин Кот»

Скачать базу одним архивом
Скачать обновления
История создания базы
Карта сайта

Скачать Типовой проект 407-3-427.86 Альбом IV. Отопление и вентиляция. Внутренние водопровод и канализация

Дата актуализации: 10.08.2017

Типовой проект 407-3-427.86

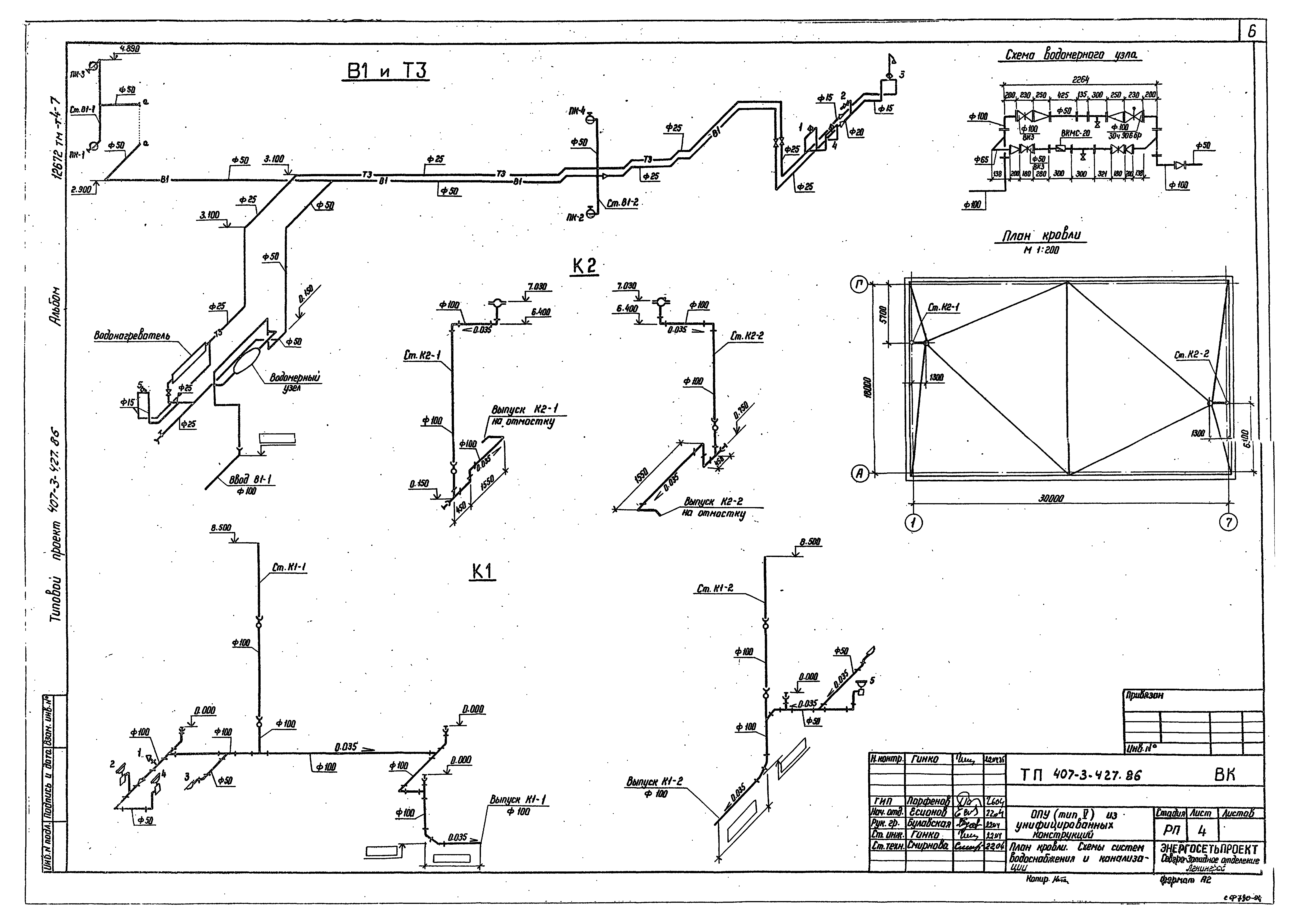
Альбом IV. Отопление и вентиляция. Внутренние водопровод и канализация

Обозначение: Типовой проект 407-3-427.86
Обозначение англ: 407-3-427.86
Статус:не определен законодательством
Название рус.:Альбом IV. Отопление и вентиляция. Внутренние водопровод и канализация
Дата добавления в базу:01.10.2014
Дата актуализации:05.05.2017
Дата введения:12.02.1987
Оглавление:Содержание альбома
Чертежи основного комплекта марки ВК
   Общие данные
   План на отм. 0.000 с сетями систем водоснабжения и канализации
   План на отм. 3.540 с сетями систем водоснабжения и канализации
   План кровли. Схемы систем водоснабжения и канализации
Чертежи основного комплекта марки ОВ
   Общие данные
   План на отм. 0.000
   План на отм. 3.540
   Схема отопления
   Вентустановки П2 и В1. Разрезы 1-1, 2-2. Спецификация
   Вентустановка П1. Разрезы 1-1, 2-2. Спецификация
   Схемы вентиляционных систем
   Электрокотельная. План на отм. 0.000. Разрез 1-1. Схема. Спецификация
   Вариант присоединения к наружным тепловым сетям
Разработан: Северо-западное отделение института Энергосетьпроект
Утверждён:30.12.1985 Минэнерго СССР (USSR Minenergo 38)
Расположен в:Техническая документация Строительство Справочные документы Типовые строительные конструкции, изделия и узлы Общероссийский строительный каталог Промышленные предприятия, здания и сооружения Предприятия, здания и сооружения промышленности и электроэнергетики Электроэнергетика Устройства и подстанции распределительные
Типовой проект 407-3-427.86Типовой проект 407-3-427.86Типовой проект 407-3-427.86Типовой проект 407-3-427.86Типовой проект 407-3-427.86Типовой проект 407-3-427.86Типовой проект 407-3-427.86Типовой проект 407-3-427.86Типовой проект 407-3-427.86Типовой проект 407-3-427.86Типовой проект 407-3-427.86Типовой проект 407-3-427.86Типовой проект 407-3-427.86Типовой проект 407-3-427.86Типовой проект 407-3-427.86

© 2013 Ёшкин Кот :-) Карта сайта