| ||||||||||||||||||||||||||||||||||
Скачать ГОСТ Р ЕН 12952-7-2013 Котлы водотрубные и котельно-вспомогательное оборудование. Часть 7. Требования к оборудованию котловДата актуализации: 10.08.2017
|
| Обозначение: | ГОСТ Р ЕН 12952-7-2013 |
| Обозначение англ: | GOST R EN 12952-7-2013 |
| Статус: | введен впервые |
| Название рус.: | Котлы водотрубные и котельно-вспомогательное оборудование. Часть 7. Требования к оборудованию котлов |
| Название англ.: | Water-tube boilers and auxiliary installations. Part 7. Requirements for equipment for the boilers |
| Дата добавления в базу: | 21.05.2015 |
| Дата актуализации: | 05.05.2017 |
| Дата введения: | 01.01.2015 |
| Область применения: | Стандарт устанавливает всесторонние требования к материалам, применяемым для изготовления деталей (для водотрубных котлов), работающих под давлением и привариваемых к элементам, работающим под давлением. |
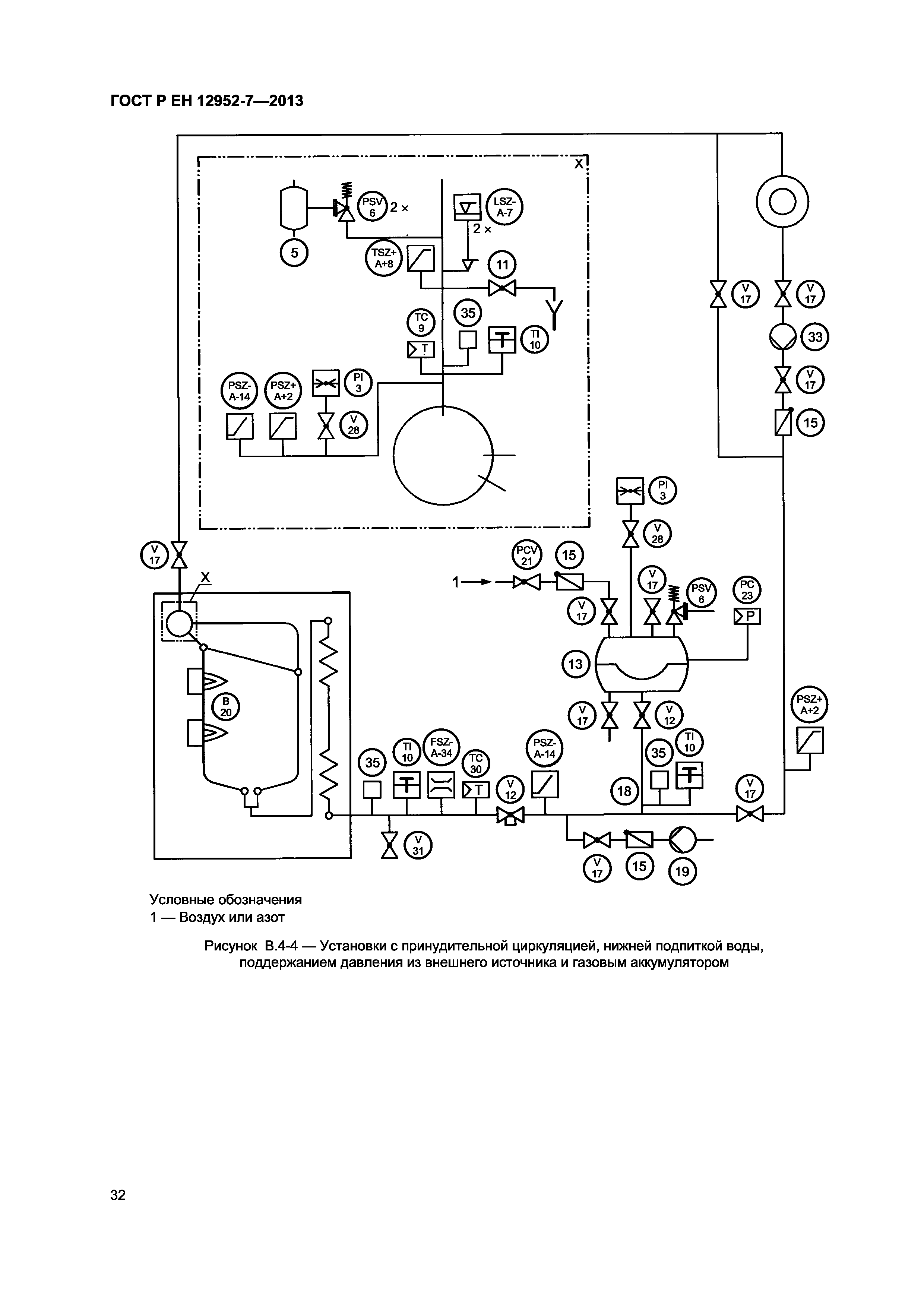
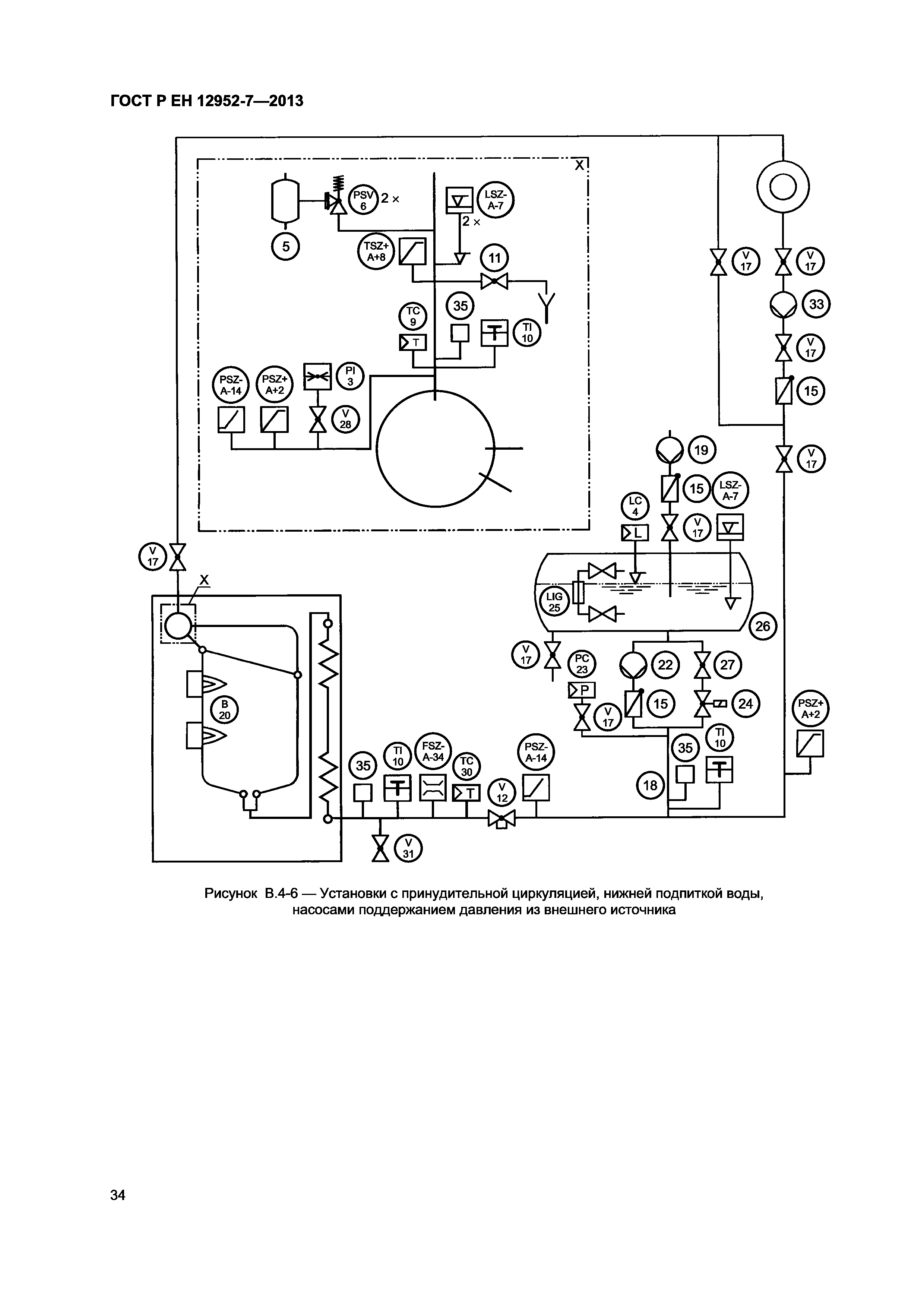
| Оглавление: | 1 Область применения 2 Нормативные ссылки 3 Термины и определения 4 Общие требования к паровым и водогрейным котлам 4.1 Устройства безопасности от превышения заданного давления 4.2 Система подачи топлива/тепла 4.3 Системы золошлакоудаления 4.4 Системы очистки дымовых газов 4.5 Требования к регулирующим и ограничительным устройствам 4.6 Люки и лючки для чистки, осмотра и лазы 4.7 Питательные трубопроводы и защита для предотвращения обратного тока питательной воды 4.8 Подключение паровых и водогрейных котлов 5 Дополнительные требования к паровым котлам 5.1 Требования к насосам 5.2 Запорные и дренажные устройства 5.3 Минимальный уровень воды 5.4 Приборы, показывающие уровень воды и расхода 5.5 Контроль подачи и устройство защиты от недостатка воды 5.6 Приборы для измерения давления и температуры 5.7 Маркировка 6 Дополнительные требования к водогрейным котлам 6.1 Требования к водогрейным установкам 6.2 Требования к насосам 6.3 Запорные приспособления и сбросные устройства 6.4 Минимальный уровень воды и устройство линий прямых и обратных трубопроводов 6.5 Приборы, показывающие уровень воды и расхода 6.6 Регулировка подачи и сброса воды и устройства защиты от недостатка воды 6.7 Устройства защиты при достижении минимального давления 6.8 Устройства безопасности для защиты от превышения температуры 6.9 Приборы для измерения давления и температуры 6.10 Идентификационная маркировка 7 Дополнительные требования к установкам без постоянного надзора 7.1 Общие сведения 7.2 Паровые котлы 7.3 Водогрейные котлы 8 Окончательные испытания устройств безопасности 8.1 Проведение испытаний 8.2 Части оборудования на стороне воды и пара 8.3 Части оборудования топливоподачи 8.4 Контур защиты 8.5 Инструкции по эксплуатации 9 Малые котельные установки 9.1 Паровые котлы 9.2 Водогрейные котлы Приложение А (обязательное) Содорегенерационный котел (котел для сжигания черного щелока) Приложение В (справочное) Примеры исполнения водогрейных котлов Приложение ДА (справочное) Сведения о соответствии ссылочных международных стандартов национальным стандартам Российской Федерации Библиография |
| Разработан: | ОАО ЭМАльянс |
| Утверждён: | 06.09.2013 Федеральное агентство по техническому регулированию и метрологии (928-ст) |
| Издан: | Стандартинформ (2014 г. ) |
| Расположен в: | |
| Нормативные ссылки: |

















































