Информационная система
«Ёшкин Кот»

Скачать базу одним архивом
Скачать обновления
История создания базы
Карта сайта

Скачать ГОСТ Р 50571.7.702-2013 Электроустановки низковольтные. Часть 7. Требования к специальным установкам или местам их размещения. Раздел 702. Плавательные бассейны и фонтаны

Дата актуализации: 10.08.2017

ГОСТ Р 50571.7.702-2013

Электроустановки низковольтные. Часть 7. Требования к специальным установкам или местам их размещения. Раздел 702. Плавательные бассейны и фонтаны

Обозначение: ГОСТ Р 50571.7.702-2013
Обозначение англ: GOST R 50571.7.702-2013
Статус:введен впервые
Название рус.:Электроустановки низковольтные. Часть 7. Требования к специальным установкам или местам их размещения. Раздел 702. Плавательные бассейны и фонтаны
Название англ.:Low-voltage electrical installation. Part 7. Requirements for special installations or locations. Section 702. Swimming pools and fountains
Дата добавления в базу:01.10.2014
Дата актуализации:05.05.2017
Дата введения:01.01.2015
Область применения:Стандарт распространяется на электрические установки: - ванн плавательных бассейнов и лягушатников и зон их окружающих; - зон естественных водоемов, обводненных карьерах, прибрежных и подобных зон, предназначенных, для плавания, ныряния и подобных целей и их окружающих зон. Такие зоны рассматриваются как плавательные бассейны; - ванн фонтанов и их окружающих зон. К бассейнам для медицинского применения могут предъявляться специальные требования стандарт не распространяется на мобильное оборудование, например, оборудование для очистки бассейна.
Оглавление:702.1 Область применения
702.2 Нормативные ссылки
702.3 Термины и определения
702.30 Общие характеристики
702.4 Защита для обеспечения безопасности
702.41 Защита от поражения электрическим током .
702.410.3 Общие требования
702.5 Выбор и монтаж электрооборудования
702.51 Общие требования
702.512 Условия эксплуатации и внешние воздействия
702.52 Электропроводки
702.53 Аппаратура коммутации и управления
702.55 Прочее оборудование
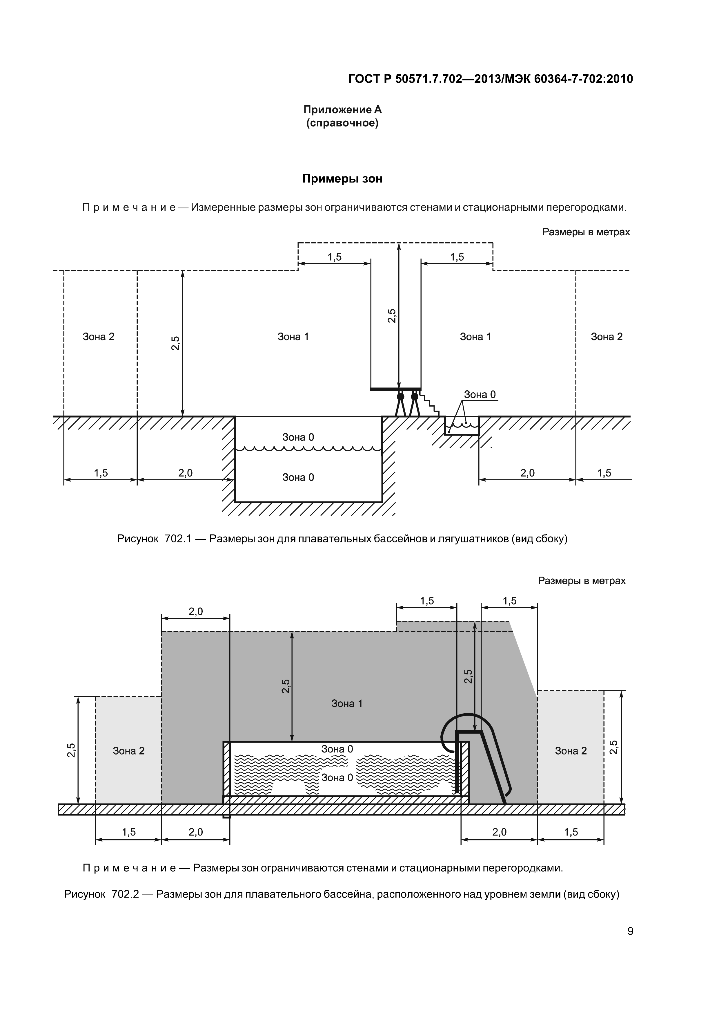
Приложение А (справочное) Примеры зон
Приложение ДА (справочное) Сведения о соответствии ссылочных международных стандартов ссылочным национальным стандартам Российской Федерации (и действующим в этом качестве межгосударственным стандартам)
Библиография
Разработан: Московский институт энергобезопасности и энергосбережения
Утверждён:06.10.2013 Федеральное агентство по техническому регулированию и метрологии (978-ст)
Издан: Стандартинформ (2014 г. )
Расположен в:Техническая документация Электроэнергия СТРОИТЕЛЬНЫЕ МАТЕРИАЛЫ И СТРОИТЕЛЬСТВО Установки в зданиях Системы электроснабжения ЭЛЕКТРОТЕХНИКА Электротехника в целом Экология СТРОИТЕЛЬНЫЕ МАТЕРИАЛЫ И СТРОИТЕЛЬСТВО Установки в зданиях Системы электроснабжения ЭЛЕКТРОТЕХНИКА Электротехника в целом Строительство Стандарты Другие государственные стандарты, применяемые в строительстве Строительные материалы и строительство
Нормативные ссылки:
ГОСТ Р 50571.7.702-2013ГОСТ Р 50571.7.702-2013ГОСТ Р 50571.7.702-2013ГОСТ Р 50571.7.702-2013ГОСТ Р 50571.7.702-2013ГОСТ Р 50571.7.702-2013ГОСТ Р 50571.7.702-2013ГОСТ Р 50571.7.702-2013ГОСТ Р 50571.7.702-2013ГОСТ Р 50571.7.702-2013ГОСТ Р 50571.7.702-2013ГОСТ Р 50571.7.702-2013ГОСТ Р 50571.7.702-2013ГОСТ Р 50571.7.702-2013ГОСТ Р 50571.7.702-2013ГОСТ Р 50571.7.702-2013ГОСТ Р 50571.7.702-2013ГОСТ Р 50571.7.702-2013ГОСТ Р 50571.7.702-2013

© 2013 Ёшкин Кот :-) Карта сайта