Информационная система
«Ёшкин Кот»

Скачать базу одним архивом
Скачать обновления
История создания базы
Карта сайта

Скачать Типовой проект 411-2-143 Альбом I. Общая пояснительная записка. Технологические чертежи. Архитектурно-строительные решения. Конструкции железобетонные

Дата актуализации: 10.08.2017

Типовой проект 411-2-143

Альбом I. Общая пояснительная записка. Технологические чертежи. Архитектурно-строительные решения. Конструкции железобетонные

Обозначение: Типовой проект 411-2-143
Обозначение англ: 411-2-143
Статус:не определен законодательством
Название рус.:Альбом I. Общая пояснительная записка. Технологические чертежи. Архитектурно-строительные решения. Конструкции железобетонные
Дата добавления в базу:01.10.2014
Дата актуализации:05.05.2017
Дата введения:05.05.1981
Оглавление:Содержание альбома
Пояснительная записка
Технологические решения
   Общие данные
   План расположения технологического оборудования. Разрез 1-1
   Бревнотаска со сбрасывателем. Общий вид
   Рольганг навесной ПРДН-6. Общий вид
   Рольганг неприводной к станку ИКБ-40. Общий вид
   Транспортер двухэтажный. Общий вид
   Стол роликовый приставной. Общий вид
   Барабан галтовочный. Общий вид
   Рольганг неприводной. Общий вид
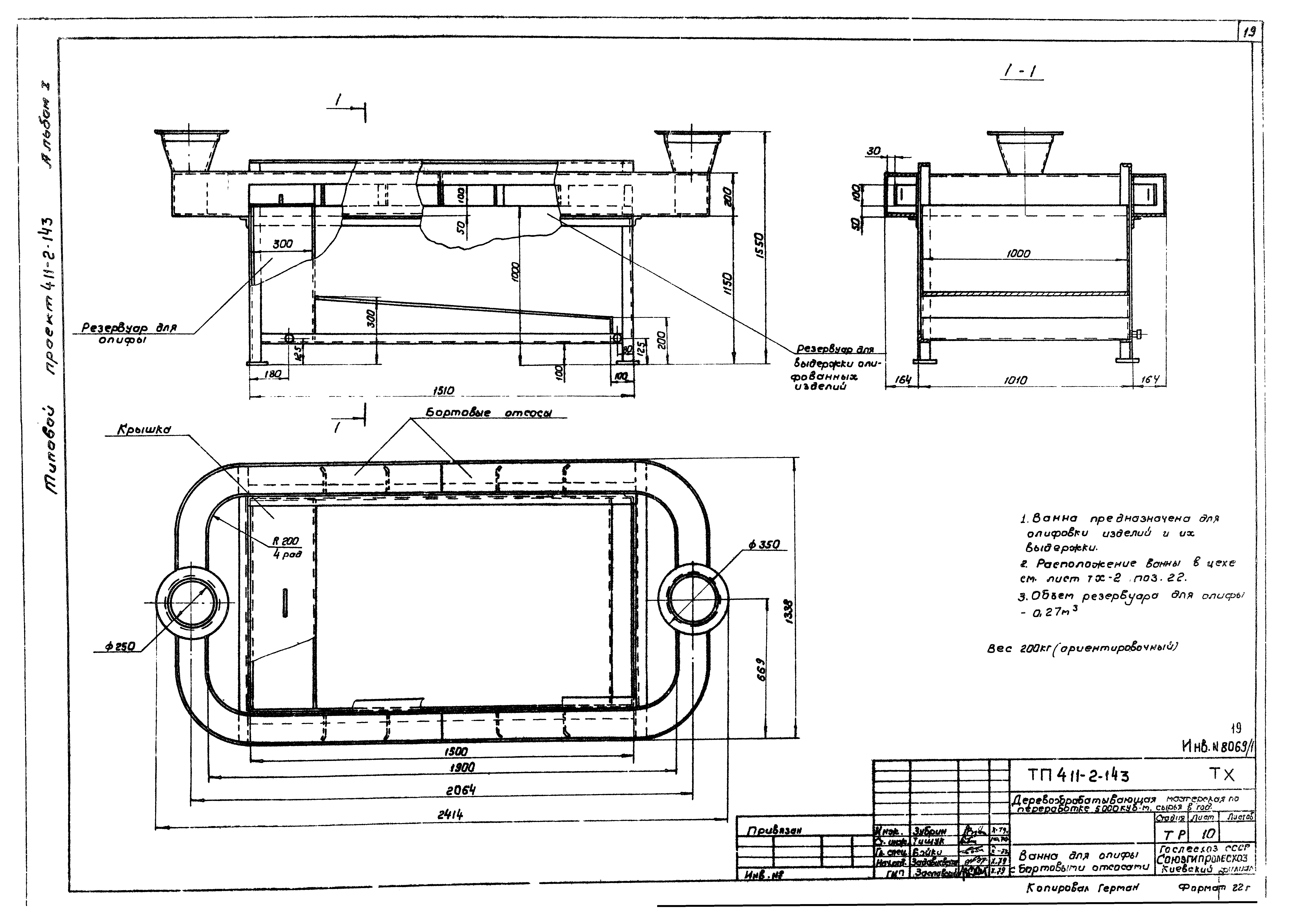
   Ванна для олифы с бортовыми отсосами
   Конвейер выносной ленточный 5050-ВО. Общий вид
   Транспортер поперечный цепной. Общий вид
Архитектурно-строительные решения
   Общие данные
   План на отм. 0.000
   Планы на отм. - 2.050 и - 2.900. План кровли. Венткамера
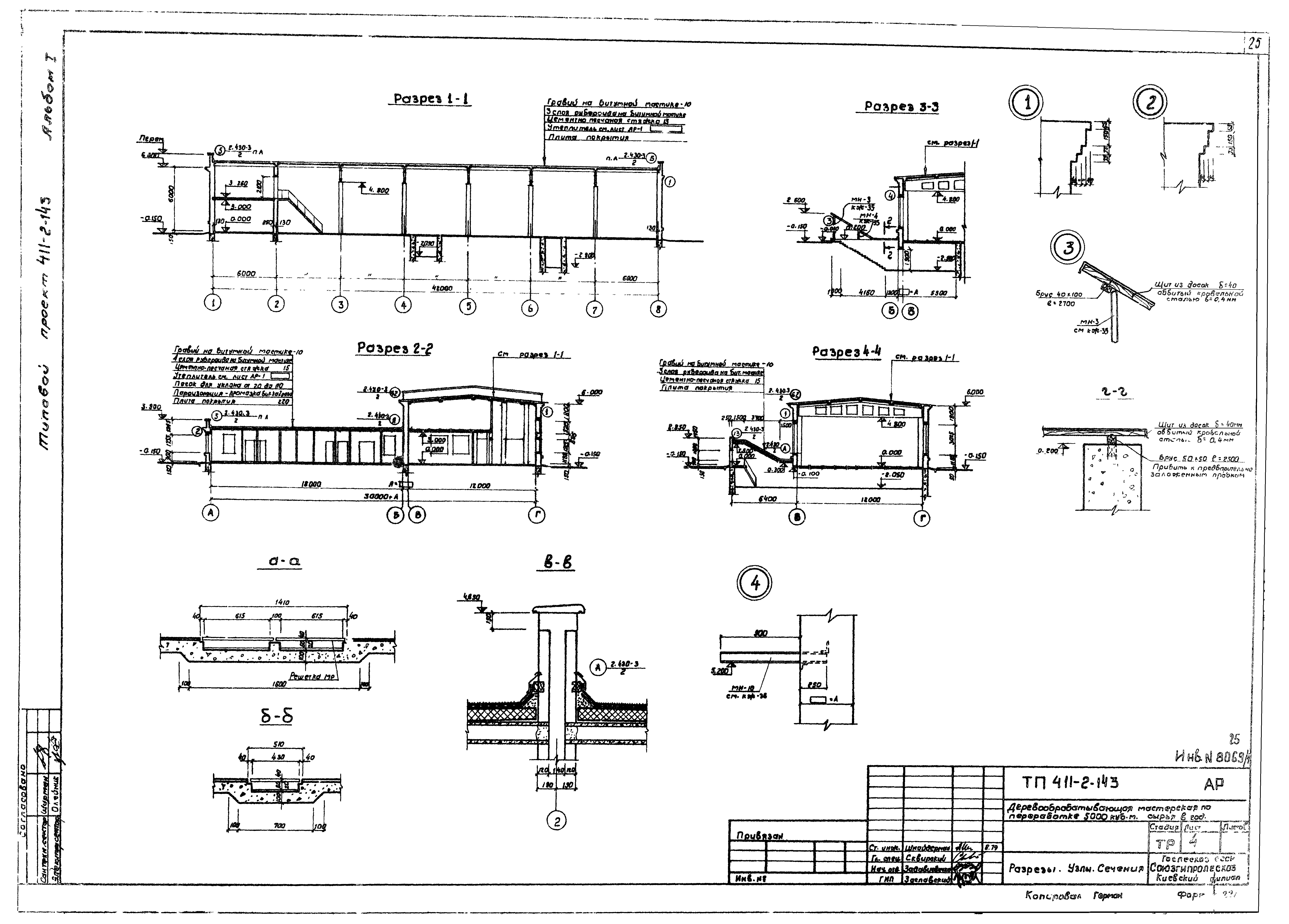
   Разрезы. Узлы. Сечения
   Фасады
   Планы полов. Перемычки
Конструкции железобетонные
   Общие данные
   План фундаментов и сечения 1-1, 2-2, 10-10 - 14-14 (фундаменты монолитные)
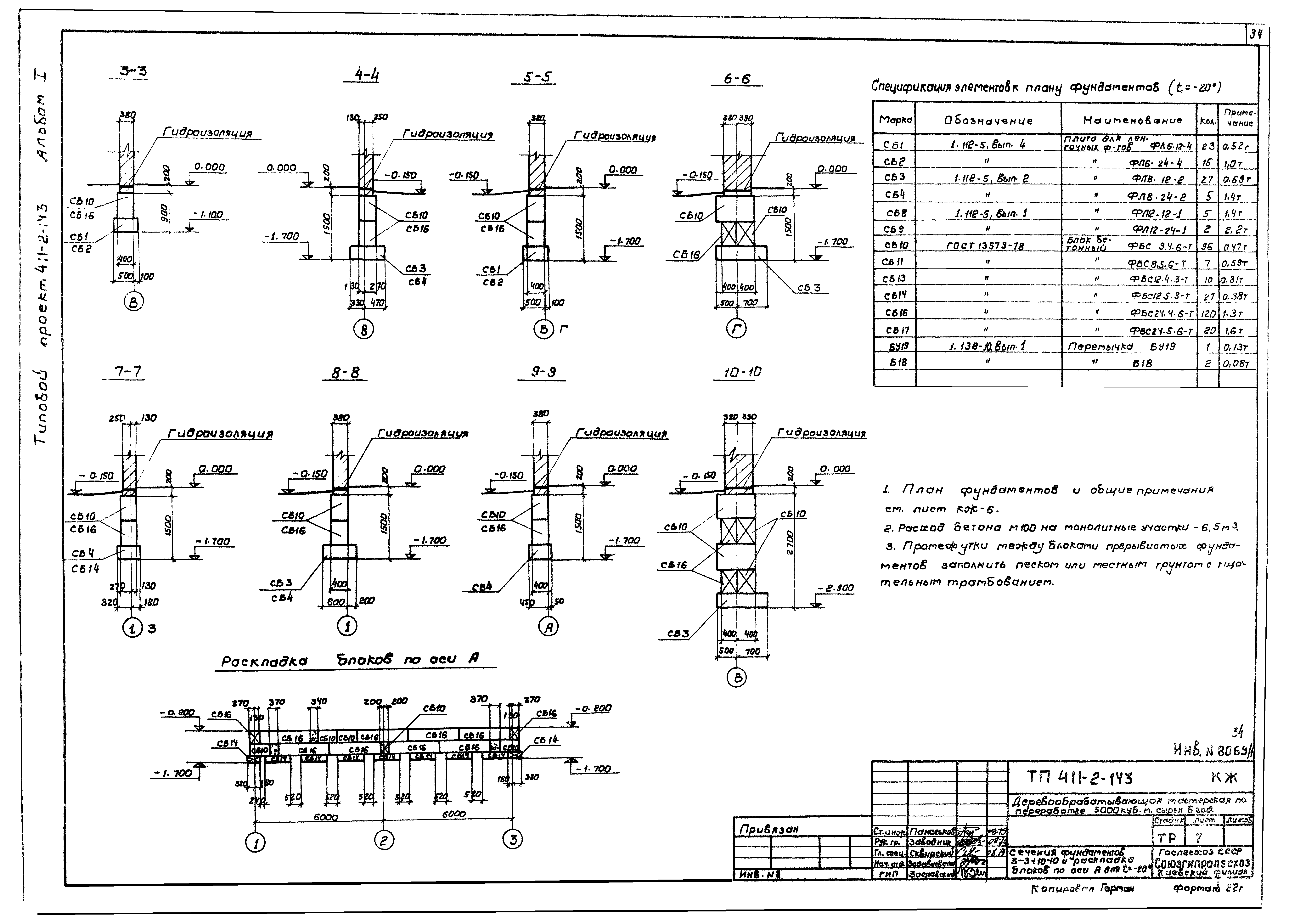
   Сечения фундаментов 3-3 - 9-9
   План фундаментов и сечения 1-1, 2-2, 11-11 - 14-14 (фундаменты сборные)
   Сечения фундаментов 3-3 - 10-10 и раскладка блоков по оси А для t = минус 20 градусов Цельсия
   Раскладка блоков по осям В, Г и З для t = минус 20 градусов Цельсия
   Раскладка блоков по осям 1, 2, 8 и виды А-А, Б-Б, В-В для t = минус 20 градусов Цельсия
   Сечения фундаментов 3-3 - 10-10 и раскладка блоков по оси А для t = минус 30 градусов Цельсия
   Раскладка блоков по осям В, Г и З для t = минус 30 градусов Цельсия
   Раскладка блоков по осям 1, 2, 8 и виды А-А, Б-Б, В-В для t = минус 30 градусов Цельсия
   Сечения фундаментов 3-3 - 10-10 и раскладка блоков по оси А для t = минус 40 градусов Цельсия
   Раскладка блоков по осям В, Г и З для t = минус 40 градусов Цельсия
   Раскладка блоков по осям 1, 2, 8 и виды А-А, Б-Б, В-В для t = минус 40 градусов Цельсия
   Маркировочная схема фундаментов под оборудование, каналов и приямка
   Канал на отм. - 2.050, фундаменты бревнотаски вне цеха
   Фундамент ФОм1, опалубочный чертеж
   Армирование фундамента ФОм1, план, сечения 1-1 - 3-3
   Армирование фундамента ФОм1, сечения 4-4, 5-5
   Фундамент под оборудование ФОм2
   Фундаменты под оборудование ФОм3 - ФОм8
   Фундаменты под оборудование ФОм9 - ФОм13
   Фундаменты под оборудование ФОм14 - ФОм18
   Маркировочные схемы балок покрытия и опорных подушек, плит перекрытия и покрытия
   Разрезы 1-1 - 4-4, балка покрытия Б1, опорные подушки ОП1 - ОП3
   Монолитные участки Ум1 - Ум4
   Металлические лестницы Л1 и Л2, переходной мостик ПМ1
   Эстакада пневмотранспортера
   Эстакада транспортера для выноса отходов, верхние строения
   Узлы верхнего строения
   Короб КД1
   Опора под бункер БУ1, узел 1
   Узлы 2, 3, 6, стойки СК1 - СК3
   Закладные изделия МН1 - МН16, траверса Т1, сетки С1 - С4, анкеры А1, А2, соединительное изделие МС1
   Закладные изделия МН7 - МН12, крышка КР1, соединительное изделие МС2
   Молниезащита, соединительные изделия МС3, МС4
Разработан: Союзгипролесхоз
Утверждён:22.05.1980 Гослесхоз СССР (USSR Gosleskhoz 69)
Расположен в:Техническая документация Строительство Справочные документы Типовые строительные конструкции, изделия и узлы Общероссийский строительный каталог Промышленные предприятия, здания и сооружения Предприятия, здания и сооружения промышленности и электроэнергетики Промышленность деревообрабатывающая Здания общего назначения
Типовой проект 411-2-143Типовой проект 411-2-143Типовой проект 411-2-143Типовой проект 411-2-143Типовой проект 411-2-143Типовой проект 411-2-143Типовой проект 411-2-143Типовой проект 411-2-143Типовой проект 411-2-143Типовой проект 411-2-143Типовой проект 411-2-143Типовой проект 411-2-143Типовой проект 411-2-143Типовой проект 411-2-143Типовой проект 411-2-143Типовой проект 411-2-143Типовой проект 411-2-143Типовой проект 411-2-143Типовой проект 411-2-143Типовой проект 411-2-143Типовой проект 411-2-143Типовой проект 411-2-143Типовой проект 411-2-143Типовой проект 411-2-143Типовой проект 411-2-143Типовой проект 411-2-143Типовой проект 411-2-143Типовой проект 411-2-143Типовой проект 411-2-143Типовой проект 411-2-143Типовой проект 411-2-143Типовой проект 411-2-143Типовой проект 411-2-143Типовой проект 411-2-143Типовой проект 411-2-143Типовой проект 411-2-143Типовой проект 411-2-143Типовой проект 411-2-143Типовой проект 411-2-143Типовой проект 411-2-143Типовой проект 411-2-143Типовой проект 411-2-143Типовой проект 411-2-143Типовой проект 411-2-143Типовой проект 411-2-143Типовой проект 411-2-143Типовой проект 411-2-143Типовой проект 411-2-143Типовой проект 411-2-143Типовой проект 411-2-143Типовой проект 411-2-143Типовой проект 411-2-143Типовой проект 411-2-143Типовой проект 411-2-143Типовой проект 411-2-143Типовой проект 411-2-143Типовой проект 411-2-143Типовой проект 411-2-143Типовой проект 411-2-143Типовой проект 411-2-143Типовой проект 411-2-143Типовой проект 411-2-143Типовой проект 411-2-143Типовой проект 411-2-143Типовой проект 411-2-143Типовой проект 411-2-143

© 2013 Ёшкин Кот :-) Карта сайта