Информационная система
«Ёшкин Кот»

Скачать базу одним архивом
Скачать обновления
История создания базы
Карта сайта

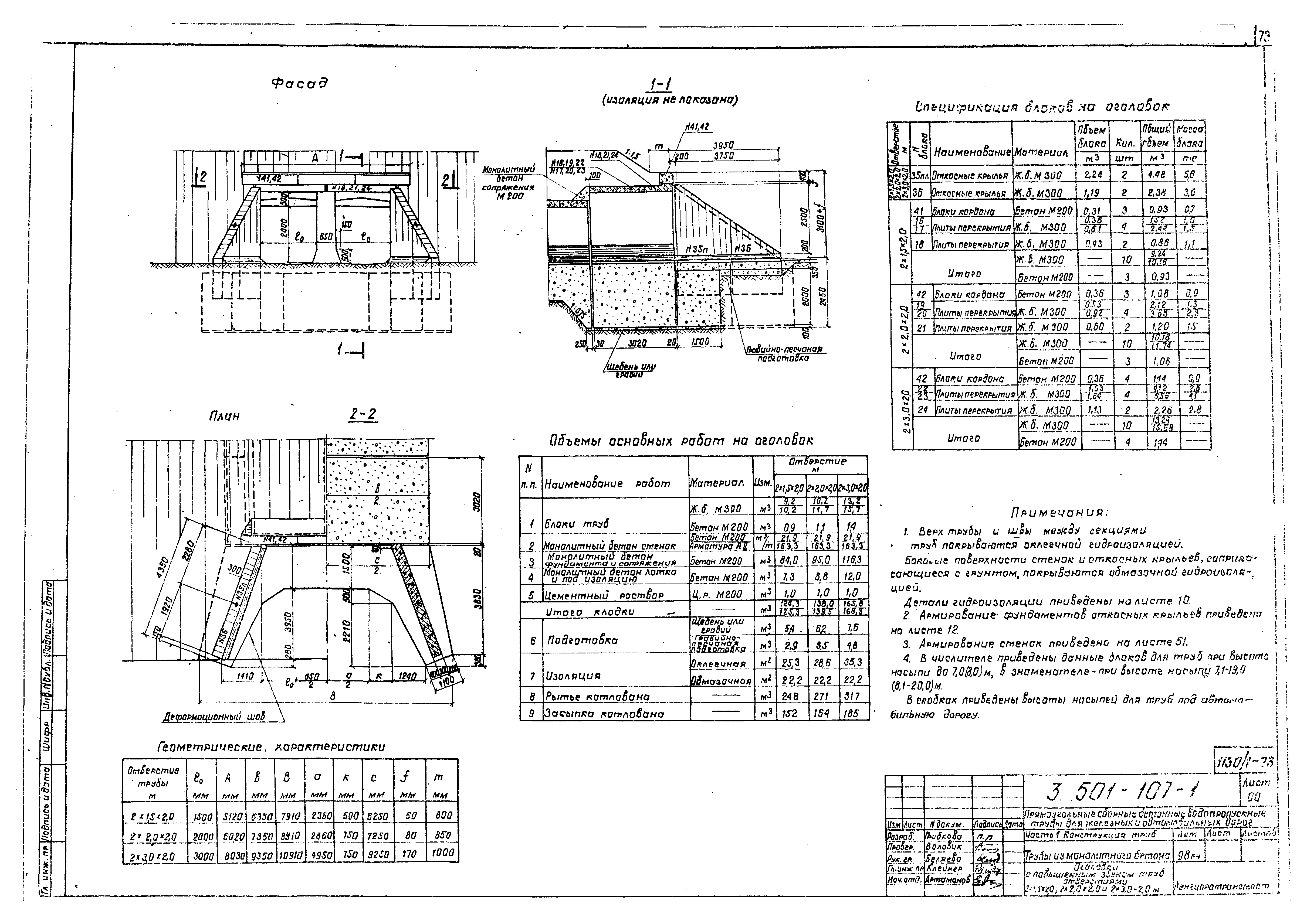
Скачать Серия 3.501-107 Часть 1. Конструкция труб. Материалы для проектирования

Дата актуализации: 10.08.2017

Серия 3.501-107

Часть 1. Конструкция труб. Материалы для проектирования

Обозначение: Серия 3.501-107
Обозначение англ: Series 3.501-107
Статус:заменен
Название рус.:Часть 1. Конструкция труб. Материалы для проектирования
Дата добавления в базу:01.10.2014
Дата актуализации:05.05.2017
Дата введения:01.02.1995
Оглавление:Содержание
Пояснительная записка
Общая часть
Трубы из сборного бетона
Трубы из монолитного бетона
Примеры конструкции труб
Разработан: Ленгипротрансмост
Утверждён:09.06.1978 Минтрансстрой СССР (USSR Mintransstroy П-19064/Л-578)
Расположен в:Техническая документация Строительство Справочные документы Типовые строительные конструкции, изделия и узлы Общероссийский строительный каталог Строительные конструкции, изделия и узлы зданий и сооружений для всех видов строительства Конструкции и изделия сооружений и оборудования зданий Надземные сооружения Конструкции и сооружения транспорта Дорожные водопропускные и водоотводные сооружения
Чем заменён:
Серия 3.501-107Серия 3.501-107Серия 3.501-107Серия 3.501-107Серия 3.501-107Серия 3.501-107Серия 3.501-107Серия 3.501-107Серия 3.501-107Серия 3.501-107Серия 3.501-107Серия 3.501-107Серия 3.501-107Серия 3.501-107Серия 3.501-107Серия 3.501-107Серия 3.501-107Серия 3.501-107Серия 3.501-107Серия 3.501-107Серия 3.501-107Серия 3.501-107Серия 3.501-107Серия 3.501-107Серия 3.501-107Серия 3.501-107Серия 3.501-107Серия 3.501-107Серия 3.501-107Серия 3.501-107Серия 3.501-107Серия 3.501-107Серия 3.501-107Серия 3.501-107Серия 3.501-107Серия 3.501-107Серия 3.501-107Серия 3.501-107Серия 3.501-107Серия 3.501-107Серия 3.501-107Серия 3.501-107Серия 3.501-107Серия 3.501-107Серия 3.501-107Серия 3.501-107Серия 3.501-107Серия 3.501-107Серия 3.501-107Серия 3.501-107Серия 3.501-107Серия 3.501-107Серия 3.501-107Серия 3.501-107Серия 3.501-107Серия 3.501-107Серия 3.501-107Серия 3.501-107Серия 3.501-107Серия 3.501-107Серия 3.501-107Серия 3.501-107Серия 3.501-107Серия 3.501-107Серия 3.501-107Серия 3.501-107Серия 3.501-107Серия 3.501-107Серия 3.501-107Серия 3.501-107Серия 3.501-107Серия 3.501-107Серия 3.501-107Серия 3.501-107Серия 3.501-107Серия 3.501-107Серия 3.501-107Серия 3.501-107Серия 3.501-107Серия 3.501-107Серия 3.501-107Серия 3.501-107Серия 3.501-107Серия 3.501-107

© 2013 Ёшкин Кот :-) Карта сайта