Информационная система
«Ёшкин Кот»

Скачать базу одним архивом
Скачать обновления
История создания базы
Карта сайта

Скачать Типовой проект 3584тм Альбом VIII. Отопление и вентиляция

Дата актуализации: 10.08.2017

Типовой проект 3584тм

Альбом VIII. Отопление и вентиляция

Обозначение: Типовой проект 3584тм
Обозначение англ: 3584тм
Статус:действует
Название рус.:Альбом VIII. Отопление и вентиляция
Дата добавления в базу:01.10.2014
Дата актуализации:05.05.2017
Оглавление:Содержание альбома
Пояснительная записка
Заглавный лист. Перечень чертежей по отоплению и вентиляции
Заглавный лист. Таблицы, условные обозначения
Чертежи по отоплению и вентиляции
   Отопление и вентиляция. Помещения фундамента синхронных компенсаторов на отм. - 2.550; 0.000. Разрез 1-1. Сечение канала по а-а
   Отопление и вентиляция. Схема приточной системы П-1. Схема подводки трубопроводов к калориферам П-1. Схемы В-1 и В-2. Схема отопления мест установки электропанелей. Спецификации
   Отопление и вентиляция. План здания вспомогательного оборудования на отм. 0.000. Сечение канала по А-А
   Отопление и вентиляция. Приточная камера П-1. План, разрезы 1-1, 2-2. Схема обвязки калориферов. Спецификация
   Электрокотельная. План, разрезы 1-1, 2-2. План и вид по а-а площадки под расширительный бак. Примечание
   Схема электрокотельной, спецификация
   Электрокотельная. Опора под 2 электрокотла типа КЭВ-63/0,4. План. Вид А. Разрез 1-1. Спецификация. Примечание
   Электрокотельная. Опора под 2 электрокотла типа КЭВ-63/0,4. Лестница (боковой вид). Узлы А и Б. Деталь поз. "3". Примечания
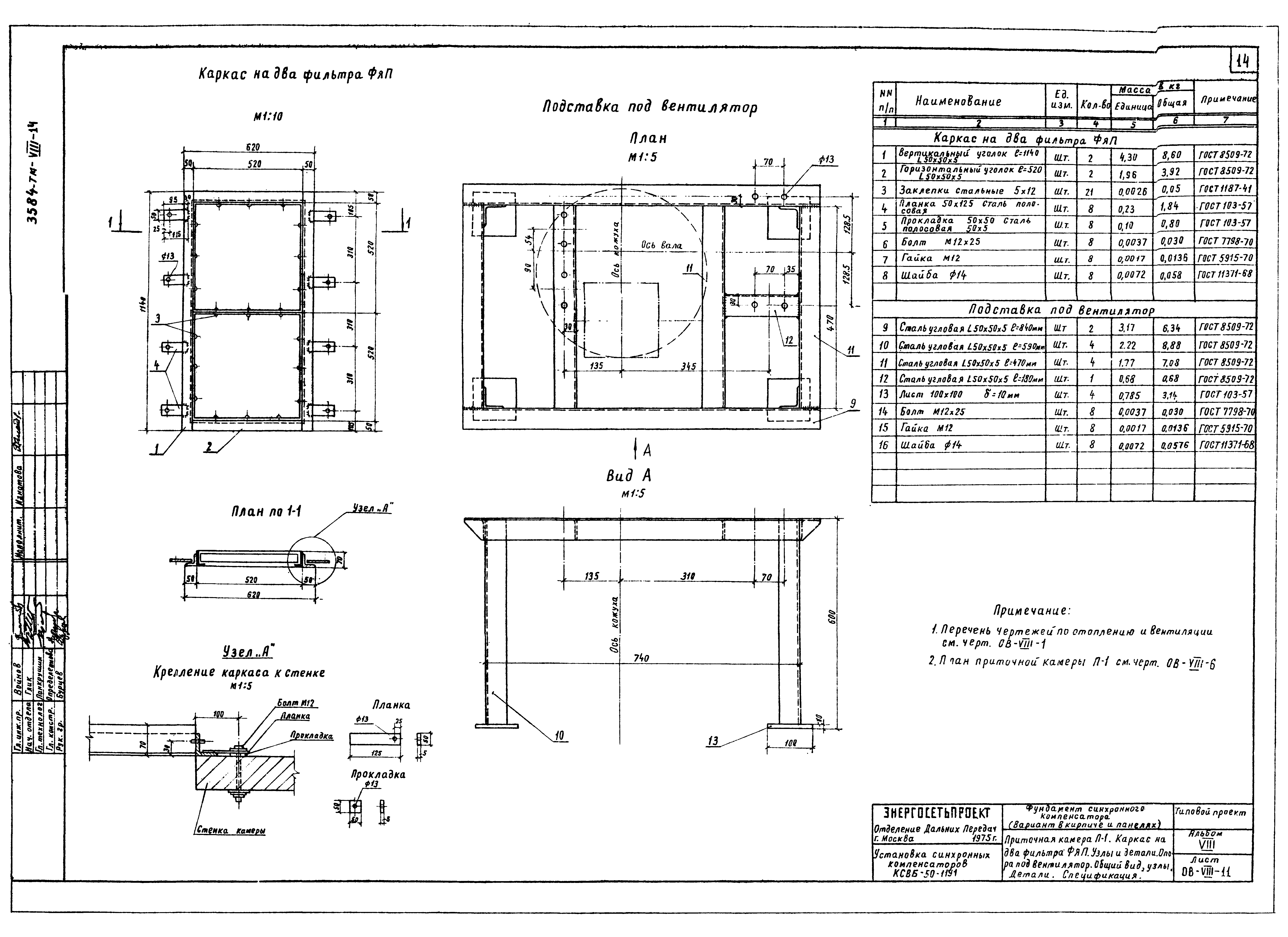
   Приточная камера П-1. Каркас на две ячейки фильтра ФЯП. Узлы и детали. Опора под вентилятор. Общий вид. Узлы, детали. Спецификация
   Приточная камера П-1. Узел воздухозабора. План, разрезы 1-1, 2-2. Узел А. Рама для установки 2-х решеток 225х440. Спецификация
Разработан: Энергосетьпроект Минэнерго СССР
Утверждён:20.08.1976 Энергосетьпроект (Energosetproject 138)
Расположен в:Техническая документация Строительство Справочные документы Типовые строительные конструкции, изделия и узлы Общероссийский строительный каталог Промышленные предприятия, здания и сооружения Предприятия, здания и сооружения промышленности и электроэнергетики Электроэнергетика Схемы электрические для подстанций и линий электропередачи
Типовой проект 3584тмТиповой проект 3584тмТиповой проект 3584тмТиповой проект 3584тмТиповой проект 3584тмТиповой проект 3584тмТиповой проект 3584тмТиповой проект 3584тмТиповой проект 3584тмТиповой проект 3584тмТиповой проект 3584тмТиповой проект 3584тмТиповой проект 3584тмТиповой проект 3584тмТиповой проект 3584тм

© 2013 Ёшкин Кот :-) Карта сайта