Информационная система
«Ёшкин Кот»

Скачать базу одним архивом
Скачать обновления
История создания базы
Карта сайта

Скачать Типовой проект 3584тм Альбом II. Установочные чертежи синхронных компенсаторов и вспомогательных устройств

Дата актуализации: 10.08.2017

Типовой проект 3584тм

Альбом II. Установочные чертежи синхронных компенсаторов и вспомогательных устройств

Обозначение: Типовой проект 3584тм
Обозначение англ: 3584тм
Статус:действует
Название рус.:Альбом II. Установочные чертежи синхронных компенсаторов и вспомогательных устройств
Дата добавления в базу:01.10.2014
Дата актуализации:05.05.2017
Оглавление:Содержание альбома
Чертежи основного комплекта марки ЭП
   Заглавный лист. Перечень чертежей. Пояснительная записка
   Компоновка здания вспомогательного оборудования и синхронных компенсаторов (вариант здания со стеновыми панелями)
   Компоновка здания вспомогательного оборудования и синхронных компенсаторов (вариант здания в кирпиче)
   Установка синхронных компенсаторов на фундаменте
   Совмещенная схема разгрузки и перемещения на фундамент статора и ротора СК
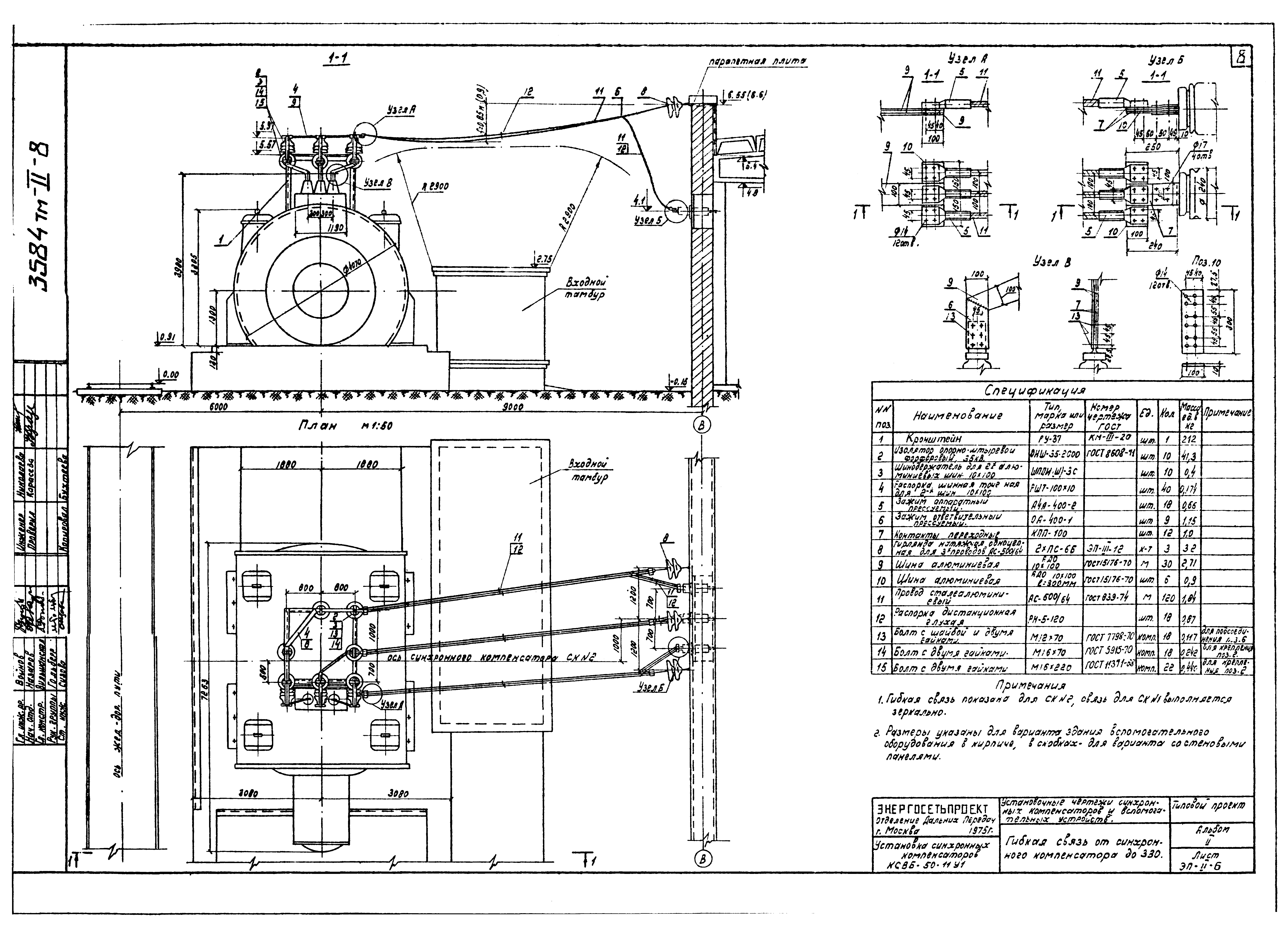
   Гибкая связь от синхронного компенсатора до здания вспомогательного оборудования
   Схема электрическая собственных нужд 380/220 В переменного тока
   Освещение здания вспомогательного оборудования и фундамента синхронных компенсаторов
   Заземление здания вспомогательного оборудования и фундамента синхронных компенсаторов
   Журнал силовых кабелей
   Журнал контрольных кабелей
   Раскладка силовых и контрольных кабелей
   Расстановка кабельных металлоконструкций
   Задание заводу на шкафы КРУ 10 кВ типа К-XII
   Задание заводу на шкафы КРУ 10 кВ типа К-XXVII
   Задание заводу на панели ПСН
   Пример установки синхронных компенсаторов с автотрансформаторными группами 500 кВ
Чертежи основного комплекта марки ТХ
   Заглавный лист по технологической части
   Пояснительная записка
   Система маслосмазки подшипников. Принципиальная схема
   Система маслосмазки подшипников. Разводка маслопроводов в фундаментах СК. План, разрез 1-1
   Система маслосмазки подшипников. Насосная. План, разрез 2-2
   Система маслосмазки подшипников. Насосная. Разрезы 3-3, 4-4. Узел А. Спецификация
   Система маслосмазки подшипников. Бак сливной V = 1 куб. м. Общий вид, узлы, спецификация
   Система водородного охлаждения. Принципиальная схема
   Система водородного охлаждения. Разводка маслопроводов в фундаментах СК. План, разрез 1-1
   Система водородного охлаждения. Разводка газопроводов в фундаментах СК. Разрезы 2-2, 3-3. Узлы I, II. Спецификация
Разработан: Энергосетьпроект Минэнерго СССР
Утверждён:20.08.1976 Энергосетьпроект (Energosetproject 138)
Расположен в:Техническая документация Строительство Справочные документы Типовые строительные конструкции, изделия и узлы Общероссийский строительный каталог Промышленные предприятия, здания и сооружения Предприятия, здания и сооружения промышленности и электроэнергетики Электроэнергетика Схемы электрические для подстанций и линий электропередачи
Типовой проект 3584тмТиповой проект 3584тмТиповой проект 3584тмТиповой проект 3584тмТиповой проект 3584тмТиповой проект 3584тмТиповой проект 3584тмТиповой проект 3584тмТиповой проект 3584тмТиповой проект 3584тмТиповой проект 3584тмТиповой проект 3584тмТиповой проект 3584тмТиповой проект 3584тмТиповой проект 3584тмТиповой проект 3584тмТиповой проект 3584тмТиповой проект 3584тмТиповой проект 3584тмТиповой проект 3584тмТиповой проект 3584тмТиповой проект 3584тмТиповой проект 3584тмТиповой проект 3584тмТиповой проект 3584тмТиповой проект 3584тмТиповой проект 3584тмТиповой проект 3584тмТиповой проект 3584тмТиповой проект 3584тмТиповой проект 3584тмТиповой проект 3584тмТиповой проект 3584тм

© 2013 Ёшкин Кот :-) Карта сайта