Информационная система
«Ёшкин Кот»

Скачать базу одним архивом
Скачать обновления
История создания базы
Карта сайта

Скачать Типовой проект 411-1-133.86 Альбом I. Общая пояснительная записка. Архитектурно-строительные решения. Конструкции железобетонные. Внутренний водопровод и канализация. Отопление и вентиляция. Газоснабжение. Электрическое освещение. Связь и сигнализация

Дата актуализации: 10.08.2017

Типовой проект 411-1-133.86

Альбом I. Общая пояснительная записка. Архитектурно-строительные решения. Конструкции железобетонные. Внутренний водопровод и канализация. Отопление и вентиляция. Газоснабжение. Электрическое освещение. Связь и сигнализация

Обозначение: Типовой проект 411-1-133.86
Обозначение англ: 411-1-133.86
Статус:не определен законодательством
Название рус.:Альбом I. Общая пояснительная записка. Архитектурно-строительные решения. Конструкции железобетонные. Внутренний водопровод и канализация. Отопление и вентиляция. Газоснабжение. Электрическое освещение. Связь и сигнализация
Дата добавления в базу:01.10.2014
Дата актуализации:05.05.2017
Дата введения:05.11.1986
Оглавление:Содержание альбома
Пояснительная записка
Схема генерального плана
Архитектурные решения
   Общие данные
   План на отм. 0.000. План на отм. 3.300
   Разрезы
   Фасады. План кровли
   План чердака. План полов
   Развертки стен по осям Б и Г
   Ведомость перемычек
Конструкции железобетонные
   Общие данные
   План фундаментов. Сечения 1-1 - 5-5
   Междуэтажные и чердачные перекрытия из сборных ж/б плит
   Металлическая лестница МН1 - МН4
Конструкции деревянные
   Общие данные
   Каркас деревянной стены
   Схема расположения лестницы
   Схема расположения элементов крыши
   Узлы 3 - 8
   Схема расположения элементов перекрытия
Отопления и вентиляция
   Общие данные
   План на отм. 0.000; 3.300. План расположения оборудования в топочной
   Схема системы отопления. Схемы обвязки котлов и распределительного бака
Водопровод и канализация
   Общие данные. План систем В1, К1 на отм. 0.000. Схемы систем В1, К1
Газоснабжение
   Общие данные. План на отм. 0.000. Схема газопровода
Электрическое освещение
   Общие данные
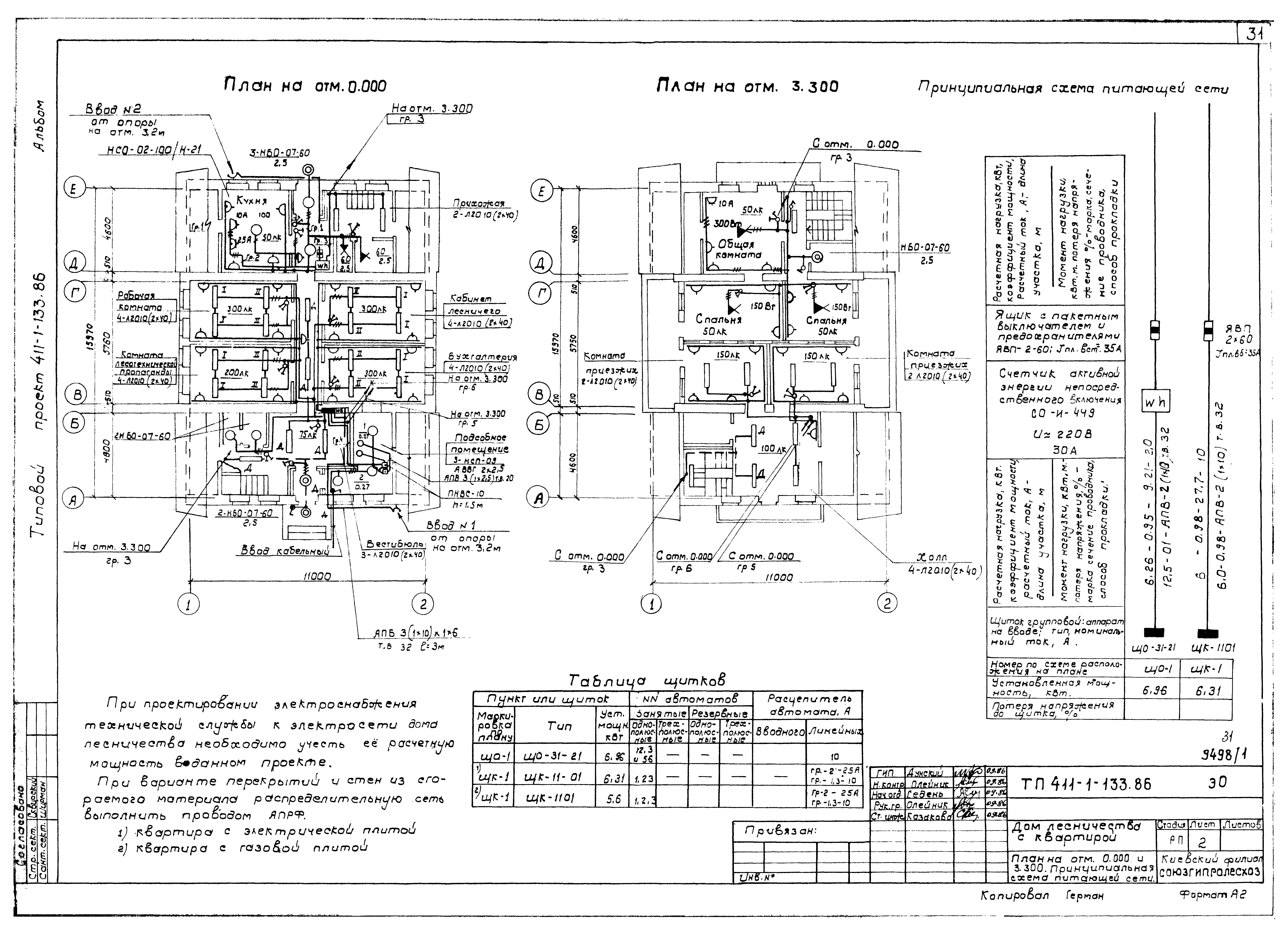
   Планы на отм. 0.000 и 3.300. Принципиальная схема питающей сети
Связь и сигнализация
   Общие данные
   План сетей. Вариант ввода - кабельный
   План сетей. Вариант ввода от опоры
   Схема охранной сигнализации. Схема блокировок
Разработан: Киевский филиал Союзгипролесхоз
Утверждён:24.10.1986 Гослесхоз СССР (USSR Gosleskhoz 28)
Расположен в:Техническая документация Строительство Справочные документы Типовые строительные конструкции, изделия и узлы Общероссийский строительный каталог Промышленные предприятия, здания и сооружения Предприятия, здания и сооружения промышленности и электроэнергетики Промышленность деревообрабатывающая Здания и сооружения разные
Типовой проект 411-1-133.86Типовой проект 411-1-133.86Типовой проект 411-1-133.86Типовой проект 411-1-133.86Типовой проект 411-1-133.86Типовой проект 411-1-133.86Типовой проект 411-1-133.86Типовой проект 411-1-133.86Типовой проект 411-1-133.86Типовой проект 411-1-133.86Типовой проект 411-1-133.86Типовой проект 411-1-133.86Типовой проект 411-1-133.86Типовой проект 411-1-133.86Типовой проект 411-1-133.86Типовой проект 411-1-133.86Типовой проект 411-1-133.86Типовой проект 411-1-133.86Типовой проект 411-1-133.86Типовой проект 411-1-133.86Типовой проект 411-1-133.86Типовой проект 411-1-133.86Типовой проект 411-1-133.86Типовой проект 411-1-133.86Типовой проект 411-1-133.86Типовой проект 411-1-133.86Типовой проект 411-1-133.86Типовой проект 411-1-133.86Типовой проект 411-1-133.86Типовой проект 411-1-133.86Типовой проект 411-1-133.86Типовой проект 411-1-133.86Типовой проект 411-1-133.86Типовой проект 411-1-133.86Типовой проект 411-1-133.86Типовой проект 411-1-133.86

© 2013 Ёшкин Кот :-) Карта сайта