Информационная система
«Ёшкин Кот»

Скачать базу одним архивом
Скачать обновления
История создания базы
Карта сайта

Скачать Типовой проект 903-1-178 Альбом V. Конструкции железобетонные и металлические

Дата актуализации: 10.08.2017

Типовой проект 903-1-178

Альбом V. Конструкции железобетонные и металлические

Обозначение: Типовой проект 903-1-178
Обозначение англ: 903-1-178
Статус:заменен
Название рус.:Альбом V. Конструкции железобетонные и металлические
Дата добавления в базу:01.10.2014
Дата актуализации:05.05.2017
Дата введения:01.11.1987
Оглавление:Содержание альбома
Конструкции железобетонные
   Общие данные
   Маркировочная схема фундаментов и фундаментных балок
   Маркировочная схема фундаментов и фундаментных балок. Фрагменты плана 1 - 5
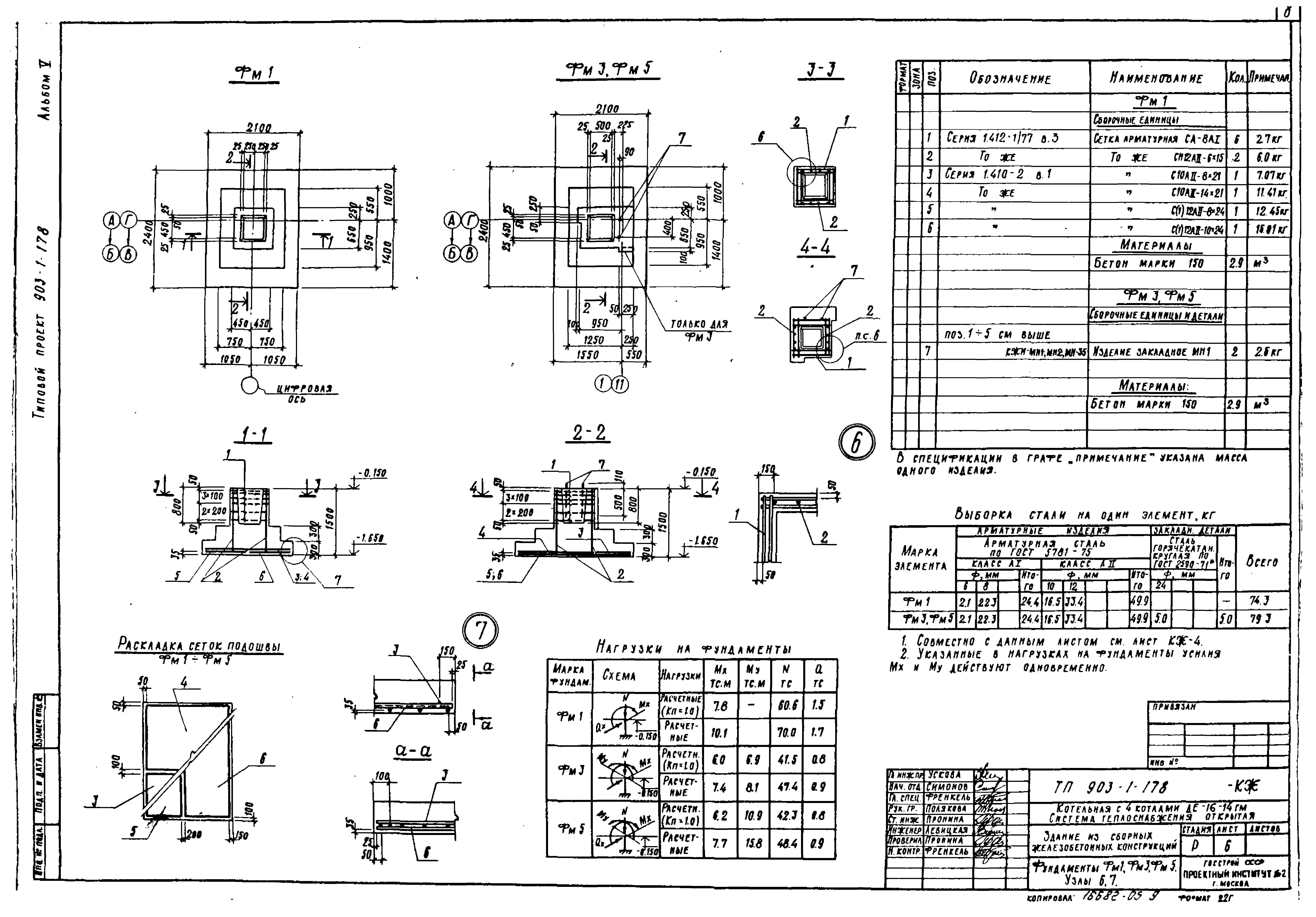
   Фундаменты Фм1, Фм3, Фм5. Узлы 6, 7
   Фундаменты Фм2, Фм4, Фм6. Узел В
   Фундаменты Фм7 - Фм10
   Маркировочная схема подземного хозяйства в осях 1 - 6
   Маркировочная схема подземного хозяйства в осях 6 - 11
   Маркировочная схема люков и раскладки асбестоцементных труб в полу. Узлы 9, 10
   Маркировочная схема подземного хозяйства. Фрагмент плана 1 (приямок ПР1). Фундаменты под оборудование ФО1, ФО2
   Маркировочная схема подземного хозяйства. Фрагменты плана 2, 3(каналы К1, К2)
   Маркировочная схема подземного хозяйства. Фрагмент плана 4. Узлы 11 - 13
   Маркировочная схема подземного хозяйства. Фрагмент плана 4. Сечения 1-1 - 5-5
   Маркировочная схема подземного хозяйства. Фрагмент плана 4. Сечения 6-6 - 13-13
   Маркировочная схема подземного хозяйства. Канал К3
   Маркировочная схема подземного хозяйства. Канал К4 (маркировочная схема перекрытия канала К4)
   Фундаменты под оборудование ФО3, ФО4
   Маркировочная схема опор под трубопроводы и основания под бак
   Маркировочная схема опор под трубопроводы и основания под бак. Фундаменты ФО5 - ФО10, Фм11. Узел 14
   Продувочный колодец ПК1. План. Разрезы. Узлы 15 - 17
   Продувочный колодец ПК1. Армирование
   Маркировочная схема перекрытия газоходов. Участки монолитные Ум4 - Ум6
   Маркировочная схема колонн. Узел 18
   Маркировочные схемы ферм и плит покрытия
   Маркировочная схема подвесок в покрытии
   Маркировочные схемы перекрытий на отм. 3.600; 2.700; 6.600. Узел 19
   Участки монолитные Ум7 - Ум12
   Участки монолитные Ум13 - Ум16
   Маркировочная схема стеновых панелей. Маркировочная схема стоек фахверка и насадок
   Маркировочная схема стеновых панелей. Фрагменты 1 - 8
   Маркировочная схема стеновых панелей. Фрагменты 9 - 11
Конструкции металлические
   Общие данные. Ведомость металлоконструкций по видам профилей на здание
   Техническая спецификация металла на здание
   Техническая спецификация металла на лестницы и площадки
   Маркировочная схема балок площадки на отм. 3.600
   Узлы 1 - 3
   Маркировочная схема балок площадок на отм. 4.200 и 6.600
   Узлы 4 - 7
   Маркировочная схема балок площадки на отм. 3.595 и стальных балок под монолитные участки на отм. 3.520. Лестницы и ограждения
   Узлы 8 - 11
   Маркировочная схема стоек и площадок под технологический трубопровод
   Узлы 12 - 15
   Маркировочная схема балок для подвески технологического трубопровода. Узлы 16 и 17
   Маркировочная схема балок и кронштейнов для подвески электрического и технологического оборудования
   Узлы 18 и 19
   Металлические рамы МР1, МР2, МР3. Узлы 20 - 24
   Маркировочные схемы монорельсов, связей и подвесок в осях "В - Г", "7 - 11" и "А - В", "3 - 4"
Разработан: ЦНИИпроектстальконструкция
Проектный институт №2
Сантехпроект
Утверждён:09.01.1980 Сантехниипроект (4)
Расположен в:Техническая документация Строительство Справочные документы Типовые строительные конструкции, изделия и узлы Общероссийский строительный каталог Промышленные предприятия, здания и сооружения Здания и сооружения санитарно-технические Теплоснабжение Котельные установки Открытые системы теплоснабжения Топливо - газ и мазут
Чем заменён:
Типовой проект 903-1-178Типовой проект 903-1-178Типовой проект 903-1-178Типовой проект 903-1-178Типовой проект 903-1-178Типовой проект 903-1-178Типовой проект 903-1-178Типовой проект 903-1-178Типовой проект 903-1-178Типовой проект 903-1-178Типовой проект 903-1-178Типовой проект 903-1-178Типовой проект 903-1-178Типовой проект 903-1-178Типовой проект 903-1-178Типовой проект 903-1-178Типовой проект 903-1-178Типовой проект 903-1-178Типовой проект 903-1-178Типовой проект 903-1-178Типовой проект 903-1-178Типовой проект 903-1-178Типовой проект 903-1-178Типовой проект 903-1-178Типовой проект 903-1-178Типовой проект 903-1-178Типовой проект 903-1-178Типовой проект 903-1-178Типовой проект 903-1-178Типовой проект 903-1-178Типовой проект 903-1-178Типовой проект 903-1-178Типовой проект 903-1-178Типовой проект 903-1-178Типовой проект 903-1-178Типовой проект 903-1-178Типовой проект 903-1-178Типовой проект 903-1-178Типовой проект 903-1-178Типовой проект 903-1-178Типовой проект 903-1-178Типовой проект 903-1-178Типовой проект 903-1-178Типовой проект 903-1-178Типовой проект 903-1-178Типовой проект 903-1-178Типовой проект 903-1-178Типовой проект 903-1-178Типовой проект 903-1-178Типовой проект 903-1-178Типовой проект 903-1-178Типовой проект 903-1-178

© 2013 Ёшкин Кот :-) Карта сайта