Информационная система
«Ёшкин Кот»

Скачать базу одним архивом
Скачать обновления
История создания базы
Карта сайта

Скачать Типовой проект 503-2-13.86 Альбом I. Общая пояснительная записка. Архитектурные решения. Конструкции железобетонные

Дата актуализации: 10.08.2017

Типовой проект 503-2-13.86

Альбом I. Общая пояснительная записка. Архитектурные решения. Конструкции железобетонные

Обозначение: Типовой проект 503-2-13.86
Обозначение англ: 503-2-13.86
Статус:не определен законодательством
Название рус.:Альбом I. Общая пояснительная записка. Архитектурные решения. Конструкции железобетонные
Дата добавления в базу:01.10.2014
Дата актуализации:05.05.2017
Дата введения:15.04.1986
Оглавление:Содержание альбома
Пояснительная записка
Схема генерального плана
Чертежи основного комплекта марки АР
   Общие данные
   План на отм. 0.000
   План на отм. 2.800
   План на отм. 5.800
   План на отм. 8.400
   Фрагменты плана кровли. Узлы 1 - 4
   Фасады
   Разрезы 1-1 и 2-2
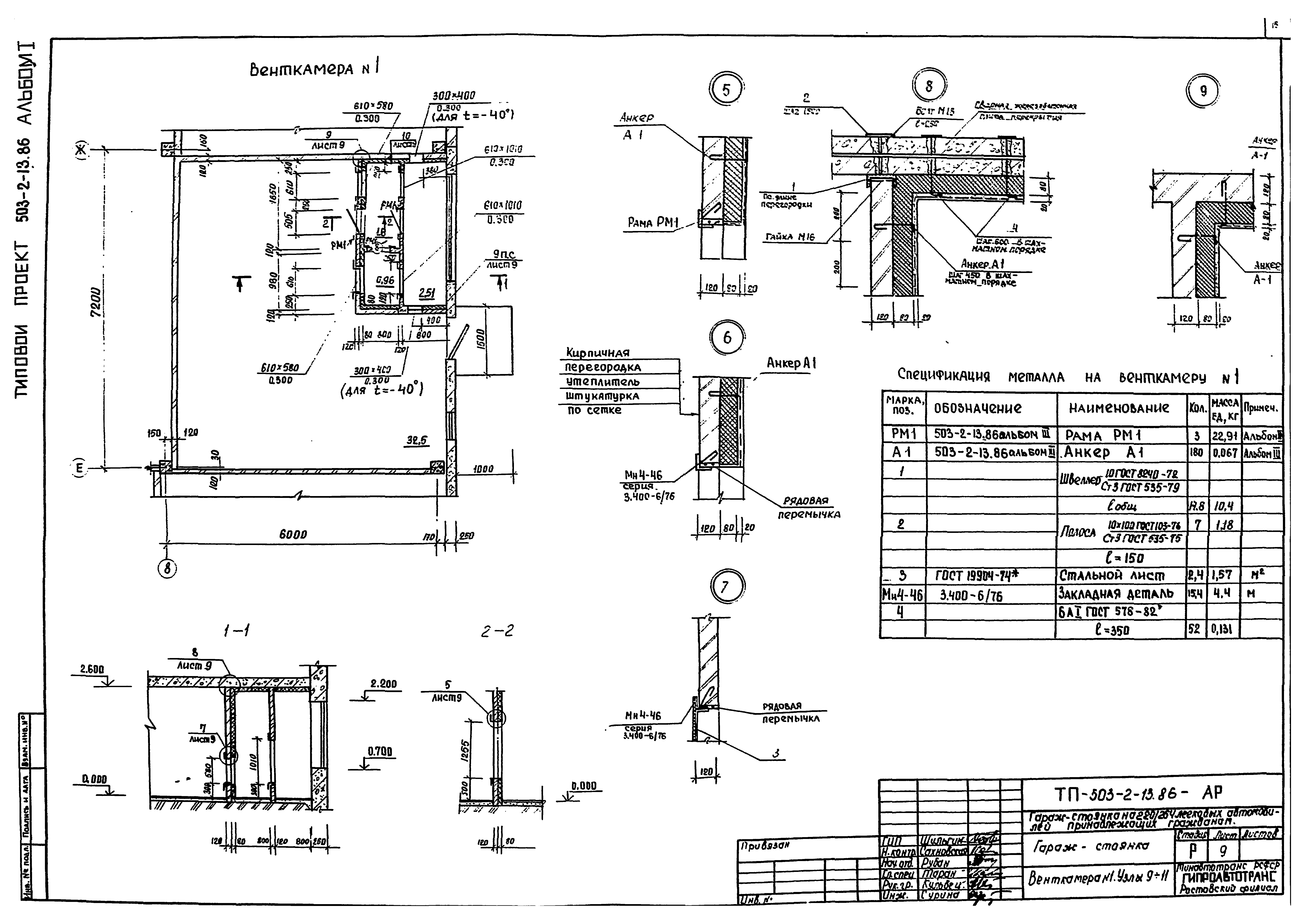
   Венткамера №1. Узлы 5 - 9
   Узлы 10 - 23
   Ворота
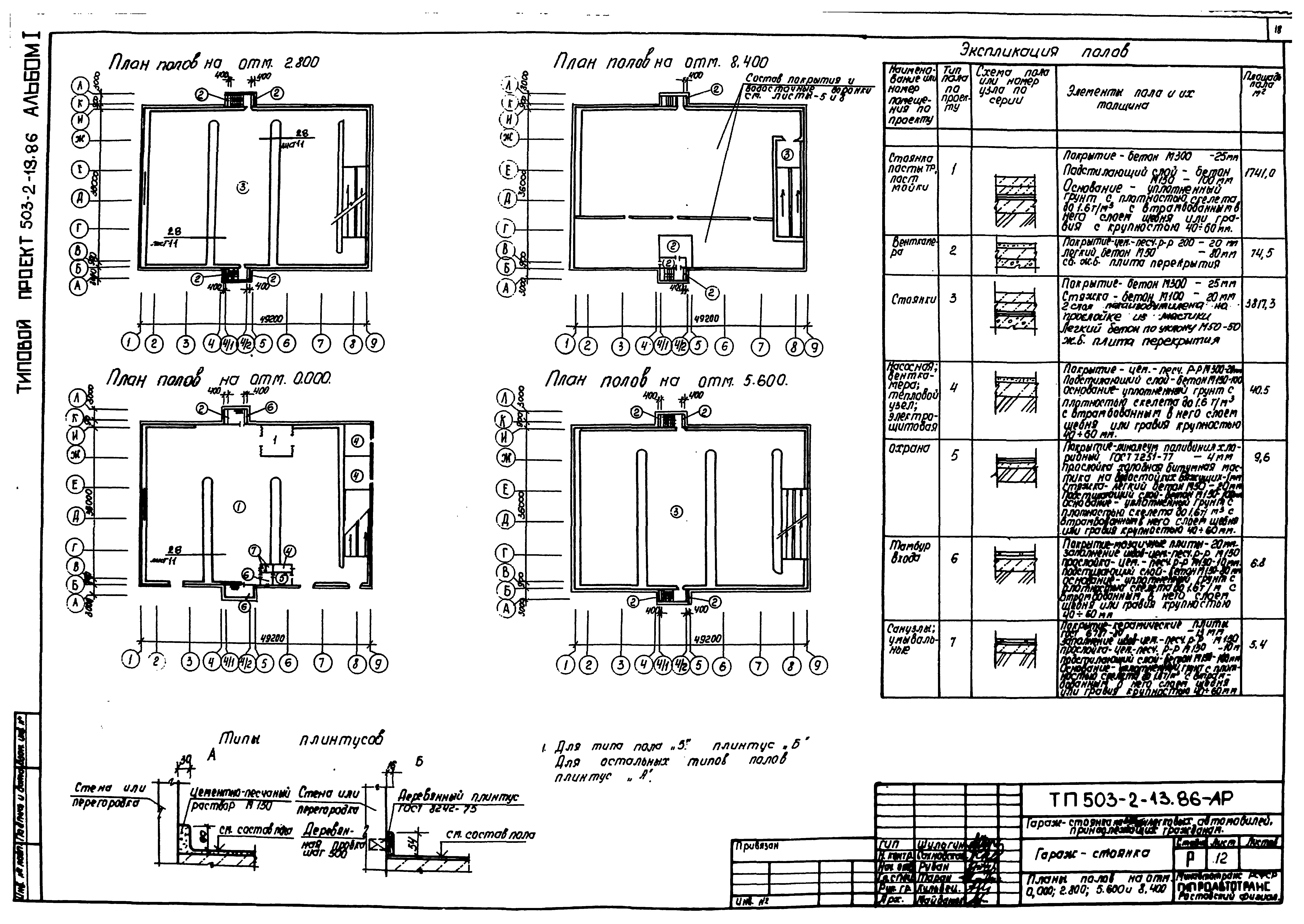
   Планы полов на отм. 0.000; 2.800; 5.600 и 8.400
Чертежи основного комплекта марки КЖ
   Общие данные
   Схема расположения фундаментов и фундаментных балок
   Узлы и сечения 9-9 - 11-11 к схеме расположения фундаментов и фундаментных балок
   Плиты фундаментные
   Фундаменты Фм1, Фм2. Плита фундаментная ПФм8
   Нормативные нагрузки на фундаменты
   Схема расположения элементов подземного хозяйства. Фундаменты ФОм2 - ФОм5
   Фундамент ФОм1
   Приямки ПРм1 - ПРм5
   Схема расположения элементов каркаса на отм. 2.800 и 5.600. Рама по оси И
   Схема расположения элементов каркаса на отм. 8.400. Рама по оси Ж
   Рамы по осям В - Е
   Схемы расположения элементов каркаса на отм. 11.200. Рамы по осям 1; 4/1; 4/2; 7/1; 9; А и Л; Б и К
   Узлы каркаса 1 - 7
   Схемы расположения элементов лестниц
   Схема расположения плит перекрытий на отм. 2.800 и 5.600
   Схема расположения плит покрытий на отм. 8.400 и 11.200
   Монолитные участки Ум1 - Ум5
   Схемы расположения стеновых панелей по осям В; И; 1; 4; 4/1; 4/2 и 5
   Схемы расположения стеновых панелей по осям 9; А; Л; Ж; Г; К; 7/1
   Схемы расположения стеновых панелей. Сечения 1-1 - 7-7. Узлы 1 - 3
Разработан: Ростовский филиал Гипроавтотранса Минавтотранса РСФСР
Утверждён:15.04.1986 Минавтотранс РСФСР (Russian Federation Minavtotrans 10)
Расположен в:Техническая документация Строительство Справочные документы Типовые строительные конструкции, изделия и узлы Общероссийский строительный каталог Промышленные предприятия, здания и сооружения Предприятия, здания и сооружения транспорта Транспорт автомобильный Предприятия автотранспортные, гаражи и стоянки для легковых автомобилей, автобусов и мотоциклов
Типовой проект 503-2-13.86Типовой проект 503-2-13.86Типовой проект 503-2-13.86Типовой проект 503-2-13.86Типовой проект 503-2-13.86Типовой проект 503-2-13.86Типовой проект 503-2-13.86Типовой проект 503-2-13.86Типовой проект 503-2-13.86Типовой проект 503-2-13.86Типовой проект 503-2-13.86Типовой проект 503-2-13.86Типовой проект 503-2-13.86Типовой проект 503-2-13.86Типовой проект 503-2-13.86Типовой проект 503-2-13.86Типовой проект 503-2-13.86Типовой проект 503-2-13.86Типовой проект 503-2-13.86Типовой проект 503-2-13.86Типовой проект 503-2-13.86Типовой проект 503-2-13.86Типовой проект 503-2-13.86Типовой проект 503-2-13.86Типовой проект 503-2-13.86Типовой проект 503-2-13.86Типовой проект 503-2-13.86Типовой проект 503-2-13.86Типовой проект 503-2-13.86Типовой проект 503-2-13.86Типовой проект 503-2-13.86Типовой проект 503-2-13.86Типовой проект 503-2-13.86Типовой проект 503-2-13.86Типовой проект 503-2-13.86Типовой проект 503-2-13.86Типовой проект 503-2-13.86Типовой проект 503-2-13.86Типовой проект 503-2-13.86Типовой проект 503-2-13.86

© 2013 Ёшкин Кот :-) Карта сайта