Информационная система
«Ёшкин Кот»

Скачать базу одним архивом
Скачать обновления
История создания базы
Карта сайта

Скачать Типовой проект 291-3-46.88 Альбом III. Отопление и вентиляция. Водоснабжение и канализация. Автоматизация сантехустройств

Дата актуализации: 10.08.2017

Типовой проект 291-3-46.88

Альбом III. Отопление и вентиляция. Водоснабжение и канализация. Автоматизация сантехустройств

Обозначение: Типовой проект 291-3-46.88
Обозначение англ: 291-3-46.88
Статус:не определен законодательством
Название рус.:Альбом III. Отопление и вентиляция. Водоснабжение и канализация. Автоматизация сантехустройств
Дата добавления в базу:01.10.2014
Дата актуализации:05.05.2017
Дата введения:10.12.1987
Оглавление:Содержание альбома
Отопление и вентиляция
   Общие данные
   План на отм. - 1.200 и 2.100
   План на отм. 1.000
   Схема системы отопления
   Схема систем вентиляции П1, П2
   Схема систем вентиляции П3, П4, У1
   Схема систем вентиляции В1, В2, В3
   Схема систем вентиляции В4, В5, В6, В7
   Установки систем П1 - П4. План. Разрезы
   Установки систем В1 - В5. План. Разрез
   Спецификация отопительно-вентиляционных установок П1 - П4
   Спецификация отопительно-вентиляционных установок В1 - В4
   Схема теплоснабжения установок П1 - П4, У1
   Схема системы обогрева обходных дорожек бассейна
   Узел управления. Схема обвязки насоса БКФ
Водопровод и канализация
   Общие данные
   План технического подполья с системами В5, В4, К1, В0, Т3
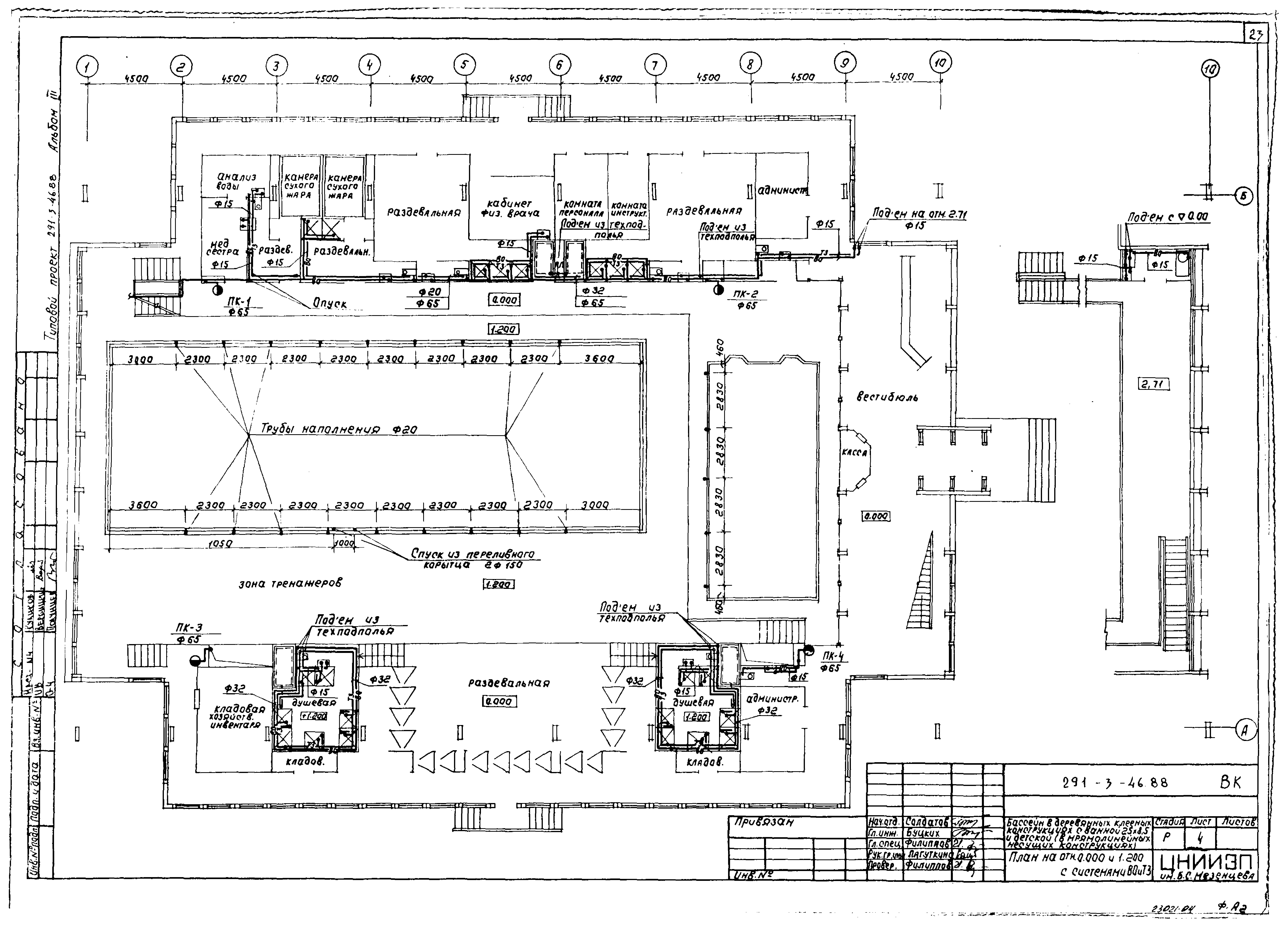
   План на отм. 0.000; 1.200; 2.400 с системами В0 и Т3
   План на отм. 0.000; 1.200; 2.400 с системой К1
   Схемы систем К1
   Схема систем В0 и Т3
   Схемы обвязки ванн и насосно-фильтровальной станции
Автоматизация сантехустройств
   Общие данные
   Системы П1(П2), У1, В3, В1(В2, В4 - В7). Схемы функциональные
   Системы П3(П4). Задвижки З1, З2. Схемы функциональные
   Системы П1(П2), У1, В1(В2, В4 - В7). Контроль температуры наружного воздуха. Схемы электрические принципиальные
   Система П3(П4). Схема электрическая принципиальная
   Щит управления. Сигнализация. Электропитание. Схемы электрические принципиальные
   Задвижки З1-у, З2-у. Схемы электрические принципиальные
   Задвижки З1-у, З2-у. Сигнализация. Схемы электрические принципиальные
   Щит системы П3(П4). Схема соединения и подключения внешних проводок
   Задвижки З1-у, З2-у. Щит управления. Схемы соединений и подключения внешних проводок
   Фрагмент плана технического подполья. План расположения
   Фрагменты планов на отм. 0.000 и технического подполья. Планы расположения
Разработан: ЦНИИЭП им. Б.С. Мезенцева Госгражданстроя
Утверждён:10.12.1987 Госгражданстрой (Gosgrazhdanstroy 405)
Издан: ЦИТП Госстроя СССР (CITP, Gosstroy (USSR) 1988 г. )
Расположен в:Техническая документация Строительство Справочные документы Типовые строительные конструкции, изделия и узлы Общероссийский строительный каталог Общественные здания в городах и поселках городского типа Физкультурно-оздоровительные и спортивные здания и сооружения Сооружения для водных видов спорта
Типовой проект 291-3-46.88Типовой проект 291-3-46.88Типовой проект 291-3-46.88Типовой проект 291-3-46.88Типовой проект 291-3-46.88Типовой проект 291-3-46.88Типовой проект 291-3-46.88Типовой проект 291-3-46.88Типовой проект 291-3-46.88Типовой проект 291-3-46.88Типовой проект 291-3-46.88Типовой проект 291-3-46.88Типовой проект 291-3-46.88Типовой проект 291-3-46.88Типовой проект 291-3-46.88Типовой проект 291-3-46.88Типовой проект 291-3-46.88Типовой проект 291-3-46.88Типовой проект 291-3-46.88Типовой проект 291-3-46.88Типовой проект 291-3-46.88Типовой проект 291-3-46.88Типовой проект 291-3-46.88Типовой проект 291-3-46.88Типовой проект 291-3-46.88Типовой проект 291-3-46.88Типовой проект 291-3-46.88Типовой проект 291-3-46.88Типовой проект 291-3-46.88Типовой проект 291-3-46.88Типовой проект 291-3-46.88Типовой проект 291-3-46.88Типовой проект 291-3-46.88Типовой проект 291-3-46.88Типовой проект 291-3-46.88Типовой проект 291-3-46.88Типовой проект 291-3-46.88Типовой проект 291-3-46.88Типовой проект 291-3-46.88Типовой проект 291-3-46.88Типовой проект 291-3-46.88

© 2013 Ёшкин Кот :-) Карта сайта