Скачать Типовой проект 411-2-190.88 Альбом 4. Силовое электрооборудование. Электрическое освещение. Связь и сигнализация. Автоматизация санитарно-технических системДата актуализации: 10.08.2017 Типовой проект 411-2-190.88
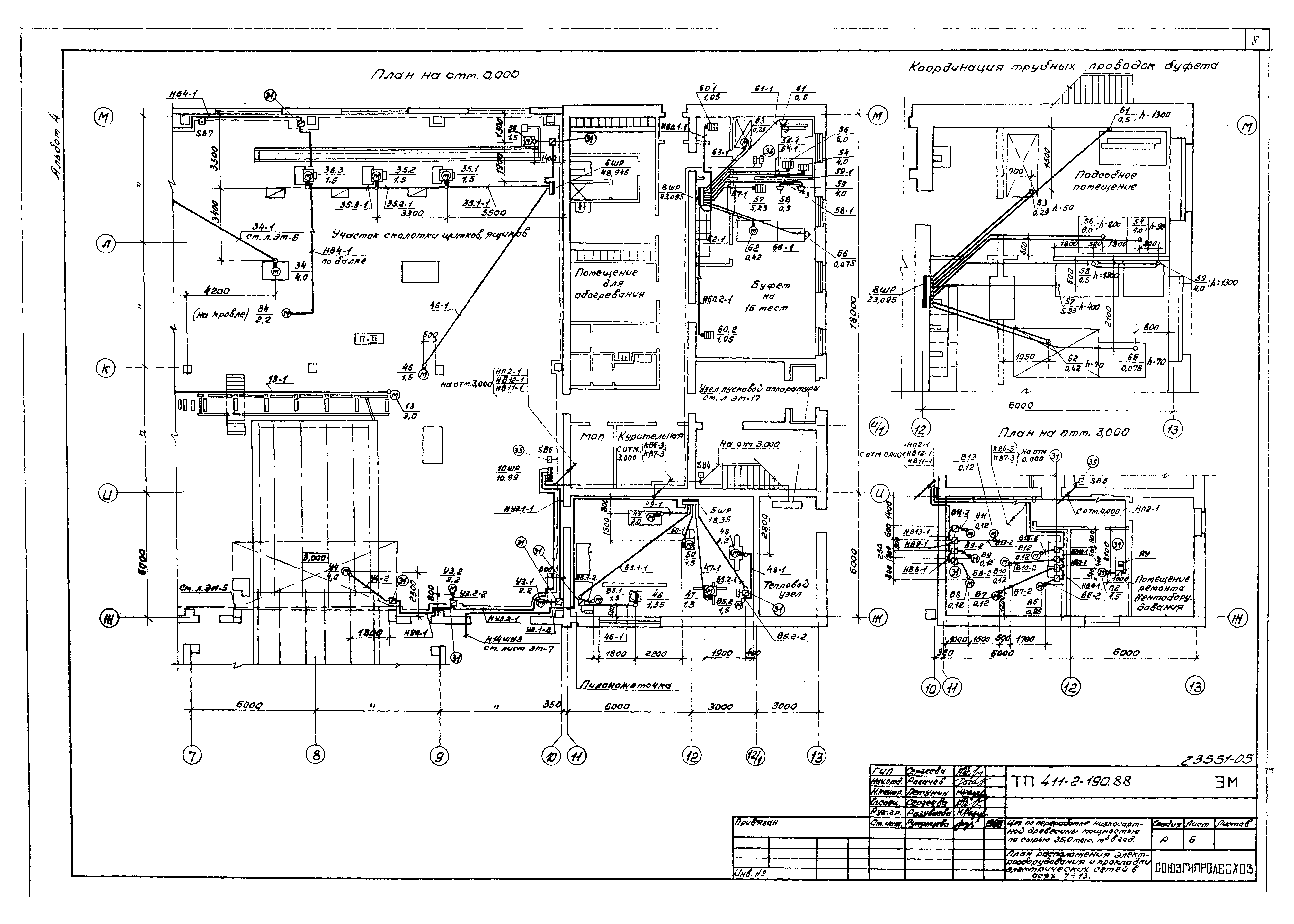
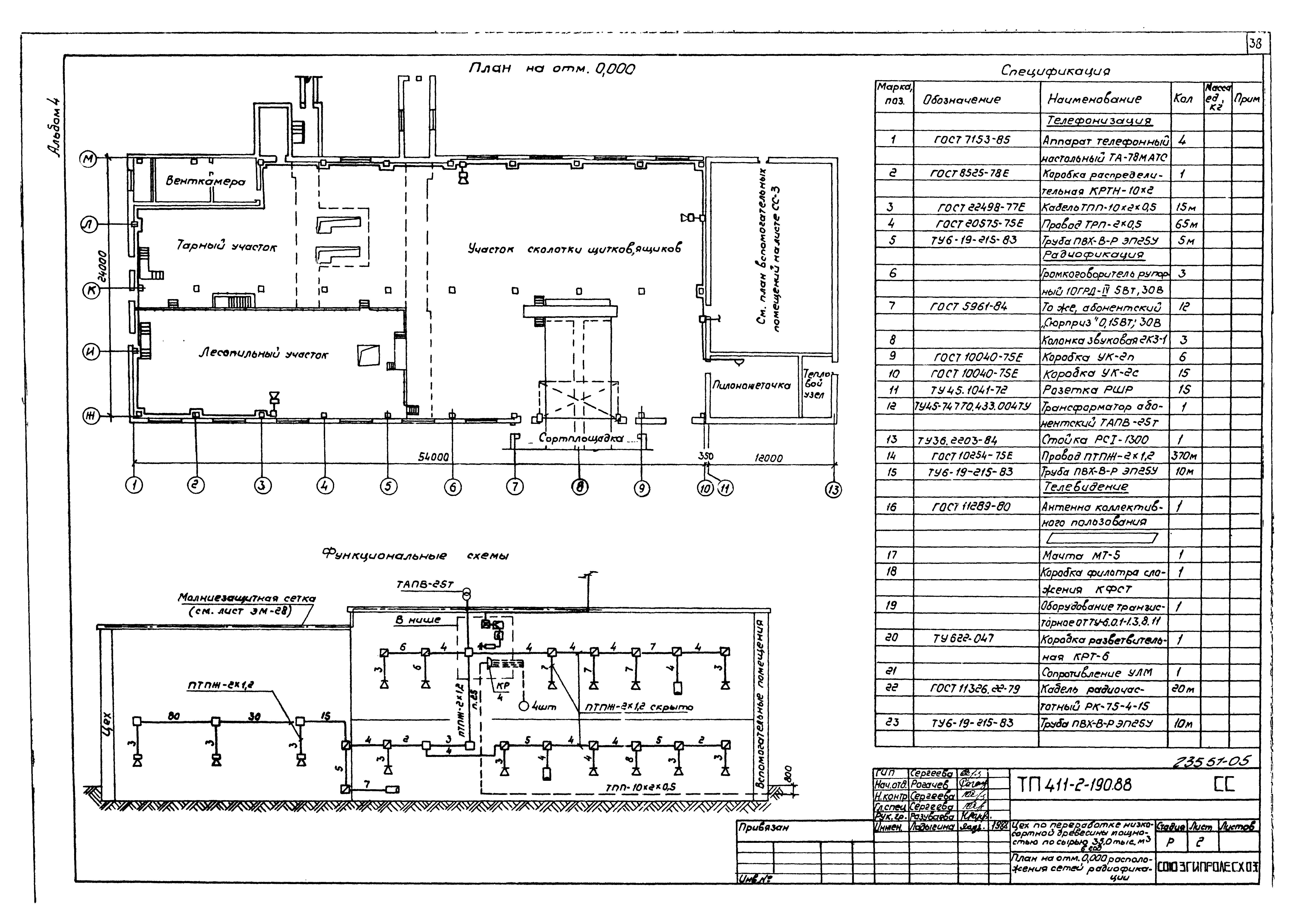
Альбом 4. Силовое электрооборудование. Электрическое освещение. Связь и сигнализация. Автоматизация санитарно-технических системОбозначение: | Типовой проект 411-2-190.88 | Обозначение англ: | 411-2-190.88 | Статус: | не определен законодательством | Название рус.: | Альбом 4. Силовое электрооборудование. Электрическое освещение. Связь и сигнализация. Автоматизация санитарно-технических систем | Дата добавления в базу: | 01.10.2014 | Дата актуализации: | 05.05.2017 | Дата введения: | 25.11.1988 | Оглавление: | Содержание альбома Силовое электрооборудование Общие данные План питающей сети и магистрали зануления План расположения электрооборудования и прокладки электрических сетей в осях 1 - 7 План расположения электрооборудования и прокладки электрических сетей в осях 7 - 13 План расположения электрооборудования и прокладки электрических сетей в осях А - К План расположения электрооборудования и прокладки электрических сетей на отм. - 2.200 Спецификация к чертежам Эм-5 - ЭМ-8, ЭМ-26, ЭМ-27 Спецификация к чертежам Эм-5 - ЭМ-8, ЭМ-26, ЭМ-27. Сводка кабелей проводов и труб Схема принципиальная питающей и распределительной сети Схема принципиальная электрическая управления пожарной задвижкой Схема подключения пожарной задвижки Отключение вентсистем при пожаре. Схема электрическая принципиальная управления. Схема подключения Механизмы поз. 1; 2.1; 2.2; 5.1; 5.2; 6; 8 - 10; 12.1; 12.2; 15, 16, 18 - 20; 25.1; 25.2; 29.1; 29.2; 40.1; 40.2; 41; 42. Схемы электрические принципиальные управления Механизмы поз. 1; 2.1; 2.2; 5.1; 5.2; 7; 8; 40.1; 40.2; 42.6. Схема подключения Механизмы поз. 9; 10; 12.1; 12.2; 15, 16, 17; 19; 20; 23; 25.1; 25.2; 29.1; 29.2. Схема подключения Пневмотранспортер В1(В2). Схема электрическая принципиальная управления Пневмотранспортер В1 и В2. Схема подключения План расположения электрооборудования электропроводок цепей управления на отм. 0.000 План расположения электрооборудования электропроводок цепей управления на отм. - 2.200 и 5.850 Молниезащита Ведомости Электрическое освещение Общие данные Планы расположения электрического оборудования и прокладки электрических сетей производственных помещений в осях Ж - М Планы расположения электрического оборудования и прокладки электрических сетей сортплощадки в осях А - Ж Планы расположения электрического оборудования и прокладки электрических сетей вспомогательных помещений Ведомости Связь и сигнализация Общие данные План на отм. 0.000 расположения сетей радиофикации Вспомогательные помещения. Планы на отм. 0.000 и 3.000 расположения сетей телефонизации и радиофикации, телевидения Комплексная телефонная сеть Вспомогательные помещения. Комплексная телефонная сеть Схемы устройств связи и сигнализации Спецификация к листам СС-4 - СС-6 Автоматизация отопления и вентиляции Общие данные Приточная система П1. Схема функциональная Приточная система П1. Схема электрическая принципиальная управления Приточная система П1. Схема электрическая принципиальная регулирования Приточная система П1. Схема внешних проводок. План расположения Приточная система П2. Схема функциональная Приточная система П2. Схема электрическая принципиальная управления Приточная система П2. Схема внешних проводок. План расположения Воздушно-тепловая завеса УЗ. Схема функциональная. Схема электрическая принципиальная управления Воздушно-тепловая завеса УЗ. Схема внешних проводок. План расположения Узел управления теплового пункта. Схема функциональная. Схема трубных проводок | Разработан: | Союзгипролесхоз
| Утверждён: | 21.11.1988 Госкомлес СССР (USSR Goskomles 31)
| Издан: | ЦИТП Госстроя СССР (CITP, Gosstroy (USSR) 1989 г. )
| Расположен в: |
|
                                                     
|