Информационная система
«Ёшкин Кот»

Скачать базу одним архивом
Скачать обновления
История создания базы
Карта сайта

Скачать Типовой проект 411-2-156.85 Альбом III. Силовое и осветительное электрооборудование. Автоматизация санитарно-технических систем и технологических процессов. Связь и сигнализация. Задание заводу-изготовителю

Дата актуализации: 10.08.2017

Типовой проект 411-2-156.85

Альбом III. Силовое и осветительное электрооборудование. Автоматизация санитарно-технических систем и технологических процессов. Связь и сигнализация. Задание заводу-изготовителю

Обозначение: Типовой проект 411-2-156.85
Обозначение англ: 411-2-156.85
Статус:не определен законодательством
Название рус.:Альбом III. Силовое и осветительное электрооборудование. Автоматизация санитарно-технических систем и технологических процессов. Связь и сигнализация. Задание заводу-изготовителю
Дата добавления в базу:01.10.2014
Дата актуализации:05.05.2017
Дата введения:06.07.1984
Оглавление:Содержание альбома
Силовое электрооборудование
   Общие данные
   Расчет электрических нагрузок
   План на отм. 0.000 в осях 1 - 8; А - Г
   План на отм. 0.000 в осях 8 - 13; А - Г
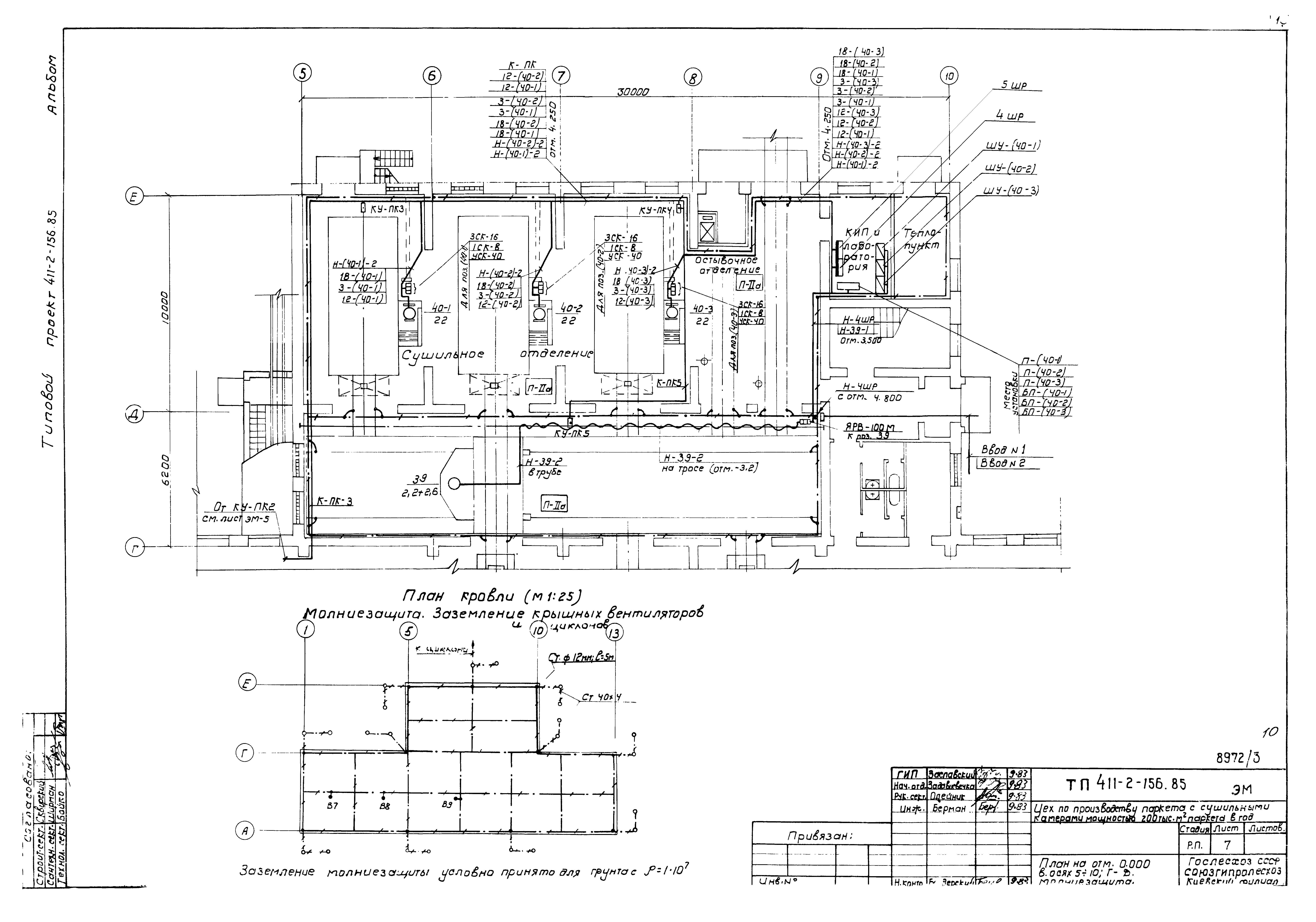
   План на отм. 0.000 в осях 5 - 10; Г - Д. Молниезащита
   План на отм. 4.800
   Принципиальная схема распределительной сети 1ШР
   Принципиальная схема распределительной сети 2ШР, 12ШР
   Принципиальная схема распределительной сети 4ШР, 5ШР
   Принципиальная схема распределительной сети 5ШР, 10ШР
   Принципиальная схема распределительной сети 7ШР
   Принципиальная схема распределительной сети 8ШР
   Принципиальная схема распределительной сети 9ШР
   Принципиальная схема распределительной сети 11ШР
   Принципиальная схема распределительной сети 13ШР
   Буфет. План. Принципиальная схема щита 14ШР
   Схемы электропроводок поз. 21, 1, 40, 24
   Схемы электропроводок поз. 22, 29
   Отключение вентсистем. Схема принципиальная управления. Схема подключений
   Отключение вентсистем. Сборка аппаратуры. Конструкция
   Принципиальная схема питающей сети
   Сводная спецификация
   Основные ведомости. Ведомость электромонтажных работ
   Основные ведомости. Ведомость изделий МЭЗ
Электроосвещение
   Общие данные
   План на отм. 0.000 в осях 1 - 8; А - Г
   План на отм. 0.000 в осях 8 - 13; А - Г. План питающей сети
   План на отм. 0.000 в осях 5 - 10; Г - Е. Ведомость объемов электромонтажных работ
   План на отм. 3.600 и 4.800. Таблица щитков. Схема питающей сети
   Крепление кабеля и люминесцентных светильников на тросе
   Сводная спецификация
Связь и сигнализация
   Общие данные
   Пожарная сигнализация. Скелетная схема
   Пожарная сигнализация. Шкаф для аккумуляторов
   Радиофикация и телефонизация. План сетей. Скелетные схемы
   План на отм. 0.000
   План на отм. 4.800
   Сводная спецификация
Автоматизация технологии производства
   Общие данные
   Лесорама поз. 24 и транспортер поз. 71. Схема электрическая принципиальная управления
   Ленточные конвейеры поз. 72, 73, 74. Схема электрическая принципиальная управления
   Рольганг с перекладчиком. Схема электрическая принципиальная управления
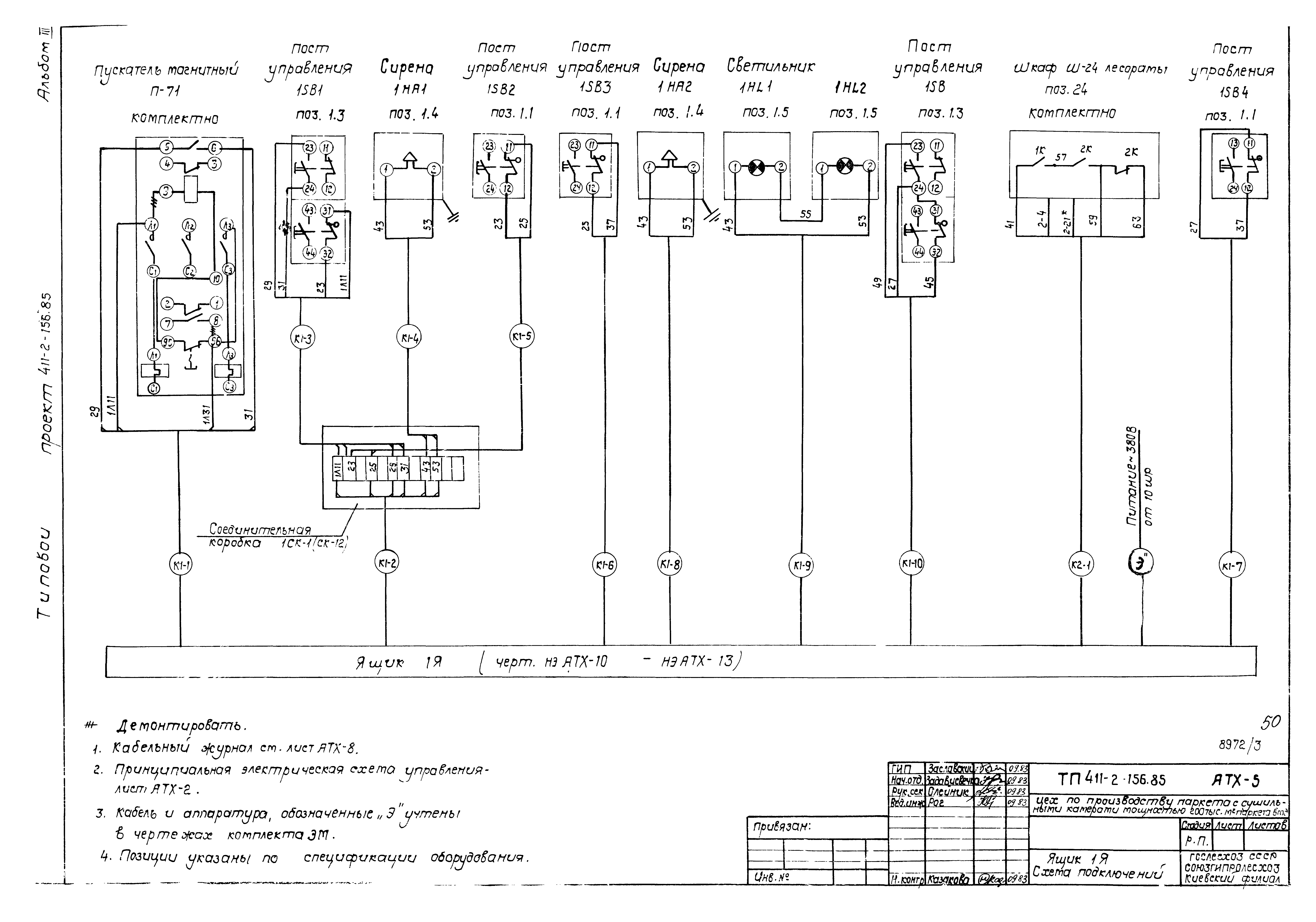
   Ящик 1Я. Схема подключений
   Ящик 2Я. Схема подключений
   Ящик 3Я. Схема подключений
   Кабельный журнал
Автоматизация отопления и вентиляции
   Общие данные
   Приточная система П1(П2). Схема автоматизации технологическая
   Приточная система П3(П4). Схема автоматизации технологическая
   Приточная система П1(П2). Схема электрическая принципиальная управления
   Приточная система П1(П2). Схема электрическая принципиальная регулирования
   Приточная система П3(П4). Схема электрическая принципиальная управления
   Пневмотранспорт ПТ1. Схема электрическая принципиальная управления
   Пневмотранспорт ПТ2. Схема электрическая принципиальная управления
   Пневмотранспорт ПТ3, ПТ4. Схема электрическая принципиальная управления
   Пневмотранспорт ПТ5. Схема электрическая принципиальная управления
   Агрегаты Р1, Р2 (Р3, Р4). Схема электрическая принципиальная управления
   Вентсистема В2 (В3, В4). Схема электрическая принципиальная управления
   Вентсистема В7 (В8, В9). Схема электрическая принципиальная управления
   Воздушная завеса У1(У2). Схема электрическая принципиальная управления
   Ящик 4Я(5Я). Схема подключений
   Ящик 6Я(7Я). Схема подключений
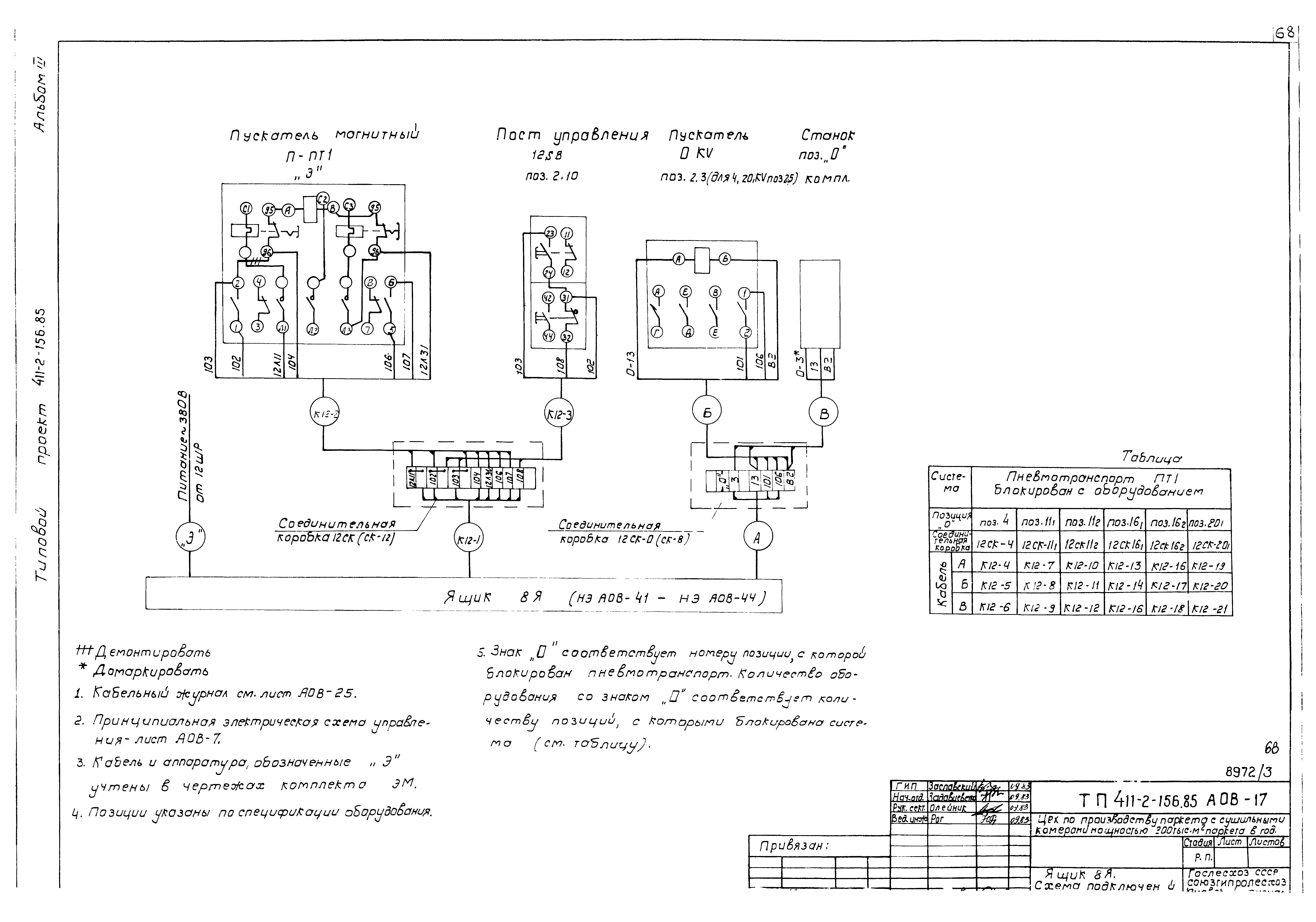
   Ящик 8Я. Схема подключений
   Ящик 9Я. Схема подключений
   Ящик 10Я. Схема подключений
   Ящик 11Я. Схема подключений
   Ящик 12Я(13Я). Схема подключений
   Вентсистема В2 (В3, В4). Схема подключений
   Вентсистема В7 (В8, В9). Схема подключений
   Воздушная завеса У1(У2). Схема подключений
   Кабельный журнал
   Сводная спецификация
   План трасс на отм. 0.000 в осях 1 - 8; А - Г
   План трасс на отм. 0.000 в осях 8 - 13; А - Г
   Приточные камеры П1 - П4. План трасс
   План на отм. 0.000 в осях 5 - 9; Д - Е. План эстакад
   Ведомость изделий МЭЗ
Задание заводу-изготовителю
   Перечень чертежей, выдаваемых заводу-изготовителю
   Ящик 1Я. Технические данные аппаратов
   Ящик 1Я. Чертеж общего вида
   Ящик 1Я. Таблица перечня надписей
   Ящик 1Я. Схема соединений
   Ящик 2Я. Технические данные аппаратов
   Ящик 2Я. Чертеж общего вида
   Ящик 2Я. Таблица перечня надписей
   Ящик 2Я. Схема соединений
   Ящик 3Я. Технические данные аппаратов
   Ящик 3Я. Чертеж общего вида
   Ящик 3Я. Таблица перечня надписей
   Ящик 3Я. Схема соединений
   Перечень чертежей, выдаваемых заводу-изготовителю
   Ящик 4Я(5Я). Технические данные аппаратов
   Ящик 4Я(5Я). Чертеж общего вида
   Ящик 4Я(5Я). Таблица перечня надписей
   Ящик 4Я(5Я). Схема соединений
   Ящик 6Я(7Я). Технические данные аппаратов
   Ящик 6Я(7Я). Чертеж общего вида
   Ящик 6Я(7Я). Таблица перечня надписей
   Ящик 6Я(7Я). Схема соединений
   Ящик 8Я. Технические данные аппаратов
   Ящик 8Я. Чертеж общего вида
   Ящик 8Я. Таблица перечня надписей
   Ящик 8Я. Схема соединений
   Ящик 9Я. Технические данные аппаратов
   Ящик 9Я. Чертеж общего вида
   Ящик 9Я. Таблица перечня надписей
   Ящик 9Я. Схема соединений
   Ящик 10Я. Технические данные аппаратов
   Ящик 10Я. Чертеж общего вида
   Ящик 10Я. Таблица перечня надписей
   Ящик 10Я. Схема соединений
   Ящик 11Я. Технические данные аппаратов
   Ящик 11Я. Чертеж общего вида
   Ящик 11Я. Таблица перечня надписей
   Ящик 11Я. Схема соединений
   Ящик 12Я(13Я). Технические данные аппаратов
   Ящик 12Я(13Я). Чертеж общего вида
   Ящик 12Я(13Я). Таблица перечня надписей
   Ящик 12Я(13Я). Схема соединений
Разработан: Киевский филиал Союзгипролесхоз
Утверждён:18.06.1984 Гослесхоз СССР (USSR Gosleskhoz 8)
Расположен в:Техническая документация Строительство Справочные документы Типовые строительные конструкции, изделия и узлы Общероссийский строительный каталог Промышленные предприятия, здания и сооружения Предприятия, здания и сооружения промышленности и электроэнергетики Промышленность деревообрабатывающая Здания общего назначения
Типовой проект 411-2-156.85Типовой проект 411-2-156.85Типовой проект 411-2-156.85Типовой проект 411-2-156.85Типовой проект 411-2-156.85Типовой проект 411-2-156.85Типовой проект 411-2-156.85Типовой проект 411-2-156.85Типовой проект 411-2-156.85Типовой проект 411-2-156.85Типовой проект 411-2-156.85Типовой проект 411-2-156.85Типовой проект 411-2-156.85Типовой проект 411-2-156.85Типовой проект 411-2-156.85Типовой проект 411-2-156.85Типовой проект 411-2-156.85Типовой проект 411-2-156.85Типовой проект 411-2-156.85Типовой проект 411-2-156.85Типовой проект 411-2-156.85Типовой проект 411-2-156.85Типовой проект 411-2-156.85Типовой проект 411-2-156.85Типовой проект 411-2-156.85Типовой проект 411-2-156.85Типовой проект 411-2-156.85Типовой проект 411-2-156.85Типовой проект 411-2-156.85Типовой проект 411-2-156.85Типовой проект 411-2-156.85Типовой проект 411-2-156.85Типовой проект 411-2-156.85Типовой проект 411-2-156.85Типовой проект 411-2-156.85Типовой проект 411-2-156.85Типовой проект 411-2-156.85Типовой проект 411-2-156.85Типовой проект 411-2-156.85Типовой проект 411-2-156.85Типовой проект 411-2-156.85Типовой проект 411-2-156.85Типовой проект 411-2-156.85Типовой проект 411-2-156.85Типовой проект 411-2-156.85Типовой проект 411-2-156.85Типовой проект 411-2-156.85Типовой проект 411-2-156.85Типовой проект 411-2-156.85Типовой проект 411-2-156.85Типовой проект 411-2-156.85Типовой проект 411-2-156.85Типовой проект 411-2-156.85Типовой проект 411-2-156.85Типовой проект 411-2-156.85Типовой проект 411-2-156.85Типовой проект 411-2-156.85Типовой проект 411-2-156.85Типовой проект 411-2-156.85Типовой проект 411-2-156.85Типовой проект 411-2-156.85Типовой проект 411-2-156.85Типовой проект 411-2-156.85Типовой проект 411-2-156.85Типовой проект 411-2-156.85Типовой проект 411-2-156.85Типовой проект 411-2-156.85Типовой проект 411-2-156.85Типовой проект 411-2-156.85Типовой проект 411-2-156.85Типовой проект 411-2-156.85Типовой проект 411-2-156.85Типовой проект 411-2-156.85Типовой проект 411-2-156.85Типовой проект 411-2-156.85Типовой проект 411-2-156.85Типовой проект 411-2-156.85Типовой проект 411-2-156.85Типовой проект 411-2-156.85Типовой проект 411-2-156.85Типовой проект 411-2-156.85Типовой проект 411-2-156.85Типовой проект 411-2-156.85Типовой проект 411-2-156.85Типовой проект 411-2-156.85Типовой проект 411-2-156.85Типовой проект 411-2-156.85Типовой проект 411-2-156.85Типовой проект 411-2-156.85Типовой проект 411-2-156.85Типовой проект 411-2-156.85Типовой проект 411-2-156.85Типовой проект 411-2-156.85Типовой проект 411-2-156.85Типовой проект 411-2-156.85Типовой проект 411-2-156.85Типовой проект 411-2-156.85Типовой проект 411-2-156.85Типовой проект 411-2-156.85Типовой проект 411-2-156.85Типовой проект 411-2-156.85Типовой проект 411-2-156.85Типовой проект 411-2-156.85Типовой проект 411-2-156.85Типовой проект 411-2-156.85Типовой проект 411-2-156.85Типовой проект 411-2-156.85Типовой проект 411-2-156.85Типовой проект 411-2-156.85Типовой проект 411-2-156.85

© 2013 Ёшкин Кот :-) Карта сайта