Информационная система
«Ёшкин Кот»

Скачать базу одним архивом
Скачать обновления
История создания базы
Карта сайта

Скачать Типовой проект 411-2-180.87 Альбом II. Нестандартизированное оборудование

Дата актуализации: 10.08.2017

Типовой проект 411-2-180.87

Альбом II. Нестандартизированное оборудование

Обозначение: Типовой проект 411-2-180.87
Обозначение англ: 411-2-180.87
Статус:не определен законодательством
Название рус.:Альбом II. Нестандартизированное оборудование
Дата добавления в базу:01.10.2014
Дата актуализации:05.05.2017
Дата введения:18.08.1986
Оглавление:Содержание альбома
НО-01.00.00.000ВС Транспортер поперечный. Ведомость спецификаций
НО-01.00.00.000 Транспортер поперечный
НО-01.00.00.000СБ Транспортер поперечный. Сборочный чертеж
НО-01.00.00.001 Звездочка
НО-01.00.00.002 Винт
НО-01.00.00.003 Направляющая
НО-01.01.00.000 Вал ведущий
НО-01.01.00.001 Вал
НО-01.01.00.000СБ Вал ведущий. Сборочный чертеж
НО-01.01.00.002 Звездочка
НО-01.01.00.003 Прокладка
НО-01.01.00.004 Крышка
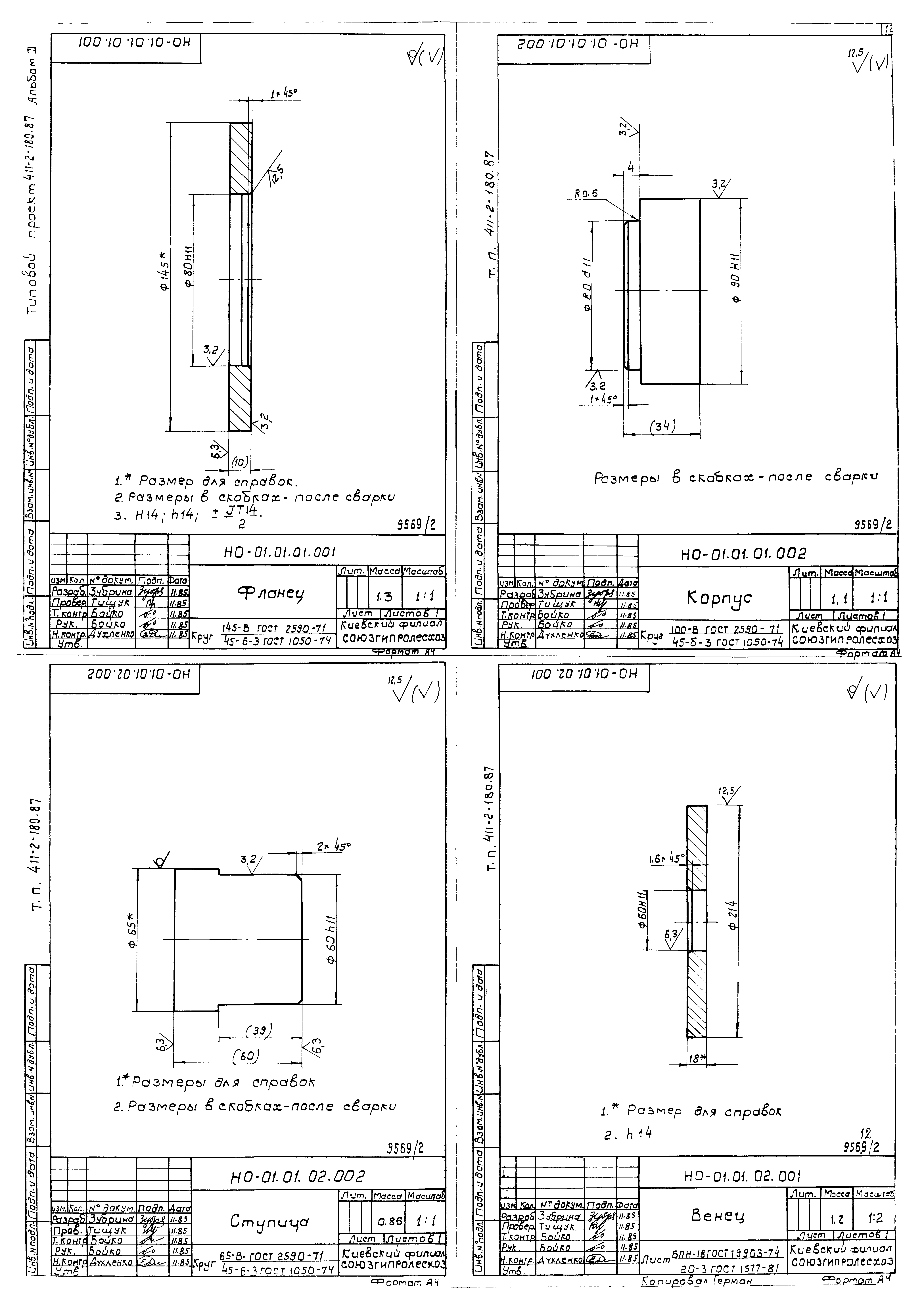
НО-01.01.01.000 Корпус подшипника
НО-01.01.02.000 Звездочка
НО-01.02.00.000 Вал натяжной
НО-01.01.01.000СБ Корпус подшипника. Сборочный чертеж
НО-01.01.02.000СБ Звездочка. Сборочный чертеж
НО-01.01.01.001 Фланец
НО-01.01.01.002 Корпус
НО-01.01.02.002 Ступица
НО-01.01.02.001 Венец
НО-01.02.00.000СБ Вал натяжной. Сборочный чертеж
НО-01.03.00.000 Рама
НО-01.02.00.001 Бобышка
НО-01.03.00.001 Стойка
НО-01.03.00.000СБ Рама. Сборочный чертеж
НО-01.03.00.002 Щека
НО-01.03.00.003 Раскос
НО-01.03.00.004 Связь
НО-01.03.00.005 Стойка
НО-01.03.00.006 Щека
НО-01.03.00.012 Ребро
НО-01.03.00.009 Уголок
НО-01.03.00.015 Стойка
НО-01.04.00.000 Кронштейн
НО-01.04.00.002 Подкос
НО-01.04.00.000СБ Кронштейн. Сборочный чертеж
НО-01.04.00.001 Уголок
НО-01.05.00.000 Цепь с толкателями
НО-01.05.00.001 Щека
НО-01.05.00.000СБ Цепь с толкателями. Сборочный чертеж
НО-01.05.01.000СБ Толкатель. Сборочный чертеж
НО-01.05.01.000 Толкатель
НО-01.05.01.002 Лист
НО-02.00.00.000ВС Транспортер поперечный. Ведомость спецификаций
НО-02.00.00.000 Транспортер поперечный
НО-02.00.00.000СБ Транспортер поперечный. Сборочный чертеж
НО-02.01.00.000 Рама
НО-02.01.00.002 Кронштейн
НО-02.01.00.003 Стойка
НО-02.01.00.000СБ Рама. Сборочный чертеж
НО-02.02.00.000 Кронштейн
НО-01.03.00.017 Уголок
НО-02.02.00.000СБ Кронштейн. Сборочный чертеж
НО-02.02.00.001 Упор
НО-02.03.00.000 Цепь с упорами
НО-02.02.00.002 Накладка
НО-02.03.01.000 Упор
НО-02.03.00.000СБ Цепь с упорами. Сборочный чертеж
НО-02.03.01.000СБ Упор. Сборочный чертеж
НО-02.03.01.001 Щека
НО-02.03.01.002 Ребро
НО-03.00.00.000ВС Рольганг неприводной. Ведомость спецификаций
НО-03.00.00.000 Рольганг неприводной
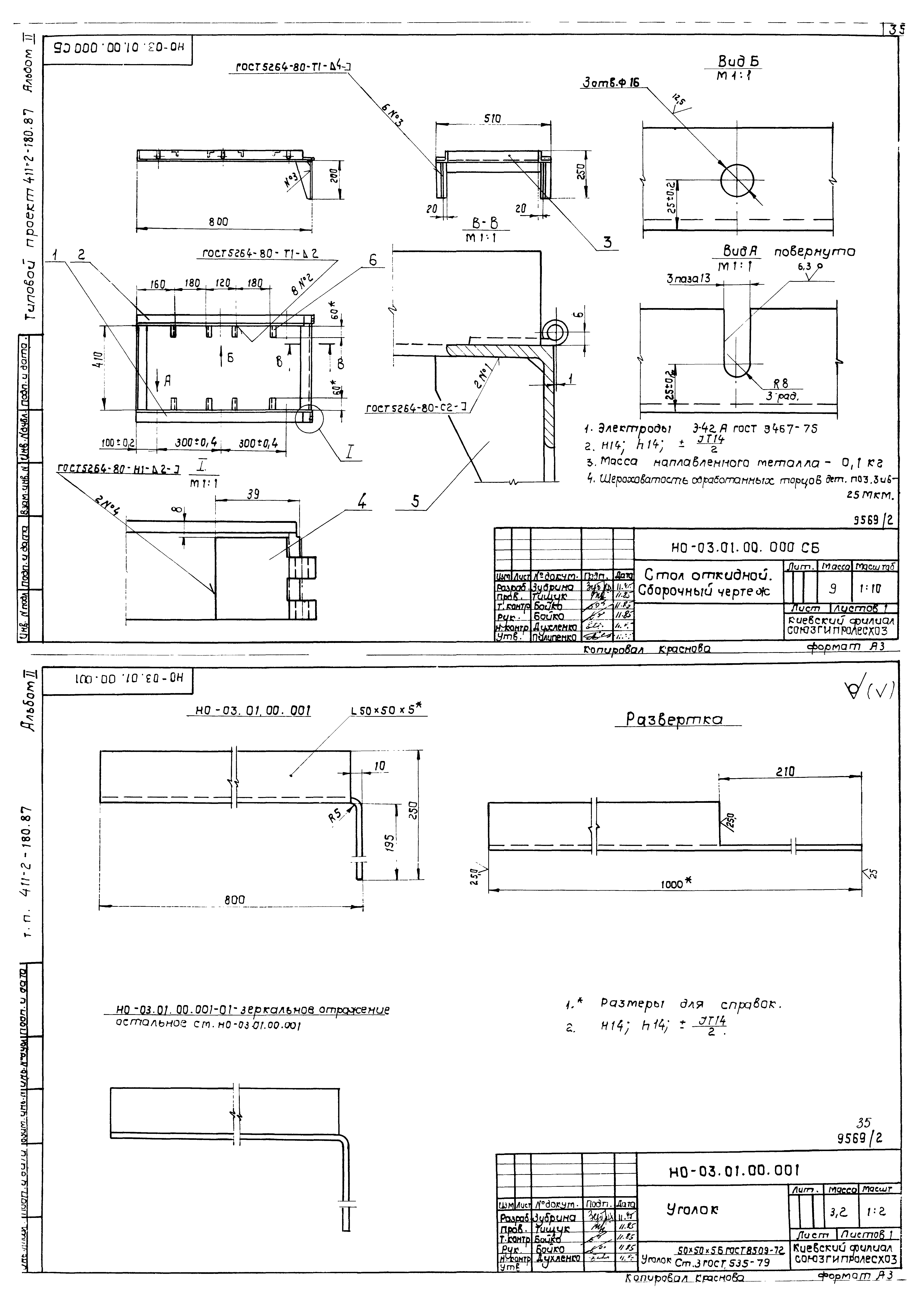
НО-03.01.00.000 Стол откидной
НО-03.00.00.000СБ Рольганг неприводной. Сборочный чертеж
НО-03.01.00.000СБ Стол откидной. Сборочный чертеж
НО-03.01.00.001 Уголок
НО-03.01.00.003 Петля
НО-03.01.00.004 Ребро
НО-03.02.00.000 Каркас
НО-03.02.00.000СБ Каркас. Сборочный чертеж
НО-03.02.00.004 Бобышка
НО-03.03.00.000 Щиток
НО-03.03.00.000СБ Щиток. Сборочный чертеж
НО-03.04.00.000 Опора
НО-03.04.00.000СБ Опора. Сборочный чертеж
НО-04.00.00.000 Стол упаковочный
НО-04.01.00.000 Каркас
НО-04.00.00.000СБ Стол упаковочный. Сборочный чертеж
НО-04.01.00.000СБ Каркас. Сборочный чертеж
НО-05.00.00.000 Рольганг неприводной
НО-05.01.00.000 Каркас
НО-05.00.00.000СБ Рольганг неприводной. Сборочный чертеж
НО-05.01.00.000СБ Каркас. Сборочный чертеж
НО-00.00.00.000ВП Ведомость крупных изделий
Разработан: Киевский филиал Союзгипролесхоз
Утверждён:20.06.1986 Гослесхоз СССР (USSR Gosleskhoz 20)
Расположен в:Техническая документация Строительство Справочные документы Типовые строительные конструкции, изделия и узлы Общероссийский строительный каталог Промышленные предприятия, здания и сооружения Предприятия, здания и сооружения промышленности и электроэнергетики Промышленность деревообрабатывающая Здания общего назначения
Типовой проект 411-2-180.87Типовой проект 411-2-180.87Типовой проект 411-2-180.87Типовой проект 411-2-180.87Типовой проект 411-2-180.87Типовой проект 411-2-180.87Типовой проект 411-2-180.87Типовой проект 411-2-180.87Типовой проект 411-2-180.87Типовой проект 411-2-180.87Типовой проект 411-2-180.87Типовой проект 411-2-180.87Типовой проект 411-2-180.87Типовой проект 411-2-180.87Типовой проект 411-2-180.87Типовой проект 411-2-180.87Типовой проект 411-2-180.87Типовой проект 411-2-180.87Типовой проект 411-2-180.87Типовой проект 411-2-180.87Типовой проект 411-2-180.87Типовой проект 411-2-180.87Типовой проект 411-2-180.87Типовой проект 411-2-180.87Типовой проект 411-2-180.87Типовой проект 411-2-180.87Типовой проект 411-2-180.87Типовой проект 411-2-180.87Типовой проект 411-2-180.87Типовой проект 411-2-180.87Типовой проект 411-2-180.87Типовой проект 411-2-180.87Типовой проект 411-2-180.87Типовой проект 411-2-180.87Типовой проект 411-2-180.87Типовой проект 411-2-180.87Типовой проект 411-2-180.87Типовой проект 411-2-180.87Типовой проект 411-2-180.87Типовой проект 411-2-180.87Типовой проект 411-2-180.87Типовой проект 411-2-180.87Типовой проект 411-2-180.87Типовой проект 411-2-180.87Типовой проект 411-2-180.87Типовой проект 411-2-180.87Типовой проект 411-2-180.87

© 2013 Ёшкин Кот :-) Карта сайта