| ||||||||||||||||||||||||||||
Скачать Серия 1.460-5 Выпуск 1. Покрытия пролетами 18, 24 и 30 м для зданий, возводимых в несейсмических районах с расчетными температурами минус 40 градусов Цельсия и выше. Чертежи КМДата актуализации: 10.08.2017
|
| Обозначение: | Серия 1.460-5 |
| Обозначение англ: | Series 1.460-5 |
| Статус: | заменен |
| Название рус.: | Выпуск 1. Покрытия пролетами 18, 24 и 30 м для зданий, возводимых в несейсмических районах с расчетными температурами минус 40 градусов Цельсия и выше. Чертежи КМ |
| Дата добавления в базу: | 01.10.2014 |
| Дата актуализации: | 05.05.2017 |
| Дата введения: | 01.02.1983 |
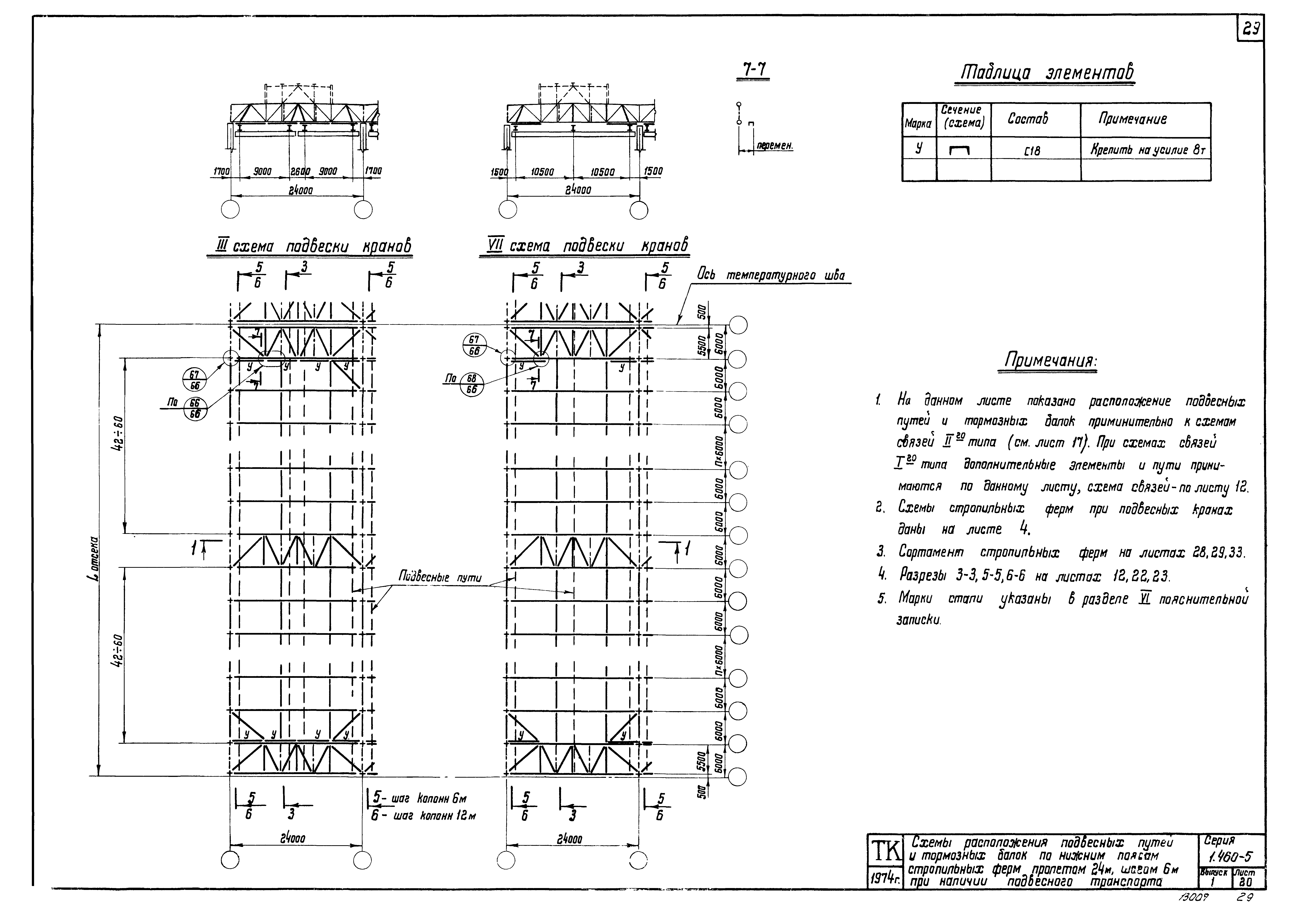
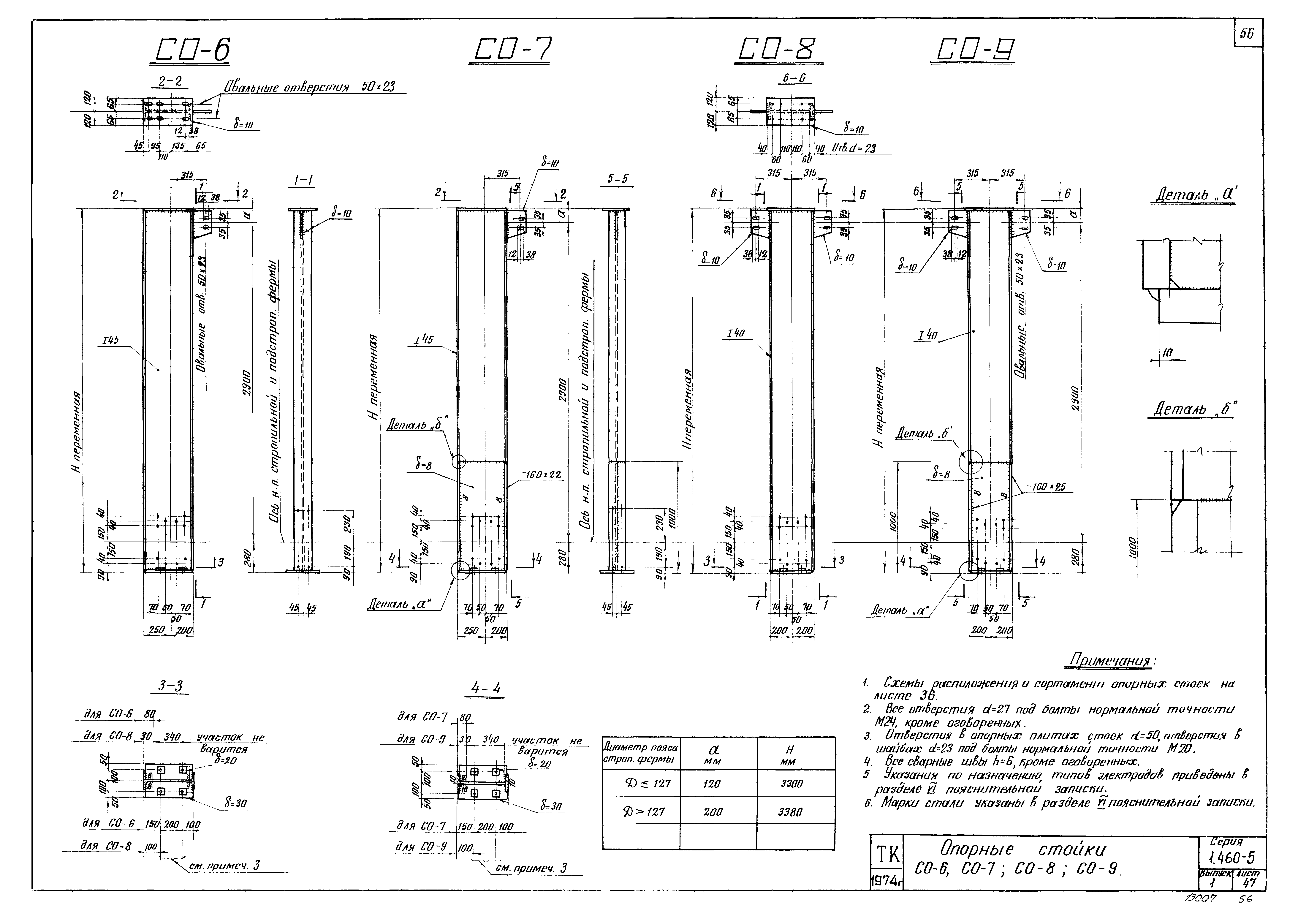
| Оглавление: | Содержание альбома Пояснительная записка Эквивалентные равномерно-распределенные расчетные нагрузки от снегового покрова и от фонаря Эквивалентные равномерно-распределенные расчетные нагрузки от подвесных электрических однобалочных кранов общего назначения Схемы стропильных и подстропильных ферм Схемы стропильных ферм при наличии подвесных однобалочных кранов. Маркировка узлов заводского изготовления Схемы расположения связей и прогонов по верхним поясам стропильных ферм пролетом 18 м. Здания без фонарей и с фонарями. Шаг ферм 6 м. Шаг колонн 6 и 12 м Схемы расположения связей и прогонов по верхним поясам стропильных ферм пролетом 24 м. Здания без фонарей и с фонарями. Шаг ферм 6 м. Шаг колонн 6 и 12 м Схемы расположения связей и прогонов по верхним поясам стропильных ферм пролетом 30 м. Здания без фонарей и с фонарями. Шаг ферм 6 м. Шаг колонн 6 и 12 м Схемы расположения связей и прогонов по верхним поясам стропильных ферм пролетом 18 м. Здания без фонарей и с фонарями. Шаг ферм и колонн 12 м Схемы расположения связей и прогонов по верхним поясам стропильных ферм пролетом 24 м. Здания без фонарей и с фонарями. Шаг ферм и колонн 12 м Схемы расположения связей и прогонов по верхним поясам стропильных ферм пролетом 30 м. Здания без фонарей и с фонарями. Шаг ферм и колонн 12 м Пример решения схемы связей I-го типа по нижним поясам стропильных ферм пролетом 18 м. Здания без фонарей и с фонарями. Шаг ферм 6 м. Шаг колонн 6 и 12 м Пример решения схемы связей I-го типа по нижним поясам стропильных ферм пролетом 24 м. Здания без фонарей и с фонарями. Шаг ферм 6 м. Шаг колонн 6 и 12 м Пример решения схемы связей I-го типа по нижним поясам стропильных ферм пролетом 30 м. Здания без фонарей и с фонарями. Шаг ферм 6 м. Шаг колонн 6 и 12 м Пример решения схемы связей I-го типа по нижним поясам стропильных ферм пролетом 18 м. Здания без фонарей и с фонарями. Шаг ферм и колонн 12 м Пример решения схемы связей I-го типа по нижним поясам стропильных ферм пролетом 24 м. Здания без фонарей и с фонарями. Шаг ферм и колонн 12 м Пример решения схемы связей I-го типа по нижним поясам стропильных ферм пролетом 30 м. Здания без фонарей и с фонарями. Шаг ферм и колонн 12 м Пример решения схемы связей II-го типа по нижним поясам стропильных ферм пролетами 18, 24 и 30 м. Здания без фонарей и с фонарями. Шаг ферм и колонн 6 м Пример решения схемы связей II-го типа по нижним поясам стропильных ферм пролетами 18, 24 и 30 м. Здания без фонарей и с фонарями. Шаг ферм и колонн 12 м Схемы расположения подвесных путей и тормозных балок по нижним поясам стропильных ферм пролетом 18 м, шагом 6 м при наличии подвесного транспорта Схемы расположения подвесных путей и тормозных балок по нижним поясам стропильных ферм пролетом 24 м, шагом 6 м при наличии подвесного транспорта Схемы расположения подвесных путей и тормозных балок по нижним поясам стропильных ферм пролетом 30 м, шагом 6 м при наличии подвесного транспорта Разрезы 5-5, 6-6, 7-7 по продольным рядам колонн. Колонны стальные и железобетонные в зданиях без мостовых кранов. Колонны стальные в зданиях с мостовыми кранами Разрезы 5-5, 6-6, 7-7 по продольным рядам колонн. Колонны железобетонные в зданиях с мостовыми кранами и в бескрановых зданиях малой высоты Расположение растяжек по нижним поясам стропильных ферм. Шаг ферм 6 и 12 м Таблицы для выбора марок поясов и раскосов горизонтальных связей, расположенных в торце здания. Расчетные узловые нагрузки стропильных ферм Сортамент стропильных ферм пролетом 18 м из стали "Сталь 3" Сортамент стропильных ферм пролетом 24 м из стали "Сталь 3" Сортамент стропильных ферм пролетом 24 м с применением низколегированной стали Сортамент стропильных ферм пролетом 30 м из стали "Сталь 3" Сортамент стропильных ферм пролетом 30 м с применением низколегированной стали Сортамент стропильных ферм пролетом 18 м при наличии подвесного транспорта. Шаг ферм 6 м Сортамент стропильных ферм пролетами 24 м при наличии подвесного транспорта. Шаг ферм 6 м Сортамент стропильных ферм пролетами 30 м при наличии подвесного транспорта. Шаг ферм 6 м Сортамент подстропильных ферм пролетом 12 м Схемы опирания стропильных ферм. Маркировка монтажных узлов. Сортамент опорных стоек Указания по выбору марок вертикальных связей и распорок покрытия, расположенных в плоскости колонн Сортамент связей Таблицы для выбора марок прогонов и профилеразмера настила. Сортамент прогонов 6 м Стропильные фермы пролетом 18 м Стропильные фермы пролетом 24 м Стропильные фермы пролетом 30 м Подстропильные фермы пролетом 12 м. Марка ПТФ12-32 Подстропильные фермы пролетом 12 м. Марки ПТФ12-62 и ПТФ12-73 Подстропильные фермы пролетом 12 м. Марки ПТФ12-89 и ПТФ12-114 Опорные стойки СО-1, СО-2, СО-3, СО-4, СО-5 Опорные стойки СО-6, СО-7, СО-8, СО-9 Опорные столики для крепления прогонов и монтажный стык нижнего пояса стропильной фермы Узлы 1 и 2 стропильных ферм при наличии подвесных кранов Узлы 3 - 5 стропильных ферм при наличии подвесных кранов Узлы 6 - 8 крепления связей и прогонов по верхним поясам стропильных ферм Узлы 9 - 14 крепления связей и прогонов по верхним поясам стропильных ферм Узлы 15 - 20 крепления связей и прогонов по верхним поясам стропильных ферм Узлы 21 - 26 крепления связей и прогонов по верхним поясам стропильных ферм Узлы 27 - 33 крепления связей и прогонов по верхним поясам стропильных ферм Узлы 34, 35 крепления связей по нижним поясам стропильных ферм Узлы 36 - 40 крепления связей по нижним поясам стропильных ферм Узлы 41 - 45 крепления связей по нижним поясам стропильных ферм Узлы 46 - 50 крепления связей по нижним поясам стропильных ферм Узлы 51 - 53 опирания стропильных ферм Узлы 54, 55 опирания стропильных и подстропильных ферм Узлы 56 - 58 опирания стропильных ферм и прогонов на подстропильные фермы Узлы 59 - 65; 69 - 74 вертикальных связей из круглых труб Узлы 59 - 65; 69 - 75 вертикальных связей из горячекатаных профилей Пример решения схемы продольных горизонтальных связей о нижним поясам ферм с шагом 12 м при опирании фахверковых стоек Узлы 66 - 68 крепления тормозных балок и связей по нижним поясам ферм при наличии подвесных кранов Схемы раскладки профилированного настила. Узлы крепления профилированного настила к прогонам Узлы распорок, раскосов, растяжек связей покрытия а0 - а9, б1 - б3, в1, в2 Схемы I - IV расположения в пролетах подвесных электрических однопролетных кранов общего назначения, их геометрические параметры и вес. Нормативные и расчетные крановые нагрузки Схемы VI - VIII расположения в пролетах подвесных электрических 2-х и 3-х пролетных кранов общего назначения, их геометрические параметры и вес. Нормативные и расчетные крановые нагрузки Спецификация стали стропильных ферм пролетом 18 и 30 м Спецификация стали стропильных ферм пролетом 24 м Спецификация стали подстропильных ферм пролетом 12 м Расход стали в кг/кв. м на стропильные и подстропильные фермы Пример выбора марки стропильной фермы при наличии дополнительных узлов нагрузок Усилия в стержнях стропильных ферм пролетом 18 и 24 м от единичных нагрузок Усилия в стержнях стропильных ферм пролетом 30 м от единичных нагрузок Несущая способность стержней стропильных ферм. Пояса и стойки Несущая способность стержней стропильных ферм. Раскосы |
| Разработан: | ЦНИИпроектстальконструкция |
| Утверждён: | 27.06.1974 Госстрой СССР (132) |
| Расположен в: | |
| Чем заменён: |
























































































