Информационная система
«Ёшкин Кот»

Скачать базу одним архивом
Скачать обновления
История создания базы
Карта сайта

Скачать Типовые материалы для проектирования 407-03-555.90 Альбом III. Схемы полные и низковольтные

Дата актуализации: 10.08.2017

Типовые материалы для проектирования 407-03-555.90

Альбом III. Схемы полные и низковольтные

Обозначение: Типовые материалы для проектирования 407-03-555.90
Обозначение англ: 407-03-555.90
Статус:cправочные материалы, мп, тпр
Название рус.:Альбом III. Схемы полные и низковольтные
Дата добавления в базу:01.10.2014
Дата актуализации:05.05.2017
Дата введения:27.08.1990
Оглавление:Общие данные
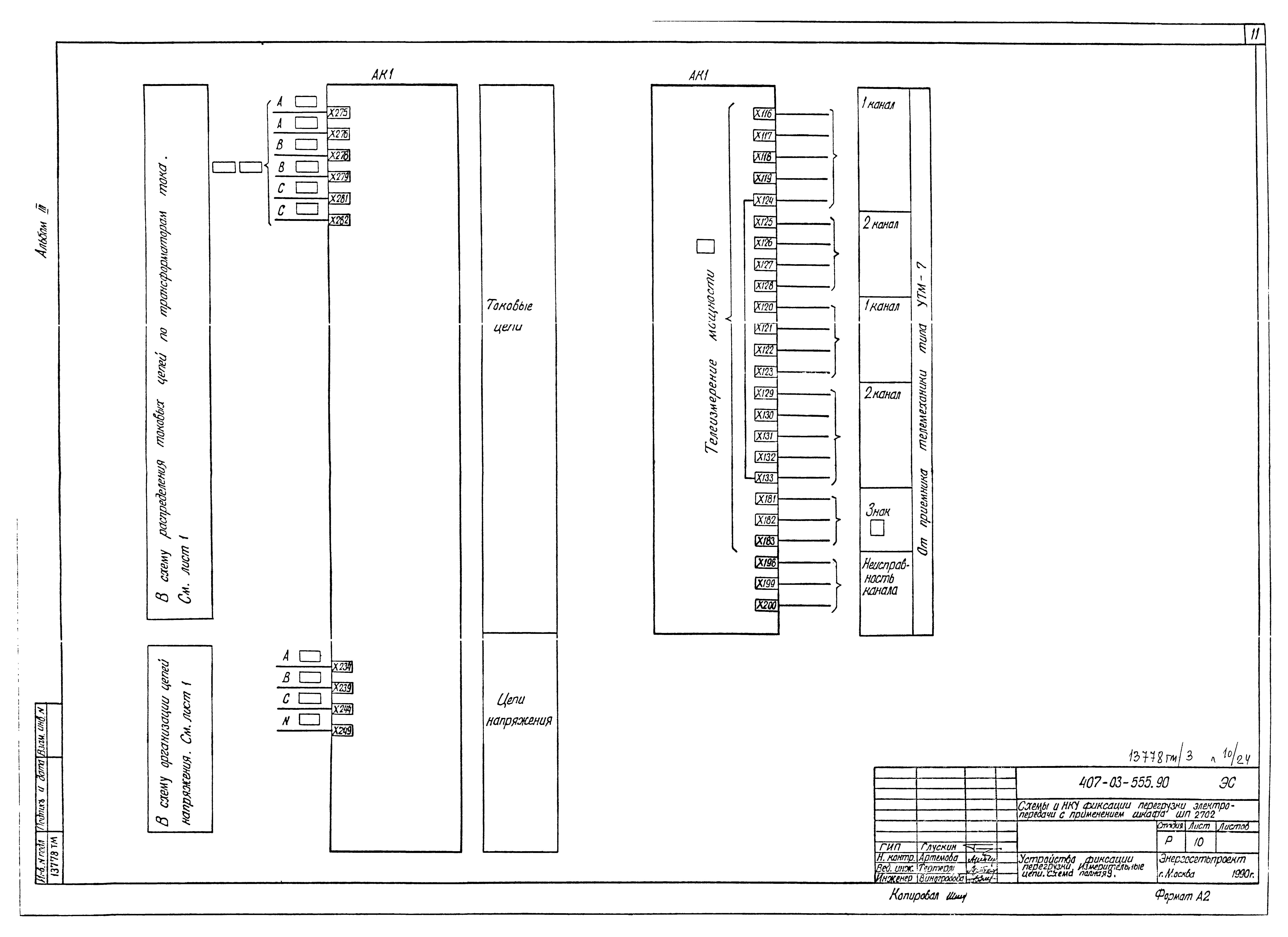
Устройство фиксации перегрузки. Измерительные цепи. Схема полная 1
Устройство фиксации перегрузки. Измерительные цепи. Схема полная 2
Устройство фиксации перегрузки. Измерительные цепи. Схема полная 3
Устройство фиксации перегрузки. Измерительные цепи. Схема полная 4
Устройство фиксации перегрузки. Измерительные цепи. Схема полная 5
Устройство фиксации перегрузки. Измерительные цепи. Схема полная 6
Устройство фиксации перегрузки. Измерительные цепи. Схема полная 7
Устройство фиксации перегрузки. Измерительные цепи. Схема полная 8
Устройство фиксации перегрузки. Измерительные цепи. Схема полная 9
Устройство фиксации перегрузки. Цепи изменения уставок и оперативные цепи. Схема полная 1
Устройство фиксации перегрузки. Цепи изменения уставок и оперативные цепи. Схема полная 2
Устройство фиксации перегрузки. Цепи изменения уставок и оперативные цепи. Схема полная 3
Устройство фиксации перегрузки. Цепи изменения уставок и оперативные цепи. Схема полная 4
Устройство фиксации перегрузки. Цепи изменения уставок и оперативные цепи. Схема полная 5
Устройство фиксации перегрузки. Цепи изменения уставок и оперативные цепи. Схема полная 6
Устройство фиксации перегрузки. Цепи питания и сигнализации. Схема полная 1
Устройство фиксации перегрузки. Цепи питания и сигнализации. Схема полная 2
Устройство фиксации перегрузки. Цепи питания и сигнализации. Схема полная 3
Устройство фиксации перегрузки. Цепи питания и сигнализации. Схема полная 4
Устройство фиксации перегрузки. Цепи питания и сигнализации. Схема полная 5
Устройство фиксации перегрузки. Схема подключения НКУ
Устройство фиксации перегрузки. Общий вид шкафа
Разработан: Энергосетьпроект
Утверждён:27.08.1990 Минэнерго СССР (USSR Minenergo 50)
Расположен в:Техническая документация Строительство Справочные документы Типовые строительные конструкции, изделия и узлы Общероссийский строительный каталог Промышленные предприятия, здания и сооружения Предприятия, здания и сооружения промышленности и электроэнергетики Электроэнергетика Схемы электрические для подстанций и линий электропередачи
Типовые материалы для проектирования 407-03-555.90Типовые материалы для проектирования 407-03-555.90Типовые материалы для проектирования 407-03-555.90Типовые материалы для проектирования 407-03-555.90Типовые материалы для проектирования 407-03-555.90Типовые материалы для проектирования 407-03-555.90Типовые материалы для проектирования 407-03-555.90Типовые материалы для проектирования 407-03-555.90Типовые материалы для проектирования 407-03-555.90Типовые материалы для проектирования 407-03-555.90Типовые материалы для проектирования 407-03-555.90Типовые материалы для проектирования 407-03-555.90Типовые материалы для проектирования 407-03-555.90Типовые материалы для проектирования 407-03-555.90Типовые материалы для проектирования 407-03-555.90Типовые материалы для проектирования 407-03-555.90Типовые материалы для проектирования 407-03-555.90Типовые материалы для проектирования 407-03-555.90Типовые материалы для проектирования 407-03-555.90Типовые материалы для проектирования 407-03-555.90Типовые материалы для проектирования 407-03-555.90Типовые материалы для проектирования 407-03-555.90Типовые материалы для проектирования 407-03-555.90Типовые материалы для проектирования 407-03-555.90Типовые материалы для проектирования 407-03-555.90Типовые материалы для проектирования 407-03-555.90

© 2013 Ёшкин Кот :-) Карта сайта