Скачать Типовой проект 902-1-46 Альбом II. Архитектурно-строительные решения. Надземная часть и общие чертежи. Узлы и деталиДата актуализации: 10.08.2017 Типовой проект 902-1-46
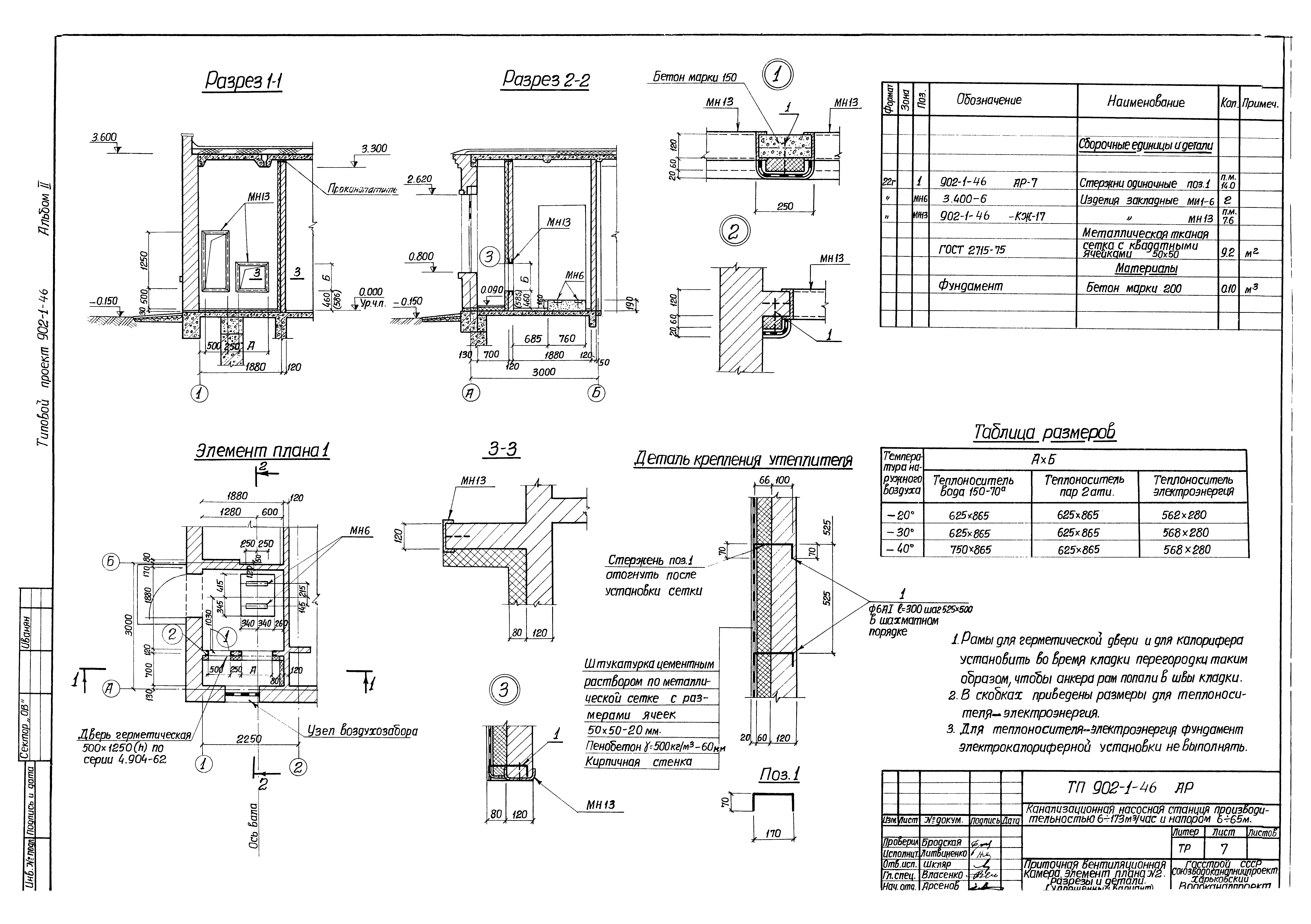
Альбом II. Архитектурно-строительные решения. Надземная часть и общие чертежи. Узлы и деталиОбозначение: | Типовой проект 902-1-46 | Обозначение англ: | 902-1-46 | Статус: | заменен | Название рус.: | Альбом II. Архитектурно-строительные решения. Надземная часть и общие чертежи. Узлы и детали | Дата добавления в базу: | 01.10.2014 | Дата актуализации: | 05.05.2017 | Дата введения: | 01.02.1985 | Оглавление: | Содержание альбома Пояснительная записка Архитектурно-строительные решения (АР) Общие данные План на отм. 0.000. Разрезы 1-1, 2-2. Сечения 3-3, 4-4. Узлы 1, 2 (основной вариант) План на отм. 0.000. Разрезы 1-1, 2-2. Сечение 3-3 (упрощенный вариант) Фасады. Схемы заполнения оконных проемов Планы полов и перемычек. Планы кровли. Экспликация полов. Ведомость перемычек Приточная вентиляционная камера. Элемент плана №1. Разрезы и детали (основной вариант) Приточная вентиляционная камера. Элемент плана №2. Разрезы и детали (упрощенный вариант) Место установки щита. Канал. Планы и сечения Конструкции железобетонные (КЖ) Общие данные Подземная часть. Детали гидроизоляции стен и днища Монтажные планы плит покрытия и перекрытия. Спецификация элементов Перекрытие на отм. - 0.030 м. Планы. Сечения. Опалубочный чертеж Перекрытие на отм. - 0.030 м. Армирование плиты. Спецификации Перекрытие на отм. - 0.030 м. Армирование балок Бм1 - Бм4 Перекрытие на отм. - 0.030 м. Балки БОм1, БОм1а. Армирование Перекрытие на отм. - 0.030 м. Балки БОм1, БОм1а. Выборка сборочных единиц и деталей Перекрытие на отм. - 0.030 м. Балка БОм2. Армирование и спецификации Перекрытие на отм. - 0.030 м. Перекрытие над приемным резервуаром. Сетки и каркасы Перекрытие над приемным резервуаром. Плита Пм1. Балки Бм1 - Бм3. Опалубочный чертеж и армирование Перекрытие над приемным резервуаром. Лоток СЛ1. Спецификация и выборка стали План подземной части. Фундаменты под агрегаты. Раскладка труб для электрокабелей. Сечения Плиты ПВрII-4А/1,5х6-1(2) и ПВрII-7А/1,5х6-1(2). Опалубочный чертеж. Сечения. Спецификация Монорельсы МР1,0тс надземной части. Схема расположения. Узлы. Спецификация Закладные элементы МН4 - МН10; МН12 - МН14. Спецификация стали | Разработан: | Харьковский Водоканалпроект
| Утверждён: | 08.12.1975 СоюзводоканалНИИпроект (SoyuzvodokanalNIIproject 105)
| Расположен в: |
| Заменяет собой: | | Чем заменён: |  Типовой проект 902-1-92.84 «Канализационная насосная станция производительностью 25 - 173 куб. м/ч, напором 6 - 65 м при глубине заложения подводящего коллектора 4,0 м (сборно-монолитный вариант)» Типовой проект 902-1-93.84 «Канализационная насосная станция производительностью 25 - 173 куб. м/ч, напором 6 - 65 м при глубине заложения подводящего коллектора 4,0 м (монолитный вариант)» Типовой проект 902-1-94.84 «Канализационная насосная станция производительностью 25 - 173 куб. м/ч, напором 6 - 65 м при глубине заложения подводящего коллектора 5,5 м (сборно-монолитный вариант)» Типовой проект 902-1-95.84 «Канализационная насосная станция производительностью 25 - 173 куб. м/ч, напором 6 - 65 м при глубине заложения подводящего коллектора 5,5 м (монолитный вариант)» Типовой проект 902-1-96.84 «Канализационная насосная станция производительностью 25 - 173 куб. м/ч, напором 6 - 65 м при глубине заложения подводящего коллектора 7,0 м»
|
                           
|