Информационная система
«Ёшкин Кот»

Скачать базу одним архивом
Скачать обновления
История создания базы
Карта сайта

Скачать Типовой проект 904-1-86.91 Альбом 3. Силовое электрооборудование. Распределительные устройства 10(6) кВ. Электрическое освещение. Связь и сигнализация. Пожарная сигнализация

Дата актуализации: 10.08.2017

Типовой проект 904-1-86.91

Альбом 3. Силовое электрооборудование. Распределительные устройства 10(6) кВ. Электрическое освещение. Связь и сигнализация. Пожарная сигнализация

Обозначение: Типовой проект 904-1-86.91
Обозначение англ: 904-1-86.91
Статус:не определен законодательством
Название рус.:Альбом 3. Силовое электрооборудование. Распределительные устройства 10(6) кВ. Электрическое освещение. Связь и сигнализация. Пожарная сигнализация
Дата добавления в базу:01.10.2014
Дата актуализации:05.05.2017
Дата введения:18.10.1990
Оглавление:Содержание альбома
Распредустройство 10(6) кВ
   Общие данные
   Компоновка электрооборудования. План
   Прокладка кабелей. План. Разрезы
   Принципиальная однолинейная схема 10(6) кВ
   Шкаф ввода 1(2). Схема электрическая принципиальная (полная)
   Шкаф секционного выключателя. Схема электрическая принципиальная (полная)
   Шкаф трансформатора напряжения. Схема электрическая принципиальная (полная)
   Шкаф трансформатора собственных нужд. Схема электрическая принципиальная (полная)
   Шкаф с низковольтной аппаратурой собственных нужд. Схема электрическая принципиальная (полная)
   Шкаф синхронного электродвигателя. Схема электрическая принципиальная (полная)
   Расчет релейных защит
   Шкаф синхронного электродвигателя. Схема подключения
   Шкаф ввода 1(2). Схема подключения
   Шкаф секционного выключателя и секционного разъединителя. Схема подключения
   Шкаф трансформатора напряжения 1(2). Схема подключения
   Шкаф с низковольтной аппаратурой собственных нужд. Схема подключения
   Шкаф трансформатора собственных нужд. Схема подключения
   Заземление
   Опросный лист на поставку устройства комплектного распределительного типа КМ-1Ф
Силовое электрооборудование
   Общие данные
   Щит защищенный однорядный Н1. Расчетная схема
   Шкафы ШР-1, ШР-2. Расчетная схема
   Шкаф ШР-3. Расчетная схема
   Схема подключения контрольных цепей шкафа тиристорного возбудительного устройства
   Схема подключения силовых цепей привода компрессорного агрегата
   Кабельный журнал
   Прокладка кабелей на отм. 0.000 и 3.600. План
   Прокладка кабелей. Разрезы
   Зануление. Троллеи
   Перечень проектной документации для заказа НКУ
   Щит защищенный однорядный Н1. Таблица
   Щит защищенный однорядный Н1. Опросный лист
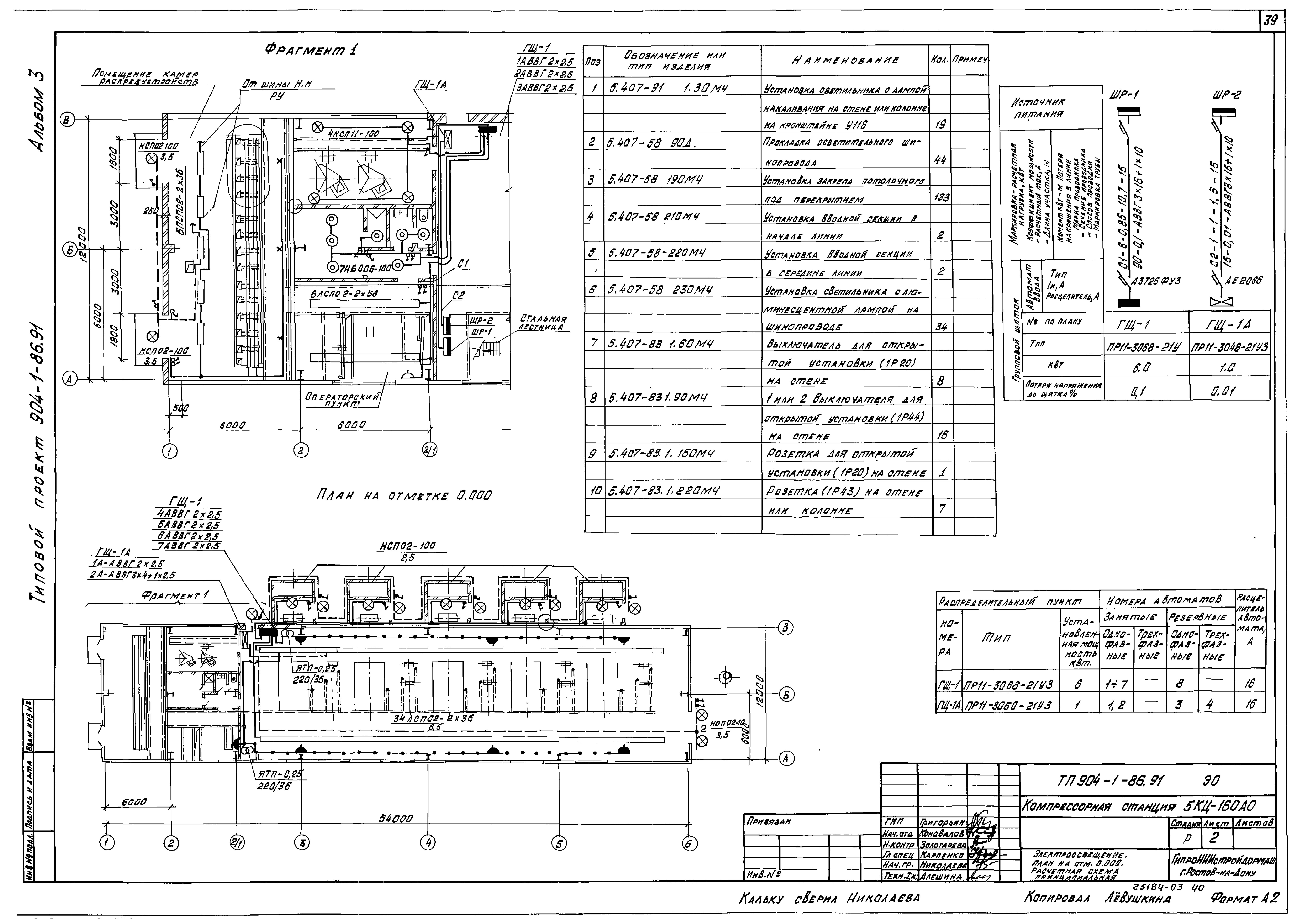
Электроосвещение
   Общие данные
   План на отм. 0.000
Связь и сигнализация
   Общие данные
   План расположения сети
   Схемы расположения сетей
   План расположения сети вызывной сигнализации
Пожарная сигнализация
   Общие данные
   План расположения сети
   Схемы расположения сети
Разработан: Гипрониистройдормаш
Утверждён:18.10.1990 Минтяжмаш СССР (USSR Mintyazhmash 14)
Расположен в:Техническая документация Строительство Справочные документы Типовые строительные конструкции, изделия и узлы Общероссийский строительный каталог Промышленные предприятия, здания и сооружения Здания и сооружения санитарно-технические Воздухоснабжение, вентиляция и кондиционирование воздуха Воздухоснабжение
Типовой проект 904-1-86.91Типовой проект 904-1-86.91Типовой проект 904-1-86.91Типовой проект 904-1-86.91Типовой проект 904-1-86.91Типовой проект 904-1-86.91Типовой проект 904-1-86.91Типовой проект 904-1-86.91Типовой проект 904-1-86.91Типовой проект 904-1-86.91Типовой проект 904-1-86.91Типовой проект 904-1-86.91Типовой проект 904-1-86.91Типовой проект 904-1-86.91Типовой проект 904-1-86.91Типовой проект 904-1-86.91Типовой проект 904-1-86.91Типовой проект 904-1-86.91Типовой проект 904-1-86.91Типовой проект 904-1-86.91Типовой проект 904-1-86.91Типовой проект 904-1-86.91Типовой проект 904-1-86.91Типовой проект 904-1-86.91Типовой проект 904-1-86.91Типовой проект 904-1-86.91Типовой проект 904-1-86.91Типовой проект 904-1-86.91Типовой проект 904-1-86.91Типовой проект 904-1-86.91Типовой проект 904-1-86.91Типовой проект 904-1-86.91Типовой проект 904-1-86.91Типовой проект 904-1-86.91Типовой проект 904-1-86.91Типовой проект 904-1-86.91Типовой проект 904-1-86.91Типовой проект 904-1-86.91Типовой проект 904-1-86.91Типовой проект 904-1-86.91Типовой проект 904-1-86.91Типовой проект 904-1-86.91Типовой проект 904-1-86.91Типовой проект 904-1-86.91Типовой проект 904-1-86.91Типовой проект 904-1-86.91Типовой проект 904-1-86.91Типовой проект 904-1-86.91

© 2013 Ёшкин Кот :-) Карта сайта