Информационная система
«Ёшкин Кот»

Скачать базу одним архивом
Скачать обновления
История создания базы
Карта сайта

Скачать Типовой проект 903-2-37.91 Альбом 6. Строительные изделия

Дата актуализации: 10.08.2017

Типовой проект 903-2-37.91

Альбом 6. Строительные изделия

Обозначение: Типовой проект 903-2-37.91
Обозначение англ: 903-2-37.91
Статус:не определен законодательством
Название рус.:Альбом 6. Строительные изделия
Дата добавления в базу:01.10.2014
Дата актуализации:05.05.2017
Дата введения:22.01.1992
Оглавление:Содержание альбома
КЖ.И.ТУ Технические условия
КЖ.И.6.2 Сетка С1
КЖ.И.01.1.1 Колонна 1К36-2М2-1
КЖ.И.01.1.2 Колонна 1К36-2М2-2
КЖ.И.01.1.3 Колонна 1К36-2М2-3
КЖ.И.01.1.4 Колонна 1К36-2М2-4
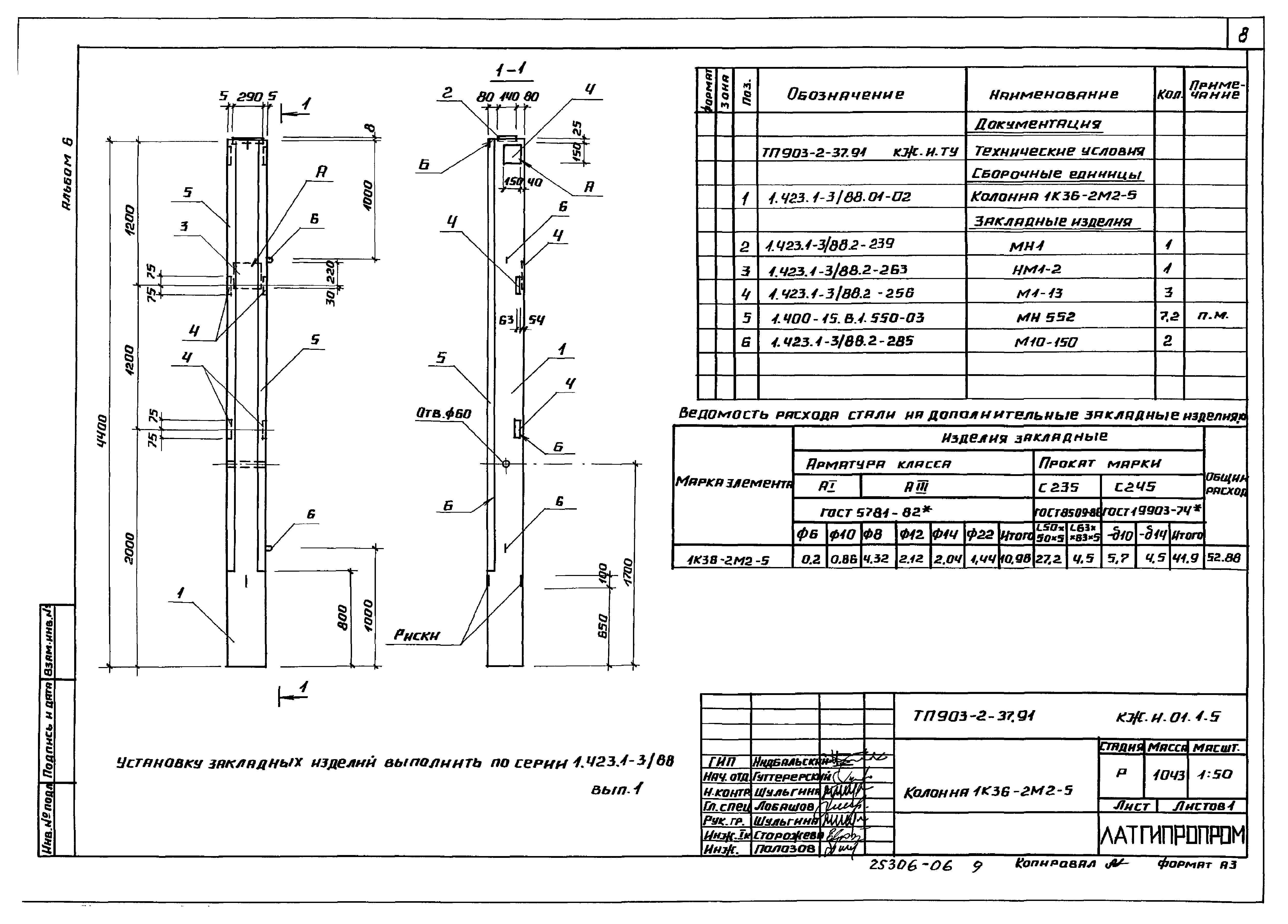
КЖ.И.01.1.5 Колонна 1К36-2М2-5
КЖ.И.01.1.6 Колонна 1К36-2М2-6
КЖ.И.01.1.7 Колонна 1К36-2М2-7
КЖ.И.01.1.8 Колонна 1К36-2М2-8
КЖ.И.01.2.1 Колонна 1КФ37-1-Н-1
КЖ.И.01.2.2 Колонна 1КФ37-1-Н-2
КЖ.И.02.1.1 Балка 1БСП12-3АIV-Н-1
КЖ.И.02.1.2 Балка 1БСП12-3АIV-Н-2
КЖ.И.02.1.3 Балка 1БСП12-3АIV-Н-3
КЖ.И.1.1 Столик РК1-1
КЖ.И.1.2 Столик РК1-2
КЖ.И.2.1 Насадка НФ1
КЖ.И.3.1 Закладное изделие МН1
КЖ.И.3.2 Закладное изделие МН2
КЖ.И.3.3 Закладное изделие МН3
КЖ.И.3.4 Закладное изделие МН4
КЖ.И.3.5 Закладное изделие МН5
КЖ.И.3.6 Закладное изделие МН6
КЖ.И.4.1 Рама Р-1
КЖ.И.5.1 Каркас плоский Кр1
КЖ.И.6.1 Сетка С2
Разработан: Латгипропром
Утверждён:22.01.1992 ГПКНИИ Сантехниипроект (30)
Расположен в:Техническая документация Строительство Справочные документы Типовые строительные конструкции, изделия и узлы Общероссийский строительный каталог Промышленные предприятия, здания и сооружения Здания и сооружения санитарно-технические Теплоснабжение Установка для снабжения котельных жидким топливом
Типовой проект 903-2-37.91Типовой проект 903-2-37.91Типовой проект 903-2-37.91Типовой проект 903-2-37.91Типовой проект 903-2-37.91Типовой проект 903-2-37.91Типовой проект 903-2-37.91Типовой проект 903-2-37.91Типовой проект 903-2-37.91Типовой проект 903-2-37.91Типовой проект 903-2-37.91Типовой проект 903-2-37.91Типовой проект 903-2-37.91Типовой проект 903-2-37.91Типовой проект 903-2-37.91Типовой проект 903-2-37.91Типовой проект 903-2-37.91Типовой проект 903-2-37.91Типовой проект 903-2-37.91Типовой проект 903-2-37.91Типовой проект 903-2-37.91

© 2013 Ёшкин Кот :-) Карта сайта