Информационная система
«Ёшкин Кот»

Скачать базу одним архивом
Скачать обновления
История создания базы
Карта сайта

Скачать Типовой проект 903-2-37.91 Альбом 2. Мазутоснабжение

Дата актуализации: 10.08.2017

Типовой проект 903-2-37.91

Альбом 2. Мазутоснабжение

Обозначение: Типовой проект 903-2-37.91
Обозначение англ: 903-2-37.91
Статус:не определен законодательством
Название рус.:Альбом 2. Мазутоснабжение
Дата добавления в базу:01.10.2014
Дата актуализации:05.05.2017
Дата введения:22.01.1992
Оглавление:Общие данные
Схема соединений установки мазутоснабжения Q = 6,5/13 куб. м/ч
Схема соединений установки мазутоснабжения Q = 13/16 куб. м/ч
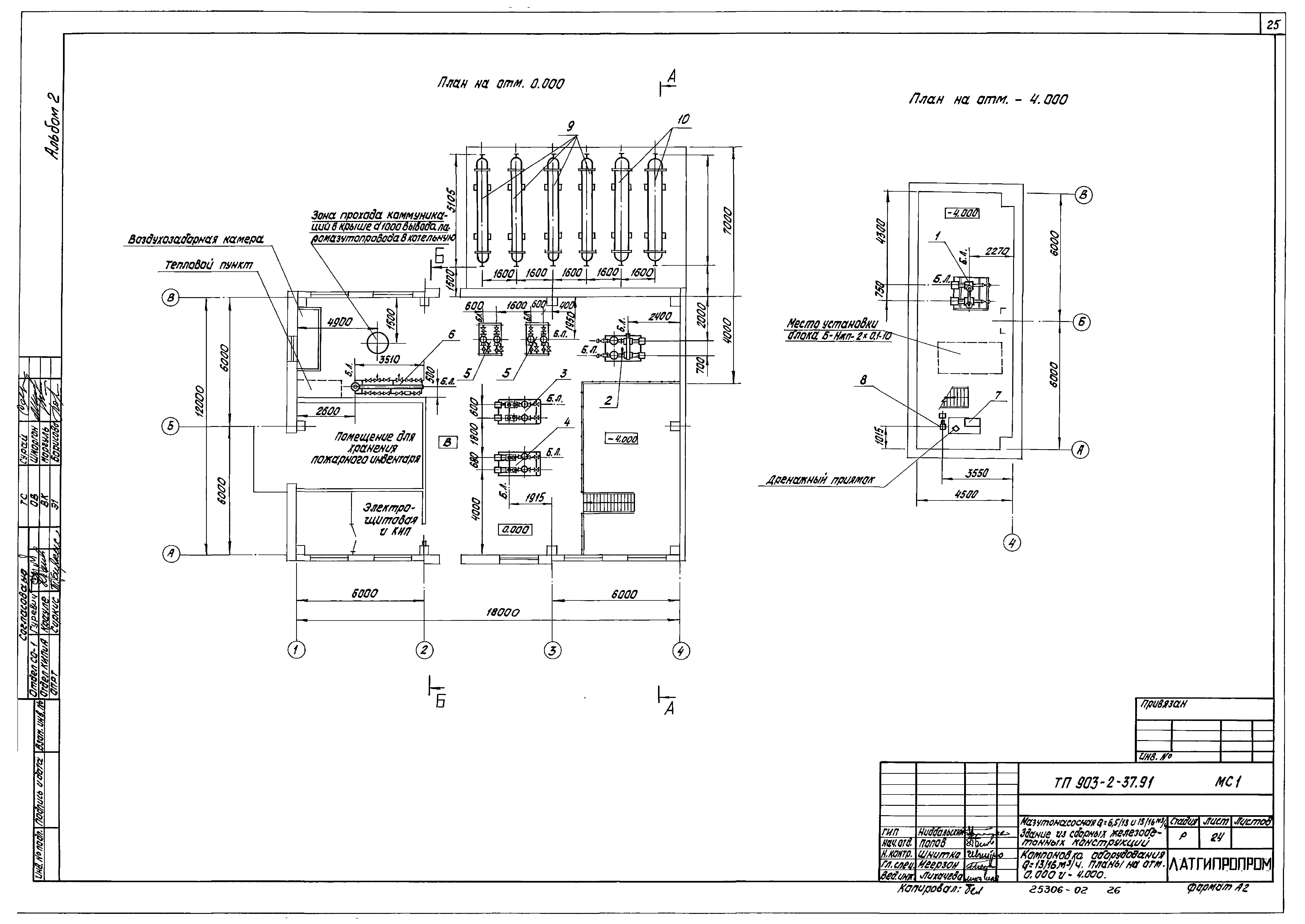
Компоновка оборудования Q = 6,5/13 куб. м/ч. Планы на отм. 0.000 и - 4.000
Компоновка оборудования Q = 6,5/13 куб. м/ч. Разрезы А-А, Б-Б. Вид В
Компоновка оборудования Q = 13/16 куб. м/ч. Планы на отм. 0.000 и - 4.000
Компоновка оборудования Q = 13/16 куб. м/ч. Разрезы А-А, Б-Б. Вид В
Трубопроводы группы I. Вид сверху. План на отм. - 4.000
Трубопроводы группы I. Разрезы А-А, Б-Б, Ж-Ж. Узел прохода в стене
Трубопроводы группы I. Разрезы В-В, Г-Г, Д-Д, Е-Е
Трубопроводы группы I. Спецификация
Схема дренажа и продувки трубопроводов группы I
Схема дренажа и продувки трубопроводов группы I. Спецификация
Трубопроводы группы II. Вид сверху
Трубопроводы группы II. План паропроводов. План конденсатопроводов. Разрез Е-Е. Узел
Трубопроводы группы II. Разрезы А-А, Б-Б, В-В, Г-Г
Трубопроводы группы II. Разрез Ж-Ж, Д-Д
Трубопроводы группы II. Спецификация
Схема дренажа и продувки трубопроводов группы II
Схема дренажа и продувки трубопроводов группы II. Спецификация
Трубопроводы группы I. Опора №1, №6 и №11
Трубопроводы группы I. Опоры №2, №4, №7 и №8
Трубопроводы группы I. Опоры №3 и №5
Трубопроводы группы I. Опора №9
Трубопроводы группы I. Опора №10
Узел монтажа датчиков уровня Ду. План. Разрезы А-А, Б-Б. Узел I
Дренажное и продувочное устройство
Таблица размеров крепежных изделий со спецификацией. Узел. Детали
Разработан: Латгипропром
Утверждён:22.01.1992 ГПКНИИ Сантехниипроект (30)
Расположен в:Техническая документация Строительство Справочные документы Типовые строительные конструкции, изделия и узлы Общероссийский строительный каталог Промышленные предприятия, здания и сооружения Здания и сооружения санитарно-технические Теплоснабжение Установка для снабжения котельных жидким топливом
Типовой проект 903-2-37.91Типовой проект 903-2-37.91Типовой проект 903-2-37.91Типовой проект 903-2-37.91Типовой проект 903-2-37.91Типовой проект 903-2-37.91Типовой проект 903-2-37.91Типовой проект 903-2-37.91Типовой проект 903-2-37.91Типовой проект 903-2-37.91Типовой проект 903-2-37.91Типовой проект 903-2-37.91Типовой проект 903-2-37.91Типовой проект 903-2-37.91Типовой проект 903-2-37.91Типовой проект 903-2-37.91Типовой проект 903-2-37.91Типовой проект 903-2-37.91Типовой проект 903-2-37.91Типовой проект 903-2-37.91Типовой проект 903-2-37.91Типовой проект 903-2-37.91Типовой проект 903-2-37.91Типовой проект 903-2-37.91Типовой проект 903-2-37.91Типовой проект 903-2-37.91Типовой проект 903-2-37.91Типовой проект 903-2-37.91Типовой проект 903-2-37.91Типовой проект 903-2-37.91Типовой проект 903-2-37.91Типовой проект 903-2-37.91Типовой проект 903-2-37.91Типовой проект 903-2-37.91Типовой проект 903-2-37.91Типовой проект 903-2-37.91Типовой проект 903-2-37.91Типовой проект 903-2-37.91Типовой проект 903-2-37.91Типовой проект 903-2-37.91Типовой проект 903-2-37.91Типовой проект 903-2-37.91Типовой проект 903-2-37.91Типовой проект 903-2-37.91Типовой проект 903-2-37.91Типовой проект 903-2-37.91Типовой проект 903-2-37.91Типовой проект 903-2-37.91Типовой проект 903-2-37.91

© 2013 Ёшкин Кот :-) Карта сайта